| ||||||||||||||||||||||||||||||
Скачать Серия 5.905-28.04 Выпуск 1. Дымовые и вентиляционные каналы. Рабочие чертежиДата актуализации: 10.08.2017
|
| Обозначение: | Серия 5.905-28.04 |
| Обозначение англ: | Series 5.905-28.04 |
| Статус: | заменен |
| Название рус.: | Выпуск 1. Дымовые и вентиляционные каналы. Рабочие чертежи |
| Дата добавления в базу: | 01.09.2013 |
| Дата актуализации: | 05.05.2017 |
| Дата введения: | 18.11.2007 |
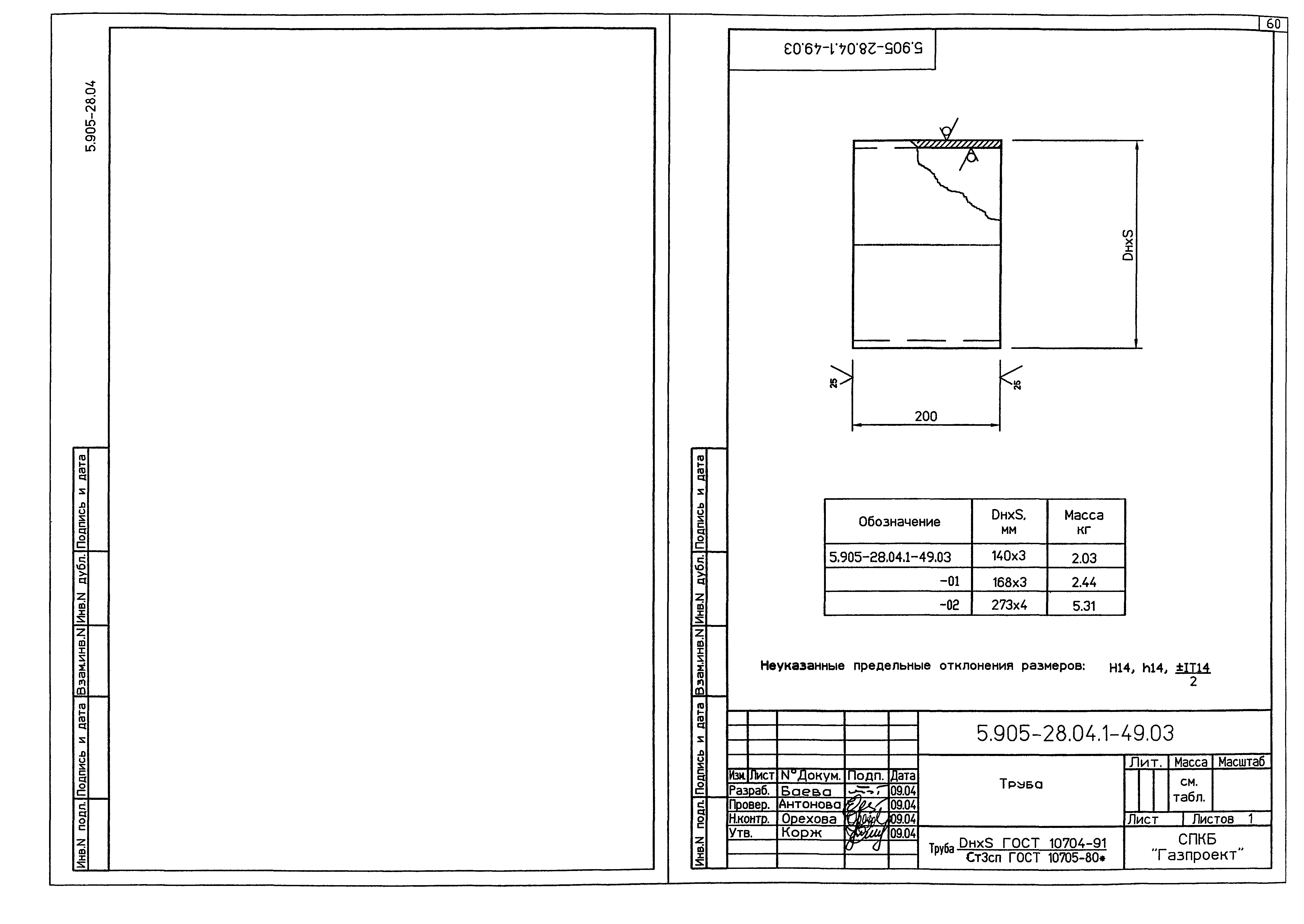
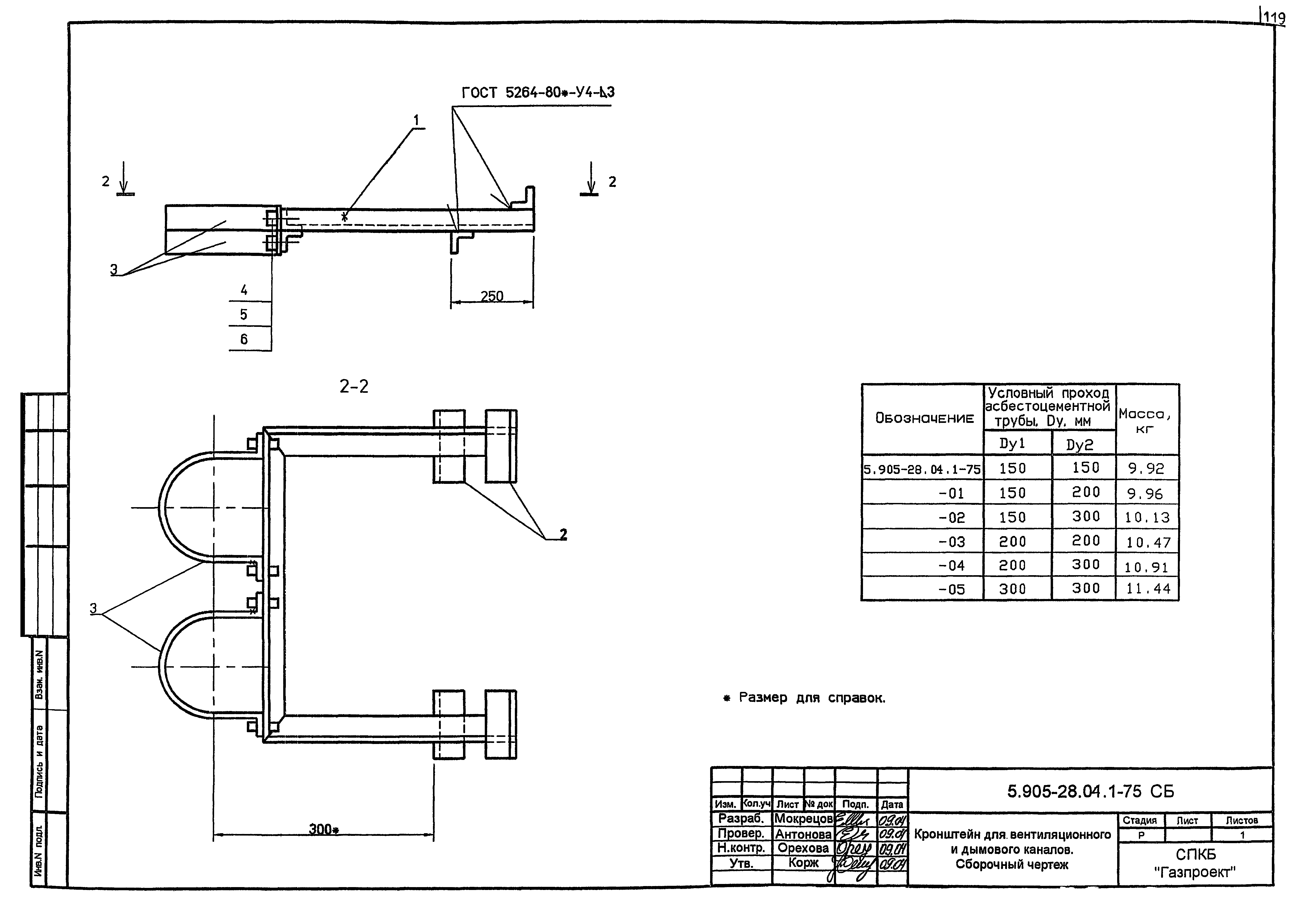
| Оглавление: | 5.905-28.04.01-ПЗ Пояснительная записка 5.905-28.04.1-1 Одноэтажное здание. Дымовой и вентиляционный каналы с выходом через перекрытие 5.905-28.04.1-2 Одноэтажное здание. Вентиляционный канал с выходом через перекрытие 5.905-28.04.1-3 Одноэтажное здание. Дымовой канал с выходом через перекрытие 5.905-28.04.1-4 Одноэтажное здание с цокольным (подвальным) этажом. Дымовой и вентиляционный каналы с выходом через перекрытие 5.905-28.04.1-5 Одноэтажное здание с цокольным (подвальным) этажом. Вентиляционный канал с выходом через перекрытие 5.905-28.04.1-6 Одноэтажное здание с цокольным (подвальным) этажом. Дымовой канал с выходом через перекрытие 5.905-28.04.1-7 Двухэтажное здание. Дымовой и вентиляционный каналы с выходом через перекрытие 5.905-28.04.1-8 Двухэтажное здание. Вентиляционный канал с выходом через перекрытие 5.905-28.04.1-9 Двухэтажное здание. Дымовой канал с выходом через перекрытие 5.905-28.04.1-10 Двухэтажное здание с цокольным (подвальным) этажом. Дымовой и вентиляционный каналы с выходом через перекрытие 5.905-28.04.1-11 Двухэтажное здание с цокольным (подвальным) этажом. Вентиляционный канал с выходом через перекрытие 5.905-28.04.1-12 Двухэтажное здание с цокольным (подвальным) этажом. Дымовой канал с выходом через перекрытие 5.905-28.04.1-13 Одноэтажное здание. Дымовой и вентиляционный каналы с выходом через стену 5.905-28.04.1-14 Одноэтажное здание. Вентиляционный канал с выходом через стену 5.905-28.04.1-15 Одноэтажное здание. Дымовой канал с выходом через стену 5.905-28.04.1-16 Двухэтажное здание. Дымовой и вентиляционный каналы с выходом через стену 5.905-28.04.1-17 Двухэтажное здание. Вентиляционный канал с выходом через стену 5.905-28.04.1-18 Двухэтажное здание. Дымовой канал снаружи кирпичного здания 5.905-28.04.1-19 Одноэтажное здание. Дымовой и вентиляционный каналы с выходом через стену из несгораемых материалов 5.905-28.04.1-20 Одноэтажное здание. Вентиляционный канал с выходом через стену из сгораемых материалов 5.905-28.04.1-21 Одноэтажное здание. Дымовой канал с выходом через стену из сгораемых материалов 5.905-28.04.1-22 Узел 1 5.905-28.04.1-23 Узел 2 5.905-28.04.1-24 Узел 3 5.905-28.04.1-25 Узел 4 5.905-28.04.1-26 Узел 5 5.905-28.04.1-27 Узел 6 5.905-28.04.1-28 Узел 7 5.905-28.04.1-29 Узел 8 5.905-28.04.1-30 Узел 9 5.905-28.04.1-31 Узел 10 5.905-28.04.1-32 Узел 11 5.905-28.04.1-33 Узел 12 5.905-28.04.1-34 Узел 13 5.905-28.04.1-35 Узел 14 5.905-28.04.1-36 Узел 15 5.905-28.04.1-37 Узел 16 5.905-28.04.1-38 Узел 17 5.905-28.04.1-39 Высота оголовка каналов над кровлей. Узел стыковки асбестоцементных труб. Узел 18 5.905-28.04.1-40 Узел 19 5.905-28.04.1-41 Узел 20 5.905-28.04.1-42 Узел 21 5.905-28.04.1-43 Узел 22 5.905-28.04.1-44 Узел 23 5.905-28.04.1-45 Узел прохода через кровлю вентиляционного и дымового каналов 5.905-28.04.1-46 Узел прохода через кровлю вентиляционного и дымового каналов 5.905-28.04.1-47 Узел прохода через кровлю вентиляционного или дымового каналов 5.905-28.04.1-48СБ Решетка вентиляционная. Сборочный чертеж 5.905-28.04.1-48 Решетка вентиляционная 5.905-28.04.1-48.01 Цилиндр 5.905-28.04.1-49СБ Песочница. Сборочный чертеж 5.905-28.04.1-49 Песочница 5.905-28.04.1-49.01 Корпус 5.905-28.04.1-49.02 Дно 5.905-28.04.1-49.03 Труба 5.905-28.04.1-49.04СБ Опорная конструкция. Сборочный чертеж 5.905-28.04.1-49.04 Опорная конструкция 5.905-28.04.1-50СБ Тройник. Сборочный чертеж 5.905-28.04.1-50 Тройник 5.905-28.04.1-50.01 Труба 5.905-28.04.1-50.02 Труба 5.905-28.04.1-51СБ Заглушка. Сборочный чертеж 5.905-28.04.1-51 Заглушка 5.905-28.04.1-51.01 Цилиндр 5.905-28.04.1-51.02 Рукоятка 5.905-28.04.1-52СБ Хомут на асбестоцементные трубы. Сборочный чертеж 5.905-28.04.1-52 Хомут на асбестоцементные трубы 5.905-28.04.1-52.01 Полухомут 5.905-28.04.1-53СБ Изолятор для дымовой трубы. Сборочный чертеж 5.905-28.04.1-53 Изолятор для дымовой трубы 5.905-28.04.1-54СБ Фартук для двух труб. Сборочный чертеж 5.905-28.04.1-54 Фартук для двух труб 5.905-28.04.1-54.01 Ограждающий лист 5.905-28.04.1-54.02 Гильза 5.905-28.04.1-55 Футляр 5.905-28.04.1-56 Опора 5.905-28.04.1-57СБ Опорная конструкция. Сборочный чертеж 5.905-28.04.1-57 Опорная конструкция 5.905-28.04.1-57.01 Швеллер 5.905-28.04.1-57.02 Уголок 5.905-28.04.1-57.03 Полухомут 5.905-28.04.1-58СБ опорная конструкция. Сборочный чертеж 5.905-28.04.1-58 опорная конструкция 5.905-28.04.1-58.01 Швеллер 5.905-28.04.1-59СБ Гильза. Сборочный чертеж 5.905-28.04.1-59 Гильза 5.905-28.04.1-59.01 Дно 5.905-28.04.1-59.02 Труба 5.905-28.04.1-60СБ Песочница. Сборочный чертеж 5.905-28.04.1-60 Песочница 5.905-28.04.1-60.01 Корпус 5.905-28.04.1-60.02 Дно 5.905-28.04.1-60.03 Опорная конструкция 5.905-28.04.1-61СБ Гильза для вентиляционной трубы. Сборочный чертеж 5.905-28.04.1-61 Гильза для вентиляционной трубы 5.905-28.04.1-61.01 Корпус 5.905-28.04.1-61.02 Дно 5.905-28.04.1-61.03СБ Опорная конструкция. Сборочный чертеж 5.905-28.04.1-61.03 Опорная конструкция 5.905-28.04.1-62 Фартук для одной трубы 5.905-28.04.1-63 Футляр 5.905-28.04.1-64СБ Песочница для дымовой трубы. Сборочный чертеж 5.905-28.04.1-64 Песочница для дымовой трубы 5.905-28.04.1-64.01 Корпус 5.905-28.04.1-64.02 Дно 5.905-28.04.1-64.03СБ Опорная конструкция. Сборочный чертеж 5.905-28.04.1-64.03 Опорная конструкция 5.905-28.04.1-65СБ Гильза для вентиляционной трубы. Сборочный чертеж 5.905-28.04.1-65 Гильза для вентиляционной трубы 5.905-28.04.1-65.01 Корпус 5.905-28.04.1-65.02 Опорная конструкция 5.905-28.04.1-66СБ Гильза для вентиляционной трубы. Сборочный чертеж 5.905-28.04.1-66 Гильза для вентиляционной трубы 5.905-28.04.1-67СБ Гильза для дымовой трубы. Сборочный чертеж 5.905-28.04.1-67 Гильза для дымовой трубы 5.905-28.04.1-68СБ Гильза для дымовой трубы. Сборочный чертеж 5.905-28.04.1-68 Гильза для дымовой трубы 5.905-28.04.1-69 Колено 5.905-28.04.1-70 Патрубок 5.905-28.04.1-71СБ Кронштейн для вентиляционного или дымового каналов. Сборочный чертеж 5.905-28.04.1-71 Кронштейн для вентиляционного или дымового каналов 5.905-28.04.1-71.01 Консоль 5.905-28.04.1-72 Гильза 5.905-28.04.1-73СБ Кронштейн. Сборочный чертеж 5.905-28.04.1-73 Кронштейн 5.905-28.04.1-73.01 Консоль 5.905-28.04.1-74СБ Кронштейн для вентиляционного и дымового каналов. Сборочный чертеж 5.905-28.04.1-74 Кронштейн для вентиляционного и дымового каналов 5.905-28.04.1-74.01 Консоль 5.905-28.04.1-75СБ Кронштейн для вентиляционного и дымового каналов. Сборочный чертеж 5.905-28.04.1-75 Кронштейн для вентиляционного и дымового каналов 5.905-28.04.1-75.01СБ Консоль. Сборочный чертеж 5.905-28.04.1-75.01 Консоль 5.905-28.04.1-75.01.01 Опора 5.905-28.04.1-75.01.02 Опора 5.905-28.04.1-76СБ Тройник наружный. Сборочный чертеж 5.905-28.04.1-76 Тройник наружный 5.905-28.04.1-76.01 Труба 5.905-28.04.1-77СБ Гильза. Сборочный чертеж 5.905-28.04.1-77 Гильза 5.905-28.04.1-77.01 Труба 5.905-28.04.1-78СБ Гильза для вентиляционной и дымовой трубы. Сборочный чертеж 5.905-28.04.1-78 Гильза для вентиляционной и дымовой трубы 5.905-28.04.1-79СБ Кронштейн для вентиляционного и дымового каналов. Сборочный чертеж 5.905-28.04.1-79 Кронштейн для вентиляционного и дымового каналов 5.905-28.04.1-79.01 Консоль 5.905-28.04.1-80СБ Тройник. Сборочный чертеж 5.905-28.04.1-80 Тройник 5.905-28.04.1-80.01 Труба 5.905-28.04.1-81 Патрубок 5.905-28.04.1-82СБ Кронштейн. Сборочный чертеж 5.905-28.04.1-82 Кронштейн 5.905-28.04.1-82.01СБ Консоль. Сборочный чертеж 5.905-28.04.1-82.01 Консоль 5.905-28.04.1-82.01.01 Опора 5.905-28.04.1-83СБ Изолятор. Сборочный чертеж 5.905-28.04.1-83 Изолятор 5.905-28.04.1-84СБ Кронштейн для вентиляционного и дымового каналов. Сборочный чертеж 5.905-28.04.1-84 Кронштейн для вентиляционного и дымового каналов 5.905-28.04.1-85СБ Кронштейн. Сборочный чертеж 5.905-28.04.1-85 Кронштейн 5.905-28.04.1-85.01 Консоль |
| Разработан: | ОАО СПКБ Газпроект -БТЦ |
| Утверждён: | 07.12.2004 АО Росгазификация (Rosgazifikatsiya AO 82) |
| Расположен в: | |
| Заменяет собой: | |
| Чем заменён: |



















































































































































