| ||||||||||||||||||||||||
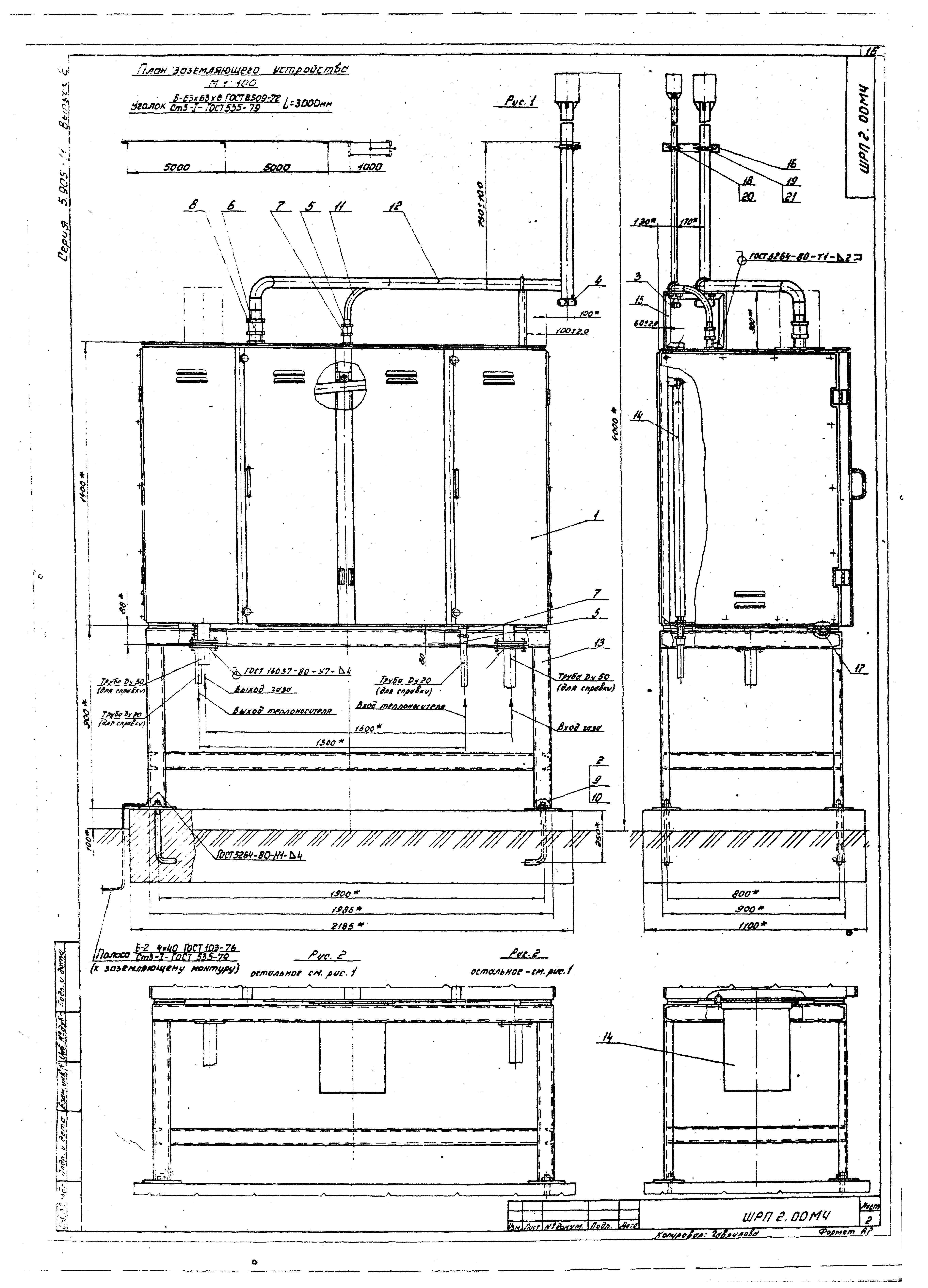
Скачать Серия 5.905-11 Выпуск 2. Шкафной регуляторный пункт с регулятором давления газа РДБК1-50 ШРП2.00. Рабочие чертежиДата актуализации: 10.08.2017
|
| Обозначение: | Серия 5.905-11 |
| Обозначение англ: | Series 5.905-11 |
| Статус: | не определен законодательством |
| Название рус.: | Выпуск 2. Шкафной регуляторный пункт с регулятором давления газа РДБК1-50 ШРП2.00. Рабочие чертежи |
| Дата добавления в базу: | 01.09.2013 |
| Дата актуализации: | 05.05.2017 |
| Дата введения: | 12.05.1986 |
| Разработан: | Мосгазниипроект Мосгорисполкома |
| Утверждён: | 04.03.1986 Госстрой СССР (Государственный комитет Совета Министров СССР по делам строительства) (USSR Gosstroy ИИ-6) |
| Расположен в: |





















































