| ||||||||||||||||||||||||||
Скачать Серия 3.907.2-10 Выпуск 1. Улиточный золоуловитель к дымососу ДН-11,2Дата актуализации: 10.08.2017
|
| Обозначение: | Серия 3.907.2-10 |
| Обозначение англ: | Series 3.907.2-10 |
| Статус: | не определен законодательством |
| Название рус.: | Выпуск 1. Улиточный золоуловитель к дымососу ДН-11,2 |
| Дата добавления в базу: | 01.09.2013 |
| Дата актуализации: | 05.05.2017 |
| Дата введения: | 01.02.1982 |
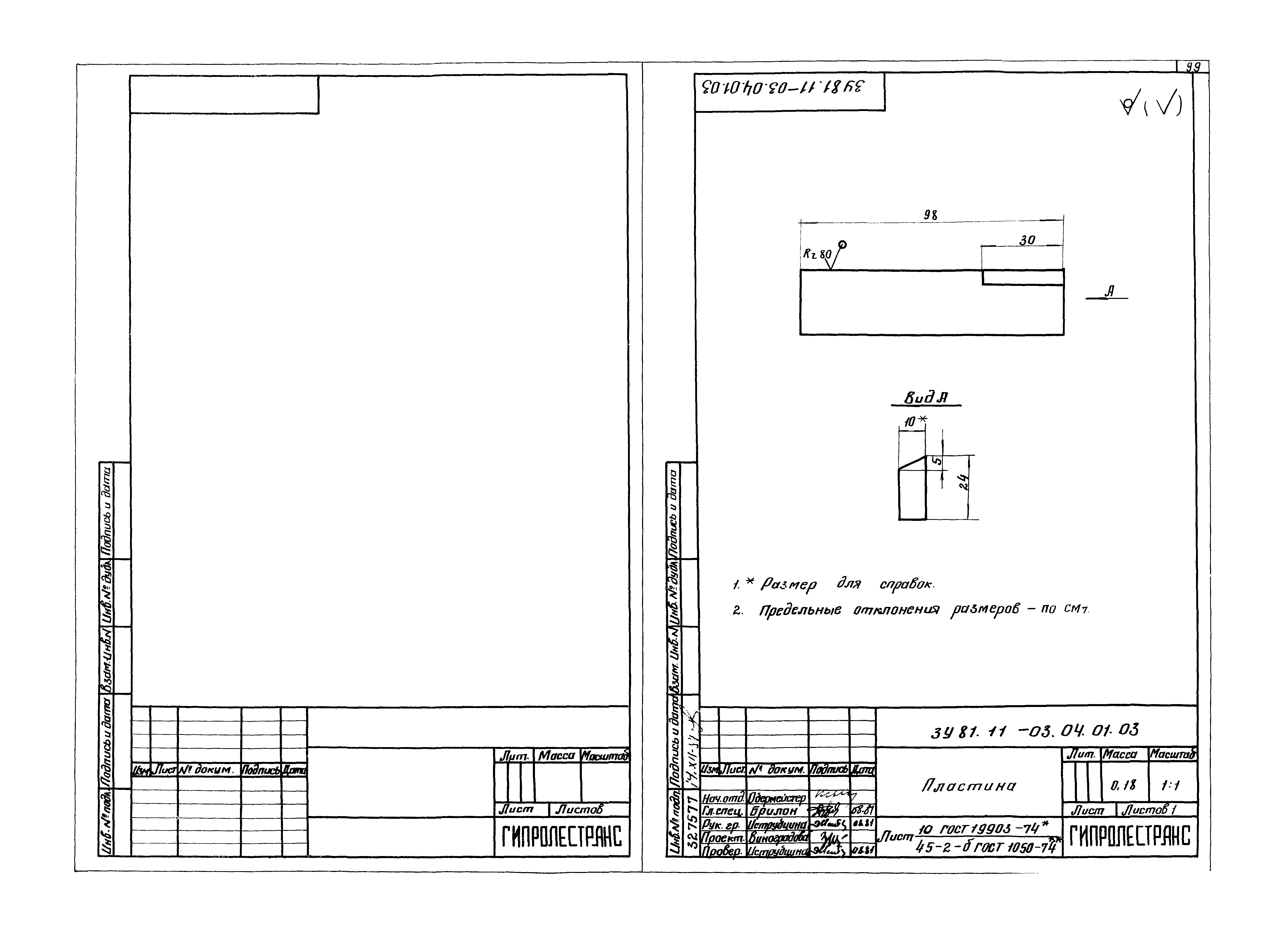
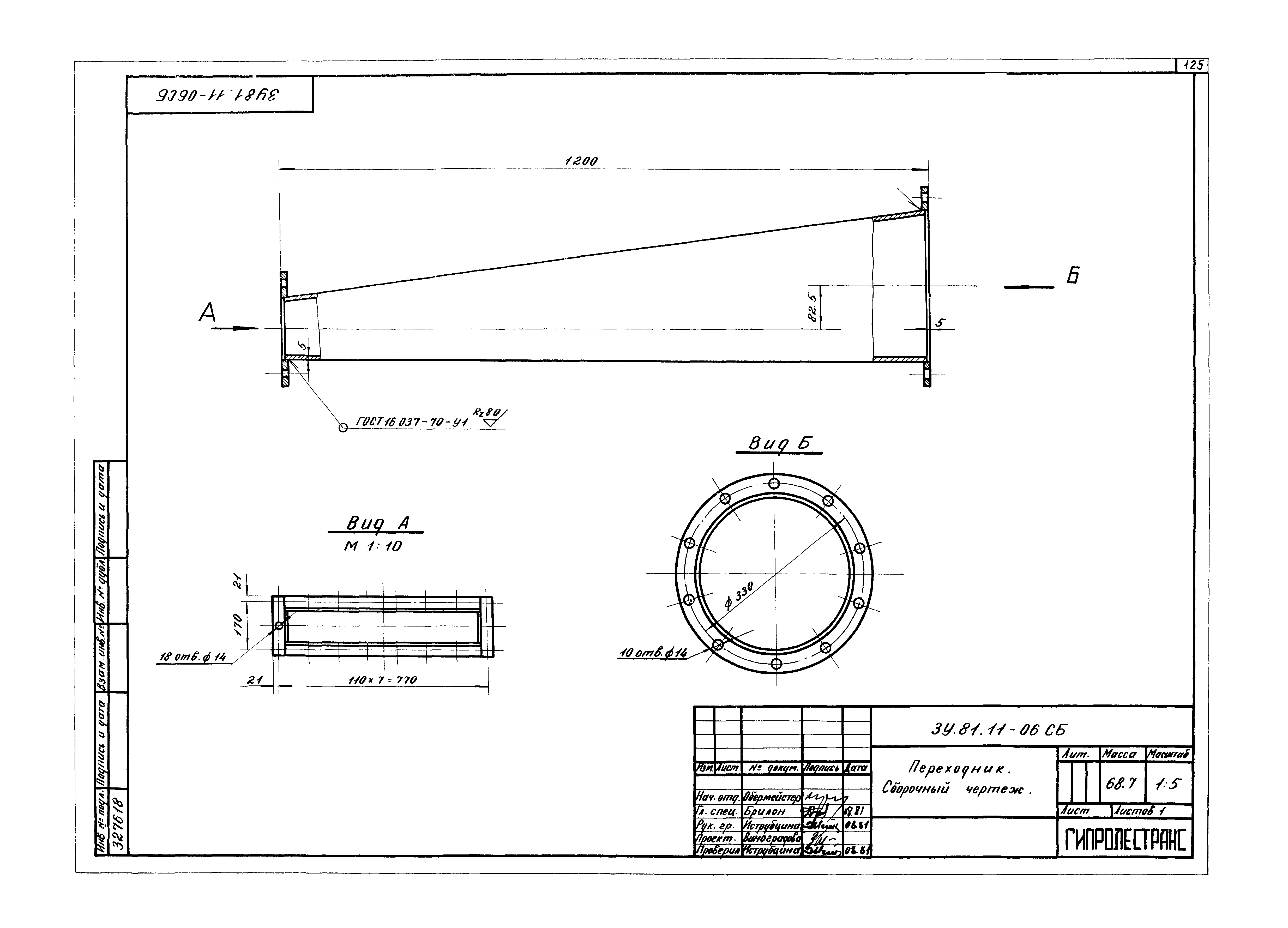
| Оглавление: | Установка золоулавливающая к дымососу ДН-11,12 Золоуловитель улиточный Корпус. Верхняя часть Фланец Накладка Крышка Корпус. Нижняя часть Крышка Аппарат направляющий Рама Шибер Накладка Тяга соединительная Вилка Рычаг Циклон ЦН-15 Ду 800 Бункер Опора Фланец Затвор-мигалка Ду 100 Корпус Опора Подвеска Крышка Рычаг Рукоятка Заслонка Ду 300 Корпус Ручка Переходник Колено Ду 250 Колено Ду 300 |
| Разработан: | Гипролестранс |
| Утверждён: | 29.12.1981 Минлесбумпром СССР (USSR Minlesbumprom 203) |
| Расположен в: |






































































































































