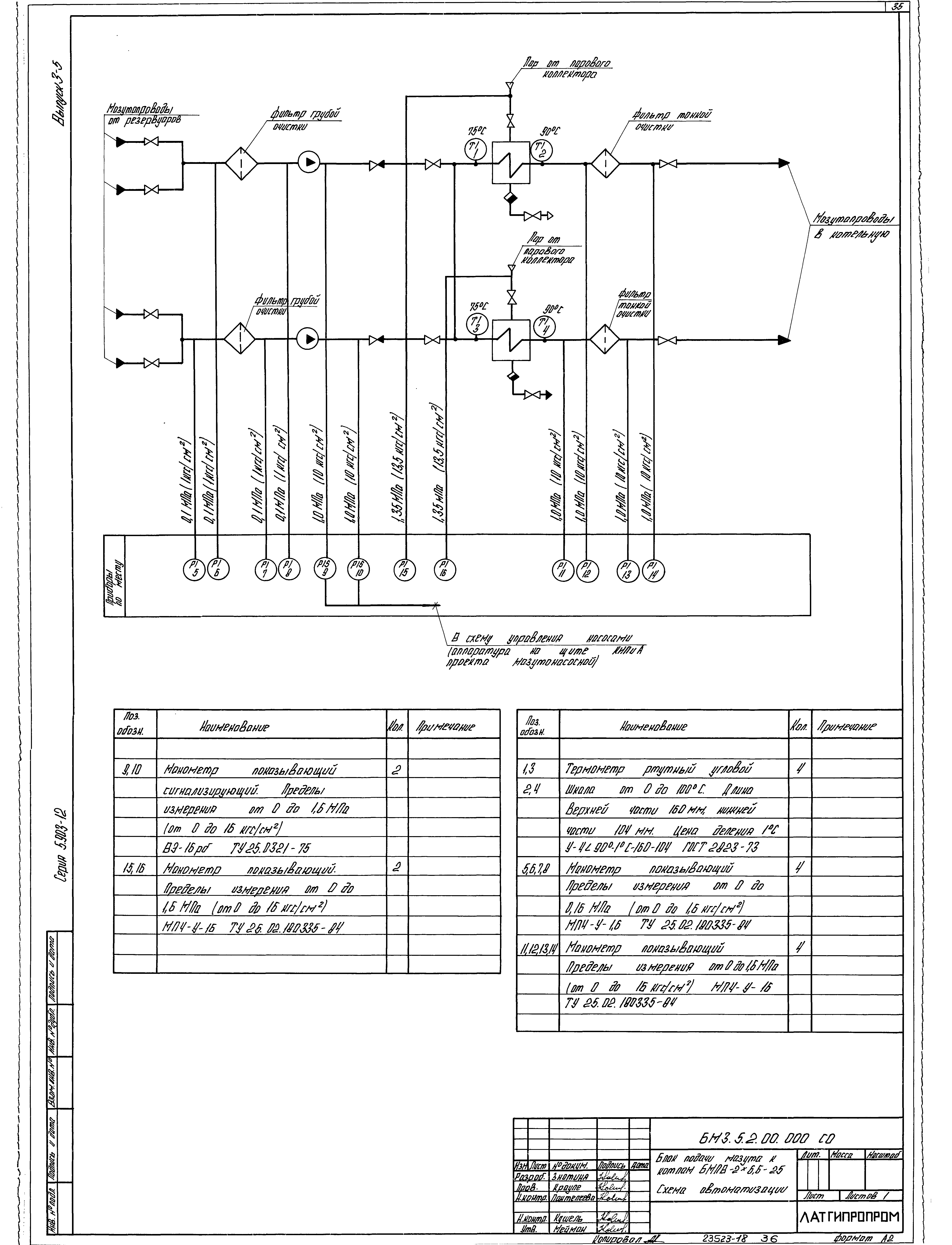
Скачать Серия 5.903-12 Выпуск 3-5. Блок подачи мазута к котлам БМПВ-2х6,6-25. Рабочие чертежиДата актуализации: 10.08.2017 Серия 5.903-12
Выпуск 3-5. Блок подачи мазута к котлам БМПВ-2х6,6-25. Рабочие чертежи| Обозначение: | Серия 5.903-12 | | Обозначение англ: | Series 5.903-12 | | Статус: | не определен законодательством | | Название рус.: | Выпуск 3-5. Блок подачи мазута к котлам БМПВ-2х6,6-25. Рабочие чертежи | | Дата добавления в базу: | 01.09.2013 | | Дата актуализации: | 05.05.2017 | | Дата введения: | 01.07.1989 | | Разработан: | Латгипропром
| | Утверждён: | 16.06.1989 ММСС СССР
| | Расположен в: |
|
                                               
|