| ||||||||||||||||||||||||||
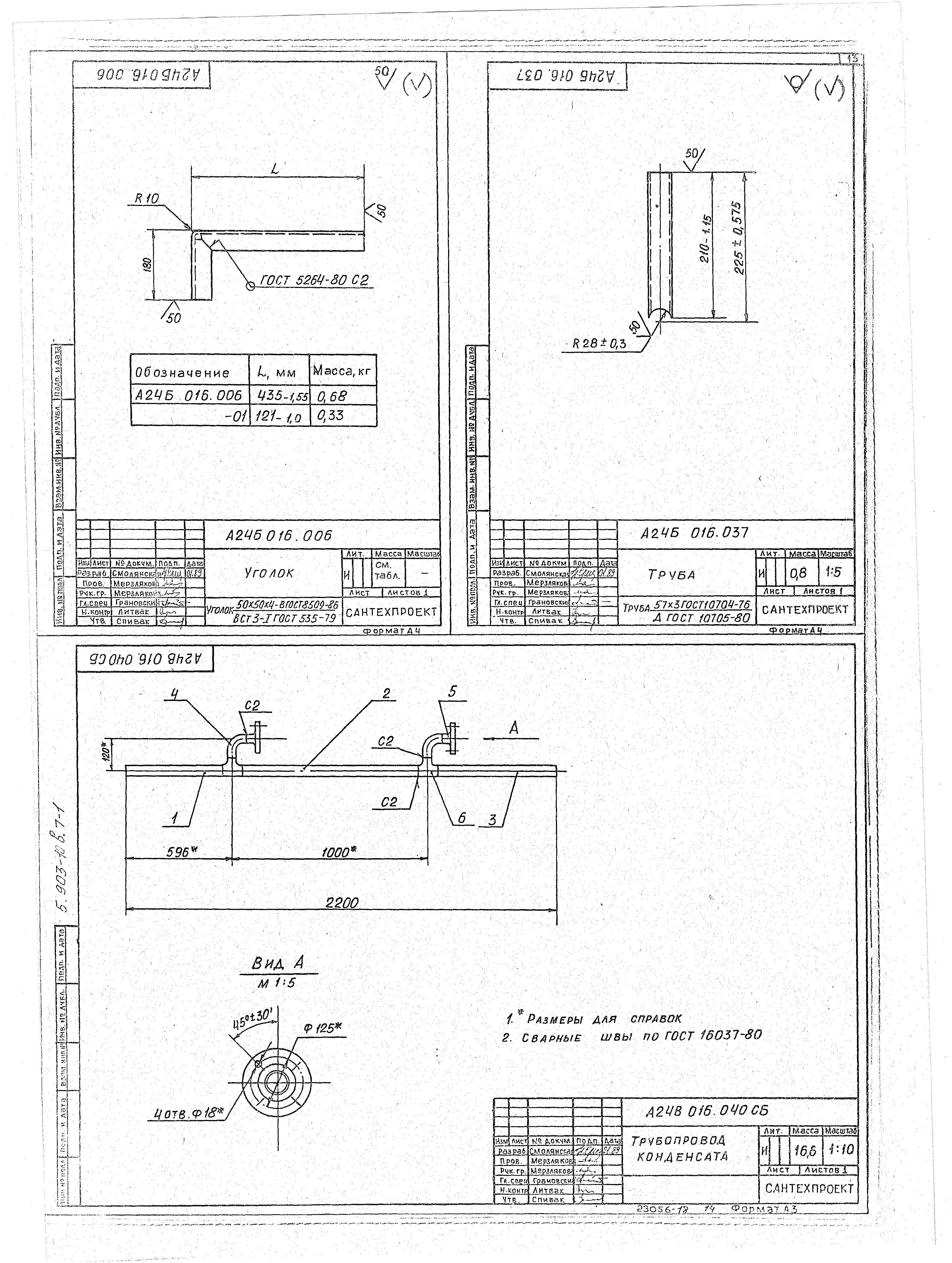
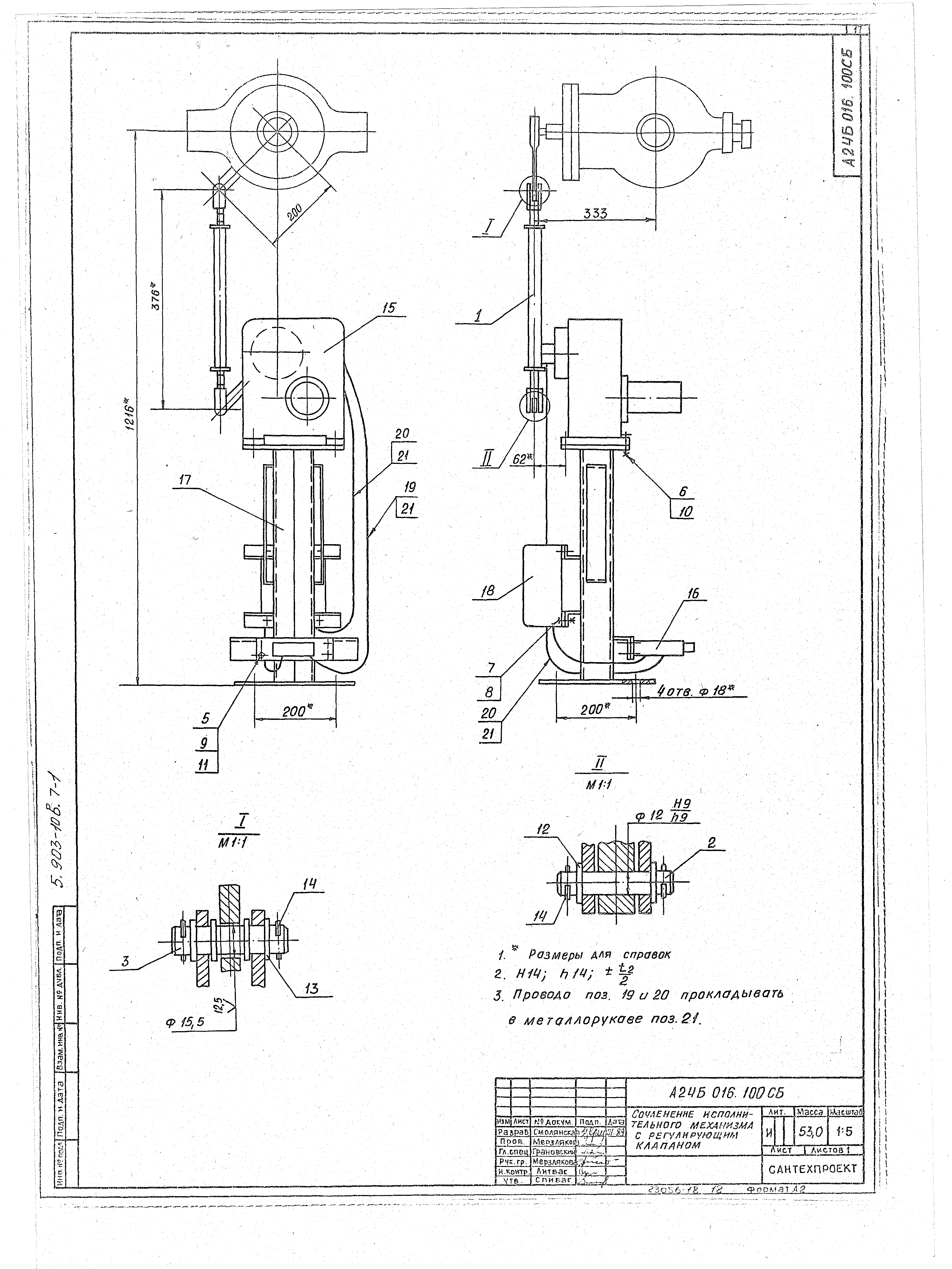
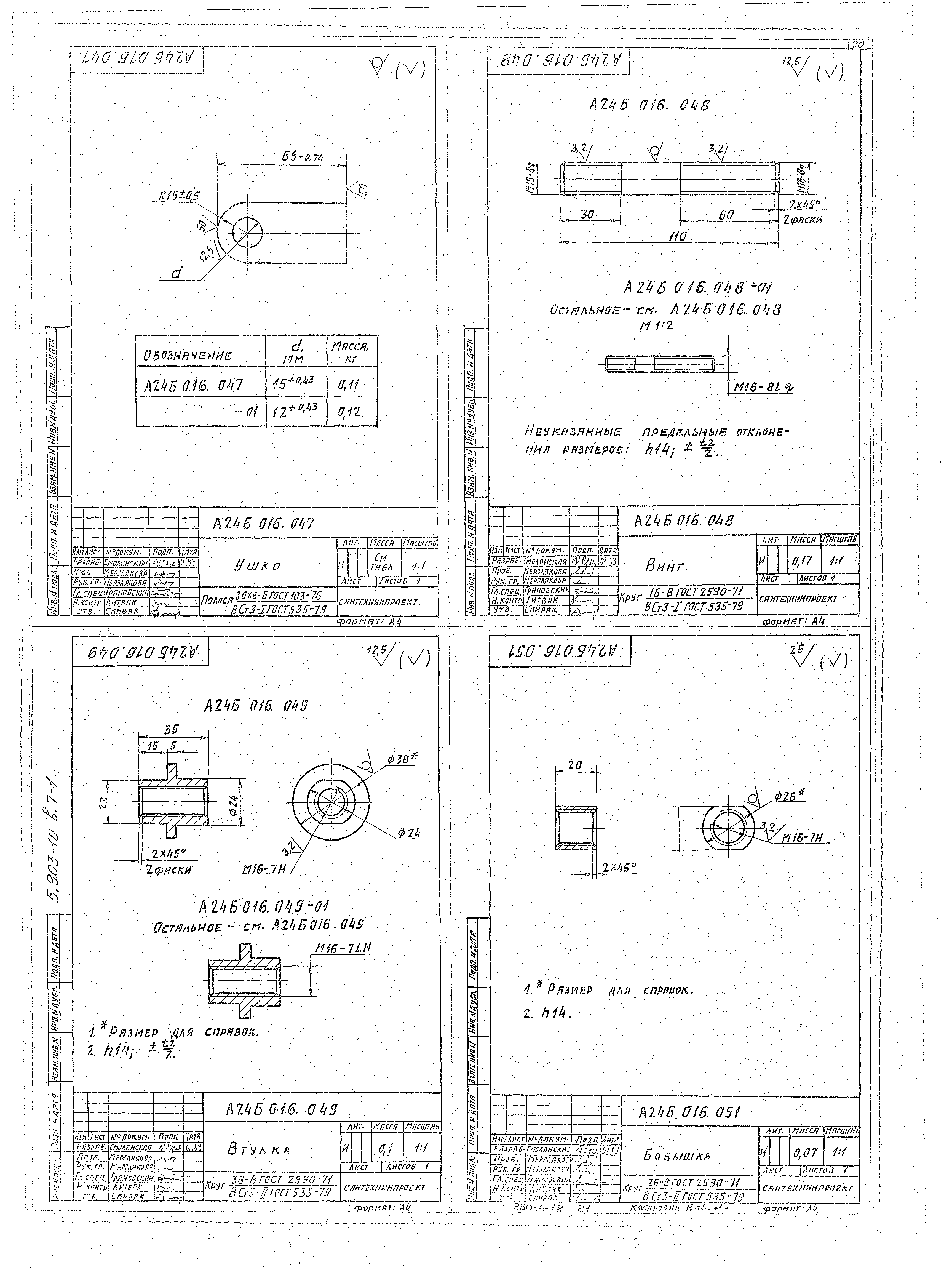
Скачать Серия 5.903-10 Выпуск 7-1. Блоки подогрева и охлаждения. Рабочие чертежиДата актуализации: 10.08.2017
|
| Обозначение: | Серия 5.903-10 |
| Обозначение англ: | Series 5.903-10 |
| Статус: | не определен законодательством |
| Название рус.: | Выпуск 7-1. Блоки подогрева и охлаждения. Рабочие чертежи |
| Дата добавления в базу: | 01.09.2013 |
| Дата актуализации: | 05.05.2017 |
| Дата введения: | 01.03.1990 |
| Разработан: | Сантехниипроект Госстроя России |
| Утверждён: | 10.10.1989 ГПКНИИ Сантехниипроект (50) |
| Издан: | ЦИТП Госстроя СССР (CITP, Gosstroy (USSR) 1989 г. ) |
| Расположен в: |






























































