| ||||||||||||||||||||||||||
Скачать Серия 5.903-15 Выпуск 9-3. Часть 1. Блок деаэрационно-подпиточный БДАП-25-8. Рабочие чертежиДата актуализации: 10.08.2017
|
| Обозначение: | Серия 5.903-15 |
| Обозначение англ: | Series 5.903-15 |
| Статус: | не определен законодательством |
| Название рус.: | Выпуск 9-3. Часть 1. Блок деаэрационно-подпиточный БДАП-25-8. Рабочие чертежи |
| Дата добавления в базу: | 01.09.2013 |
| Дата актуализации: | 05.05.2017 |
| Дата введения: | 01.03.1990 |
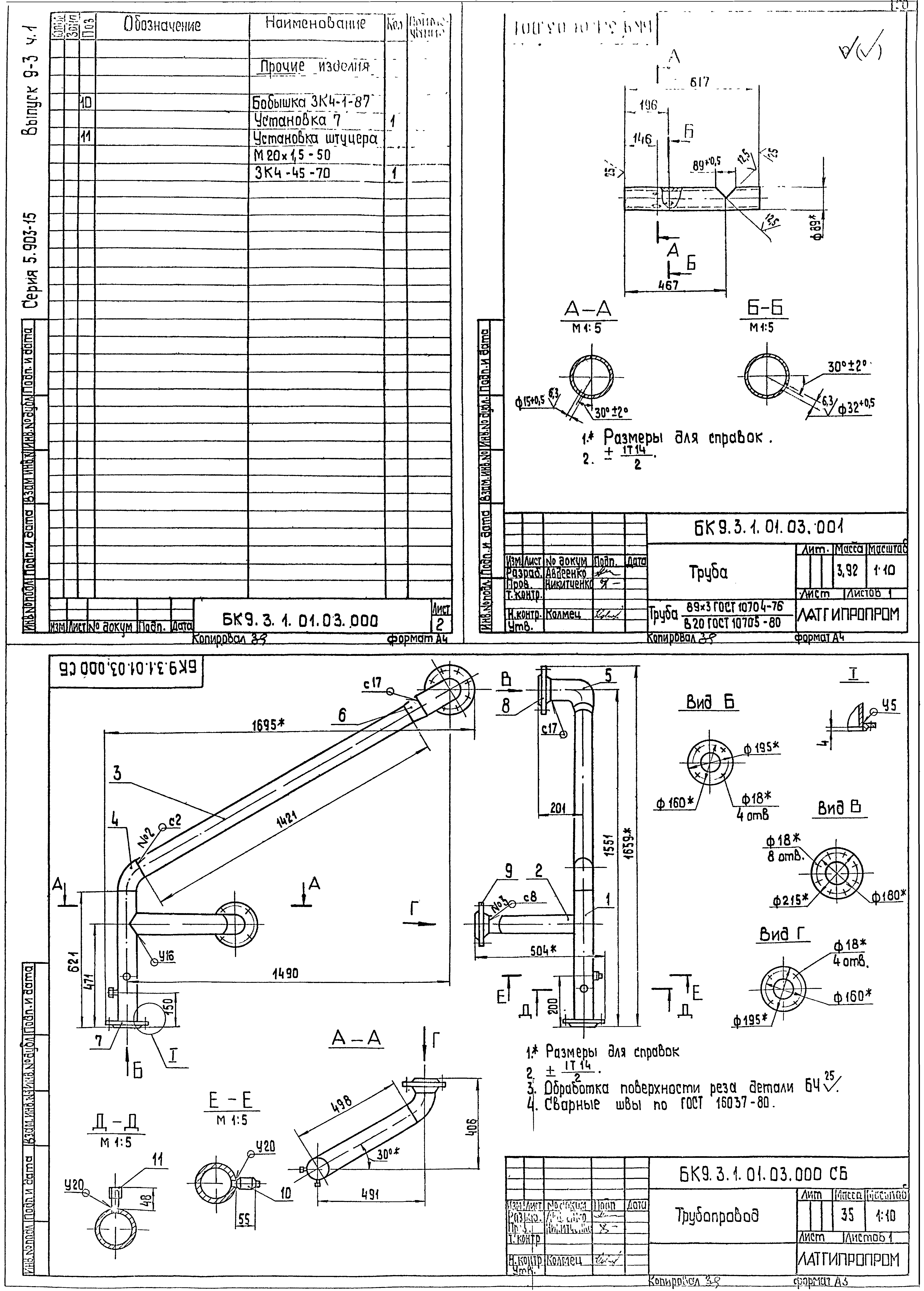
| Оглавление: | БК9.3.1.00.00.000 ГЗ Блок БДАП-25-8. Схема принципиальная БК9.3.1.00.00.000 СБ Блок БДАП-25-8 БК9.3.1.00.00.000 Блок БДАП-25-8 БК9.3.1.01.00.000 Блок нижний БК9.3.1.01.00.000 СБ Блок нижний БК9.3.1.01.00.000 Блок нижний БК9.3.1.01.01.000 Рама БК9.3.1.01.01.000 СБ Рама БК9.1.1.01.01.001 Петля БК9.1.1.01.01.002 Штырь БК9.3.1.01.01.001 Полка БК9.3.1.01.01.100 Лестница БК9.3.1.01.01.100 СБ Лестница БК9.3.1.01.01.101 Стойка БК9.1.1.01.01.104 Ступень БК9.1.1.01.01.200 СБ Секция перил БК9.3.1.01.01.202 Полоса оградительная БК9.3.1.01.01.201 Стойка БК9.3.1.01.01.200 Секция перил БК9.3.1.01.02.000 Трубопровод БК9.3.1.01.02.000 СБ Трубопровод БК9.3.1.01.03.000 Трубопровод БК9.3.1.01.02.001 Труба БК9.3.1.01.03.000 Трубопровод БК9.3.1.01.03.001 Труба БК9.3.1.01.03.000 СБ Трубопровод БК9.3.1.01.03.002 Труба БК9.3.1.01.04.000 Трубопровод БК9.3.1.01.04.000 СБ Трубопровод БК9.3.1.01.05.000 Трубопровод БК9.3.1.01.05.000 СБ Трубопровод БК9.3.1.01.05.001 Труба БК9.3.1.01.06.000 Трубопровод БК9.3.1.01.06.000 СБ Трубопровод БК9.3.1.01.06.001 Труба БК9.3.1.01.07.000 Трубопровод БК9.3.1.01.07.000 СБ Трубопровод БК9.3.1.01.08.000 Трубопровод БК9.3.1.01.09.000 Трубопровод БК9.3.1.01.08.000 СБ Трубопровод БК9.3.1.01.09.000 Трубопровод БК9.3.1.01.10.000 Трубопровод БК9.3.1.01.09.000 СБ Трубопровод БК9.3.1.01.11.000 Трубопровод БК9.3.1.01.10.000 СБ Трубопровод БК9.3.1.01.11.000 СБ Трубопровод БК9.3.1.01.11.000 Трубопровод БК9.3.1.01.12.000 Трубопровод БК9.3.1.01.12.000 СБ Трубопровод БК9.3.1.01.12.000 Трубопровод БК9.3.1.01.12.001 Труба БК9.3.1.01.12.002 Труба БК9.3.1.01.01.13.000 Трубопровод БК9.3.1.01.01.13.000 СБ Трубопровод БК9.3.1.01.01.14.000 Трубопровод БК9.3.1.01.01.14.000 СБ Трубопровод БК9.3.1.01.01.15.000 Трубопровод БК9.3.1.01.01.16.000 Трубопровод БК9.3.1.01.01.15.000 СБ Трубопровод БК9.3.1.01.01.16.000 СБ Трубопровод БК9.3.1.01.01.17.000 Трубопровод БК9.3.1.01.01.17.000 СБ Трубопровод БК9.3.1.01.01.18.000 Трубопровод БК9.3.1.01.01.18.000 СБ Трубопровод БК9.3.1.01.01.19.000 Трубопровод БК9.3.1.01.01.19.000 СБ Трубопровод БК9.1.1.05.00.000 Трубопровод дренажный БК9.1.1.01.02.001 Патрубок БК9.1.1.05.00.000 СБ Трубопровод дренажный БК9.1.1.05.00.001 Патрубок БК9.1.1.05.00.002 Труба БК9.1.1.05.00.003 Труба БК9.3.1.02.00.000 Блок верхний БК9.3.1.02.00.000 СБ Блок верхний БК9.3.1.02.00.000 Блок верхний БК9.3.1.02.01.000 Бак деаэраторный БК9.3.1.02.01.001 Планка БК9.3.1.02.01.002 Косынка БК9.3.1.02.01.000 СБ Бак деаэраторный БК9.3.1.02.01.003 Связь БК9.3.1.02.01.004 Настил БК9.3.1.02.01.005 Связь БК9.3.1.02.01.100 Бак деаэраторный БК9.3.1.02.01.100 СБ Бак деаэраторный БК9.3.1.02.01.100 Бак деаэраторный БК9.3.1.02.01.101 Петля БК9.3.1.02.01.200 Лестница БК9.3.1.02.01.104 Ступень БК9.3.1.02.01.200 СБ Лестница БК9.3.1.02.01.201 Стойка БК9.3.1.02.01.202 Поручень БК9.3.1.02.01.203 Тетива БК9.3.1.02.01.204 Леер БК9.3.1.02.01.300 Секция перил БК9.3.1.02.01.301 Стойка БК9.3.1.02.01.300 СБ Секция перил БК9.3.1.02.01.302 Поручень БК9.3.1.02.01.303 Леер БК9.3.1.02.01.400 Секция перил БК9.3.1.02.01.400 СБ Секция перил БК9.3.1.02.01.500 Секция перил БК9.3.1.02.01.500 СБ Секция перил БК9.3.1.02.01.501 Полоса оградительная БК9.3.1.02.02.000 Трубопровод БК9.3.1.02.02.000 СБ Трубопровод БК9.3.1.02.03.000 Трубопровод БК9.3.1.02.03.000 СБ Трубопровод БК9.3.1.02.04.000 Трубопровод БК9.3.1.02.04.000 СБ Трубопровод БК9.3.1.02.05.000 Колено БК9.3.1.02.05.000 СБ Колено БК9.3.1.02.06.000 Патрубок БК9.3.1.02.06.000 СБ Патрубок БК9.3.1.02.07.000 Трубопровод БК9.3.1.02.07.000 СБ Трубопровод БК9.3.1.02.07.001 Труба БК9.3.1.02.07.002 Труба БК9.3.1.02.08 Тройник БК9.3.1.02.08 СБ Тройник БК9.3.1.02.09.000 Трубопровод БК9.3.1.02.09.000 СБ Трубопровод БК9.3.1.02.09.001 Труба БК9.3.1.02.09.002 Труба БК9.3.1.02.10.000 Трубопровод БК9.3.1.02.10.000 СБ Трубопровод БК9.3.1.02.10.001 Труба БК9.3.1.02.10.002 Патрубок БК9.3.1.02.11.000 Трубопровод БК9.3.1.02.11.000 СБ Трубопровод БК9.3.1.02.12.000 Трубопровод БК9.3.1.02.12.000 СБ Трубопровод БК9.3.1.02.13.000 Трубопровод БК9.3.1.02.13.000 СБ Трубопровод БК9.3.1.02.14.000 Трубопровод БК9.3.1.02.14.000 СБ Трубопровод БК9.3.1.02.14.001 Труба БК9.3.1.02.14.002 Труба БК9.3.1.02.15.000 Тройник БК9.3.1.02.15.000 СБ Тройник БК9.3.1.02.15.000 Трубопровод БК9.3.1.02.15.000 СБ Трубопровод БК9.3.1.02.15.001 Патрубок БК9.2.1.02.16.000 Трубопровод БК9.2.1.02.15.002 Патрубок БК9.2.1.02.16.000 СБ Трубопровод БК9.2.1.02.17.000 Трубопровод БК9.2.1.02.17.000 СБ Трубопровод БК9.3.1.03.00.000 Гидрозатвор БК9.3.1.03.00.000 СБ Гидрозатвор БК9.3.1.03.01.000 Трубопровод БК9.3.1.03.01.000 СБ Трубопровод БК9.3.1.03.02.000 СБ Трубопровод БК9.3.1.03.02.000 Трубопровод БК9.3.1.04.00.000 Трубопровод БК9.3.1.04.00.000 СБ Трубопровод |
| Разработан: | Латгипропром |
| Утверждён: | 14.02.1990 ММСС СССР |
| Расположен в: |





































































