| ||||||||||||||||||||||||||
Скачать Серия 5.903-15 Выпуск 9-1. Часть 1. Блок деаэрационно-подпиточный БДАП-5-2. Рабочие чертежиДата актуализации: 10.08.2017
|
| Обозначение: | Серия 5.903-15 |
| Обозначение англ: | Series 5.903-15 |
| Статус: | не определен законодательством |
| Название рус.: | Выпуск 9-1. Часть 1. Блок деаэрационно-подпиточный БДАП-5-2. Рабочие чертежи |
| Дата добавления в базу: | 01.09.2013 |
| Дата актуализации: | 05.05.2017 |
| Дата введения: | 01.03.1990 |
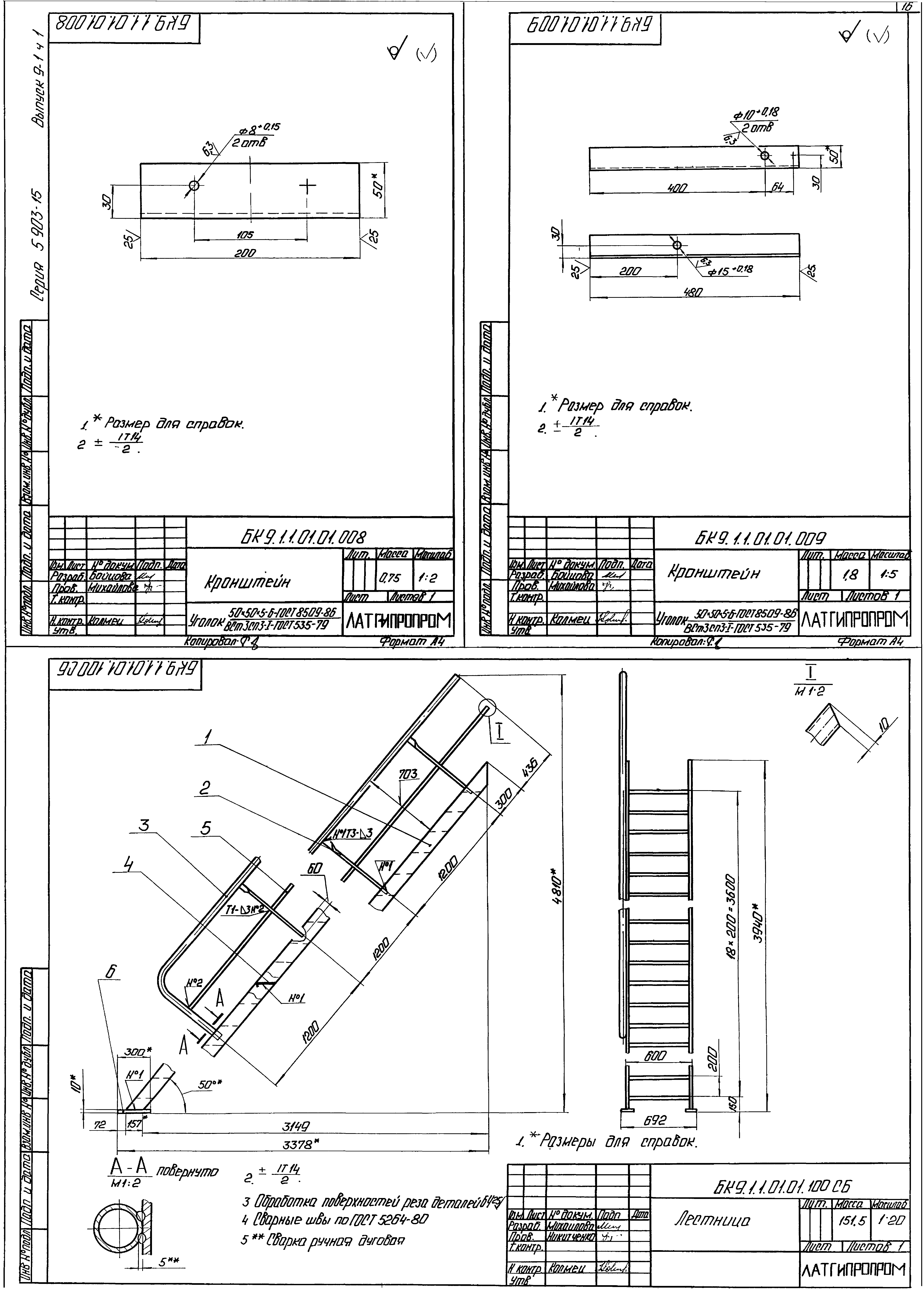
| Оглавление: | БК9.1.1.00.00.000 ГЗ Блок БДАП-5-2. Схема принципиальная БК9.1.1.00.00.000 СБ Блок БДАП-5-2 БК9.1.1.00.00.000 Блок БДАП-5-2 БК9.1.1.00.00.001 Труба БК9.1.1.01.00.000 Блок нижний БК9.1.1.01.00.000 СБ Блок нижний БК9.1.1.01.00.000 Блок нижний БК9.1.1.01.01.000 Рама БК9.1.1.01.01.000 СБ Рама БК9.1.1.01.01.000 Рама БК9.1.1.01.01.001 Петля БК9.1.1.01.01.002 Штырь БК9.1.1.01.01.003 Полка БК9.1.1.01.01.004 Полка БК9.1.1.01.01.005 Настил БК9.1.1.01.01.006 Кронштей БК9.1.1.01.01.007 Кронштей БК9.1.1.01.01.008 Кронштей БК9.1.1.01.01.009 Кронштей БК9.1.1.01.01.100 СБ Лестница БК9.1.1.01.01.100 Лестница БК9.1.1.01.01.101 Тетива БК9.1.1.01.01.102 Стойка БК9.1.1.01.01.103 Поручень БК9.1.1.01.01.104 Ступень БК9.1.1.01.01.200 Секция перил БК9.1.1.01.01.200 СБ Секция перил БК9.1.1.01.01.201 Стойка БК9.1.1.01.01.202 Полоса оградительная БК9.1.1.01.01.203 Поручень БК9.1.1.01.01.204 Леер БК9.1.1.01.02.000 Трубопровод БК9.1.1.01.02.002 Труба БК9.1.1.01.02.000 СБ Трубопровод БК9.1.1.01.02.001 Патрубок БК9.1.1.01.02.003 Труба БК9.1.1.01.03.000 СБ Трубопровод БК9.1.1.01.03.000 Трубопровод БК9.1.1.01.04.000 Трубопровод БК9.1.1.01.04.001 Труба БК9.1.1.01.04.000 СБ Трубопровод БК9.1.1.01.04.002 Труба БК9.1.1.01.05.000 Трубопровод БК9.1.1.01.05.000 СБ Трубопровод БК9.1.1.01.06.000 Трубопровод БК9.1.1.01.06.000 СБ Трубопровод БК9.1.1.01.07.000 Трубопровод БК9.1.1.01.07.000 СБ Трубопровод БК9.1.1.01.08.000 Трубопровод БК9.1.1.01.08.000 СБ Трубопровод БК9.1.1.01.09.000 Трубопровод БК9.1.1.01.09.000 СБ Трубопровод БК9.1.1.01.10.000 Трубопровод БК9.1.1.01.10.000 СБ Трубопровод БК9.1.1.01.10.001 Труба БК9.1.1.01.11.000 Трубопровод БК9.1.1.01.11.000 СБ Трубопровод БК9.1.1.01.12.000 Трубопровод БК9.1.1.01.13.000 Трубопровод БК9.1.1.01.12.000 СБ Трубопровод БК9.1.1.01.13.000 СБ Трубопровод БК9.1.1.01.14.000 Трубопровод БК9.1.1.01.14.000 СБ Трубопровод БК9.1.1.01.14.001 Труба БК9.1.1.01.15.000 Трубопровод БК9.1.1.01.15.000 СБ Трубопровод БК9.1.1.01.16.000 Трубопровод БК9.1.1.01.16.000 СБ Трубопровод БК6.4.1.00.001 Патрубок БК9.1.1.01.16.001 Труба БК9.1.1.01.16.002 Труба БК9.1.1.01.16.003 Труба БК9.1.1.01.16.004 Патрубок БК9.1.1.01.17.000 Трубопровод БК9.1.1.01.17.000 СБ Трубопровод БК9.1.1.01.18.000 Трубопровод БК9.1.1.01.19.000 Трубопровод БК9.1.1.01.18.000 СБ Трубопровод БК9.1.1.01.19.000 СБ Трубопровод БК9.1.1.02.00.000 Блок верхний БК9.1.1.02.00.000 СБ Блок верхний БК9.1.1.02.00.000 Блок верхний БК9.1.1.02.01.000 Бак деаэраторный БК9.1.1.02.01.001 Петля БК9.1.1.02.01.002 Накладка БК9.1.1.02.01.000 СБ Бак деаэраторный БК9.1.1.02.02.000 Помост БК9.1.1.02.02.000 СБ Помост БК9.1.1.02.02.009 Накладка БК9.1.1.02.02.010 Пластина БК9.1.1.02.02.001 Стойка БК9.1.1.02.02.002 Леер БК9.1.1.02.02.003 Связь БК9.1.1.02.02.004 Стойка БК9.1.1.02.02.005 Поручень БК9.1.1.02.02.006 Стойка БК9.1.1.02.02.007 Поручень БК9.1.1.02.02.008 Настил БК9.1.1.02.02.100 Лестница БК9.1.1.02.02.100 СБ Лестница БК9.1.1.02.03.000 Трубопровод БК9.1.1.02.03.000 СБ Трубопровод БК9.1.1.02.03.001 Труба БК9.1.1.02.04.000 Трубопровод БК9.1.1.02.04.000 СБ Трубопровод БК9.1.1.02.04.001 Труба БК9.1.1.02.05.000 Трубопровод БК9.1.1.02.05.000 СБ Трубопровод БК9.1.1.02.06.000 Трубопровод БК9.1.1.02.06.000 СБ Трубопровод БК9.1.1.02.07.000 Трубопровод БК9.1.1.02.07.000 СБ Трубопровод БК9.1.1.02.08.000 Трубопровод БК9.1.1.02.08.000 СБ Трубопровод БК9.1.1.02.08.001 Труба БК9.1.1.02.09.000 Трубопровод БК9.1.1.02.09.000 СБ Трубопровод БК9.1.1.02.10.000 Трубопровод БК9.1.1.02.10.000 СБ Трубопровод БК9.1.1.02.10.001 Труба БК9.1.1.02.11.000 Трубопровод БК9.1.1.02.11.000 СБ Трубопровод БК9.1.1.02.12.000 Трубопровод БК9.1.1.02.12.000 СБ Трубопровод БК9.1.1.02.12.001 Труба БК9.1.1.02.13.000 Трубопровод БК9.1.1.02.13.000 СБ Трубопровод БК9.1.1.02.13.000 Трубопровод БК9.1.1.02.13.001 Труба БК9.1.1.02.13.002 Труба БК9.1.1.02.14.000 Трубопровод БК9.1.1.02.14.000 СБ Трубопровод БК9.1.1.02.14.001 Труба БК9.1.1.02.14.002 Патрубок БК9.1.1.02.14.003 Патрубок БК9.1.1.02.15.000 Трубопровод БК9.1.1.02.15.000 СБ Трубопровод БК9.1.1.02.16.000 Трубопровод БК9.1.1.02.16.000 СБ Трубопровод БК9.1.1.02.17.000 Трубопровод БК9.1.1.02.17.000 СБ Трубопровод БК9.1.1.02.18.000 Трубопровод БК9.1.1.02.18.000 СБ Трубопровод БК9.1.1.02.19.000 Ограждение БК9.1.1.02.19.000 СБ Ограждение БК9.1.1.02.19.001 Стойка БК9.1.1.02.19.002 Поручень БК9.1.1.02.19.003 Леер БК9.1.1.03.00.000 Гидрозатвор БК9.1.1.03.00.001 Патрубок БК9.1.1.03.01.000 Трубопровод БК9.1.1.03.00.000 СБ Гидрозатвор БК9.1.1.03.01.000 СБ Трубопровод БК9.1.1.03.01.001 Труба БК9.1.1.03.02.000 СБ Трубопровод БК9.1.1.03.02.000 Трубопровод БК9.1.1.03.03.000 Колено БК9.1.1.03.03.000 СБ Колено БК9.1.1.03.03.001 Патрубок БК9.1.1.04.00.000 СБ Трубопровод БК9.1.1.04.00.000 Трубопровод БК9.1.1.05.00.000 Трубопровод дренажный БК9.1.1.05.00.000 СБ Трубопровод дренажный БК9.1.1.05.00.001 Патрубок БК9.1.1.05.00.002 Труба БК9.1.1.05.00.003 Труба БК9.1.1.06.00.00 Опора БК9.1.1.06.00.00 СБ Опора |
| Разработан: | Латгипропром |
| Утверждён: | 14.02.1990 ММСС СССР |
| Расположен в: |





































































