| ||||||||||||||||||||||||||
Скачать Серия 5.903-15 Выпуск 4-8. Блок насосов подпитки БПН-3х320-50. Рабочие чертежиДата актуализации: 10.08.2017
|
| Обозначение: | Серия 5.903-15 |
| Обозначение англ: | Series 5.903-15 |
| Статус: | не определен законодательством |
| Название рус.: | Выпуск 4-8. Блок насосов подпитки БПН-3х320-50. Рабочие чертежи |
| Дата добавления в базу: | 01.09.2013 |
| Дата актуализации: | 05.05.2017 |
| Дата введения: | 01.03.1990 |
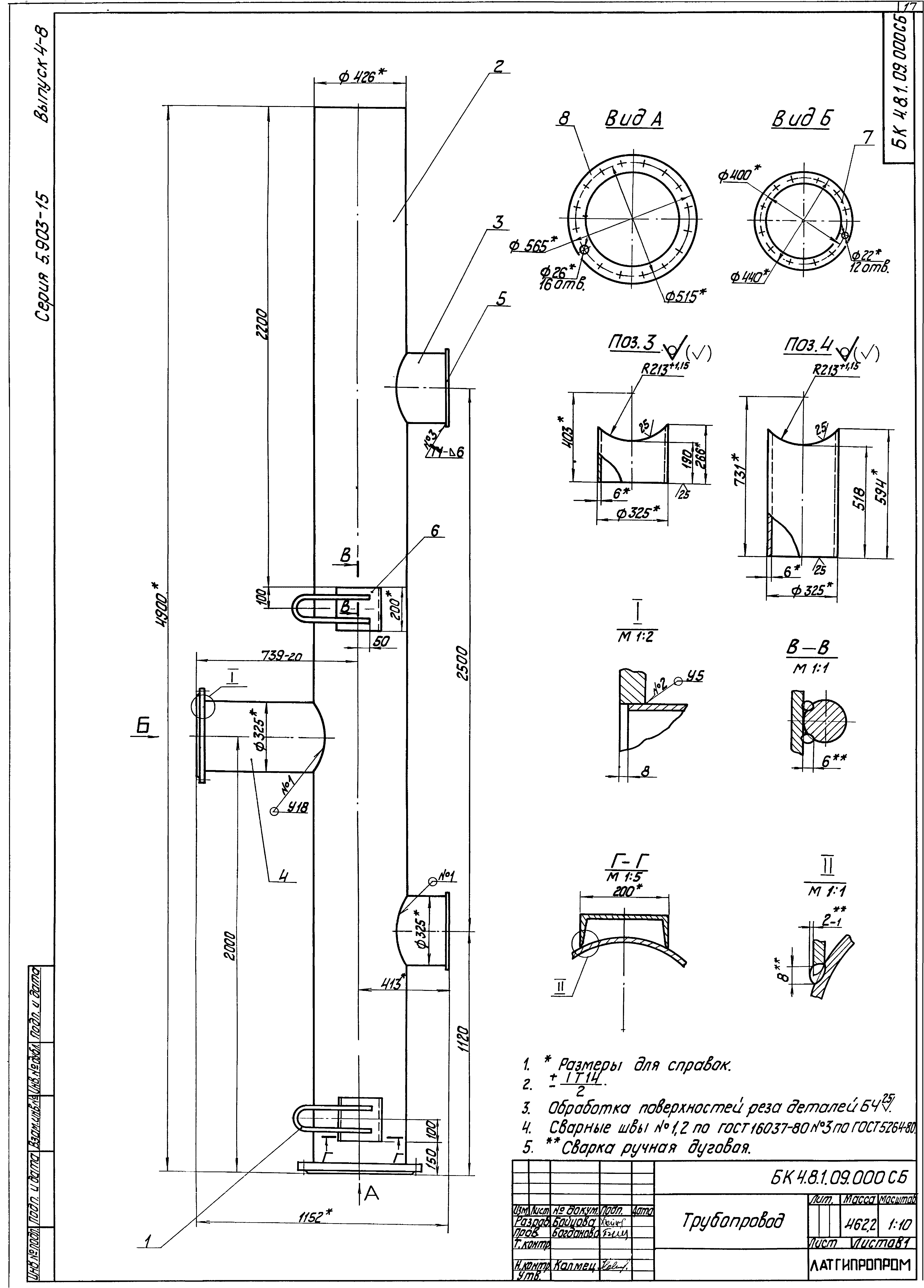
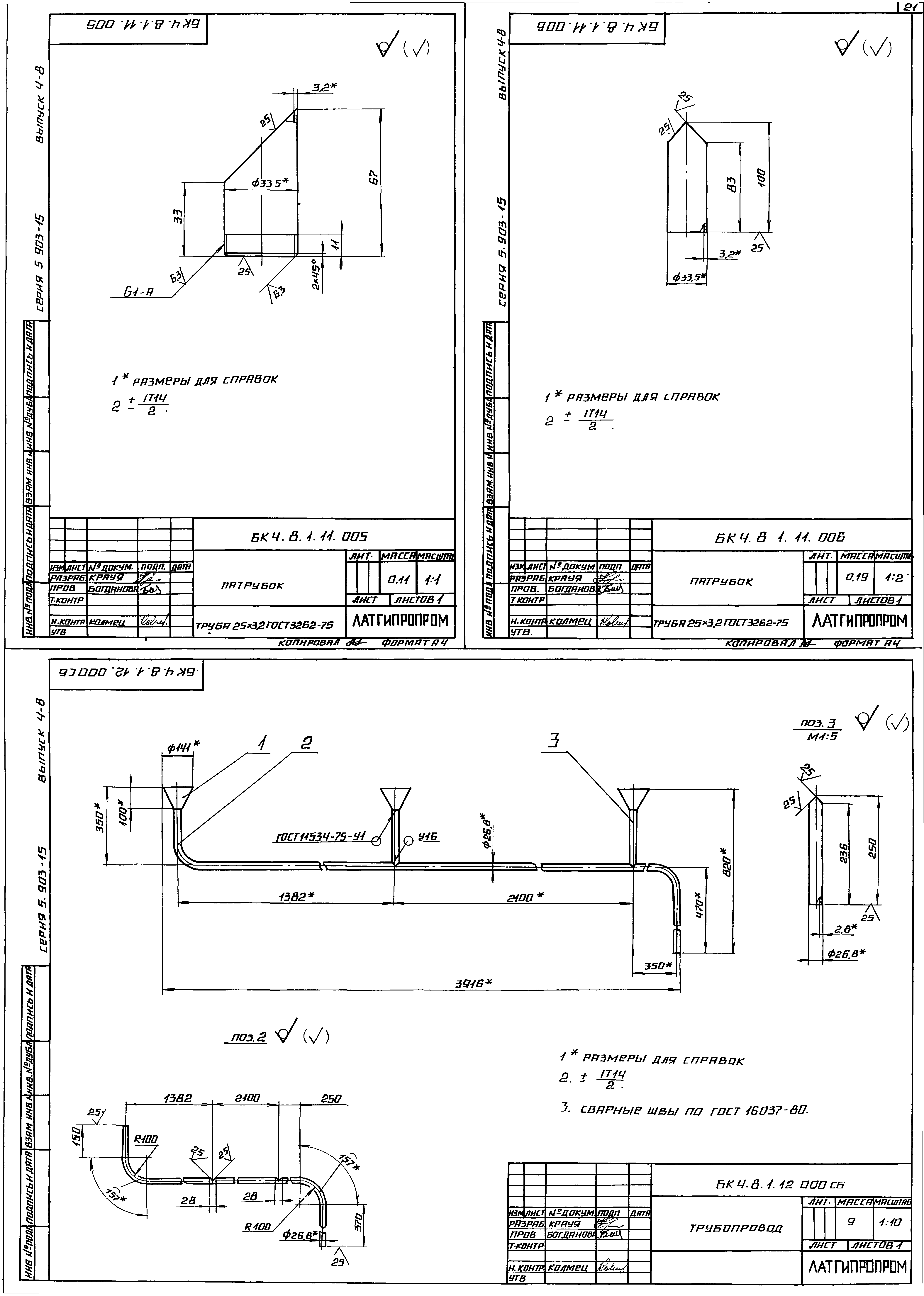
| Оглавление: | БК4.8.1.00.000 Блок БПН-3х320-50 БК4.8.1.00.000 СБ Блок БПН-3х320-50 БК4.8.1.00.000 ГЗ Блок БПН-3х320-50. Схема принципиальная БК2.1.1.00.001 Скоба БК4.8.1.00.001 Балка БК4.8.1.00.002 Хомут БК4.8.1.00.003 Хомут БК4.8.1.00.004 Скоба БК4.8.1.01.000 Трубопровод БК4.8.1.01.001 Петля БК4.8.1.01.002 Труба БК4.8.1.02.000 Трубопровод БК4.8.1.01.000 Трубопровод БК4.8.1.02.000 Трубопровод БК4.8.1.02.001 Труба БК4.8.1.03.000 Трубопровод БК4.8.1.02.000 СБ Трубопровод БК4.8.1.03.000 СБ Трубопровод БК4.8.1.04.000 Трубопровод БК4.8.1.04.000 СБ Трубопровод БК4.8.1.04.001 Труба БК4.8.1.05.000 Трубопровод БК4.8.1.05.000 СБ Трубопровод БК4.8.1.05.001 Труба БК4.8.1.06.000 Трубопровод БК4.8.1.06.000 СБ Трубопровод БК4.8.1.06.000 Трубопровод БК4.8.1.06.001 Труба БК4.8.1.07.000 Колено БК4.8.1.07.000 СБ Колено БК4.8.1.07.000 Колено БК4.8.1.07.000 СБ Колено БК4.8.1.09.000 Трубопровод БК4.8.1.09.000 СБ Трубопровод БК4.8.1.09.001 Труба БК4.8.1.10.000 Трубопровод БК4.8.1.10.000 СБ Трубопровод БК2.8.1.07.003 Воронка БК4.8.1.11.000 Трубопровод БК4.8.1.11.000 СБ Трубопровод БК4.8.1.11.001 Труба БК4.8.1.11.002 Труба БК4.8.1.11.003 Патрубок БК4.8.1.11.004 Патрубок БК4.8.1.11.005 Патрубок БК4.8.1.11.006 Патрубок БК4.8.1.12.000 СБ Трубопровод БК4.8.1.12.000 Трубопровод БК4.8.1.13.000 Трубопровод БК4.8.1.13.000 СБ Трубопровод БК4.8.1.13.001 Труба БК4.8.1.14.000 Трубопровод БК4.8.1.14.000 СБ Трубопровод БК4.8.1.14.001 Патрубок БК4.8.1.14.002 Труба БК4.8.1.15.000 Трубопровод БК4.8.1.15.000 СБ Трубопровод БК4.8.1.15.001 Труба БК4.8.1.16.000 Колено БК4.8.1.16.000 СБ Колено БК4.8.1.17.000 Кронштейн БК4.8.1.17.000 СБ Кронштейн БК4.8.1.17.001 Косынка БК4.8.1.18.000 Трубопровод БК4.8.1.18.000 СБ Трубопровод БК4.8.1.18.001 Труба БК4.8.2.00.000 Блок БПН-3х320-50. Установка приборов контроля и автоматики БК4.8.2.00.001 Стенка БК4.8.2.00.000 СБ Блок БПН-3х320-50. Установка приборов контроля и автоматики БК4.8.2.00.000 Э3 Блок БПН-3х320-50. Схема электрическая принципиальная регулятора БК4.8.2.00.000 Э4 Блок БПН-3х320-50. Схема соединений БК4.8.2.00.000 СО Блок БПН-3х320-50. Схема автоматизации БК4.8.2.01.002 Труба БК4.8.2.01.000 Стойка БК4.8.2.01.000 СБ Стойка БК4.8.2.01.000 Стойка БК4.8.2.02.000 Стойка БК4.8.2.03.000 Полка БК4.8.2.03.000 СБ Полка БК4.8.2.04.000 Полка БК4.8.2.04.000 СБ Полка БК4.8.3.00.000 Блок БПН-3х320-50. Установка электрооборудования БК4.8.3.00.000 СБ Блок БПН-3х320-50. Установка электрооборудования БК4.8.3.00.000 Э5 Блок БПН-3х320-50. Схема электрическая подключений задвижки БК4.8.3.00.000 Э3 Блок БПН-3х320-50. Схема электрическая принципиальная управления БК4.8.3.00.000 Блок БПН-3х320-50. Установка электрооборудования БК4.8.3.01.000 Кронштейн БК4.8.3.01.000 СБ Кронштейн БК4.8.3.01.000 Кронштейн БК4.8.4.00.000 ТИ Блок БПН-3х320-50. Ведомость теплоизоляционных конструкций БК4.8.4.00.000 ВМ Блок БПН-3х320-50. Ведомость теплоизоляционных материалов БК4.8.4.00.000 ВО Блок БПН-3х320-50. Ведомость объемов теплоизоляционных работ |
| Разработан: | Латгипропром |
| Утверждён: | 14.02.1990 ММСС СССР |
| Расположен в: |









































