| ||||||||||||||||||||||||||
Скачать Серия 5.903-15 Выпуск 4-5. Блок насосов подпитки БПН-2х90-35. Рабочие чертежиДата актуализации: 10.08.2017
|
| Обозначение: | Серия 5.903-15 |
| Обозначение англ: | Series 5.903-15 |
| Статус: | не определен законодательством |
| Название рус.: | Выпуск 4-5. Блок насосов подпитки БПН-2х90-35. Рабочие чертежи |
| Дата добавления в базу: | 01.09.2013 |
| Дата актуализации: | 05.05.2017 |
| Дата введения: | 01.03.1990 |
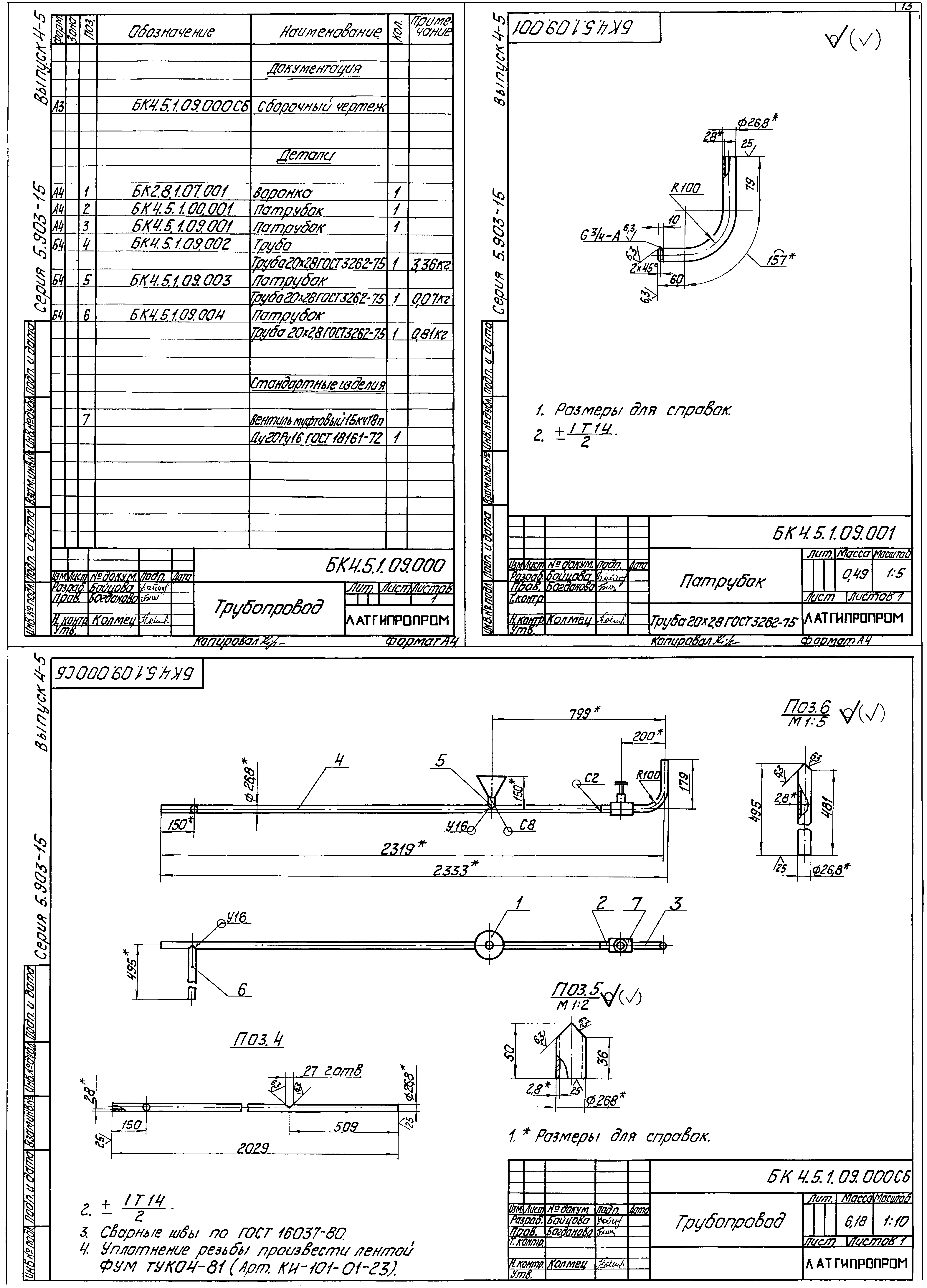
| Оглавление: | БК4.5.1.00.000 Блок БПН-2х90-35 БК4.5.1.00.001 Патрубок БК4.5.1.00.000 СБ Блок БПН-2х90-35 БК4.5.1.00.000 ГЗ Блок БПН-2х90-35. Схема принципиальная БК2.1.1.00.001 Скоба БК4.5.1.01.000 Рама БК4.5.1.01.000 СБ Рама БК4.5.1.01.000 Рама БК2.2.1.01.001 Петля БК4.5.1.02.000 Тройник БК4.5.1.02.001 Патрубок БК4.5.1.02.000 СБ Тройник БК4.5.1.03.000 Труба БК4.5.1.03.000 СБ Труба БК4.5.1.04.000 Труба БК4.5.1.04.000 СБ Труба БК4.5.1.05.000 Колено БК4.5.1.05.000 СБ Колено БК4.5.1.06.000 СБ Труба БК4.5.1.06.000 Труба БК4.5.1.07.000 Труба БК4.5.1.07.000 СБ Труба БК4.5.1.08.000 Трубопровод БК4.5.1.08.000 СБ Трубопровод БК4.5.1.08.001 Патрубок БК4.5.1.08.002 Патрубок БК2.8.1.07.003 Воронка БК4.5.1.09.000 Трубопровод БК4.5.1.09.001 Патрубок БК4.5.1.09.000 СБ Трубопровод БК4.5.1.10.000 СБ Трубопровод БК4.5.1.10.000 Трубопровод БК4.5.1.11.000 СБ Трубопровод БК4.5.1.11.000 Трубопровод БК4.5.2.00.000 Блок БПН-2х90-35. Установка приборов контроля и автоматики БК4.5.2.00.000 СБ Блок БПН-2х90-35. Установка приборов контроля и автоматики БК4.5.2.00.000 СО Блок БПН-2х90-35. Схема автоматизации БК4.5.2.00.000 Э3 Блок БПН-2х90-35. Схема электрическая принципиальная регулятора БК4.5.2.00.000 Э4 Блок БПН-2х90-35. Схема соединений БК4.5.2.00.001 Труба БК4.5.2.00.002 Труба БК4.5.2.01.000 Стойка БК4.5.2.01.000 СБ Стойка БК4.5.2.01.001 Стенка БК4.5.2.01.002 Стенка БК4.5.2.01.003 Стенка БК4.5.2.01.004 Стенка БК4.5.2.01.005 Пластина БК4.5.2.01.006 Пластина БК4.5.3.00.000 Блок БПН-2х90-35. Установка электрооборудования БК4.5.3.00.000 СБ Блок БПН-2х90-35. Установка электрооборудования БК4.5.4.00.000 ТИ Блок БПН-2х90-35. Ведомость теплоизоляционных конструкций БК4.5.4.00.000 ВМ Блок БПН-2х90-35. Ведомость теплоизоляционных материалов БК4.5.4.00.000 ВО Блок БПН-2х90-35. Ведомость объемов теплоизоляционных работ |
| Разработан: | Латгипропром |
| Утверждён: | 14.02.1990 ММСС СССР |
| Расположен в: |

























