| ||||||||||||||||||||||||||
Скачать Серия 5.904-26 Выпуск 3. Бункеры и затворы. Рабочие чертежиДата актуализации: 10.08.2017
|
| Обозначение: | Серия 5.904-26 |
| Обозначение англ: | Series 5.904-26 |
| Статус: | не определен законодательством |
| Название рус.: | Выпуск 3. Бункеры и затворы. Рабочие чертежи |
| Дата добавления в базу: | 01.09.2013 |
| Дата актуализации: | 05.05.2017 |
| Дата введения: | 10.02.1986 |
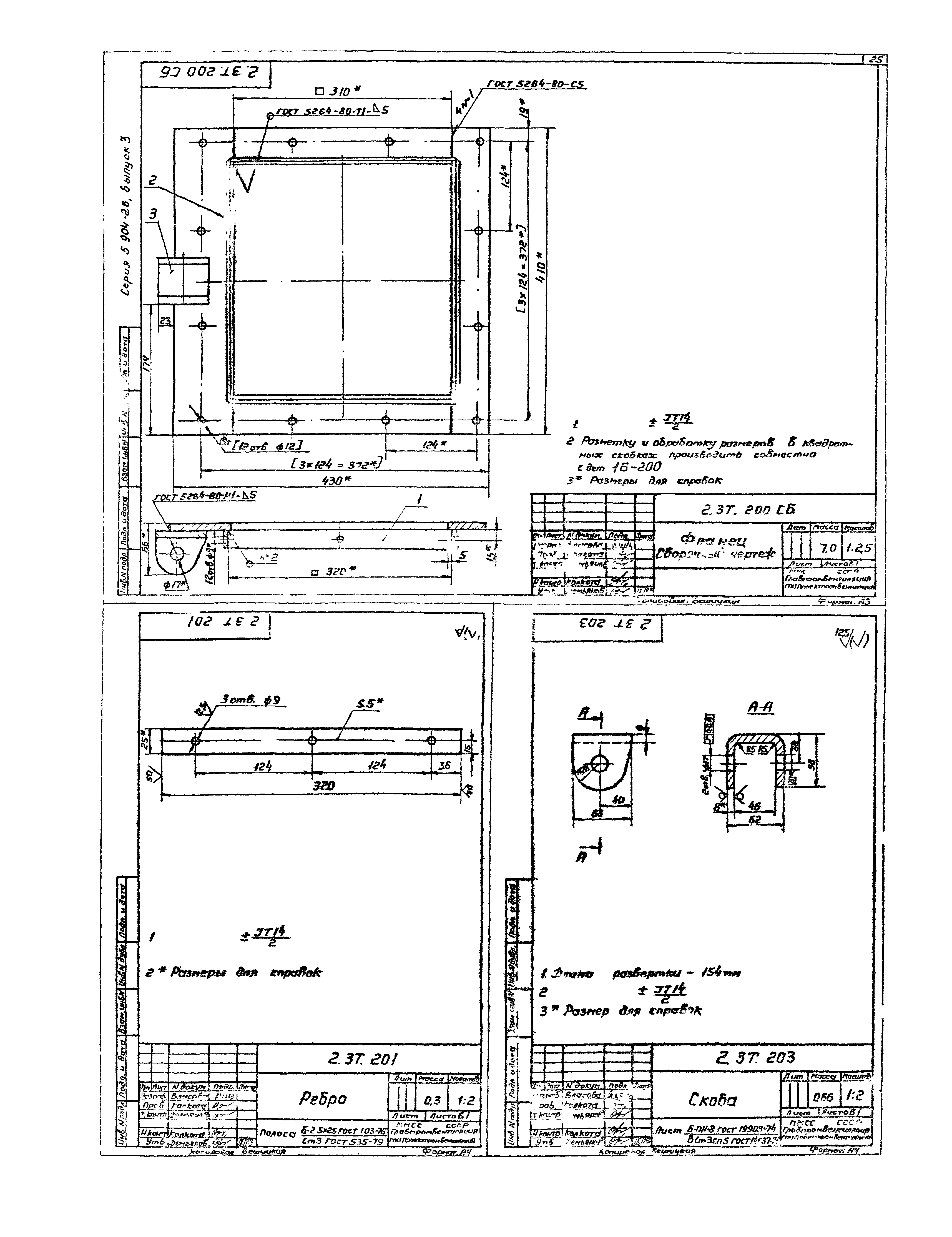
| Оглавление: | БЦН11-ТО1 Техническое описание БЦН11-Д1 Технические требования 1Б Бункер. Спецификация 1Б СБ Бункер. Сборочный чертеж 1Б 100 Крышка. Спецификация 1Б 100 СБ Крышка. Сборочный чертеж 1Б 101 Ручка. Деталь 1Б 102 Полотно. Деталь 1Б 200 Фланец. Спецификация 1Б.300 Корпус. Спецификация 1Б.300 СБ Корпус. Сборочный чертеж 1Б.303 Стенка. Деталь 1Б.304 Стенка. Деталь 1Б.305 Связь. Деталь 1Б.312 Жесткость. Деталь 1Б.313 Ребро. Деталь 1КБ Крышка бункера. Спецификация 1КБ СБ Крышка бункера. Сборочный чертеж 1КБ 001 Полотно. Деталь 2КБ Крышка бункера. Спецификация 2КБ СБ Крышка бункера. Сборочный чертеж 2КБ 001 Полотно. Деталь 1.ЗТ Затвор. Спецификация 1.ЗТ СБ Затвор. Сборочный чертеж 1.ЗТ.100 Клапан затвора. Спецификация 1.ЗТ.100 СБ Клапан затвора. Сборочный чертеж 1.ЗТ.200 Переход. Спецификация 1.ЗТ.200 СБ Переход. Сборочный чертеж 1.ЗТ.500 Фланец. Спецификация 1.ЗТ.201 Стенка. Деталь 1.ЗТ.202 Скоба. Деталь 1.ЗТ.203 Планка. Деталь 1.ЗТ.204 Планка. Деталь 1.ЗТ.300 Клапан. Спецификация 1.ЗТ.301 Скоба. Деталь 1.ЗТ.400 Рычаг. Спецификация 1.ЗТ.400 СБ Рычаг. Сборочный чертеж 1.ЗТ.401 Ушко. Деталь 1.ЗТ.101 Противовес. Деталь 1.ЗТ.102 Планка. Деталь 1.ЗТ.600 Блок. Спецификация 1.ЗТ.600 СБ Блок. Сборочный чертеж 1.ЗТ.700 Опора. Спецификация 1.ЗТ.601 Блок. Деталь 1.ЗТ.602 Ось. Деталь 2.ЗТ Затвор. Спецификация 2.ЗТ СБ Затвор. Сборочный чертеж 2.ЗТ.100 Клапан затвора. Спецификация 2.ЗТ.100 СБ Клапан затвора. Сборочный чертеж 2.ЗТ.200 Фланец. Спецификация 2.ЗТ.200 СБ Фланец. Сборочный чертеж 2.ЗТ.201 Ребро. Деталь 2.ЗТ.202 Ребро. Деталь 2.ЗТ.203 Скоба. Деталь 2.ЗТ.300 Клапан. Спецификация 2.ЗТ.301 Скоба. Деталь 2.ЗТ.400 Рычаг. Спецификация 2.ЗТ.400 СБ Рычаг. Сборочный чертеж 2.ЗТ.401 Тяга. Деталь 2.ЗТ.402 Тяга. Деталь 2.ЗТ.403 Ушко. Деталь 2.ЗТ.101 Противовес. Деталь 2.ЗТ.102 Планка. Деталь 2.ЗТ.001 Обойма. Деталь |
| Разработан: | ГПИ Проектпромвентиляция |
| Утверждён: | 20.11.1985 Госстрой СССР (Государственный комитет Совета Министров СССР по делам строительства) (USSR Gosstroy АЧ-48) |
| Расположен в: |




























