| ||||||||||||||||||||||||
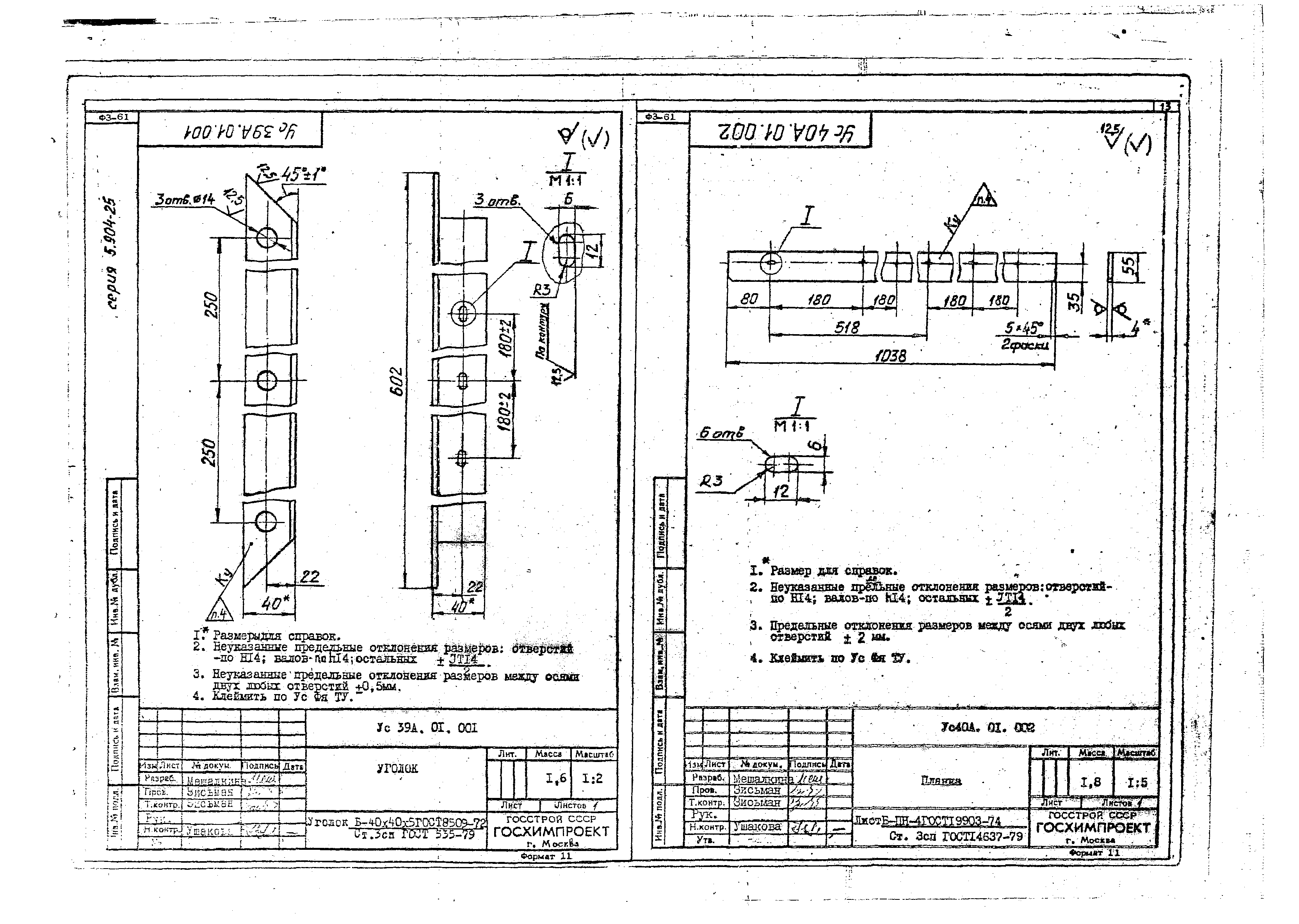
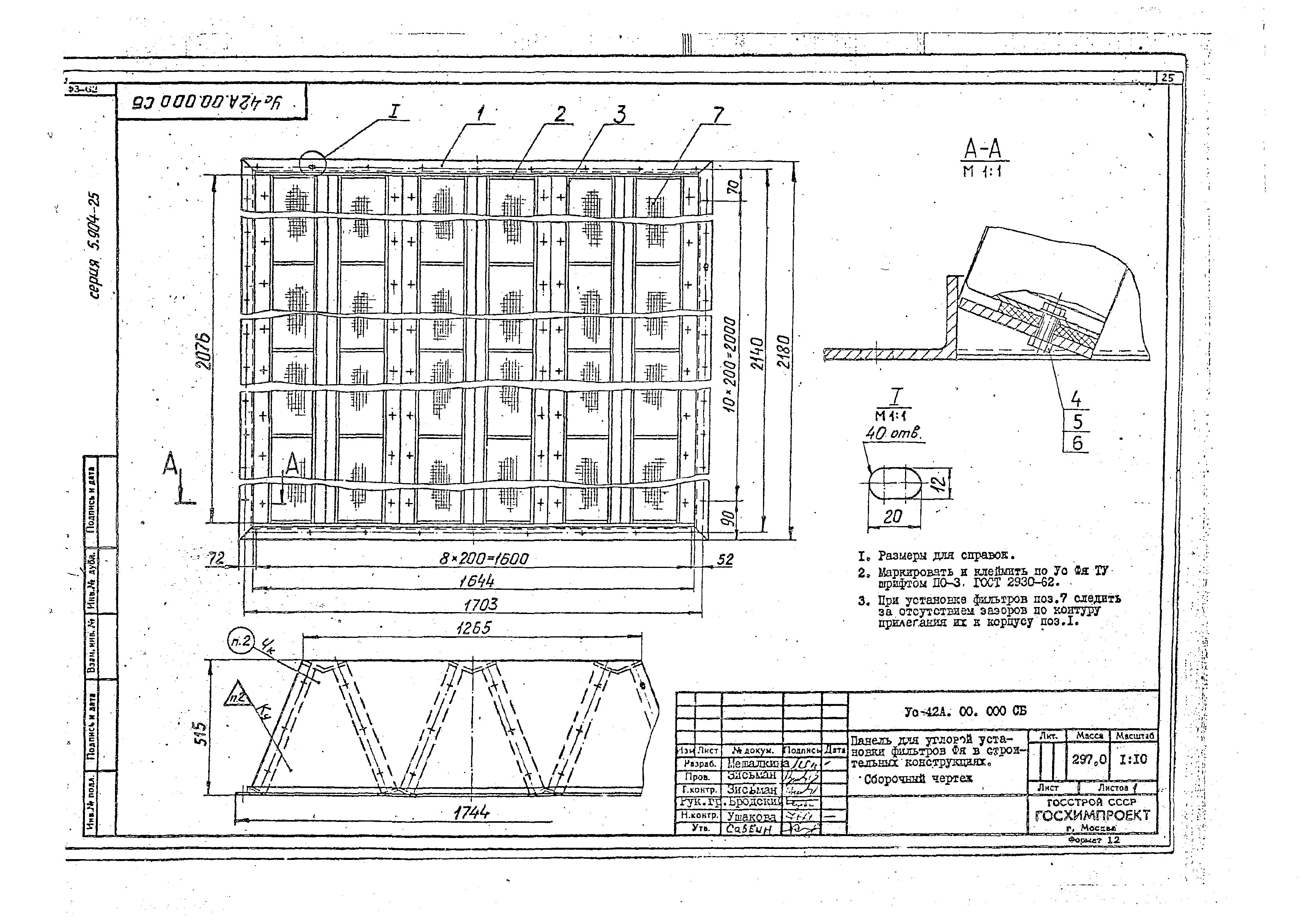
Скачать Серия 5.904-25 Выпуск 1. Рабочие чертежиДата актуализации: 10.08.2017
|
| Обозначение: | Серия 5.904-25 |
| Обозначение англ: | Series 5.904-25 |
| Статус: | не определен законодательством |
| Название рус.: | Выпуск 1. Рабочие чертежи |
| Дата добавления в базу: | 01.09.2013 |
| Дата актуализации: | 05.05.2017 |
| Дата введения: | 15.07.1986 |
| Разработан: | ЦНИИпромзданий ГПИ Госхимпроект Госстроя СССР |
| Утверждён: | 12.06.1986 Главпроект Госстроя СССР (34) |
| Расположен в: |















































