Скачать Серия 7.904-1 Выпуск 4. Строительные конструкции блок-бокса камеры 2ПК20. Рабочие чертежиДата актуализации: 10.08.2017 Серия 7.904-1
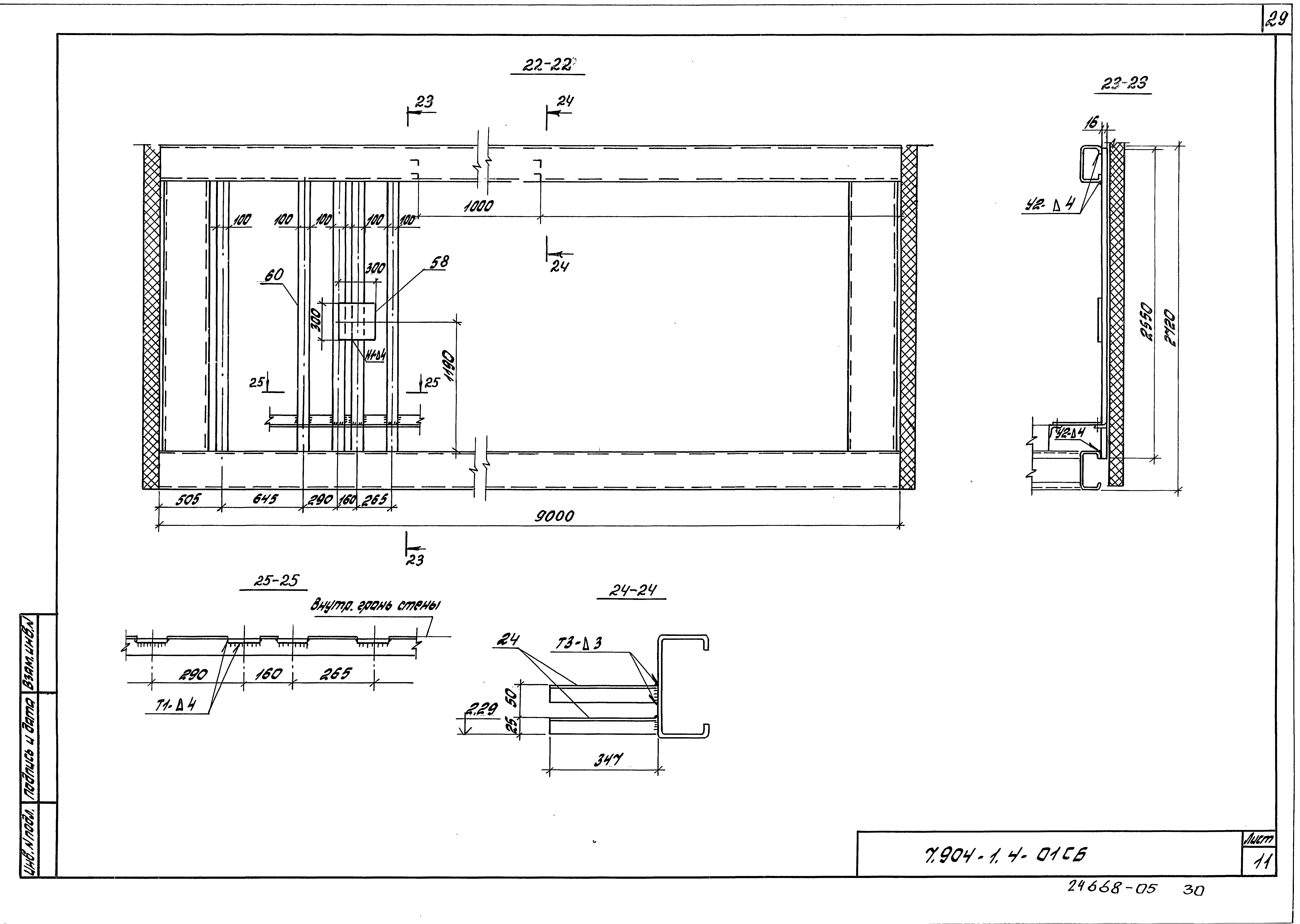
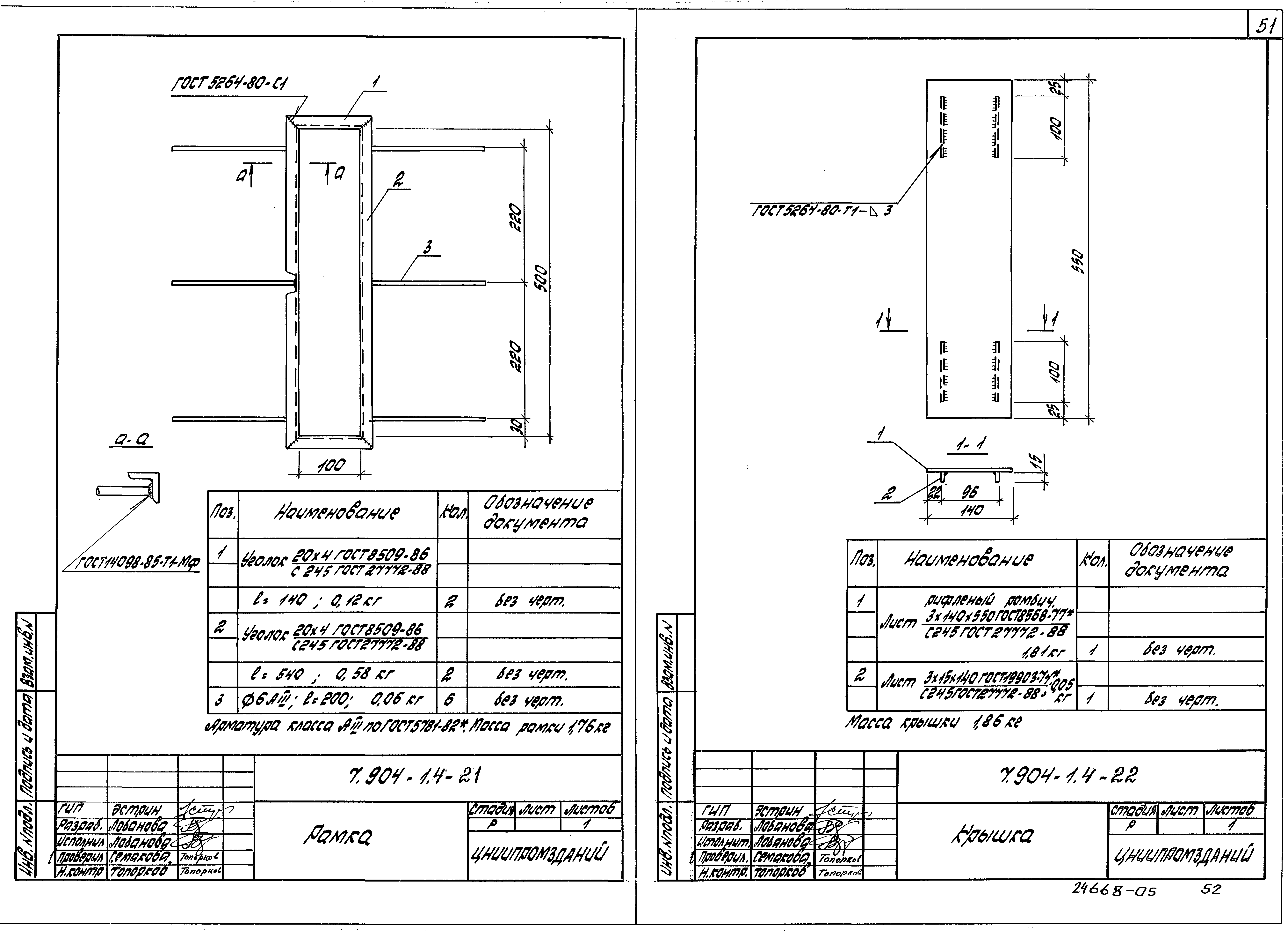
Выпуск 4. Строительные конструкции блок-бокса камеры 2ПК20. Рабочие чертежи| Обозначение: | Серия 7.904-1 | | Обозначение англ: | Series 7.904-1 | | Статус: | не определен законодательством | | Название рус.: | Выпуск 4. Строительные конструкции блок-бокса камеры 2ПК20. Рабочие чертежи | | Дата добавления в базу: | 01.09.2013 | | Дата актуализации: | 05.05.2017 | | Дата введения: | 30.04.1991 | | Разработан: | ЦНИИпромзданий
| | Утверждён: | 05.06.1989 НПО Промвентиляция (5-3)
| | Расположен в: |
|
                                                     
|