| ||||||||||||||||||||||||
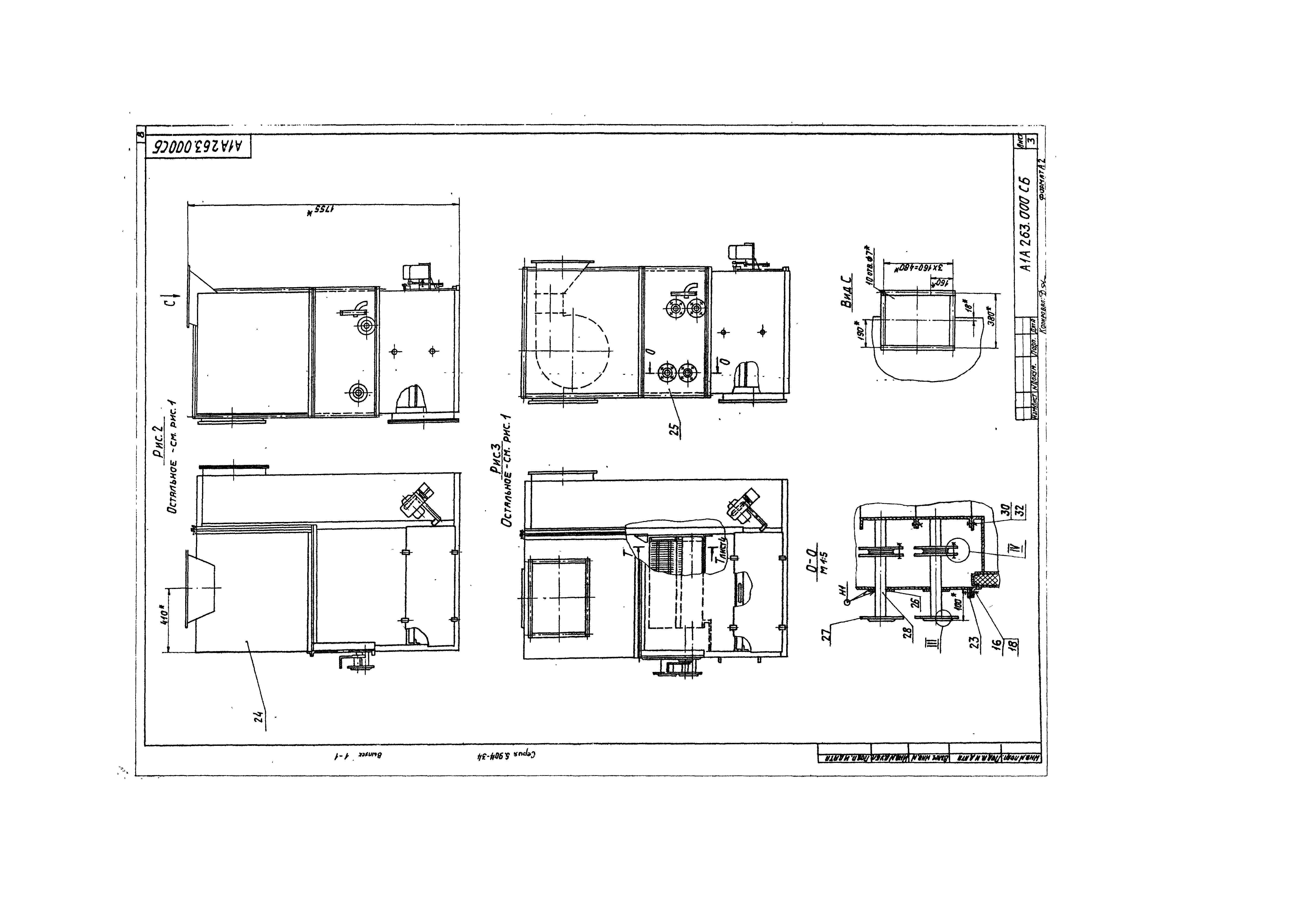
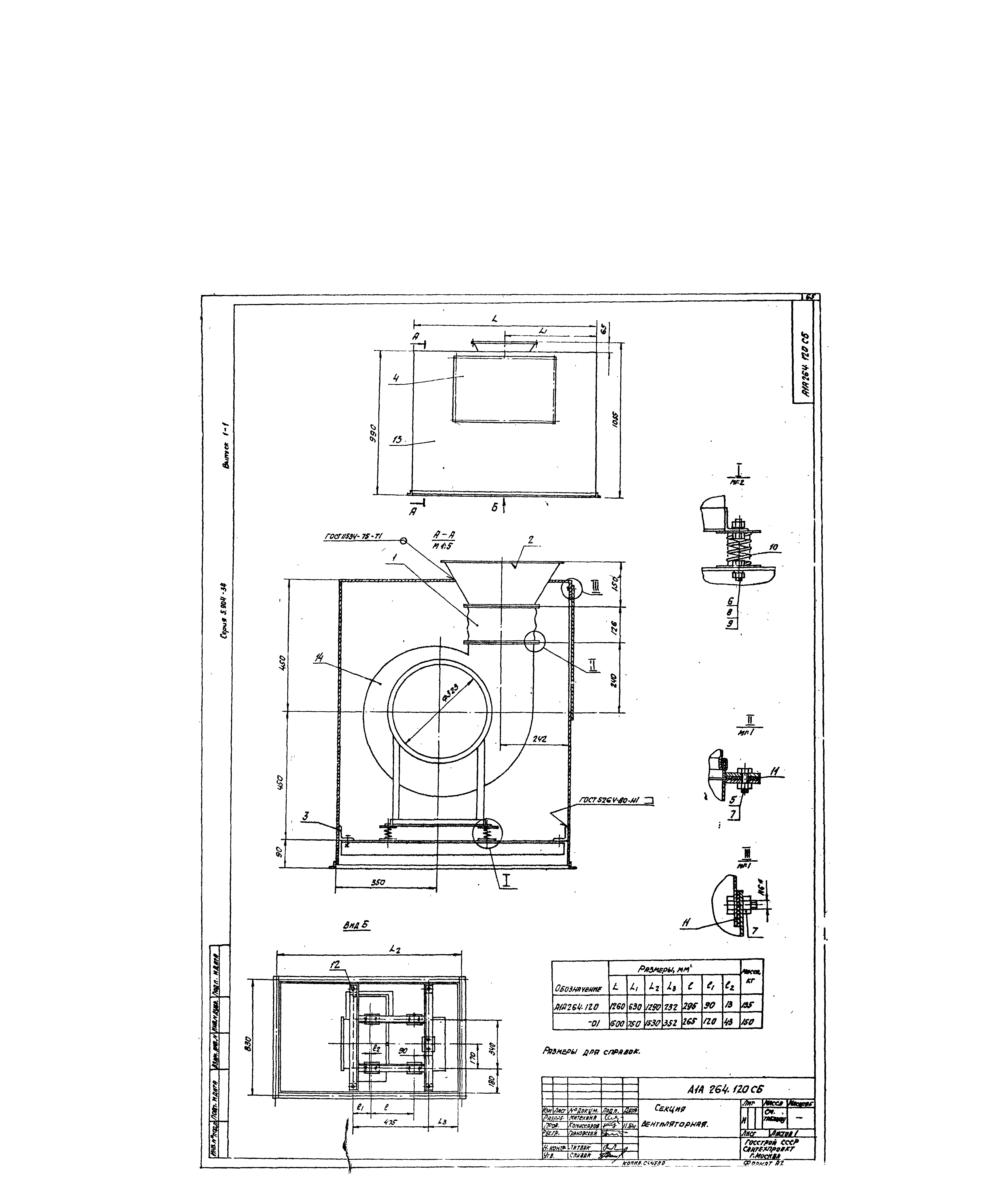
Скачать Серия 5.904-34 Выпуск 1-1. Агрегаты производительностью от 1 до 5 тыс. куб. м/ч. Рабочие чертежиДата актуализации: 10.08.2017
|
| Обозначение: | Серия 5.904-34 |
| Обозначение англ: | Series 5.904-34 |
| Статус: | не определен законодательством |
| Название рус.: | Выпуск 1-1. Агрегаты производительностью от 1 до 5 тыс. куб. м/ч. Рабочие чертежи |
| Дата добавления в базу: | 01.09.2013 |
| Дата актуализации: | 05.05.2017 |
| Дата введения: | 01.04.1986 |
| Разработан: | Сантехниипроект Госстроя России |
| Утверждён: | 29.11.1985 Госстрой СССР (Государственный комитет Совета Министров СССР по делам строительства) (USSR Gosstroy АЧ-53) |
| Расположен в: |








































































