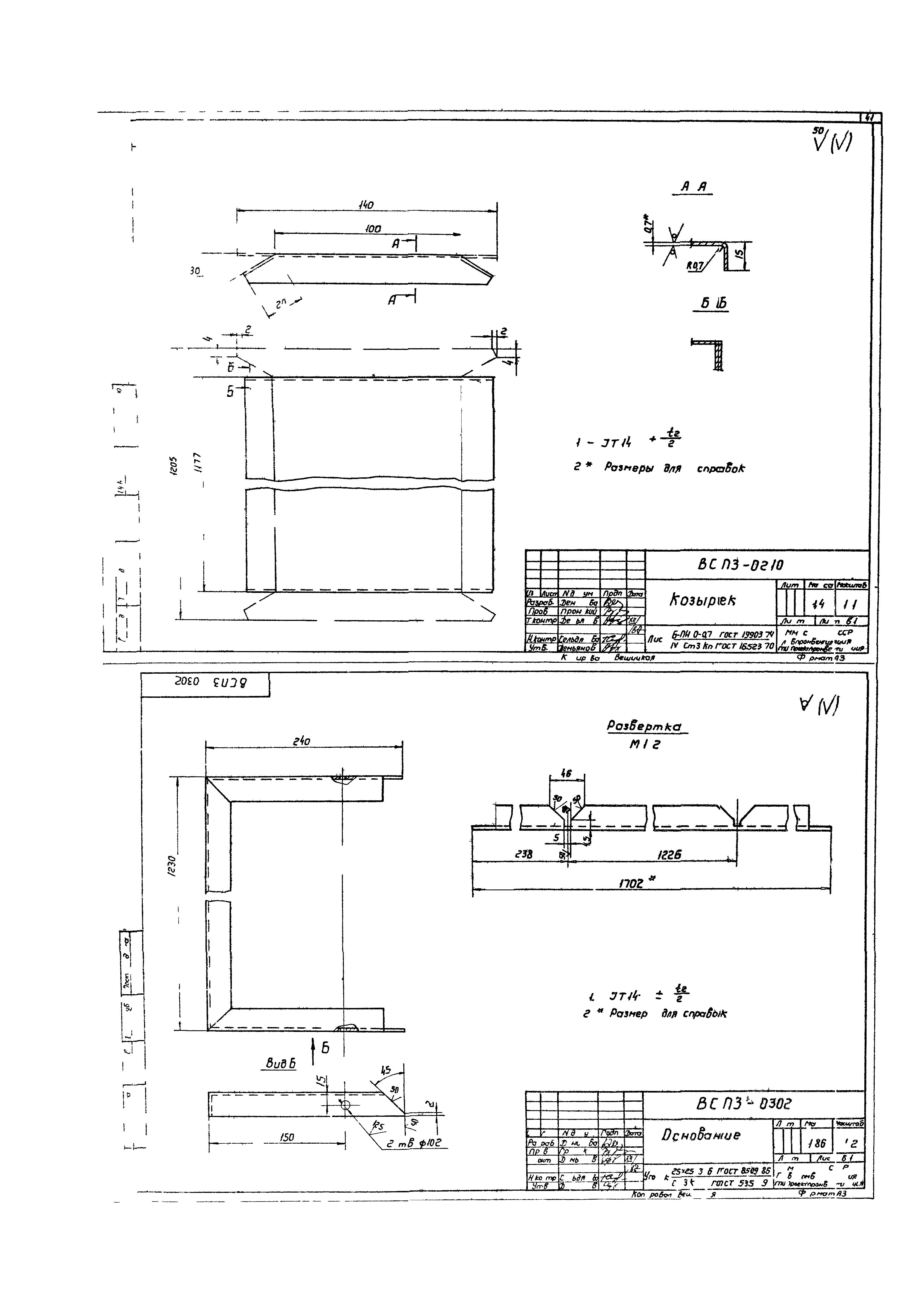
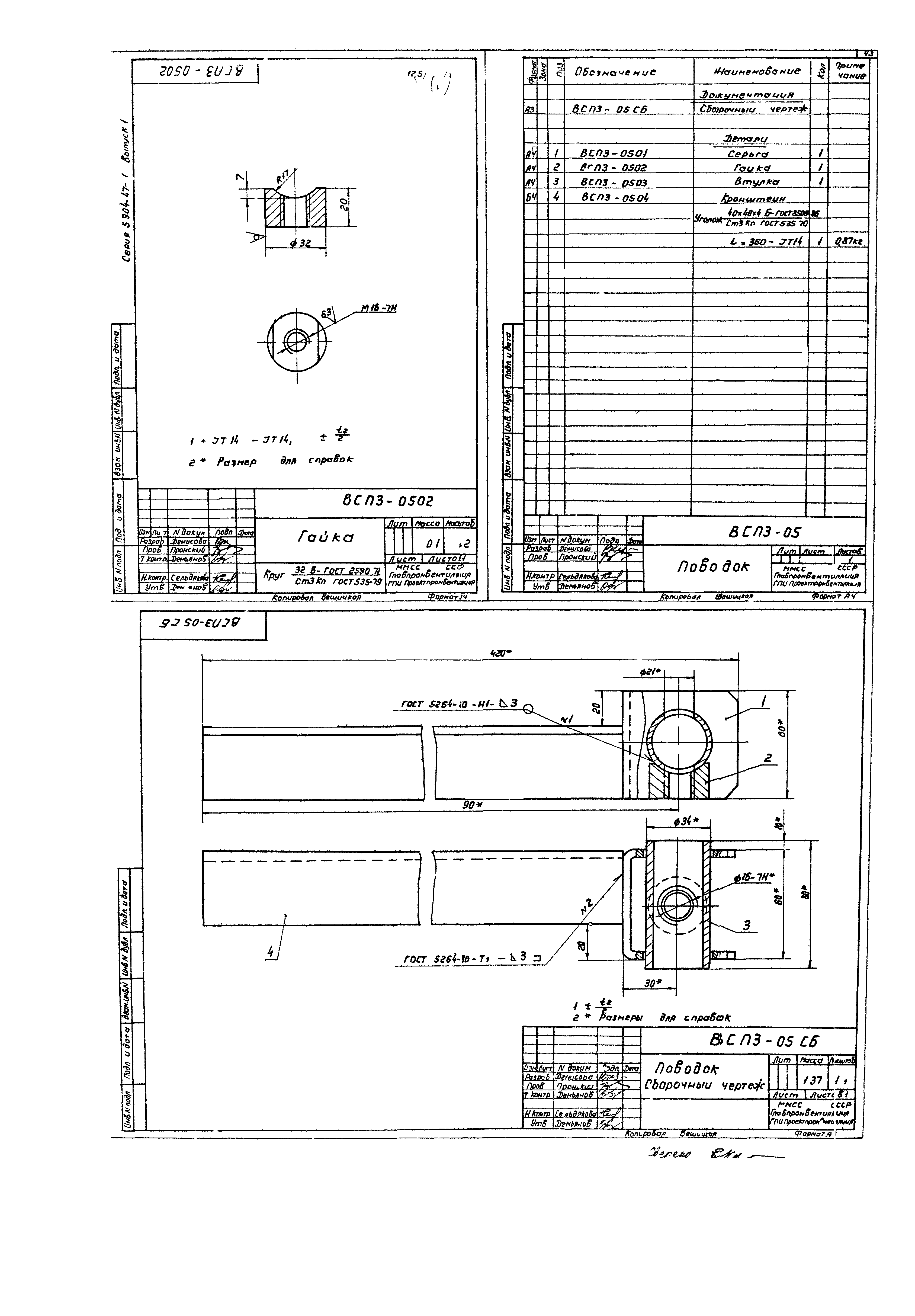
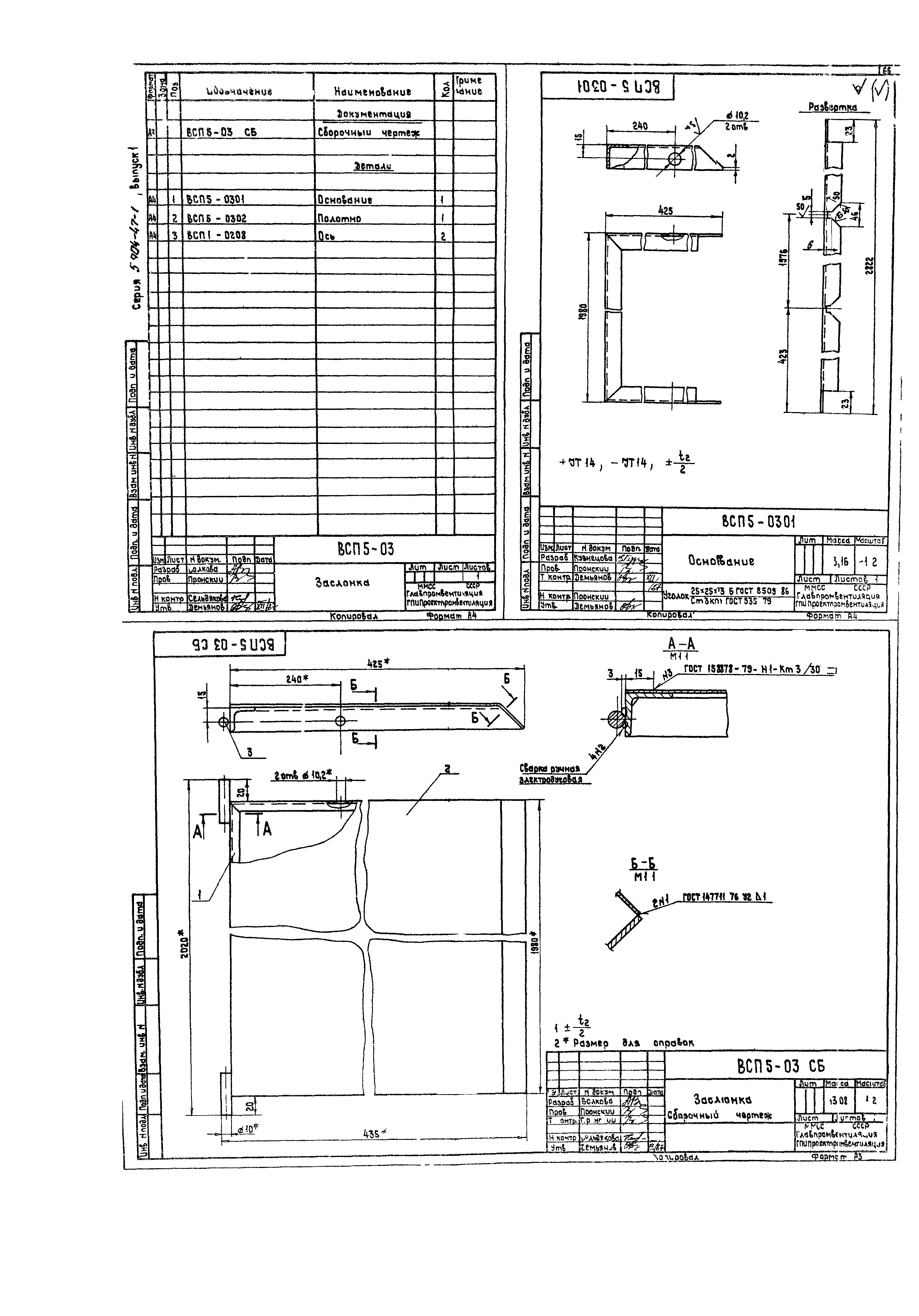
Скачать Серия 5.904-47 Выпуск 1. Рабочие чертежиДата актуализации: 10.08.2017 Серия 5.904-47
Выпуск 1. Рабочие чертежи| Обозначение: | Серия 5.904-47 | | Обозначение англ: | Series 5.904-47 | | Статус: | не определен законодательством | | Название рус.: | Выпуск 1. Рабочие чертежи | | Дата добавления в базу: | 01.09.2013 | | Дата актуализации: | 05.05.2017 | | Дата введения: | 01.11.1988 | | Разработан: | ГПИ Проектпромвентиляция
| | Утверждён: | 14.03.1988 Госстрой СССР (Государственный комитет Совета Министров СССР по делам строительства) (USSR Gosstroy 16)
| | Расположен в: |
|
                                                                    
|