| ||||||||||||||||||||||||||
Скачать Серия 1.494-37 Выпуск 1. Рабочие чертежиДата актуализации: 10.08.2017
|
| Обозначение: | Серия 1.494-37 |
| Обозначение англ: | Series 1.494-37 |
| Статус: | не определен законодательством |
| Название рус.: | Выпуск 1. Рабочие чертежи |
| Дата добавления в базу: | 01.09.2013 |
| Дата актуализации: | 05.05.2017 |
| Дата введения: | 01.02.1979 |
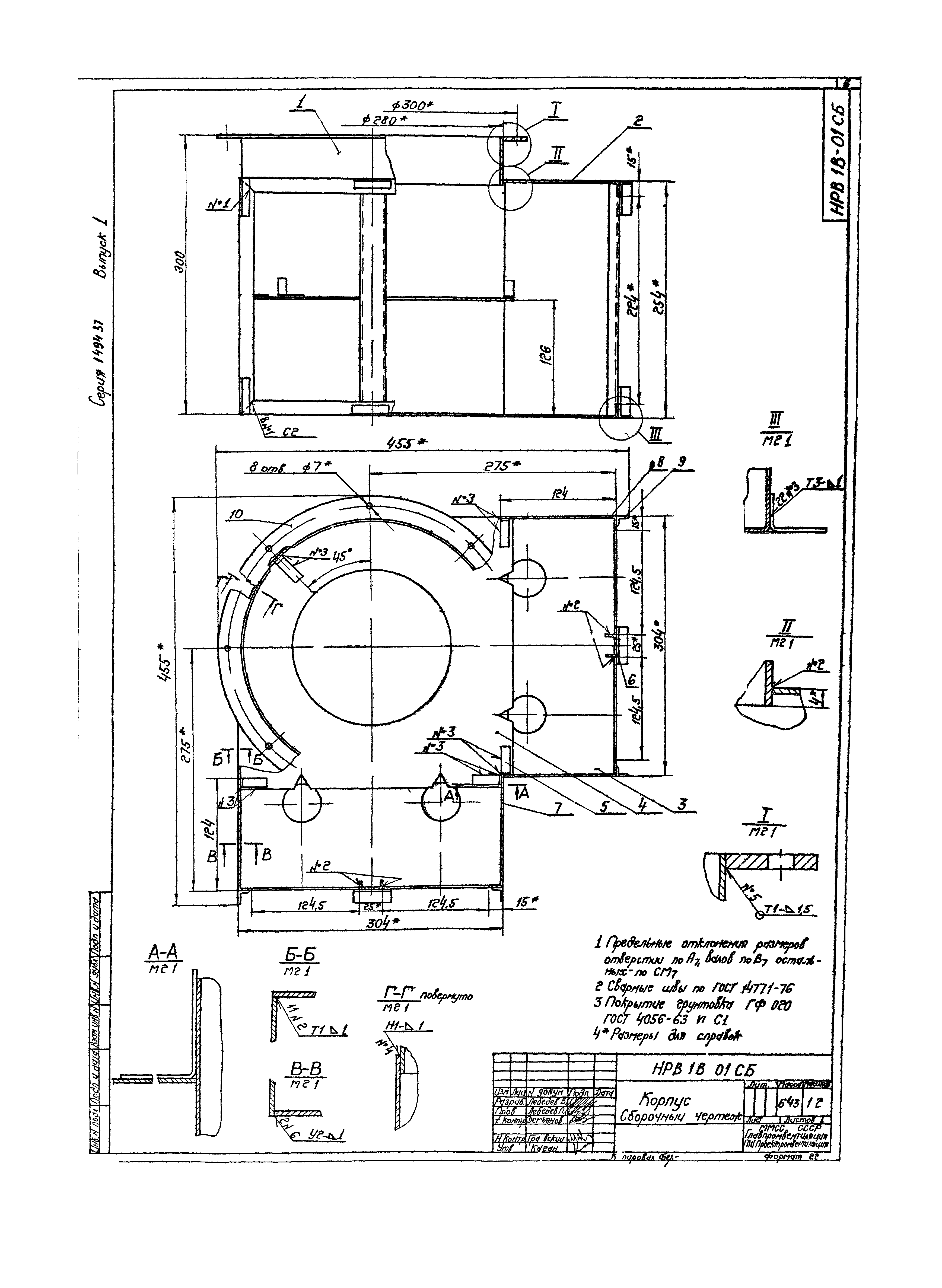
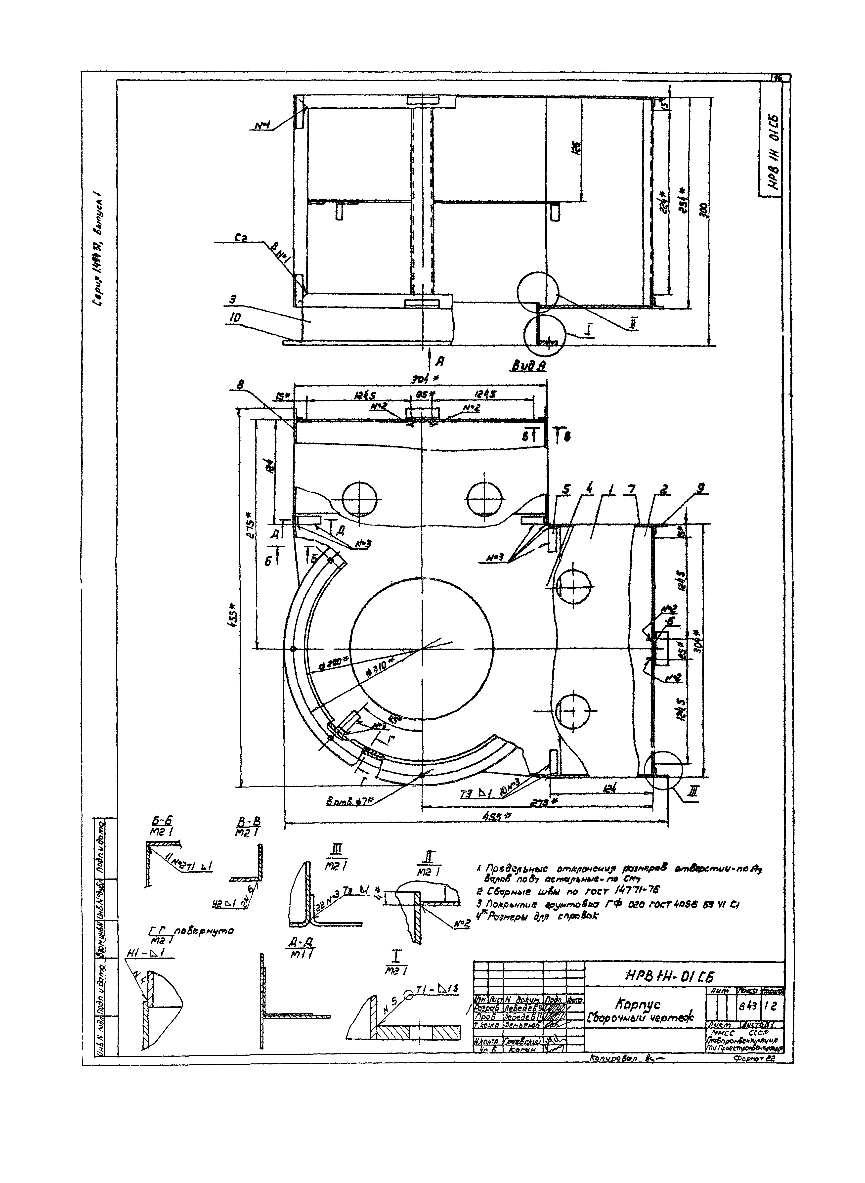
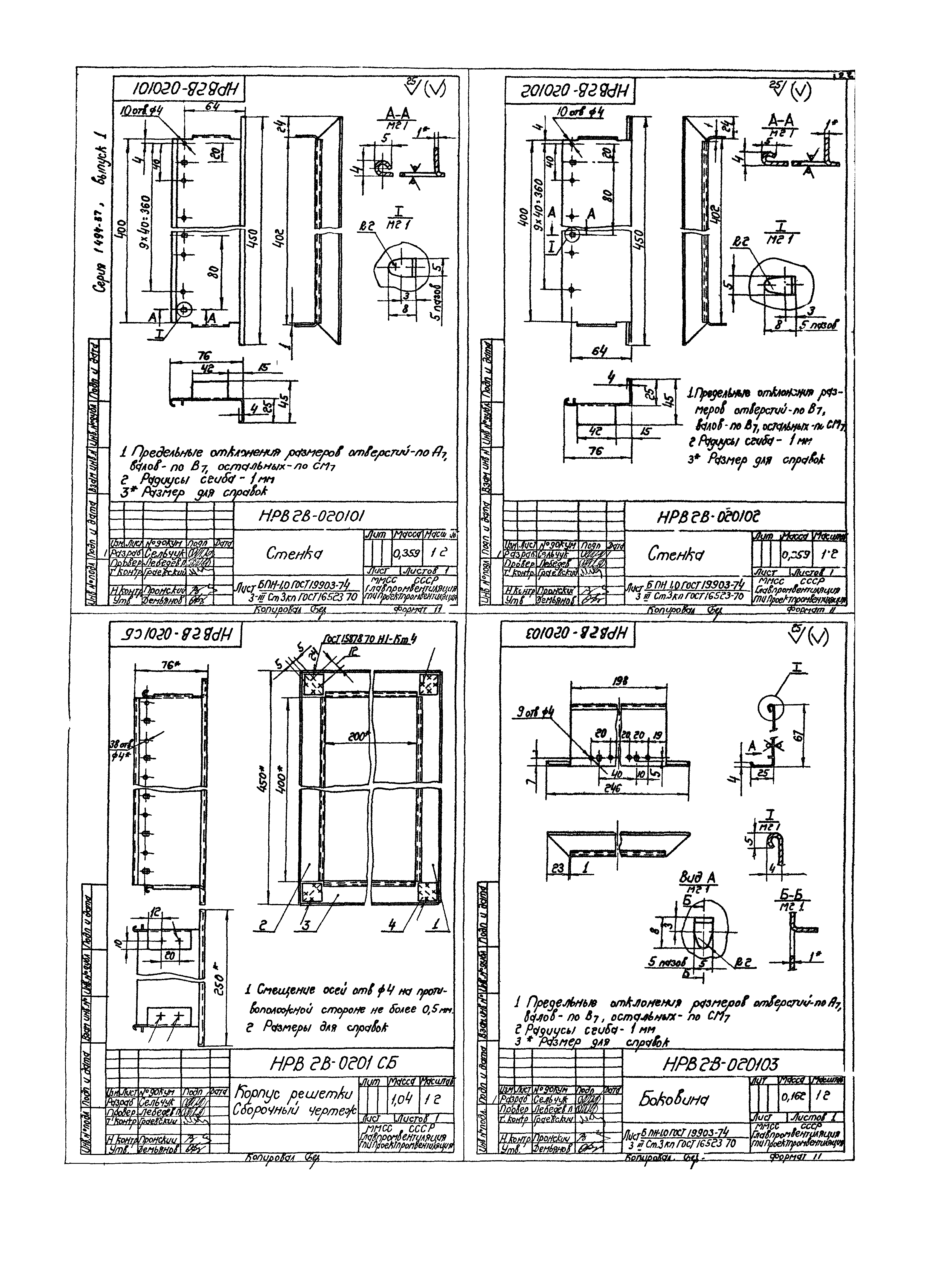
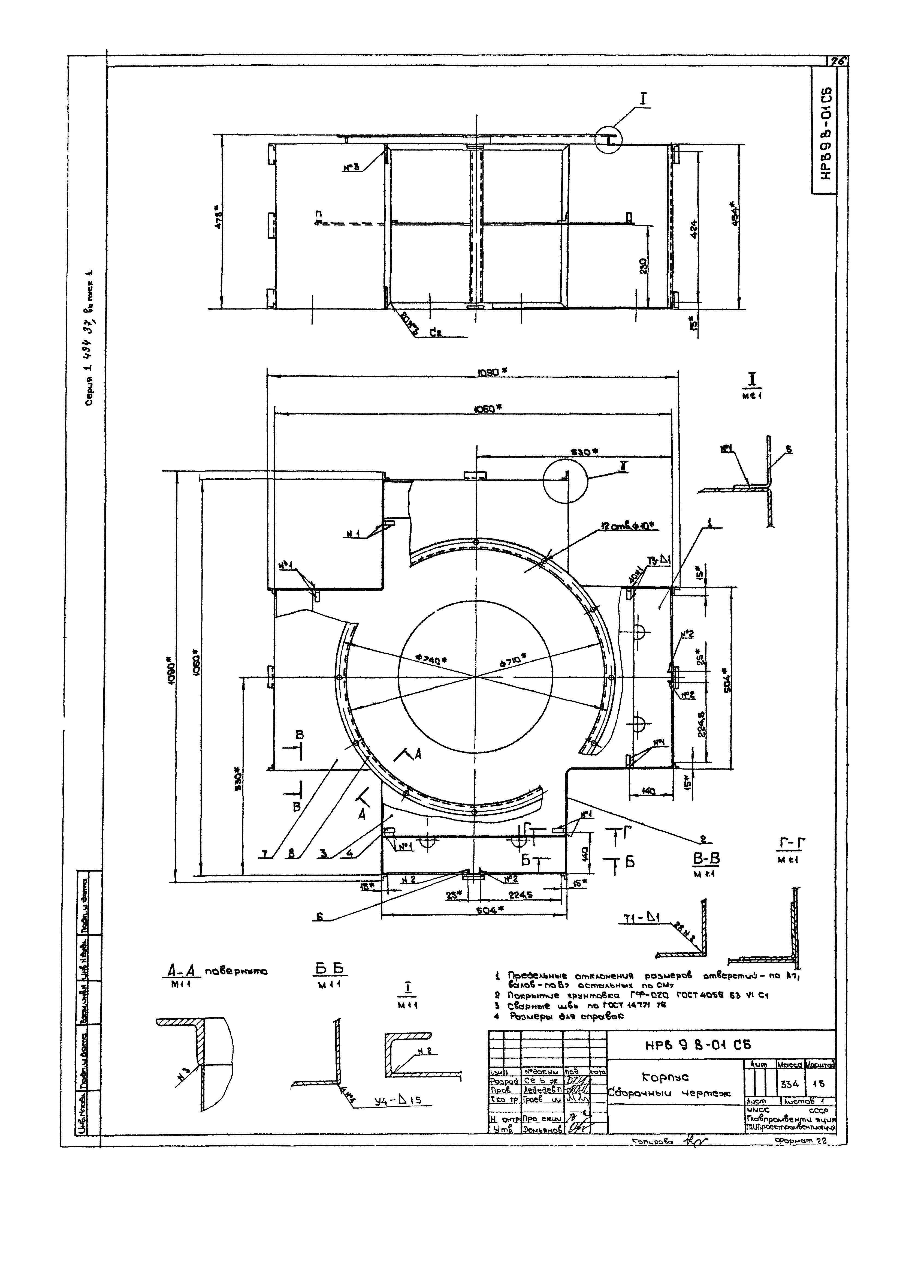
| Оглавление: | НРВ 1В СБ Воздухораспределитель НРВ 1В. Сборочный чертеж НРВ 1В Воздухораспределитель НРВ 1В. Спецификация НРВ 1В-01 Корпус. Спецификация НРВ 1В-0001 Гребенка. Деталь НРВ 1В-0109 Скоба. Деталь НРВ 1В-01СБ Корпус. Сборочный чертеж НРВ 1В-0101 Обечайка. Деталь НРВ 1В-0102 Стенка. Деталь НРВ 1В-0103 Дно. Деталь НРВ 1В-0104 Диафрагма. Деталь НРВ 1В-0105 Лапка. Деталь НРВ 1В-0106 Стойка. Деталь НРВ 1В-0107 Стенка. Деталь НРВ 1В-0108 Стенка. Деталь НРВ 1В-02 Решетка регулирующая. Спецификация НРВ 1В-02 СБ Решетка регулирующая. Сборочный чертеж НРВ 1В-0201 Корпус решетки. Спецификация НРВ 1В-0201 СБ Корпус решетки. Сборочный чертеж НРВ 1В-020101 Стенка. Деталь НРВ 1В-020102 Стенка. Деталь НРВ 1В-020103 Боковина. Деталь НРВ 1В-0202 Створка. Спецификация НРВ 1В-0202 СБ Створка. Сборочный чертеж НРВ 1В-0203 Тяга. Спецификация НРВ 1В-0203 СБ Тяга. Сборочный чертеж НРВ 1В-020201 Створка. Деталь НРВ 1В-020202 Ушко. Деталь НРВ 1В-0205 Ребро направляющее. Деталь НРВ 1В-0209 Петля. Деталь НРВ 1В-0206 Ось. Деталь НРВ 1В-0208 Полуось. Деталь НРВ 1В-0210 Пружина. Деталь НРВ 1В-0211 Втулка. Деталь НРВ 1В-0204 Лопатка. Деталь НРВ 1В-0207 Ось. Деталь НРВ 1Н Воздухораспределитель НРВ 1Н. Спецификация НРВ 1Н-01 Корпус. Спецификация НРВ 1Н СБ Воздухораспределитель НРВ 1Н. Сборочный чертеж НРВ 1Н-01СБ Корпус. Сборочный чертеж НРВ 1Н-0101 Стенка. Деталь НРВ 1Н-0102 Дно. Деталь НРВ 2В Воздухораспределитель НРВ 2В. Спецификация НРВ 2В-01 Корпус. Спецификация НРВ 2В СБ Воздухораспределитель НРВ 2В. Сборочный чертеж НРВ 2В-01 СБ Корпус. Сборочный чертеж НРВ 2В-0101 Стенка. Деталь НРВ 2В-0102 Дно. Деталь НРВ 2В-0103 Диафрагма. Деталь НРВ 2В-0104 Стенка. Деталь НРВ 2В-02 Решетка регулирующая. Спецификация НРВ 2В-02 СБ Решетка регулирующая. Сборочный чертеж НРВ 2В-0201 Корпус решетки. Спецификация НРВ 2В-0201 СБ Корпус решетки. Сборочный чертеж НРВ 2В-020101 Стенка. Деталь НРВ 2В-020102 Стенка. Деталь НРВ 2В-020103 Боковина. Деталь НРВ 2В-0202 Створка. Спецификация НРВ 2В-0202 СБ Створка. Сборочный чертеж НРВ 2В-0203 Тяга. Спецификация НРВ 2В-0203 СБ Тяга. Сборочный чертеж НРВ 2В-020201 Створка. Деталь НРВ 2В-0204 Лопатка. Деталь НРВ 2В-0205 Ребро направляющее. Деталь НРВ 2В-0206 Полуось. Деталь НРВ 2В-0001 Гребенка. Деталь НРВ 2В-0105 Стенка. Деталь НРВ 2Н Воздухораспределитель НРВ 2Н. Спецификация НРВ 2Н-01 Корпус. Спецификация НРВ 2Н СБ Воздухораспределитель НРВ 2Н. Сборочный чертеж НРВ 2Н-01 СБ Корпус. Сборочный чертеж НРВ 2Н-0101 Стенка. Деталь НРВ 2Н-0102 Дно. Деталь НРВ 3В Воздухораспределитель НРВ 3В. Спецификация НРВ 3В-01 Корпус. Спецификация НРВ 3В СБ Воздухораспределитель НРВ 3В. Сборочный чертеж НРВ 3В-01 СБ Корпус. Сборочный чертеж НРВ 3В-0101 Стенка. Деталь НРВ 3В-0102 Стенка. Деталь НРВ 3В-0103 Дно. Деталь НРВ 3В-0104 Диафрагма. Деталь НРВ 3В-0105 Стенка. Деталь НРВ 3В-0106 Стойка. Деталь НРВ 3Н Воздухораспределитель НРВ 3Н. Спецификация НРВ 3Н-01 Корпус. Спецификация НРВ 3Н СБ Воздухораспределитель НРВ 3Н. Сборочный чертеж НРВ 3Н-01 СБ Корпус. Сборочный чертеж НРВ 3Н-0101 Стенка. Деталь НРВ 3Н-0102 Дно. Деталь НРВ 4В Воздухораспределитель НРВ 4В. Спецификация НРВ 4В-01 Корпус. Спецификация НРВ 4В СБ Воздухораспределитель НРВ 4В. Сборочный чертеж НРВ 4В-01 СБ Корпус. Сборочный чертеж НРВ 4В-0101 Стенка. Деталь НРВ 4В-0103 Диафрагма. Деталь НРВ 4В-0104 Стойка. Деталь НРВ 4В-0105 Стенка. Деталь НРВ 4В-0102 Дно. Деталь НРВ 4В-0106 Стенка. Деталь НРВ 4В-02 Решетка регулирующая. Спецификация НРВ 4В-0201 Корпус решетки. Спецификация НРВ 4В-02 СБ Решетка регулирующая. Сборочный чертеж НРВ 4В-0202 Тяга. Спецификация НРВ 4В-0202 СБ Тяга. Сборочный чертеж НРВ 4В-0201 СБ Корпус решетки. Сборочный чертеж НРВ 4В-020101 Стенка. Деталь НРВ 4В-020102 Стенка. Деталь НРВ 4В-0203 Лопатка. Деталь НРВ 4Н Воздухораспределитель НРВ 4Н. Спецификация НРВ 4Н-01 Корпус. Спецификация НРВ 4Н-0101 Стенка. Деталь НРВ 4Н-0102 Дно. Деталь НРВ 4Н СБ Воздухораспределитель НРВ 4Н. Сборочный чертеж НРВ 4Н-01 СБ Корпус. Сборочный чертеж НРВ 5В Воздухораспределитель НРВ 5В. Спецификация НРВ 5В-01 Корпус. Спецификация НРВ 5В-0001 Гребенка. Деталь НРВ 5В-0002 Гребенка. Деталь НРВ 5В СБ Воздухораспределитель НРВ 5В. Сборочный чертеж НРВ 5В-01 СБ Корпус. Сборочный чертеж НРВ 5В-0101 Стенка. Деталь НРВ 5В-0102 Дно. Деталь НРВ 5В-0103 Диафрагма. Деталь НРВ 5В-0104 Стенка. Деталь НРВ 5В-0105 Стенка. Деталь НРВ 5Н Воздухораспределитель НРВ 5Н. Спецификация НРВ 5Н-01 Корпус. Спецификация НРВ 5Н-0101 Стенка. Деталь НРВ 5Н-СБ Воздухораспределитель НРВ 5Н. Сборочный чертеж НРВ 5В-01 СБ Корпус. Сборочный чертеж НРВ 6В Воздухораспределитель НРВ 6В. Спецификация НРВ 6В-01 Корпус. Спецификация НРВ 6В-0001 Гребенка. Деталь НРВ 6В-0002 Гребенка. Деталь НРВ 6В СБ Воздухораспределитель НРВ 6В. Сборочный чертеж. Лист 1 НРВ 6В СБ Воздухораспределитель НРВ 6В. Сборочный чертеж. Лист 2 НРВ 5Н-0102 Дно. Деталь НРВ 6Н-0102 Дно. Деталь НРВ 6В-01 СБ Корпус. Сборочный чертеж НРВ 6В-0101 Стенка. Деталь НРВ 6В-0102 Дно. Деталь НРВ 6В-0103 Диафрагма. Деталь НРВ 6В-0104 Стенка. Деталь НРВ 6В-0105 Стенка. Деталь НРВ 6Н Воздухораспределитель НРВ 6Н. Спецификация НРВ 6Н-01 Корпус. Спецификация НРВ 6Н-0101 Стенка. Деталь НРВ 6Н СБ Воздухораспределитель НРВ 6Н. Сборочный чертеж. Лист 1 НРВ 6Н-01 СБ Корпус. Сборочный чертеж НРВ 6Н СБ Воздухораспределитель НРВ 6Н. Сборочный чертеж. Лист 2 НРВ 7В Воздухораспределитель НРВ 7В. Спецификация НРВ 7В-01 Корпус. Спецификация НРВ 7В СБ Воздухораспределитель НРВ 7В. Сборочный чертеж НРВ 7В-01 СБ Корпус. Сборочный чертеж НРВ 7В-0101 Стенка. Деталь НРВ 7В-0102 Диафрагма. Деталь НРВ 7В-0103 Дно. Деталь НРВ 7В-0104 Стенка. Деталь НРВ 7Н Воздухораспределитель НРВ 7Н. Спецификация НРВ 7Н-01 Корпус. Спецификация НРВ 7Н-0101 Стенка. Деталь НРВ 7Н-0102 Дно. Деталь НРВ 7Н СБ Воздухораспределитель НРВ 7Н. Сборочный чертеж НРВ 7Н-01 СБ Корпус. Сборочный чертеж НРВ 8В Воздухораспределитель НРВ 8В. Спецификация НРВ 8В-01 Корпус. Спецификация НРВ 8Н Воздухораспределитель НРВ 8Н. Спецификация НРВ 8Н-01 Корпус. Спецификация НРВ 8В СБ Воздухораспределитель НРВ 8В. Сборочный чертеж НРВ 8В-01 СБ Корпус. Сборочный чертеж НРВ 8В-0101 Стенка. Деталь НРВ 8В-0102 Дно. Деталь НРВ 8В-0103 Диафрагма. Деталь НРВ 8В-0104 Стенка. Деталь НРВ 8Н СБ Воздухораспределитель НРВ 8Н. Сборочный чертеж НРВ 8Н-01 СБ Корпус. Сборочный чертеж НРВ 8Н-0101 Стенка. Деталь НРВ 8Н-0102 Дно. Деталь НРВ 9В Воздухораспределитель НРВ 9В. Спецификация НРВ 9Н Воздухораспределитель НРВ 9Н. Спецификация НРВ 9В СБ Воздухораспределитель НРВ 9В. Сборочный чертеж НРВ 9В-01 Корпус. Спецификация НРВ 9Н-01 Корпус. Спецификация НРВ 9Н-0101 Дно. Деталь НРВ 3В-0001 Гребенка. Деталь НРВ9В-01 СБ Корпус. Сборочный чертеж НРВ 9В-0101 Дно. Деталь НРВ 9В-0102 Стенка. Деталь НРВ 9В-0103 Диафрагма. Деталь НРВ 10В-0102 Стенка. Деталь НРВ 9Н СБ Воздухораспределитель НРВ 9Н. Сборочный чертеж НРВ 9Н-01 СБ Корпус. Сборочный чертеж НРВ 10В Воздухораспределитель НРВ 10В. Спецификация НРВ 10В-01 Корпус. Спецификация НРВ 10Н Воздухораспределитель НРВ 10Н. Спецификация НРВ 10Н-01 Корпус. Спецификация НРВ 10В СБ Воздухораспределитель НРВ 10В. Сборочный чертеж НРВ 10В-01 СБ Корпус. Сборочный чертеж НРВ 10В-0101 Стенка. Деталь НРВ 10В-0103 Дно. Деталь НРВ 10В-0104 Диафрагма. Деталь НРВ 10Н-0101 Стенка. Деталь НРВ 10Н СБ Воздухораспределитель НРВ 10Н. Сборочный чертеж НРВ 10Н-01 СБ Корпус. Сборочный чертеж НРВ 10Н-0102 Дно. Деталь НРВ 11В Воздухораспределитель НРВ 11В. Спецификация НРВ 11В-0101 Стенка. Деталь НРВ 11Н Воздухораспределитель НРВ 11Н. Спецификация НРВ 11В СБ Воздухораспределитель НРВ 11В. Сборочный чертеж. Лист 1 НРВ 11В СБ Воздухораспределитель НРВ 11В. Сборочный чертеж. Лист 2 НРВ 11В-01 Корпус. Спецификация НРВ 11Н-01 Корпус. Спецификация НРВ 11В-01 СБ Корпус. Сборочный чертеж НРВ 11Н СБ Воздухораспределитель НРВ 11Н. Сборочный чертеж. Лист 1 НРВ 11Н СБ Воздухораспределитель НРВ 11Н. Сборочный чертеж. Лист 2 НРВ 11В-0102 Дно. Деталь НРВ 11В-0103 Диафрагма. Деталь НРВ 11Н-01 СБ Корпус. Сборочный чертеж НРВ 11В-0104 Стенка. Деталь НРВ 11Н-0101 Стенка. Деталь НРВ 11Н-0102 Дно. Деталь НРВ 12В-0101 Стенка. Деталь НРВ 12В Воздухораспределитель НРВ 12В. Спецификация НРВ 12В СБ Воздухораспределитель НРВ 12В. Сборочный чертеж. Лист 2 НРВ 12В-01 Корпус. Спецификация НРВ 12В СБ Воздухораспределитель НРВ 12В. Сборочный чертеж. Лист 1 НРВ 12В-01 СБ Корпус. Сборочный чертеж НРВ 12В-0102 Дно. Деталь НРВ 12В-0103 Диафрагма. Деталь НРВ 12В-0104 Стенка. Деталь НРВ 12Н-0104 Стенка. Деталь НРВ 12Н Воздухораспределитель НРВ 12Н. Спецификация НРВ 12Н СБ Воздухораспределитель НРВ 12Н. Сборочный чертеж. Лист 2 НРВ 12Н-01 Корпус. Спецификация НРВ 12Н СБ Воздухораспределитель НРВ 12В. Сборочный чертеж. Лист 1 НРВ 12Н-01 СБ Корпус. Сборочный чертеж НРВ 12Н-0102 Дно. Деталь НРВ-К Ключ. Спецификация НРВ-К-01 Крюк. Деталь НРВ-К-02 Шест. Деталь НРВ.Д1 Технические требования |
| Разработан: | Проектпромвентиляция |
| Утверждён: | 07.02.1979 Госстрой СССР (Государственный комитет Совета Министров СССР по делам строительства) (USSR Gosstroy 5) |
| Расположен в: |






































































































