| ||||||||||||||||||||||||||||
Скачать Серия 5.407-118 Выпуск 1. Материалы для проектирования и рабочие чертежиДата актуализации: 10.08.2017
|
| Обозначение: | Серия 5.407-118 |
| Обозначение англ: | Series 5.407-118 |
| Статус: | не определен законодательством |
| Название рус.: | Выпуск 1. Материалы для проектирования и рабочие чертежи |
| Дата добавления в базу: | 01.09.2013 |
| Дата актуализации: | 05.05.2017 |
| Дата введения: | 01.08.1990 |
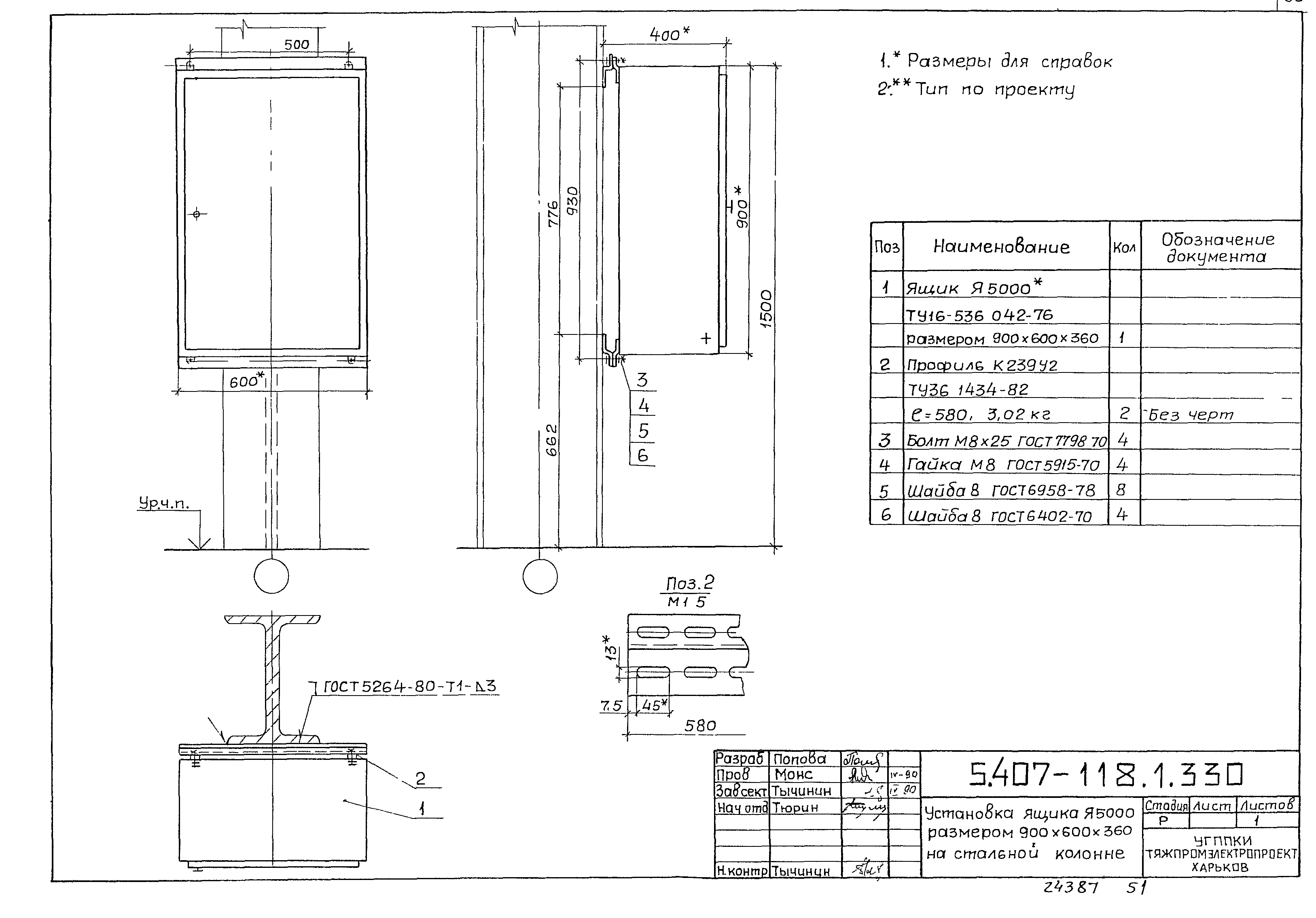
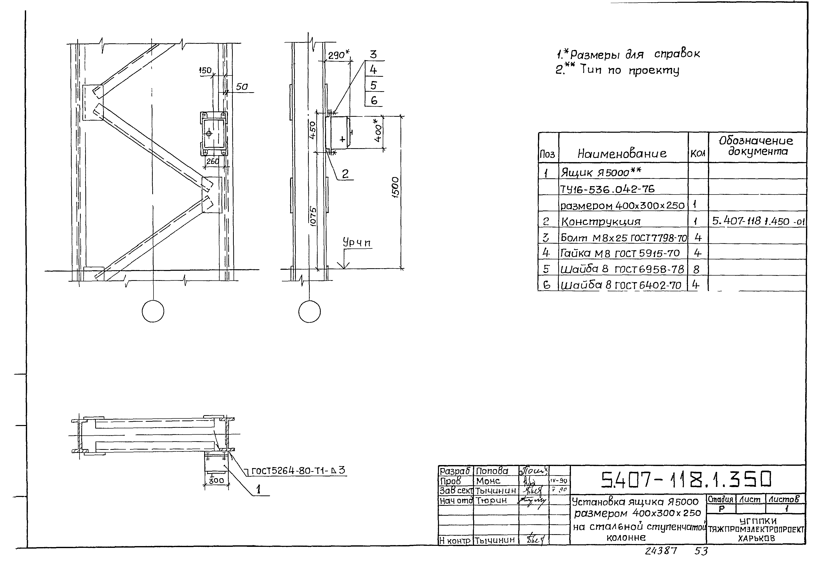
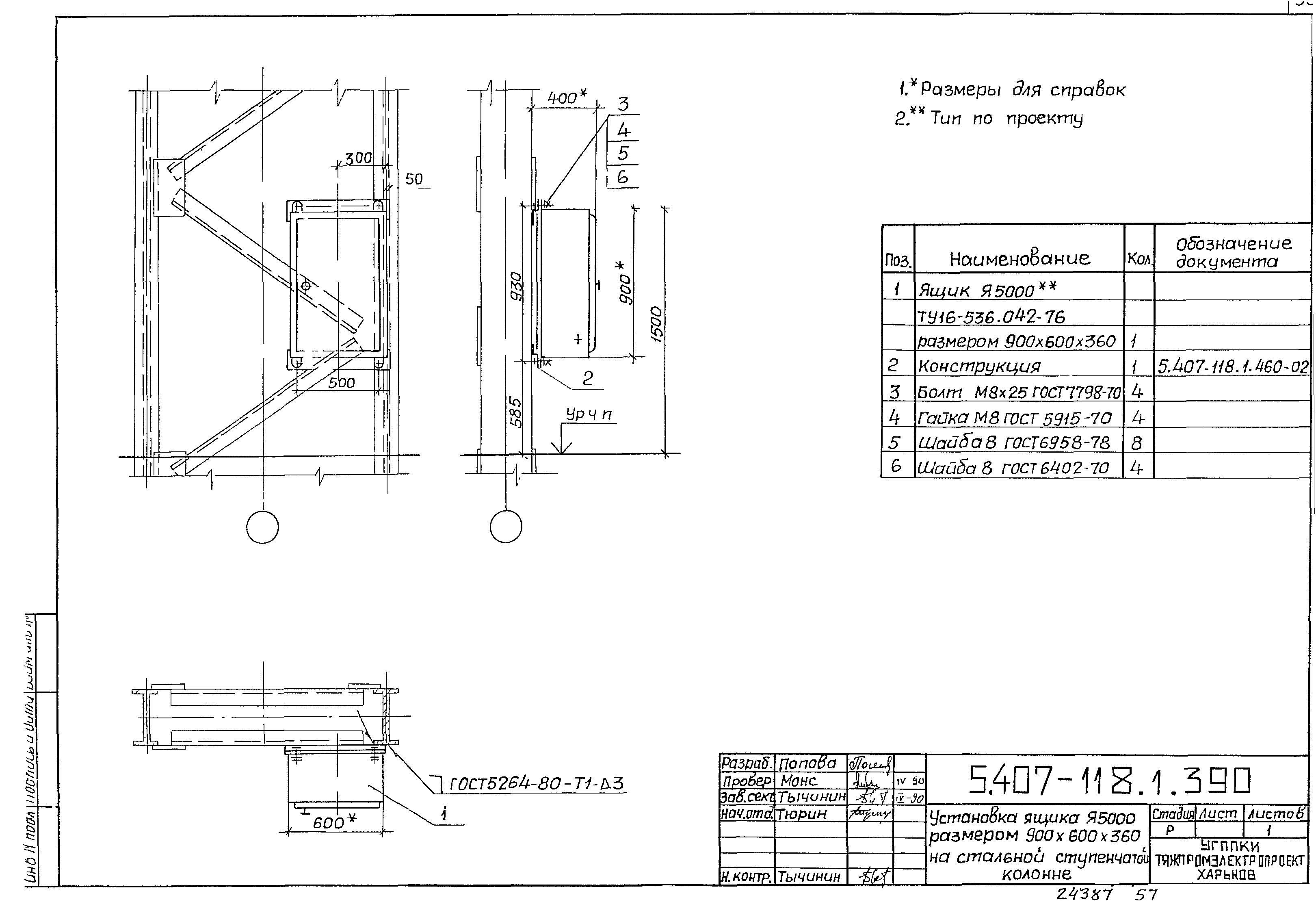
| Оглавление: | 5.407-118.1.ПЗ Пояснительная записка 5.407-118.1.10ГЧ Ящики управления серии Я5000. Габаритный чертеж 5.407-118.1.20ТБ таблица выбора чертежей установки 5.407-118.1.30В Ведомость потребности в оборудовании, изделиях и материалах 5.407-118.1.40 Установка ящика Я5000 размером 300х250х180 на стене 5.407-118.1.50 Установка ящика Я5000 размером 400х300х250 на стене 5.407-118.1.60 Установка ящика Я5000 размером 600х400х250 на стене 5.407-118.1.70 Установка ящика Я5000 размером 600х600х250 на стене 5.407-118.1.80 Установка ящика Я5000 размером 600х600х360 на стене 5.407-118.1.90 Установка ящика Я5000 размером 900х600х360 на стене 5.407-118.1.100 Установка ящика Я5000 размером 300х250х180 на стене, с коробом 5.407-118.1.110 Установка ящика Я5000 размером 400х300х250 на стене, с коробом 5.407-118.1.120 Установка ящика Я5000 размером 600х400х250 на стене, с коробом 5.407-118.1.130 Установка ящика Я5000 размером 600х600х250 на стене, с коробом 5.407-118.1.140 Установка ящика Я5000 размером 600х600х360 на стене, с коробом 5.407-118.1.150 Установка ящика Я5000 размером 900х600х360 на стене, с коробом 5.407-118.1.160 Установка ящика Я5000 размером 300х250х180 на ж.-б. колонне 5.407-118.1.170 Установка ящика Я5000 размером 400х300х250 на ж.-б. колонне 5.407-118.1.180 Установка ящика Я5000 размером 600х400х250 на ж.-б. колонне 5.407-118.1.190 Установка ящика Я5000 размером 600х600х250 на ж.-б. колонне 5.407-118.1.200 Установка ящика Я5000 размером 600х600х360 на ж.-б. колонне 5.407-118.1.210 Установка ящика Я5000 размером 900х600х360 на ж.-б. колонне 5.407-118.1.220 Установка ящика Я5000 размером 300х250х180 на стальной колонне 5.407-118.1.230 Установка ящика Я5000 размером 400х300х250 на стальной колонне 5.407-118.1.240 Установка ящика Я5000 размером 600х400х250 на стальной колонне 5.407-118.1.250 Установка ящика Я5000 размером 600х600х250 на стальной колонне 5.407-118.1.260 Установка ящика Я5000 размером 600х600х360 на стальной колонне 5.407-118.1.270 Установка ящика Я5000 размером 900х600х360 на стальной колонне 5.407-118.1.280 Установка ящика Я5000 размером 300х250х180 на стальной колонне 5.407-118.1.290 Установка ящика Я5000 размером 400х300х250 на стальной колонне 5.407-118.1.300 Установка ящика Я5000 размером 600х400х250 на стальной колонне 5.407-118.1.310 Установка ящика Я5000 размером 600х600х250 на стальной колонне 5.407-118.1.320 Установка ящика Я5000 размером 600х600х360 на стальной колонне 5.407-118.1.330 Установка ящика Я5000 размером 900х600х360 на стальной колонне 5.407-118.1.340 Установка ящика Я5000 размером 300х250х180 на стальной ступенчатой колонне 5.407-118.1.350 Установка ящика Я5000 размером 400х300х250 на стальной ступенчатой колонне 5.407-118.1.360 Установка ящика Я5000 размером 600х400х250 на стальной ступенчатой колонне 5.407-118.1.370 Установка ящика Я5000 размером 600х600х250 на стальной ступенчатой колонне 5.407-118.1.380 Установка ящика Я5000 размером 600х600х360 на стальной ступенчатой колонне 5.407-118.1.390 Установка ящика Я5000 размером 900х600х360 на стальной ступенчатой колонне 5.407-118.1.400 Скоба в сборе 5.407-118.1.410 Скоба 5.407-118.1.420 Короб в сборе 5.407-118.1.430 Короб 5.407-118.1.440 Шпилька 5.407-118.1.450 Конструкция 5.407-118.1.460 Конструкция 5.407-118.1.470 Шаблон для разметки отверстий для крепления ящиков шириной 250 и 300 мм 5.407-118.1.480 Шаблон для разметки отверстий для крепления ящиков шириной 400 и 600 мм |
| Разработан: | Украинский Тяжпромэлектропроект |
| Утверждён: | 11.12.1989 НПО Электромонтаж ММСС СССР |
| Издан: | ЦИТП Госстроя СССР (CITP, Gosstroy (USSR) 1990 г. ) |
| Расположен в: |

































































