| ||||||||||||||||||||||||||||
Скачать Серия 5.407-110 Выпуск 1. Монтажные чертежи. Чертежи изделийДата актуализации: 10.08.2017
|
| Обозначение: | Серия 5.407-110 |
| Обозначение англ: | Series 5.407-110 |
| Статус: | не определен законодательством |
| Название рус.: | Выпуск 1. Монтажные чертежи. Чертежи изделий |
| Дата добавления в базу: | 01.09.2013 |
| Дата актуализации: | 05.05.2017 |
| Дата введения: | 01.01.1990 |
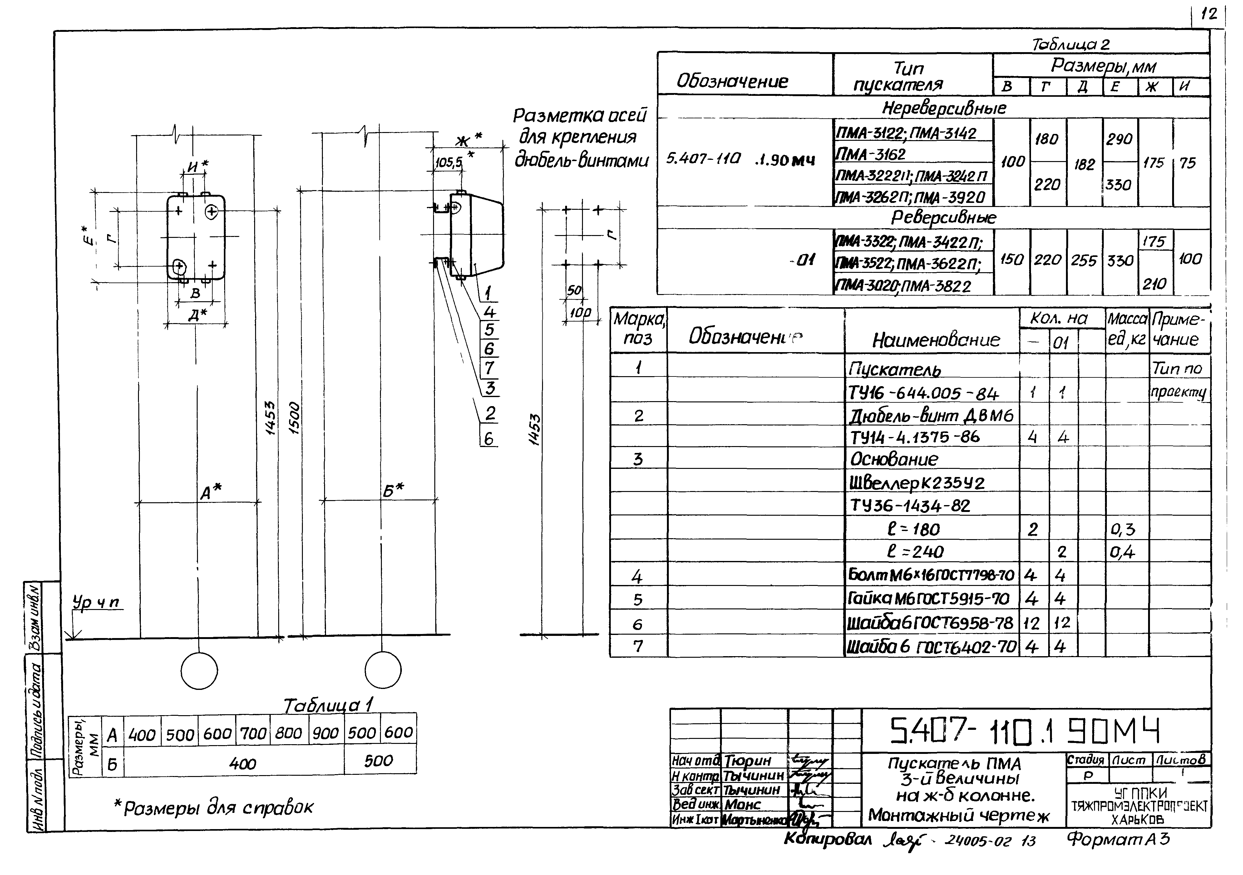
| Оглавление: | 5.407-110.1.10МЧ Пускатель ПМА 3-й величины на стене. Монтажный чертеж 5.407-110.1.20МЧ Пускатель ПМА 4-й величины на стене. Монтажный чертеж 5.407-110.1.30МЧ Пускатель ПМА 5-й величины на стене. Монтажный чертеж 5.407-110.1.40МЧ Пускатель ПМА 6-й величины на стене. Монтажный чертеж 5.407-110.1.50МЧ Пускатель ПМА 3-й величины на стене с коробом. Монтажный чертеж 5.407-110.1.60МЧ Пускатель ПМА 4-й величины на стене с коробом. Монтажный чертеж 5.407-110.1.70МЧ Пускатель ПМА 5-й величины на стене с коробом. Монтажный чертеж 5.407-110.1.80МЧ Пускатель ПМА 6-й величины на стене с коробом. Монтажный чертеж 5.407-110.1.90МЧ Пускатель ПМА 3-й величины на ж-б колонне. Монтажный чертеж 5.407-110.1.100МЧ Пускатель ПМА 4-й величины на ж-б колонне. Монтажный чертеж 5.407-110.1.110МЧ Пускатель ПМА 5-й величины на ж-б колонне. Монтажный чертеж 5.407-110.1.120МЧ Пускатель ПМА 6-й величины на ж-б колонне. Монтажный чертеж 5.407-110.1.130МЧ Пускатель ПМА 3-й величины на стальной колонне. Монтажный чертеж 5.407-110.1.140МЧ Пускатель ПМА 4-й величины на стальной колонне. Монтажный чертеж 5.407-110.1.150МЧ Пускатель ПМА 5-й величины на стальной колонне. Монтажный чертеж 5.407-110.1.160МЧ Пускатель ПМА 6-й величины на стальной колонне. Монтажный чертеж 5.407-110.1.170МЧ Пускатель ПМА 3-й величины на стальной колонне. Монтажный чертеж 5.407-110.1.180МЧ Пускатель ПМА 4-й величины на стальной колонне. Монтажный чертеж 5.407-110.1.190МЧ Пускатель ПМА 5-й величины на стальной колонне. Монтажный чертеж 5.407-110.1.200МЧ Пускатель ПМА 6-й величины на стальной колонне. Монтажный чертеж 5.407-110.1.210МЧ Пускатель ПМА 3-й величины на стальной ступенчатой колонне. Монтажный чертеж 5.407-110.1.220МЧ Пускатель ПМА 4-й величины на стальной ступенчатой колонне. Монтажный чертеж 5.407-110.1.230МЧ Пускатель ПМА 5-й величины на стальной ступенчатой колонне. Монтажный чертеж 5.407-110.1.240МЧ Пускатель ПМА 6-й величины на стальной ступенчатой колонне. Монтажный чертеж 5.407-110.1.250МЧ Пускатель ПМА 3-й величины на стойке. Монтажный чертеж 5.407-110.1.260МЧ Пускатель ПМА 4-й величины на стойке. Монтажный чертеж 5.407-110.1.270МЧ Пускатель ПМА 5-й величины на стойке нереверсивный. Монтажный чертеж 5.407-110.1.280МЧ Пускатель ПМА 4-й величины реверсивный на стойке. Монтажный чертеж 5.407-110.1.290МЧ Пускатель ПМА 5-й величины реверсивный на стойке. Монтажный чертеж 5.407-110.1.300МЧ Пускатель ПМА 6-й величины на стойке. Монтажный чертеж 5.407-110.1.310МЧ Установка основания стойки на шпильках. Монтажный чертеж 5.407-110.1.320МЧ Установка основания стойки на закладных изделиях. Монтажный чертеж 5.407-110.1.311 Прогон 5.407-110.1.312 Прогон 5.407-110.1.330 Скоба в сборе 5.407-110.1.331 Скоба 5.407-110.1.340 Короб 5.407-110.1.341 Короб 5.407-110.1.350 Конструкция 5.407-110.1.360 Конструкция 5.407-110.1.370 Стойка в сборе 5.407-110.1.370 СБ Стойка в сборе. Сборочный чертеж 5.407-110.1.371 Короб 5.407-110.1.380 Стойка 5.407-110.1.381 Скоба 5.407-110.1.390 Лист защитный 5.407-110.1.391 Лист 5.407-110.1.400 Стойка в сборе 5.407-110.1.400 СБ Стойка в сборе. Сборочный чертеж 5.407-110.1.410 Стойка 5.407-110.1.411 Скоба |
| Разработан: | Украинский Тяжпромэлектропроект |
| Утверждён: | 14.02.1989 НПО Электромонтаж ММСС СССР |
| Издан: | ЦИТП Госстроя СССР (CITP, Gosstroy (USSR) 1989 г. ) |
| Расположен в: |























































