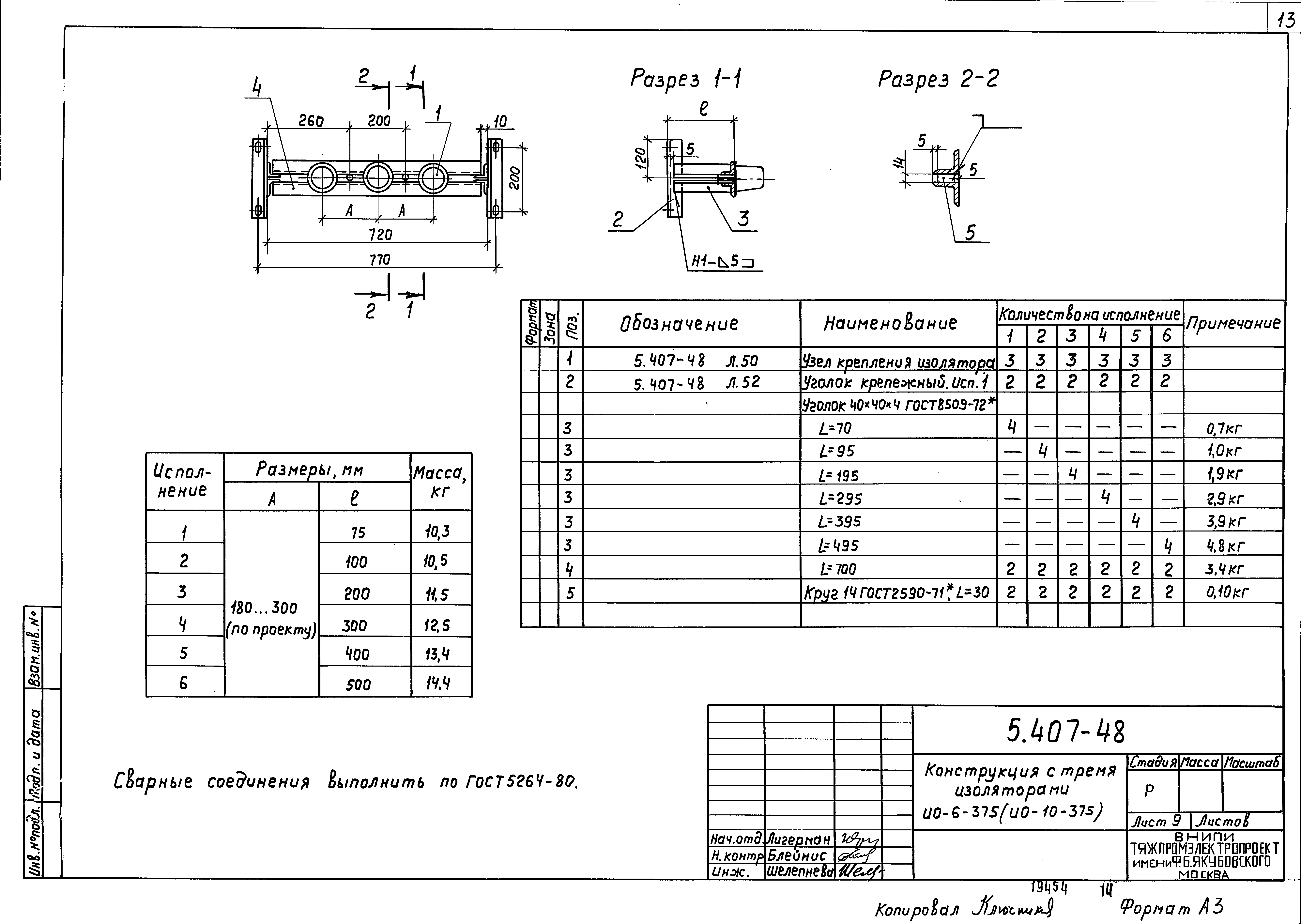
Скачать Серия 5.407-48 Установка опорных изоляторов на напряжение 6 - 10 кВ для внутренней установки на конструкциях. Чертежи изделийДата актуализации: 10.08.2017 Серия 5.407-48
Установка опорных изоляторов на напряжение 6 - 10 кВ для внутренней установки на конструкциях. Чертежи изделий| Обозначение: | Серия 5.407-48 | | Обозначение англ: | Series 5.407-48 | | Статус: | действует | | Название рус.: | Установка опорных изоляторов на напряжение 6 - 10 кВ для внутренней установки на конструкциях. Чертежи изделий | | Дата добавления в базу: | 01.09.2013 | | Дата актуализации: | 05.05.2017 | | Разработан: | ВНИПИ Тяжпромэлектропроект им. Ф.Б. Якубовского
| | Утверждён: | 24.11.1983 Минмонтажспецстрой СССР (USSR Minmontazhspetsstroy )
| | Расположен в: |
| | Чем заменён: | |
                                                                    
|