| ||||||||||||||||||||||||
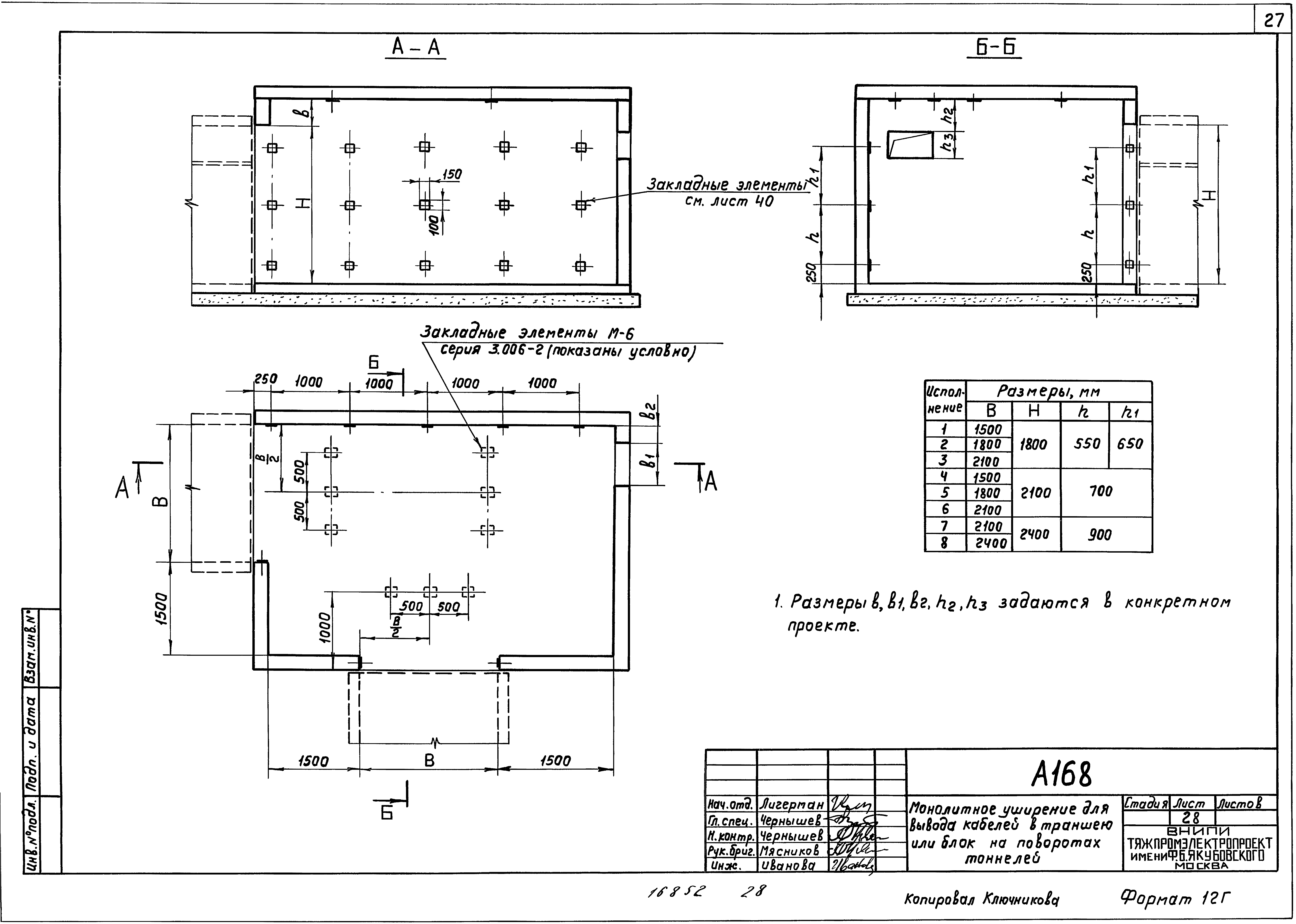
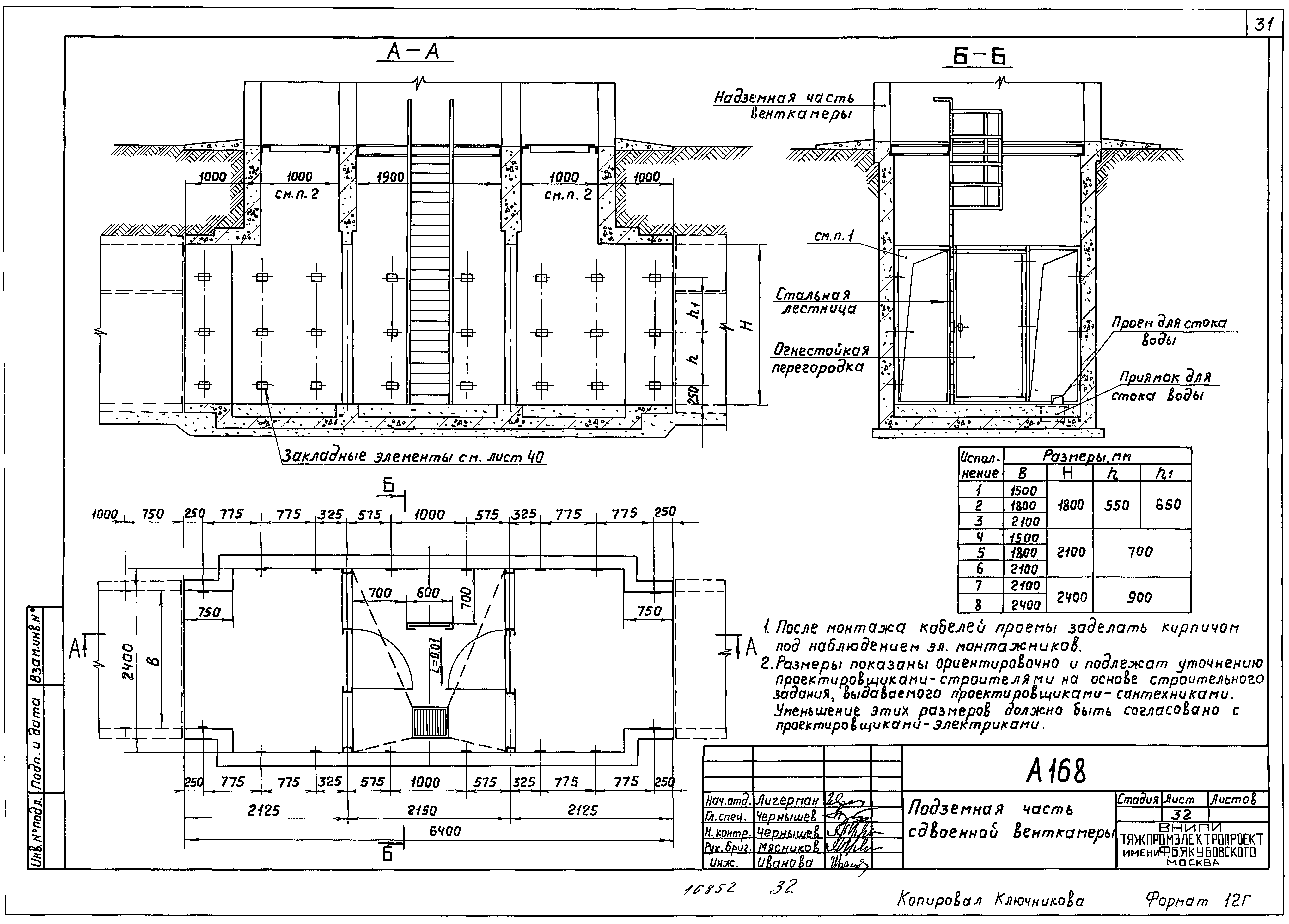
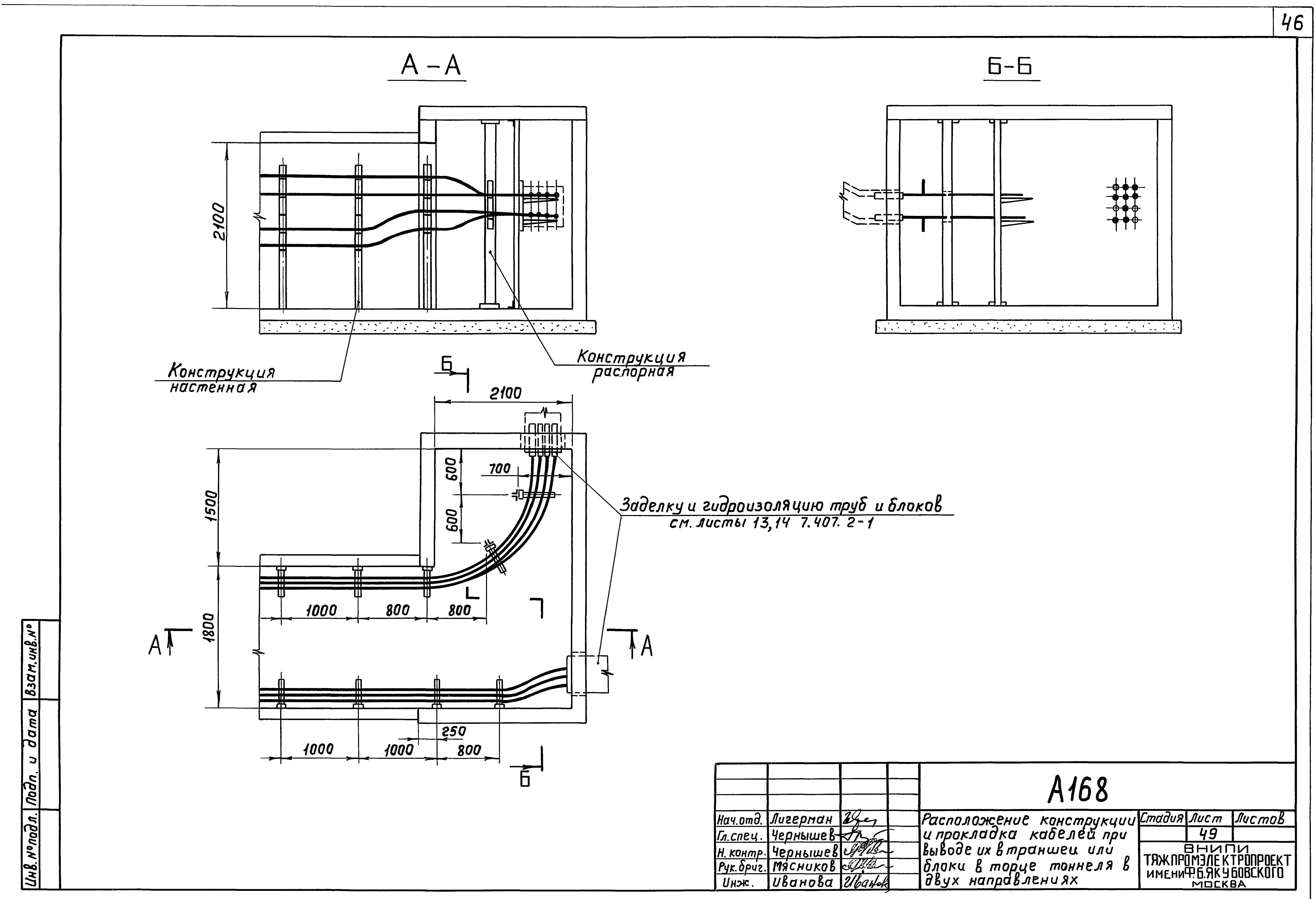
Скачать Шифр А-168 Прокладка кабелей в тоннелях. Материалы для проектированияДата актуализации: 10.08.2017
|
| Обозначение: | Шифр А-168 |
| Обозначение англ: | А-168 |
| Статус: | не определен законодательством |
| Название рус.: | Прокладка кабелей в тоннелях. Материалы для проектирования |
| Дата добавления в базу: | 01.09.2013 |
| Дата актуализации: | 05.05.2017 |
| Дата введения: | 01.08.1980 |
| Разработан: | ВНИПИ Тяжпромэлектропроект им. Ф.Б. Якубовского |
| Утверждён: | 16.07.1980 ВНИПИ Тяжпромэлектропроект им. Ф.Б. Якубовского (F.B.Yakubovskiy Tyazhpromelektroproject VNIPI 100) |
| Расположен в: |




















































