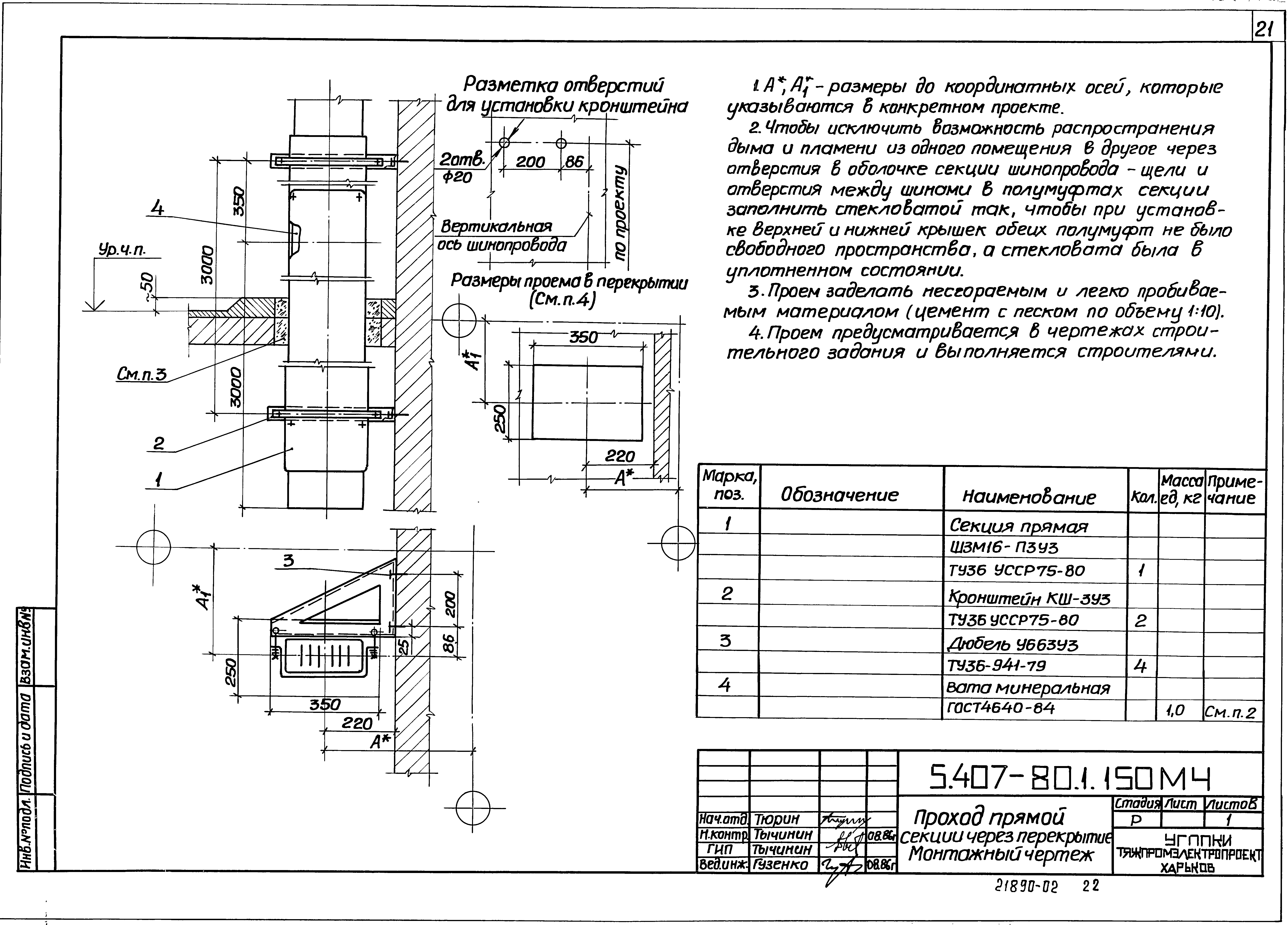
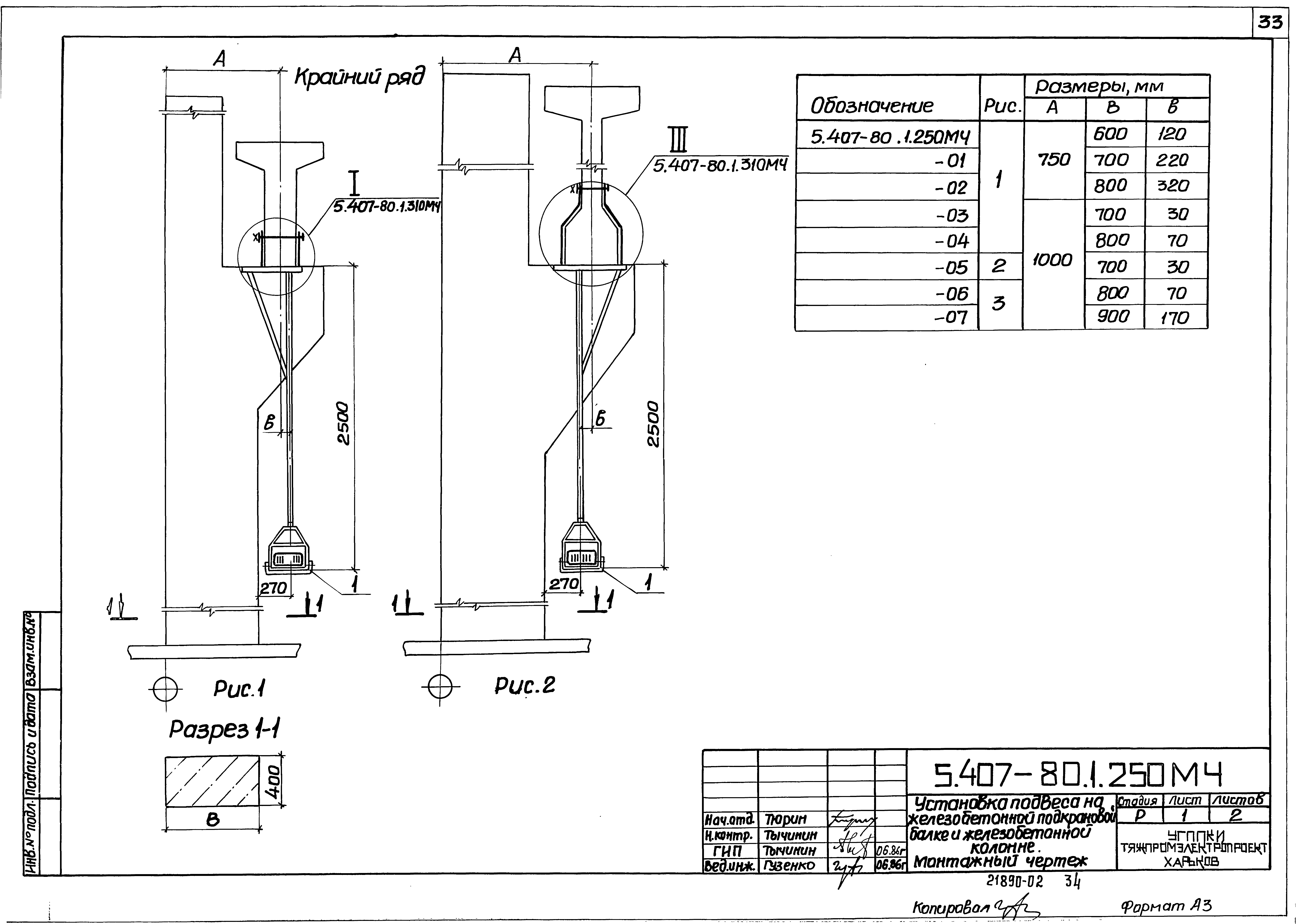
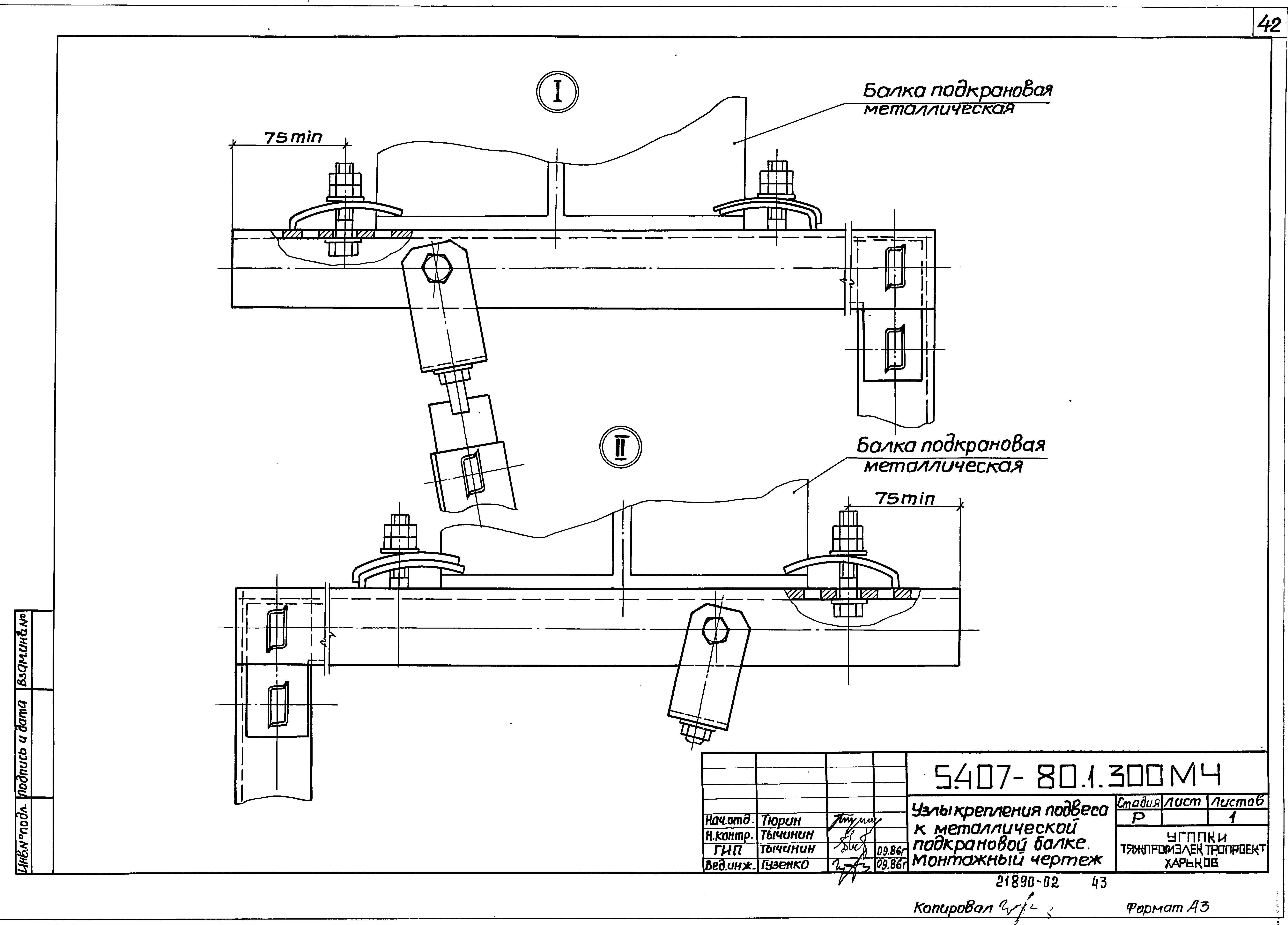
| ||||||||||||||||||||||||
Скачать Серия 5.407-80 Выпуск 1. Монтажные чертежиДата актуализации: 10.08.2017
|
| Обозначение: | Серия 5.407-80 |
| Обозначение англ: | Series 5.407-80 |
| Статус: | не определен законодательством |
| Название рус.: | Выпуск 1. Монтажные чертежи |
| Дата добавления в базу: | 01.09.2013 |
| Дата актуализации: | 05.05.2017 |
| Дата введения: | 01.12.1986 |
| Разработан: | УГППКИ Тяжпромэлектропроект |
| Утверждён: | 20.10.1986 Минмонтажспецстрой СССР (USSR Minmontazhspetsstroy ) |
| Расположен в: |














































