| ||||||||||||||||||||||||||||
Скачать Серия 3.820.1-73 Г-образные конструкции для водохозяйственного строительства многоцелевого назначения. Указания по применению и рабочие чертежиДата актуализации: 10.08.2017
|
| Обозначение: | Серия 3.820.1-73 |
| Обозначение англ: | Series 3.820.1-73 |
| Статус: | не определен законодательством |
| Название рус.: | Г-образные конструкции для водохозяйственного строительства многоцелевого назначения. Указания по применению и рабочие чертежи |
| Дата добавления в базу: | 01.09.2013 |
| Дата актуализации: | 05.05.2017 |
| Дата введения: | 01.10.1989 |
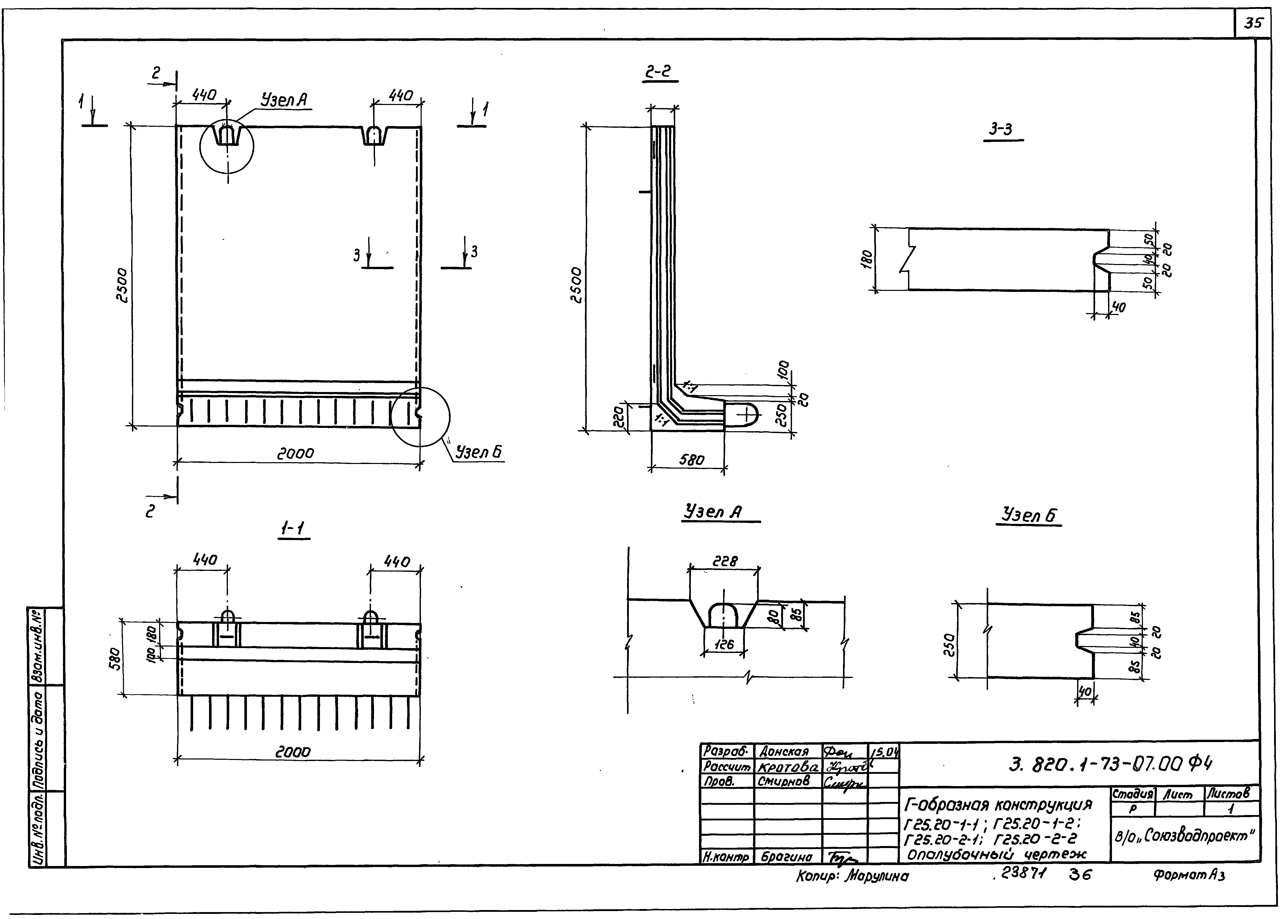
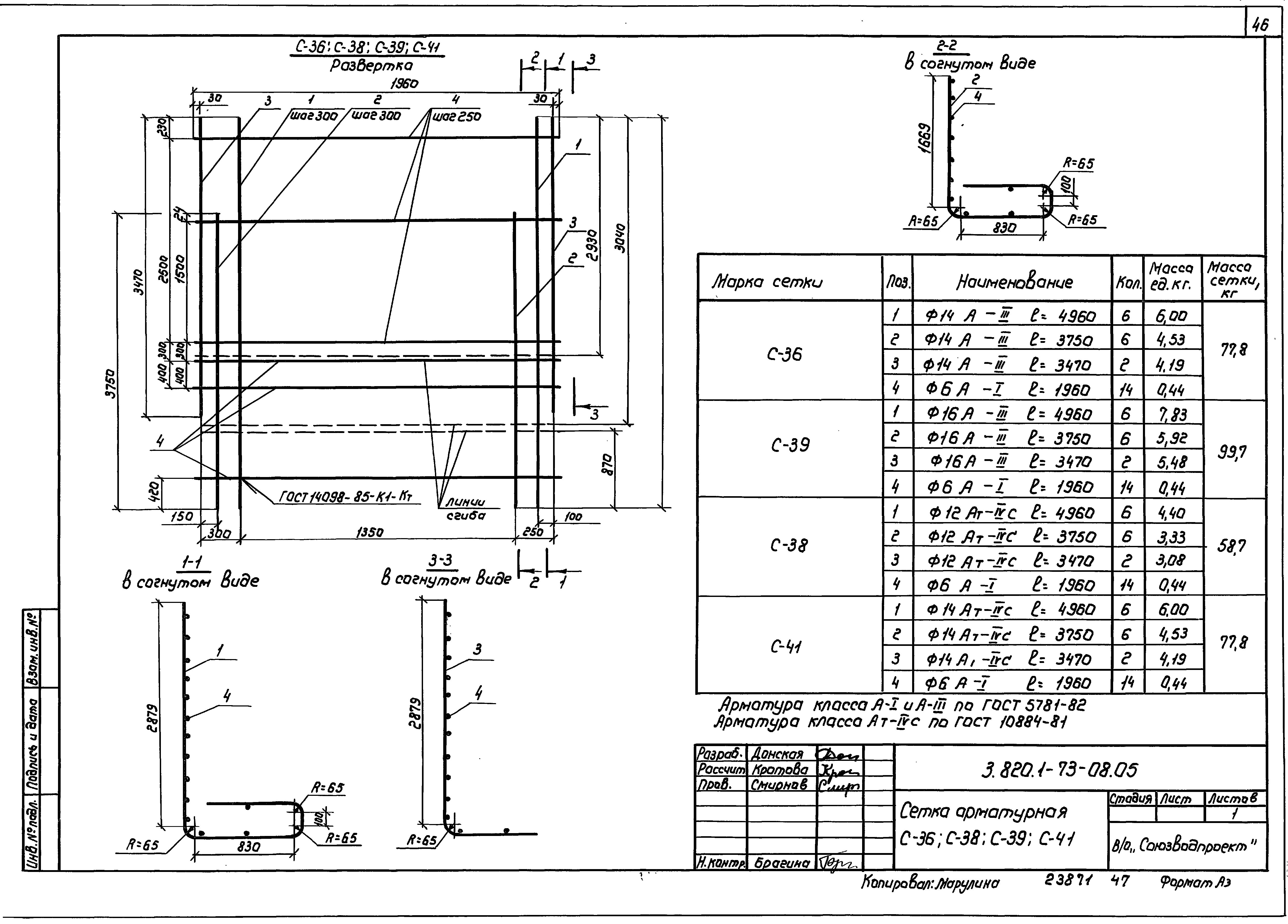
| Оглавление: | 3.820.1-73-00.00 ПЗ Пояснительная записка 3.820.1-73-00.00 ТТ Технические требования 3.820.1-73-00.00 НИ Номенклатура изделий 3.820.1-73-01.00 ФЧ Г-образная конструкция Г10.30-1, Г10.30-2. Опалубочный чертеж 3.820.1-73-01.00 Г-образная конструкция Г10.30-1, Г10.30-2. Сборочный чертеж 3.820.1-73-01.01 Петля строповочная ПС-1, ПС-2 3.820.1-73-01.02 Петля строповочная ПС-3 3.820.1-73-01.03 Изделие закладное МН-1 3.820.1-73-01.04 Сетка арматурная С-1, С-2 3.820.1-73-02.00 ФЧ Г-образная конструкция Г10.60-1, Г10.60-2. Опалубочный чертеж 3.820.1-73-02.00 Г-образная конструкция Г10.60-1, Г10.60-2. Сборочный чертеж 3.820.1-73-02.01 Петля строповочная ПС-4 3.820.1-73-02.02 Петля строповочная ПС-5 3.820.1-73-02.03 Сетка арматурная С-3, С-4, С-5, С-6 3.820.1-73-03.01 Сетка арматурная С-7, С-8 3.820.1-73-03.00 ФЧ Г-образная конструкция Г12.30-1, Г12.30-2. Опалубочный чертеж 3.820.1-73-03.00 Г-образная конструкция Г12.30-1, Г12.30-2. Сборочный чертеж 3.820.1-73-04.00 ФЧ Г-образная конструкция Г12.60-1, Г12.60-2. Опалубочный чертеж 3.820.1-73-04.00 Г-образная конструкция Г12.60-1, Г12.60-2. Сборочный чертеж 3.820.1-73-04.01 Петля строповочная ПС-6 3.820.1-73-04.02 Сетка арматурная С-9, С-10, С-11, С-12 3.820.1-73-05.00 ФЧ Г-образная конструкция Г15.30-1, Г15.30-2, Г15.30-3. Опалубочный чертеж 3.820.1-73-05.00 Г-образная конструкция Г15.30-1, Г15.30-2, Г15.30-3. Сборочный чертеж 3.820.1-73-05.01 Петля строповочная ПС-7 3.820.1-73-05.02 Изделие закладное МН-2 3.820.1-73-05.03 Сетка арматурная С-13, С-14 3.820.1-73-05.04 Сетка арматурная С-15, С-17, С-18 3.820.1-73-05.05 Сетка арматурная С-16 3.820.1-73-05.06 Сетка арматурная С-19 3.820.1-73-06.00 ФЧ Г-образная конструкция Г20.30-1, Г20.30-2-1, Г20.30-2-2. Опалубочный чертеж 3.820.1-73-06.00 Г-образная конструкция Г20.30-1, Г20.30-2-1, Г20.30-2-2. Сборочный чертеж 3.820.1-73-06.01 Петля строповочная ПС-8 3.820.1-73-06.02 Изделие закладное МН-3 3.820.1-73-06.03 Сетка арматурная С-20, С-21 3.820.1-73-06.04 Сетка арматурная С-22, С-24, С-26 3.820.1-73-06.05 Сетка арматурная С-23 3.820.1-73-06.06 Сетка арматурная С-25 3.820.1-73-07.00 ФЧ Г-образная конструкция Г25.20-1-1, Г25.20-1-2, Г25.20-2-1, Г25.20-2-2. Опалубочный чертеж 3.820.1-73-07.00 Г-образная конструкция Г25.20-1-1, Г25.20-1-2, Г25.20-2-1, Г25.20-2-2. Сборочный чертеж 3.820.1-73-07.01 Петля строповочная ПС-9 3.820.1-73-07.02 Изделие закладное МН-4 3.820.1-73-07.03 Сетка арматурная С-26, С-27 3.820.1-73-07.04 Сетка арматурная С-28, С-31, С-30, С-33 3.820.1-73-07.05 Сетка арматурная С-29 3.820.1-73-07.06 Сетка арматурная С-32 3.820.1-73-08.00 ФЧ Г-образная конструкция Г30.20-1-1, Г30.20-1-2, Г30.20-2-1, Г30.20-2-2. Опалубочный чертеж 3.820.1-73-08.00 Г-образная конструкция Г30.20-1-1, Г30.20-1-2, Г30.20-2-1, Г30.20-2-2. Сборочный чертеж 3.820.1-73-08.01 Петля строповочная ПС-10 3.820.1-73-08.02 Петля строповочная ПС-11 3.820.1-73-08.03 Изделие закладное МН-5 3.820.1-73-08.04 Сетка арматурная С-34, С-35 3.820.1-73-08.06 Сетка арматурная С-37 3.820.1-73-08.05 Сетка арматурная С-36, С-38, С-39, С-41 3.820.1-73-08.07 Сетка арматурная С-40 3.820.1-73-09.02 Сетка арматурная С-45, С-46, С-47 3.820.1-73-09.00 ФЧ Г-образная конструкция Г15.30-1*, Г15.30-2*, Г15.30-3*. Опалубочный чертеж 3.820.1-73-09.00 Г-образная конструкция Г15.30-1*, Г15.30-2*, Г15.30-3*. Сборочный чертеж 3.820.1-73-09.01 Сетка арматурная С-42, С-43, С-44 3.820.1-73-10.00 ФЧ Г-образная конструкция Г20.30-1*, Г20.30-2*. Опалубочный чертеж 3.820.1-73-10.00 Г-образная конструкция Г20.30-1*, Г20.30-2*. Сборочный чертеж 3.820.1-73-10.01 Сетка арматурная С-48, С-49 3.820.1-73-10.02 Сетка арматурная С-50, С-51 3.820.1-73-11.02 Сетка арматурная С-54, С-55 3.820.1-73-11.00 ФЧ Г-образная конструкция Г25.20-1*, Г25.20-2*. Опалубочный чертеж 3.820.1-73-11.00 Г-образная конструкция Г25.20-1*, Г25.20-2*. Сборочный чертеж 3.820.1-73-11.01 Сетка арматурная С-52, С-53 3.820.1-73-12.00 ФЧ Г-образная конструкция Г30.20-1*, Г30.20-2*. Опалубочный чертеж 3.820.1-73-12.00 Г-образная конструкция Г30.20-1*, Г30.20-2*. Сборочный чертеж 3.820.1-73-12.01 Сетка арматурная С-56, С-57 3.820.1-73-12.02 Сетка арматурная С-58, С-59 3.820.1-73-13.01 Петля строповочная ПС-12, ПС-13 3.820.1-73-13.00 ФЧ Г-образная конструкция Г20.20-1, Г20.20-2, Г25.20-3-1, Г25.20-3-2, Г30.20-3-1, Г30.20-3-2. Опалубочный чертеж 3.820.1-73-13.00 Г-образная конструкция Г20.20-1, Г20.20-2, Г25.20-3-1, Г25.20-3-2, Г30.20-3-1, Г30.20-3-2. Сборочный чертеж 3.820.1-73-13.02 Изделие закладное МН-6 3.820.1-73-13.03 Изделие закладное МН-7 3.820.1-73-13.04 Сетка арматурная С-60, С-61 3.820.1-73-13.08 Петля строповочная ПС-14 3.820.1-73-13.05 Сетка арматурная С-62, С-65, С-68 3.820.1-73-13.06 Сетка арматурная С-63, С-66, С-69 3.820.1-73-13.07 Сетка арматурная С-64, С-67, С-70 3.820.1-73-13.09 Сетка арматурная С-71, С-74, С-77 3.820.1-73-13.10 Сетка арматурная С-72, С-75, С-78 3.820.1-73-13.11 Сетка арматурная С-73, С-76, С-79 3.820.1-73-14.00 ФЧ Г-образная конструкция НГ15, НГ15а. Опалубочный чертеж 3.820.1-73-14.00 Г-образная конструкция НГ15, НГ15а. Сборочный чертеж 3.820.1-73-14.01 Петля строповочная ПС-15 3.820.1-73-14.02 Сетка арматурная С-80, С-81 3.820.1-73-14.03 Сетка арматурная С-82, С-83 3.820.1-73-15.00 ФЧ Г-образная конструкция НГ20, НГ20а. Опалубочный чертеж 3.820.1-73-15.00 Г-образная конструкция НГ20, НГ20а. Сборочный чертеж 3.820.1-73-15.01 Петля строповочная ПС-16 3.820.1-73-15.02 Сетка арматурная С-84, С-85 3.820.1-73-15.03 Сетка арматурная С-86, С-87 3.820.1-73-16.00 ФЧ Г-образная конструкция НГ25-1, НГ25а-1, НГ25-2, НГ25а-2. Опалубочный чертеж 3.820.1-73-16.00 Г-образная конструкция НГ25-1, НГ25а-1, НГ25-2, НГ25а-2. Сборочный чертеж 3.820.1-73-16.01 Сетка арматурная С-88 3.820.1-73-16.02 Сетка арматурная С-89, С-91, С-93, С-94 3.820.1-73-17.01 Сетка арматурная С-95 3.820.1-73-16.03 Сетка арматурная С-90, С-92 3.820.1-73-17.00 ФЧ Г-образная конструкция НГ30-1, НГ30а-1, НГ30-2, НГ30а-2. Опалубочный чертеж 3.820.1-73-17.00 Г-образная конструкция НГ30-1, НГ30а-1, НГ30-2, НГ30а-2. Сборочный чертеж 3.820.1-73-17.02 Сетка арматурная С-96, С-98, С-100, С-101 3.820.1-73-17.03 Сетка арматурная С-97, С-99 3.820.1-73-00.00 РС Ведомость расхода стали |
| Разработан: | Союзводпроект Минводстроя СССР |
| Утверждён: | 10.05.1989 Минводхоз СССР (USSR Minvodkhoz 803) |
| Расположен в: | |
| Заменяет собой: |



























































































