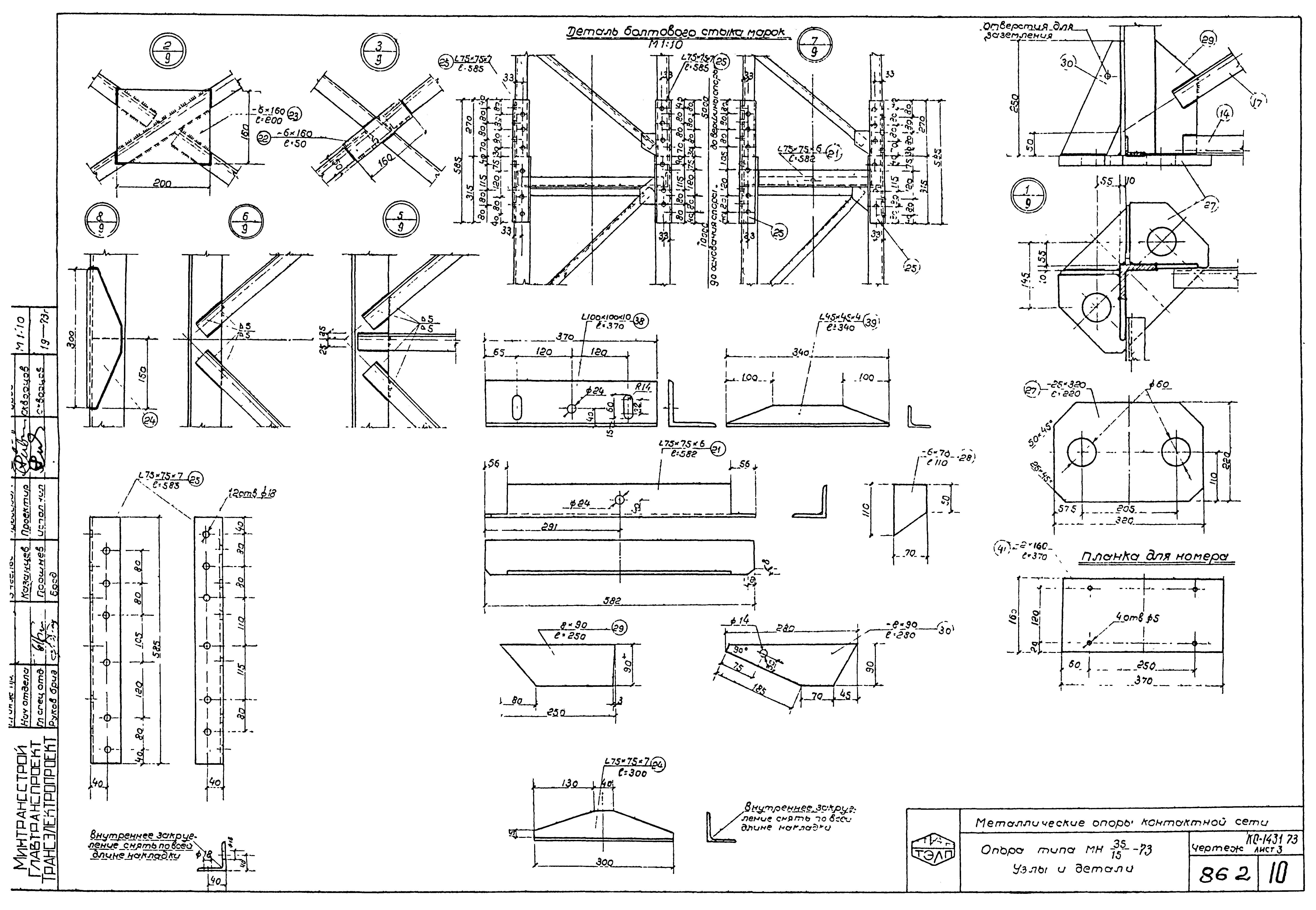
Скачать Типовой проект 3.501-51 Металлические опоры контактной сети. Рабочие чертежиДата актуализации: 10.08.2017 Типовой проект 3.501-51
Металлические опоры контактной сети. Рабочие чертежиОбозначение: | Типовой проект 3.501-51 | Обозначение англ: | 3.501-51 | Статус: | не определен законодательством | Название рус.: | Металлические опоры контактной сети. Рабочие чертежи | Дата добавления в базу: | 01.09.2013 | Дата актуализации: | 05.05.2017 | Дата введения: | 01.03.1973 | Разработан: | Трансэлектропроект МПС
| Утверждён: | 02.04.1969 МПС (Ministry of Railroads 106 ЦЭТ-10)
| Расположен в: |
|
                                          
|