| ||||||||||||||||||||||||||
Скачать Серия 3.504.1-24 Выпуск 0. Материалы для проектированияДата актуализации: 10.08.2017
|
| Обозначение: | Серия 3.504.1-24 |
| Обозначение англ: | Series 3.504.1-24 |
| Статус: | не определен законодательством |
| Название рус.: | Выпуск 0. Материалы для проектирования |
| Дата добавления в базу: | 01.09.2013 |
| Дата актуализации: | 05.05.2017 |
| Дата введения: | 01.04.1987 |
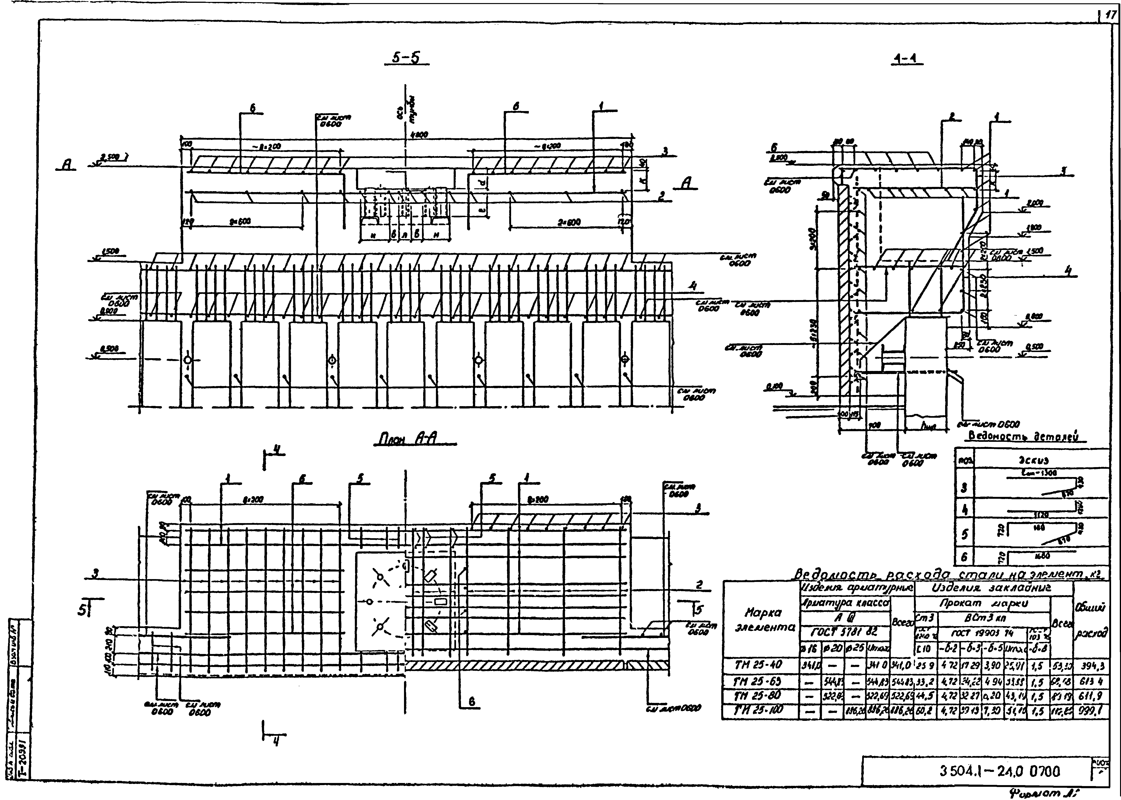
| Оглавление: | 3.504.1-24 -0 0000 ПЗ Пояснительная записка 3.504.1-24 -0 0100 План, разрез 1-1, узел А 3.504.1-24 -0 0200 Монтажные схемы анкерных тяг 3.504.1-24 -0 0300 Лицевой распределительный пояс. Стык. Пример решения 3.504.1-24 -0 0400 Тыловой распределительный пояс. Стык. Пример решения 3.504.1-24 -0 0500 Распределительная балка РБ при анкеровке лицевой стенки за анкерную плиту АПШ. Пример решения 3.504.1-24 -0 0600 Железобетонная надстройка Н1 3.504.1-24 -0 0700 Тумбовый массив ТМ25 3.504.1-24 -0 0800 Железобетонная надстройка Н2 3.504.1-24 -0 0900 Тумбовый массив ТМ32 3.504.1-24 -0 1000 Железобетонная плита надстройки ПО47.22.1 3.504.1-24 -0 1100 Железобетонная плита надстройки ПО39.22.1 3.504.1-24 -0 1200 Железобетонная плита надстройки ПК31.29.4 3.504.1-24 -0 1300 Железобетонная плита надстройки ПК31.29.4-с 3.504.1-24 -0 1400 Железобетонная плита надстройки ПТ31.21.2 3.504.1-24 -0 1500 Железобетонная плита надстройки ПВ31.9.2 3.504.1-24 -0 1600 Железобетонная плита надстройки ПВ31.9.2-л 3.504.1-24 -0 1700 Стык анкерных тяг на накладках |
| Разработан: | ЛенморНИИпроект |
| Утверждён: | 20.06.1988 Министерство морского флота СССР (USSR Ministry of the Merchant Marine ) |
| Расположен в: |



































