| ||||||||||||||||||||||||||||
Скачать Серия 3.503.1-85 Выпуск 0. Материалы для проектированияДата актуализации: 10.08.2017
|
| Обозначение: | Серия 3.503.1-85 |
| Обозначение англ: | Series 3.503.1-85 |
| Статус: | не определен законодательством |
| Название рус.: | Выпуск 0. Материалы для проектирования |
| Дата добавления в базу: | 01.09.2013 |
| Дата актуализации: | 05.05.2017 |
| Дата введения: | 01.07.1988 |
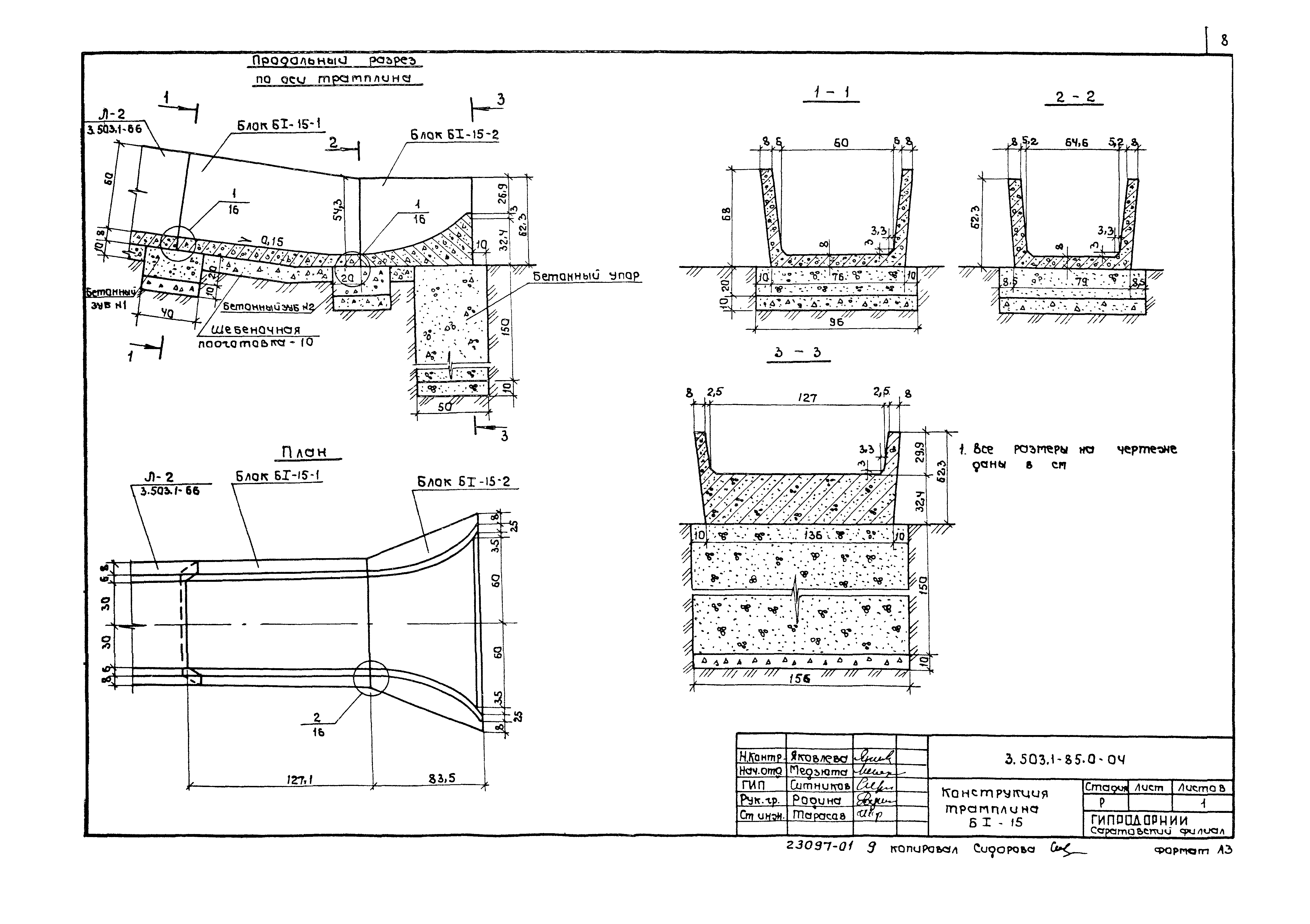
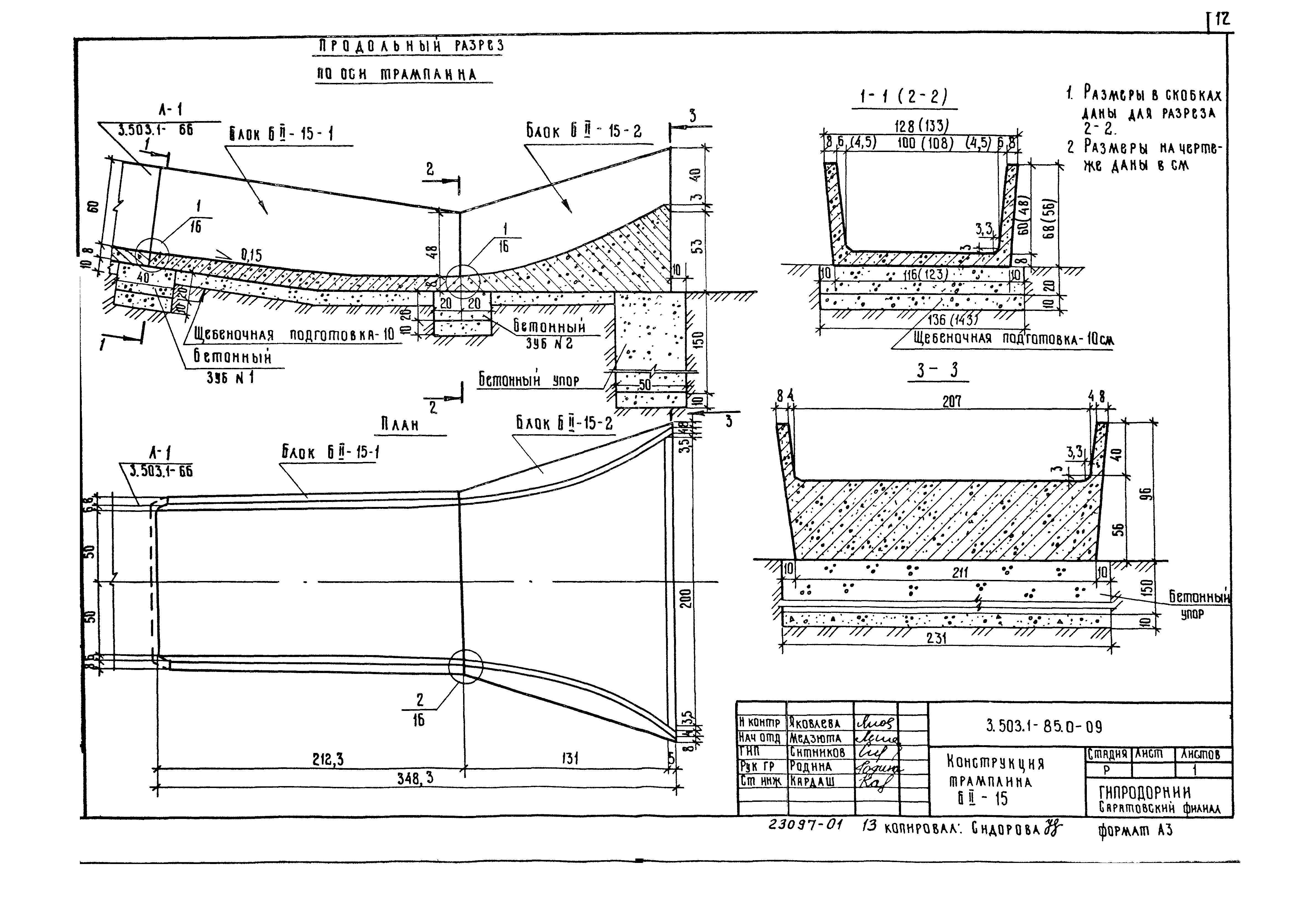
| Оглавление: | 3.503.1-85.0-00ПЗ Пояснительная записка 3.503.1-85.0-01 Схема быстротока с рассеивающим трамплином 3.503.1-85.0-02 Таблица подбора трамплина 3.503.1-85.0-03 Таблица расхода материалов на трамплины 3.503.1-85.0-04 Конструкция трамплина БI-15 3.503.1-85.0-05 Таблица объемов работ на трамплин типа БI-15 3.503.1-85.0-06 Таблица объемов работ на трамплин типа БI-30 3.503.1-85.0-07 Конструкция трамплина БI-30 3.503.1-85.0-08 Конструкция трамплина БI-50 3.503.1-85.0-09 Конструкция трамплина БII-15 3.503.1-85.0-10 Таблица объемов работ на трамплин типа БII-15 3.503.1-85.0-11 Таблица объемов работ на трамплин типа БII-30 3.503.1-85.0-12 Конструкция трамплина БII-30 3.503.1-85.0-13 Конструкция трамплина БII-50 3.503.1-85.0-14 Таблица объемов работ на трамплин типа БI-50 3.503.1-85.0-15 Таблица объемов работ на трамплин типа БII-50 3.503.1-85.0-16 Схема соединений элементов трамплинов |
| Разработан: | Саратовский филиал Гипродорнии |
| Утверждён: | 01.06.1987 Министерство автомобильных дорог РСФСР (14) |
| Издан: | ЦИТП Госстроя СССР (CITP, Gosstroy (USSR) 1989 г. ) |
| Расположен в: |


















