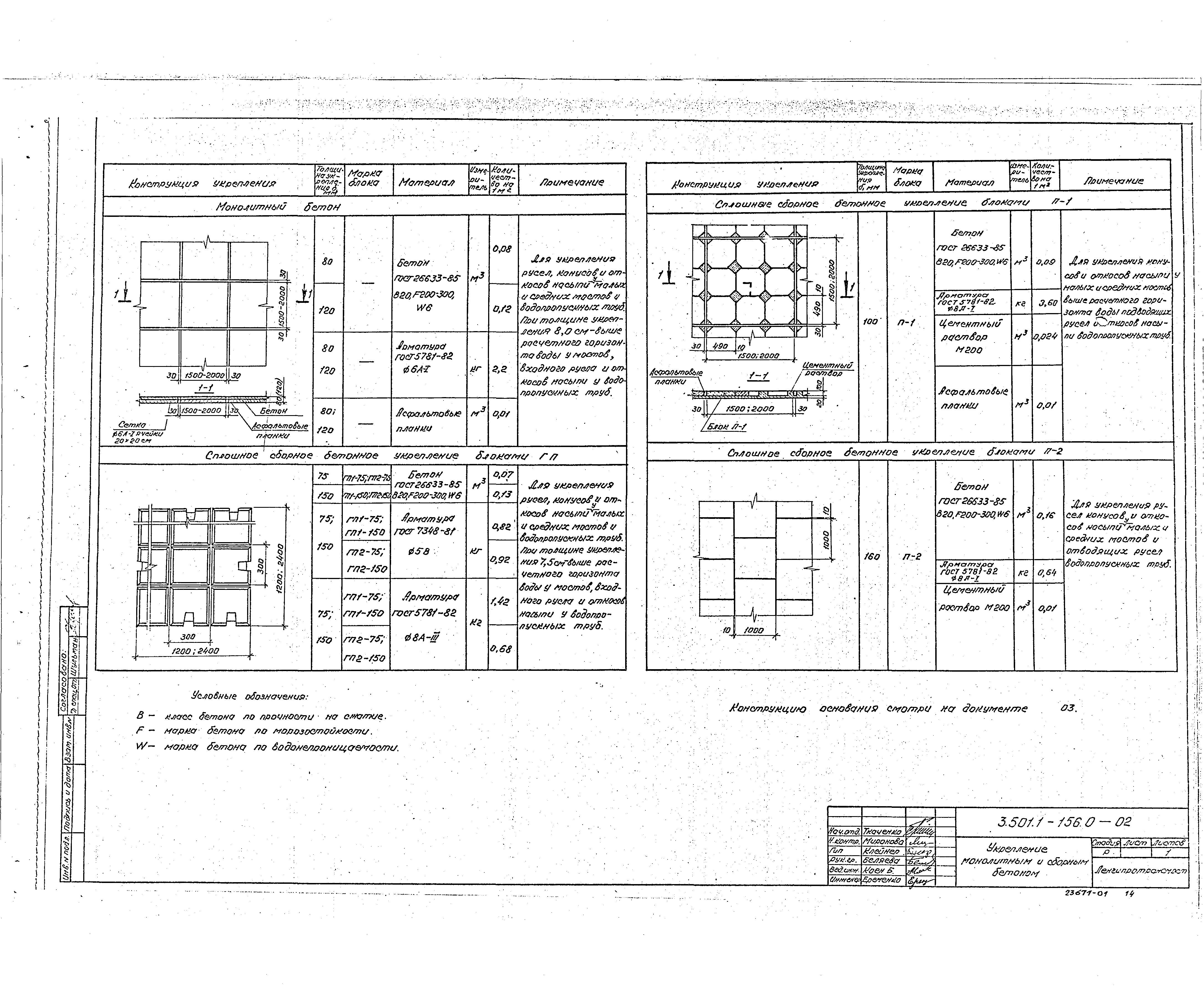
Скачать Серия 3.501.1-156 Выпуск 0. Конструкции укреплений. Материалы для проектированияДата актуализации: 10.08.2017 Серия 3.501.1-156
Выпуск 0. Конструкции укреплений. Материалы для проектированияОбозначение: | Серия 3.501.1-156 | Обозначение англ: | Series 3.501.1-156 | Статус: | заменен | Название рус.: | Выпуск 0. Конструкции укреплений. Материалы для проектирования | Дата добавления в базу: | 01.09.2013 | Дата актуализации: | 05.05.2017 | Дата введения: | 08.08.2012 | Разработан: | Ленгипротрансмост
| Утверждён: | 01.09.1988 Минтрансстрой СССР (USSR Mintransstroy АВ-558)
| Издан: | ЦИТП Госстроя СССР (CITP, Gosstroy (USSR) 1990 г. )
| Расположен в: |
| Чем заменён: | - Шифр 2337 «Укрепление русел, конусов и откосов насыпей у малых и средних мостов и водопропускных труб»
|
                                                
|