Информационная система
«Ёшкин Кот»

Скачать базу одним архивом
Скачать обновления
История создания базы
Карта сайта

Скачать Серия 3.501.1-177.93 Выпуск 0-1. Трубы для автомобильных дорог в умеренных и суровых климатических условиях. Материалы для проектирования

Дата актуализации: 10.08.2017

Серия 3.501.1-177.93

Выпуск 0-1. Трубы для автомобильных дорог в умеренных и суровых климатических условиях. Материалы для проектирования

Обозначение: Серия 3.501.1-177.93
Обозначение англ: Series 3.501.1-177.93
Статус:заменен
Название рус.:Выпуск 0-1. Трубы для автомобильных дорог в умеренных и суровых климатических условиях. Материалы для проектирования
Дата добавления в базу:01.09.2013
Дата актуализации:05.05.2017
Дата введения:25.12.2008
Оглавление:3.501.1-177.93.0-1-ПЗ Пояснительная записка
3.501.1-177.93.0-1-01НИ Номенклатура блоков
3.501.1-177.93.0-1-02 Нагрузки на звенья труб
3.501.1-177.93.0-1-03 Нагрузки на звенья труб. Скальные основания и свайные фундаменты
3.501.1-177.93.0-1-04 Нагрузки на звенья труб для особых условий работы
3.501.1-177.93.0-1-05 Нагрузки на повышенные звенья труб
3.501.1-177.93.0-1-06 Подбор сечений звеньев труб отв. 2,0 м
3.501.1-177.93.0-1-07 Подбор сечений звеньев труб отв. 2,5 м
3.501.1-177.93.0-1-08 Подбор сечений звеньев труб отв. 3,0 м
3.501.1-177.93.0-1-09 Подбор сечений звеньев труб отв. 4,0 м
3.501.1-177.93.0-1-10 Подбор сечений повышенных звеньев труб отв. 2,0 и 2,5 м
3.501.1-177.93.0-1-11 Условия применения фундаментов. Расчетные давления по подошве фундамента
3.501.1-177.93.0-1-12 Гидравлические расчеты труб с нормальным и повышенным звеном
3.501.1-177.93.0-1-13 Графики водопропускной способности труб
3.501.1-177.93.0-1-14 Схема засыпки трубы
3.501.1-177.93.0-1-15 Конструкция гидроизоляции
3.501.1-177.93.0-1-16 Защитная стенка из асбестоцементных плит
3.501.1-177.93.0-1-17 Укрепление монолитным бетоном. Конструкция укреплений
3.501.1-177.93.0-1-18 Укрепление монолитным бетоном. Ведомость объемов работ
3.501.1-177.93.0-1-19 Укрепление сборными блоками П-1. Конструкция укреплений
3.501.1-177.93.0-1-20 Укрепление сборными блоками П-1. Ведомость объемов работ
3.501.1-177.93.0-1-21 Укрепление сборными блоками ГП. Конструкция укреплений
3.501.1-177.93.0-1-22 Укрепление сборными блоками ГП. Ведомость объемов работ
3.501.1-177.93.0-1-23 Укрепление каменной наброской. Конструкция укреплений
3.501.1-177.93.0-1-24 Укрепление каменной наброской. Ведомость объемов работ
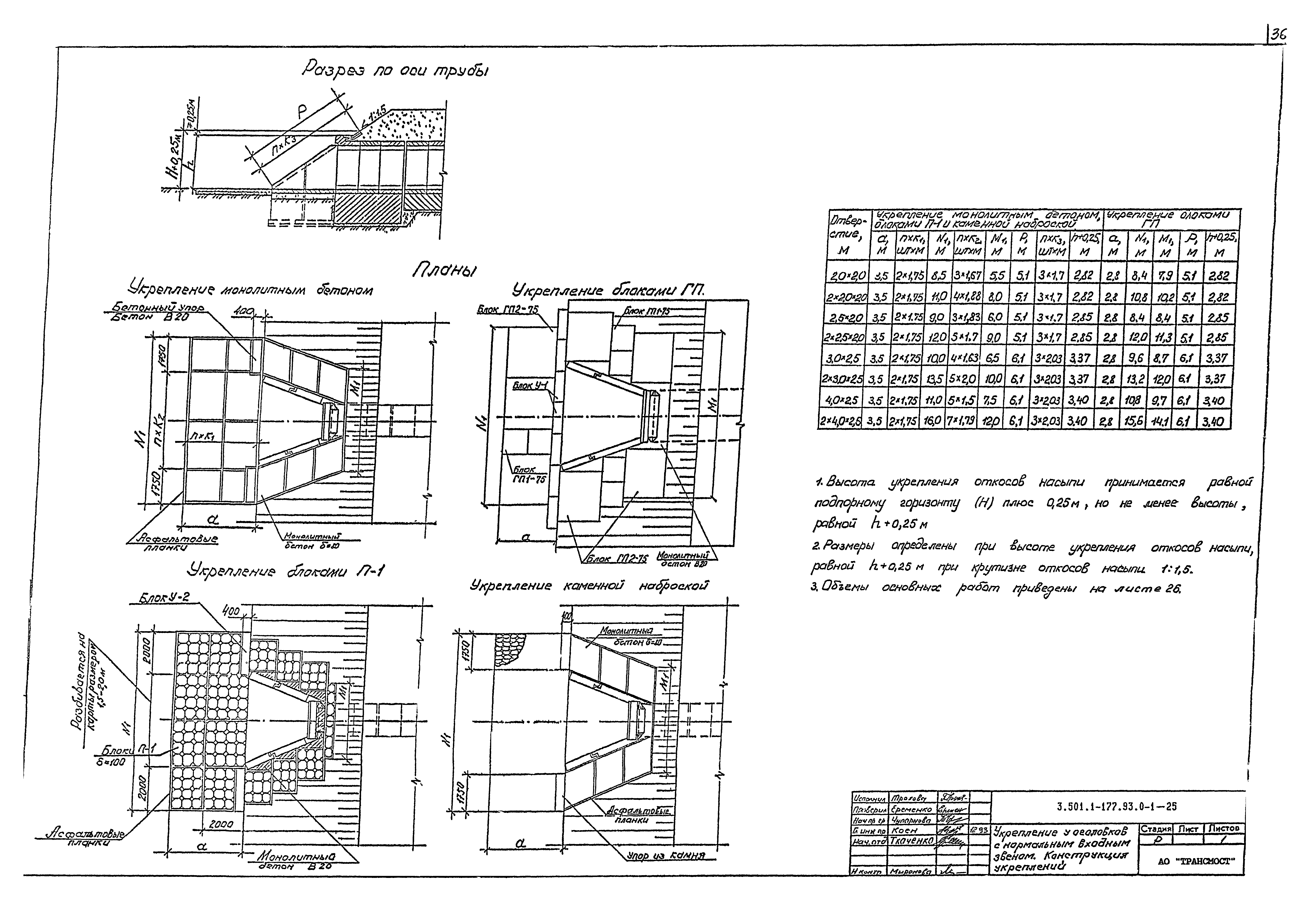
3.501.1-177.93.0-1-25 Укрепление у оголовков с нормальным входным звеном. Конструкция укреплений
3.501.1-177.93.0-1-26 Укрепление у оголовков с нормальным входным звеном. Ведомость объемов работ
3.501.1-177.93.0-1-27 Конструкция конца укрепления
3.501.1-177.93.0-1-28 Ведомость объемов работ на 1 п. м средней части труб
3.501.1-177.93.0-1-29 Ведомость объемов работ на оголовок с нормальным и повышенным звеном
3.501.1-177.93.0-1-30 Средняя часть трубы
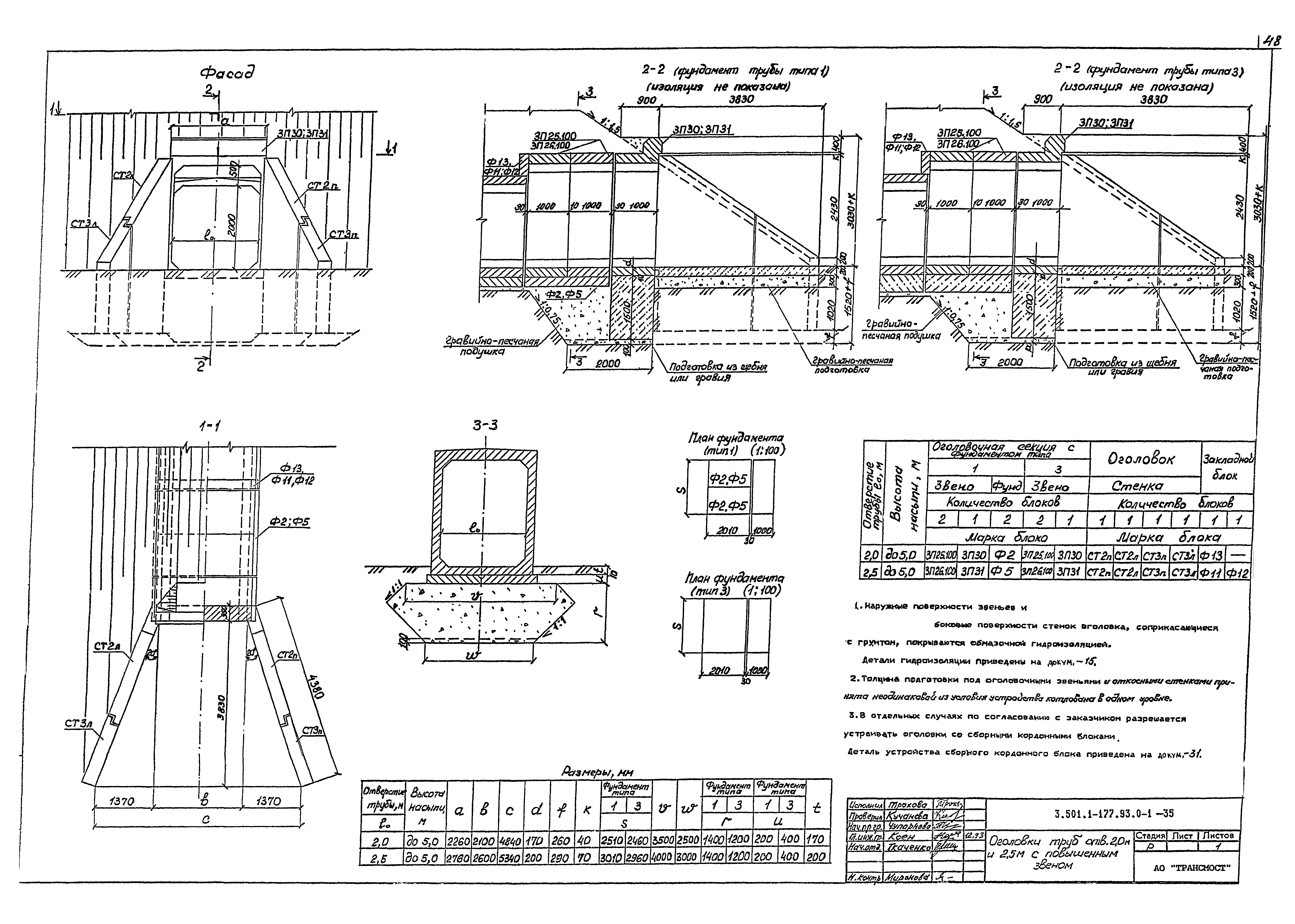
3.501.1-177.93.0-1-31 Оголовки труб отв. 2,0 и 2,5 м с нормальным звеном
3.501.1-177.93.0-1-32 Оголовки труб отв. 3,0 и 4,0 м с нормальным звеном
3.501.1-177.93.0-1-33 Оголовки труб отв. 2х2,0 и 2х2,5 м с нормальным звеном
3.501.1-177.93.0-1-34 Оголовки труб отв. 2х3,0 и 2х4,0 м с нормальным звеном
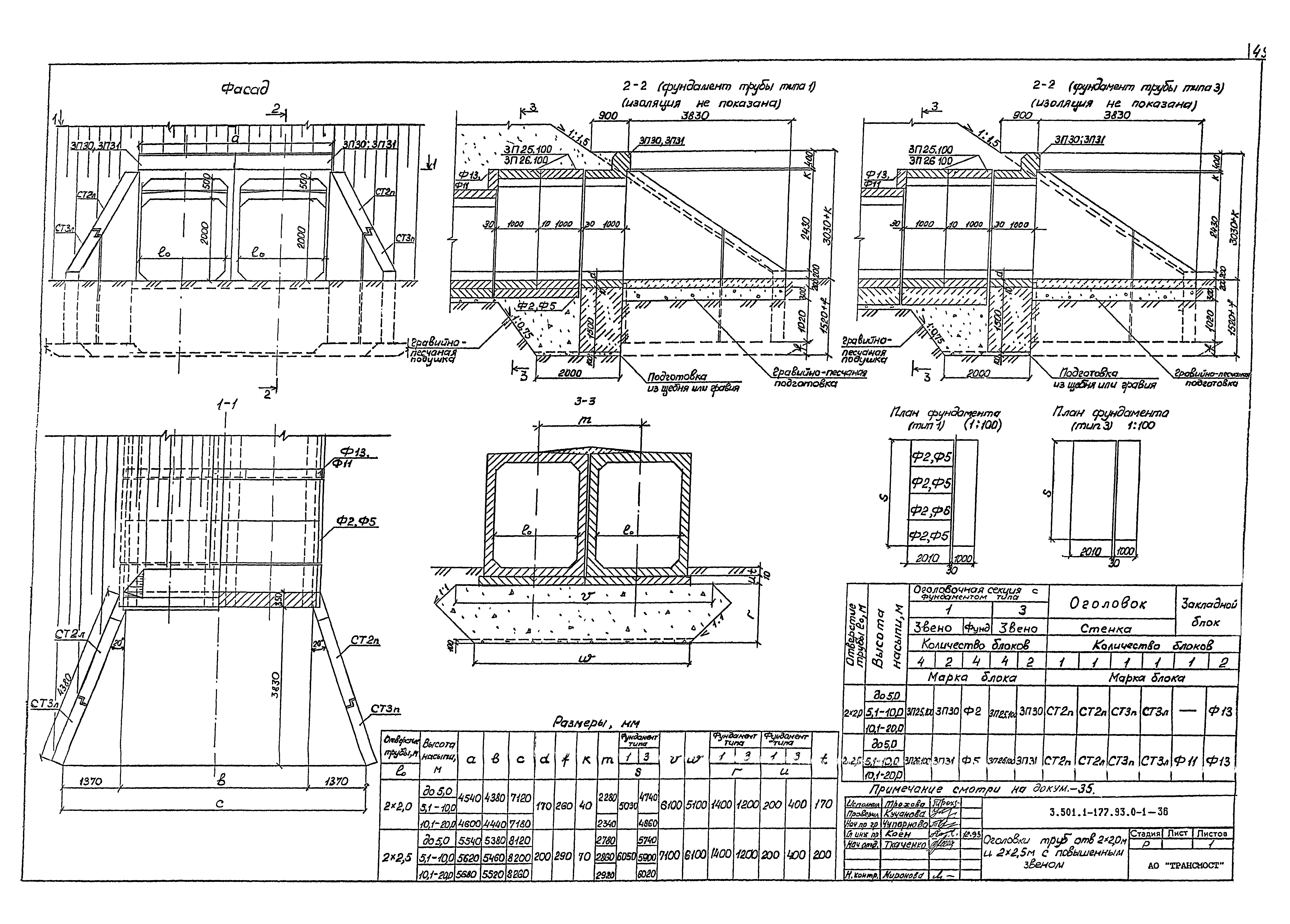
3.501.1-177.93.0-1-35 Оголовки труб отв. 2,0 и 2,5 м с повышенным звеном
3.501.1-177.93.0-1-36 Оголовки труб отв. 2х2,0 и 2х2,5 м с повышенным звеном
3.501.1-177.93.0-1-37 Пример конструкции трубы отв. 2,0 м с фундаментом типа 1
3.501.1-177.93.0-1-38 Пример конструкции трубы отв. 2х2,0 м с фундаментом типа 1
3.501.1-177.93.0-1-39 Пример конструкции трубы отв. 4,0 м с фундаментом типа 3
3.501.1-177.93.0-1-40 Пример оголовка трубы отв. 2,0 м с повышенным звеном при глубине промерзания 2,0 м
Разработан: АО Трансмост
Утверждён:24.07.1990 Минтрансстрой (Mintransstroy АВ-294)
Расположен в:Техническая документация Строительство Справочные документы Типовые строительные конструкции, изделия и узлы Общероссийский строительный каталог Строительные конструкции, изделия и узлы зданий и сооружений для всех видов строительства Конструкции и изделия сооружений и оборудования зданий Надземные сооружения Конструкции и сооружения транспорта Дорожные водопропускные и водоотводные сооружения
Заменяет собой:
Чем заменён:
  • Шифр 2119 «Трубы водопропускные железобетонные прямоугольные сборные для железных и автомобильных дорог»
Серия 3.501.1-177.93Серия 3.501.1-177.93Серия 3.501.1-177.93Серия 3.501.1-177.93Серия 3.501.1-177.93Серия 3.501.1-177.93Серия 3.501.1-177.93Серия 3.501.1-177.93Серия 3.501.1-177.93Серия 3.501.1-177.93Серия 3.501.1-177.93Серия 3.501.1-177.93Серия 3.501.1-177.93Серия 3.501.1-177.93Серия 3.501.1-177.93Серия 3.501.1-177.93Серия 3.501.1-177.93Серия 3.501.1-177.93Серия 3.501.1-177.93Серия 3.501.1-177.93Серия 3.501.1-177.93Серия 3.501.1-177.93Серия 3.501.1-177.93Серия 3.501.1-177.93Серия 3.501.1-177.93Серия 3.501.1-177.93Серия 3.501.1-177.93Серия 3.501.1-177.93Серия 3.501.1-177.93Серия 3.501.1-177.93Серия 3.501.1-177.93Серия 3.501.1-177.93Серия 3.501.1-177.93Серия 3.501.1-177.93Серия 3.501.1-177.93Серия 3.501.1-177.93Серия 3.501.1-177.93Серия 3.501.1-177.93Серия 3.501.1-177.93Серия 3.501.1-177.93Серия 3.501.1-177.93Серия 3.501.1-177.93Серия 3.501.1-177.93Серия 3.501.1-177.93Серия 3.501.1-177.93Серия 3.501.1-177.93Серия 3.501.1-177.93Серия 3.501.1-177.93Серия 3.501.1-177.93Серия 3.501.1-177.93Серия 3.501.1-177.93Серия 3.501.1-177.93Серия 3.501.1-177.93Серия 3.501.1-177.93Серия 3.501.1-177.93Серия 3.501.1-177.93Серия 3.501.1-177.93

© 2013 Ёшкин Кот :-) Карта сайта