| ||||||||||||||||||||||||||
Скачать Серия 3.507-1 Выпуск II. Сборные железобетонные элементы. Рабочие чертежиДата актуализации: 10.08.2017
|
| Обозначение: | Серия 3.507-1 |
| Обозначение англ: | Series 3.507-1 |
| Статус: | cправочные материалы, мп, тпр |
| Название рус.: | Выпуск II. Сборные железобетонные элементы. Рабочие чертежи |
| Дата добавления в базу: | 01.09.2013 |
| Дата актуализации: | 05.05.2017 |
| Дата введения: | 17.03.1999 |
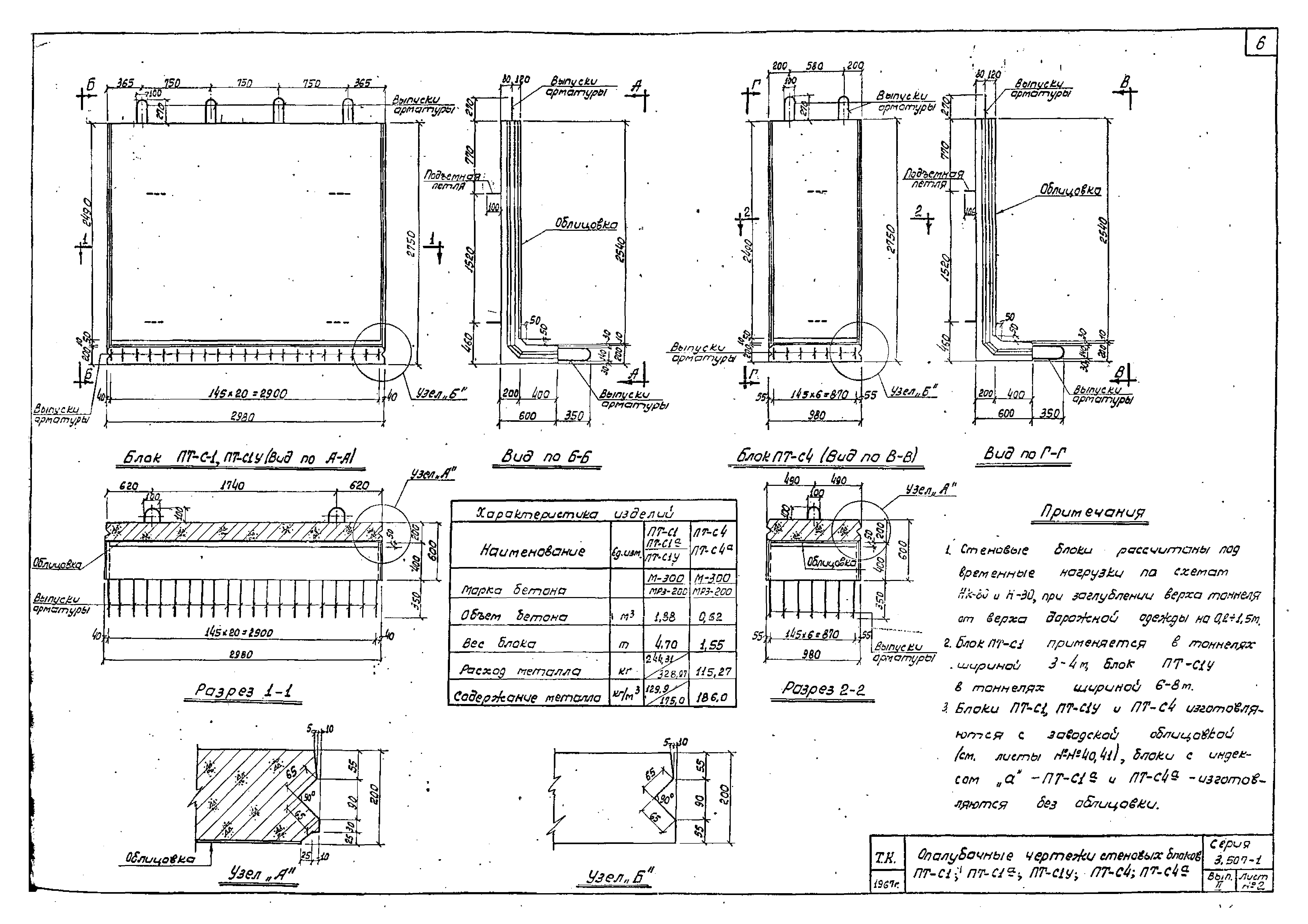
| Оглавление: | Содержание альбома Пояснительная записка Схемы испытаний сборных железобетонных элементов Опалубочные чертежи стеновых блоков ПТ-С1, ПТ-С1а, ПТ-С1у, ПТ-С-4, ПТ-С4а Опалубочные чертежи стеновых блоков ПТ-С2 и ПТ-С3 Опалубочный чертеж стенового блока ПТ-СД Арматурный чертеж стенового блока ПТ-С1 Арматурный чертеж стенового блока ПТ-С1у Арматурный чертеж стенового блока ПТ-С2 Арматурный чертеж стенового блока ПТ-С3 Арматурный чертеж стенового блока ПТ-С4 Арматурный чертеж стенового блока ПТ-СД Опалубочный чертеж плиты перекрытия ПТ-П1 Опалубочный чертеж плиты перекрытия ПТ-П2 Опалубочный чертеж плиты перекрытия ПТ-П3 Опалубочный чертеж плиты перекрытия ПТ-П4 Опалубочный чертеж плиты перекрытия ПТ-П5 Опалубочный чертеж плиты перекрытия ПТ-П6 Арматурный чертеж плиты перекрытия ПТ-П1 Арматурный чертеж плиты перекрытия ПТ-П2 Арматурный чертеж плиты перекрытия ПТ-П3 Арматурный чертеж плиты перекрытия ПТ-П4 Арматурный чертеж плиты перекрытия ПТ-П5 Арматурный чертеж плиты перекрытия ПТ-П6 Опалубочные чертежи плит днища ПТ-Д1 и ПТ-Д2 Опалубочные чертежи плит днища ПТ-Д3 и ПТ-Д4 Арматурный чертеж плиты днища ПТ-Д1 Арматурный чертеж плиты днища ПТ-Д2 Арматурный чертеж плиты днища ПТ-Д3 Арматурный чертеж плиты днища ПТ-Д4 Опалубочный чертеж лестничного марша Арматурный чертеж лестничного марша ПТ-М1 Арматурный чертеж лестничного марша ПТ-М2 Арматурный чертеж лестничного марша ПТ-М3 Опалубочный чертеж фундаментного башмака ПТ-Ф1 Арматурный чертеж фундаментного башмака ПТ-Ф1 Опалубочные чертежи колонны ПТ-К1 и ригеля ПТ-Б1 Арматурные чертежи колонны ПТ-К1 и ригеля ПТ-Б1 Облицовка стенового блока ПТ-С1 Облицовка стеновых блоков ПТ-С2, ПТ-С3, ПТ-С4 Облицовка стенового блока ПТ-СД Опалубочный чертеж объемного элемента ПТ-Р2М Арматурный чертеж объемного элемента ПТ-Р2М |
| Разработан: | Мосинжпроект |
| Утверждён: | 11.12.1967 Мосинжпроект (Mosinzhproject 194) |
| Расположен в: |
















































