| ||||||||||||||||||||||||||||||
Скачать Серия 3.503.1-89 Выпуск 1. Указания по применению. Узлы. Рабочие чертежиДата актуализации: 10.08.2017
|
| Обозначение: | Серия 3.503.1-89 |
| Обозначение англ: | Series 3.503.1-89 |
| Статус: | не определен законодательством |
| Название рус.: | Выпуск 1. Указания по применению. Узлы. Рабочие чертежи |
| Дата добавления в базу: | 01.09.2013 |
| Дата актуализации: | 05.05.2017 |
| Дата введения: | 01.03.1990 |
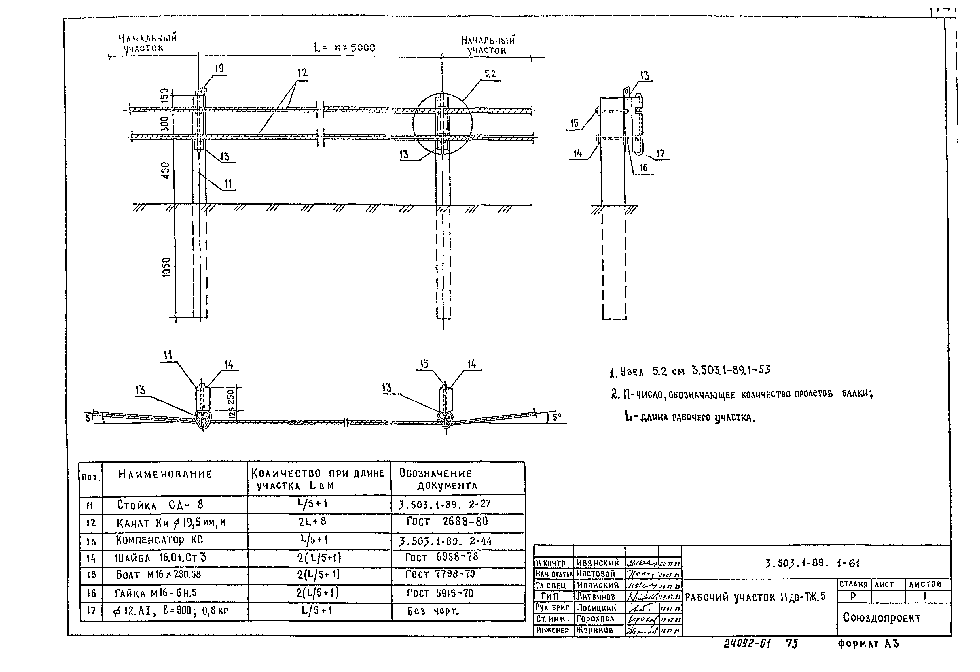
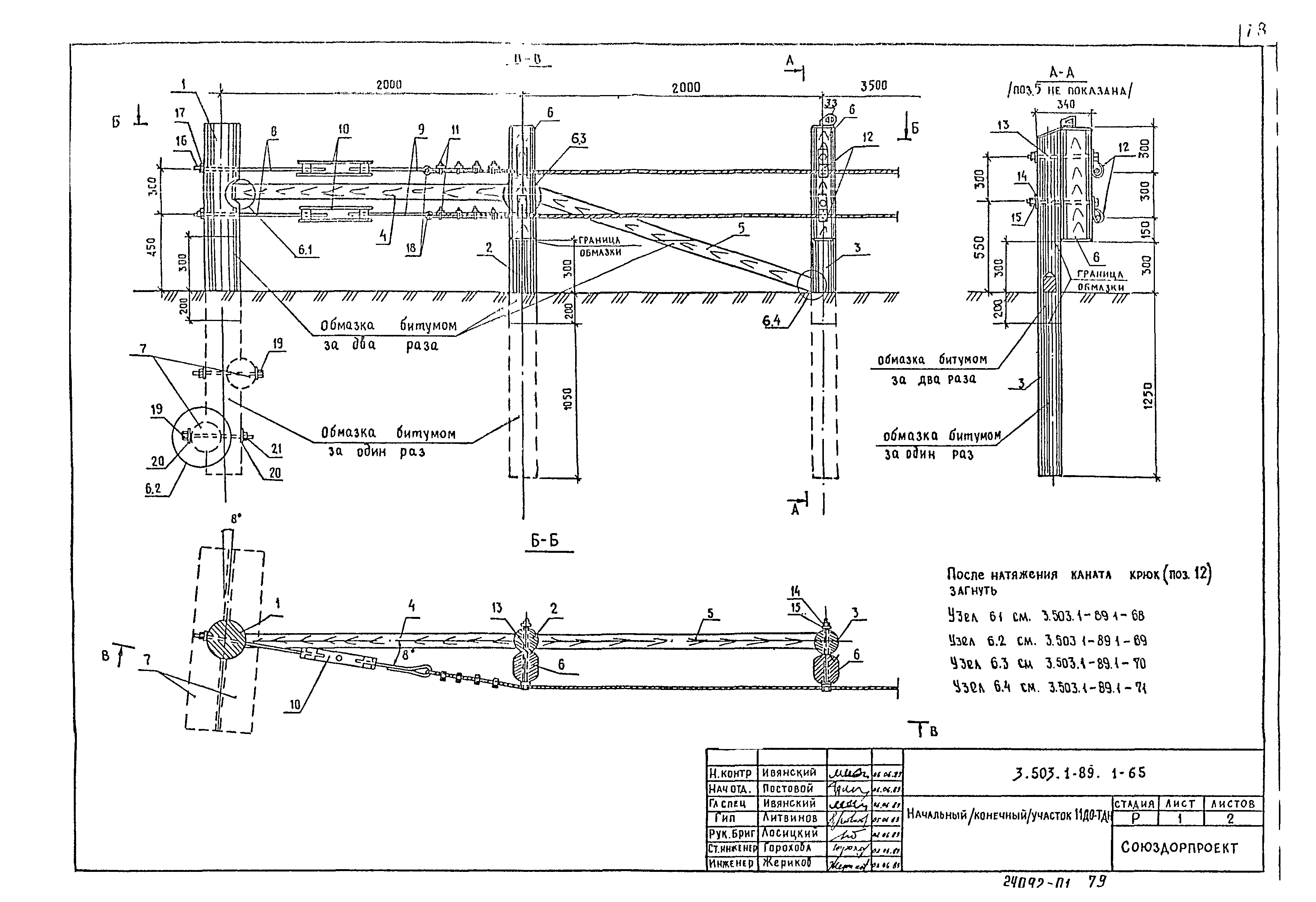
| Оглавление: | 3.503.1-89.1-ПЗ Пояснительная записка 3.503.1-89.1-1 Ограждения типа 11ДО-ММ. Общий вид 3.503.1-89.1-2 Ограждения типа 11ДО-ММ. Общий вид. Схема № 1 3.503.1-89.1-3 Ограждения типа 11ДО-ММ. Общий вид. Схема № 2 3.503.1-89.1-4 Ограждения типа 11ДО-МЖ. Общий вид 3.503.1-89.1-5 Ограждения типа 11ДО-ЖЖ. Общий вид 3.503.1-89.1-6 Ограждения типа 11ДО-ТЖ. Общий вид 3.503.1-89.1-7 Ограждения типа 11ДО-ТД. Общий вид. Схема № 1 3.503.1-89.1-8 Ограждения типа 11ДО-ТД. Общий вид. Схема № 2 3.503.1-89.1-9 Схемы расположения ограждения на обочинах подходов к мостам и путепроводам 3.503.1-89.1-10 Схемы расположения ограждения на разделительной полосе подходов к мостам и путепроводам 3.503.1-89.1-11 Схемы расположения ограждения у опор при отсутствии ограждения на снежных участках 3.503.1-89.1-12 Схемы расположения ограждения у опор на разделительной полосе при наличии ограждений на смежных участках 3.503.1-89.1-13 Схемы расположения ограждения на примыканиях и отмыканиях 3.503.1-89.1-14 Начальный участок 11ДО-ММ.Н. 3.503.1-89.1-15 Рабочий участок 11ДО-ММ.1. 3.503.1-89.1-16 Рабочий участок 11ДО-ММ.2. 3.503.1-89.1-17 Рабочий участок 11ДО-ММ.3. 3.503.1-89.1-18 Рабочий участок 11ДО-ММ.4. 3.503.1-89.1-19 Конечный участок 11ДО-ММ.К. 3.503.1-89.1-20 Фрагмент начального участка 11ДО-ММ.Н. 3.503.1-89.1-21 Фрагмент рабочего участка 11ДО-ММ.S 3.503.1-89.1-22 Фрагмент конечного участка 11ДО-ММ.К 3.503.1-89.1-23 Узел 1.1. 3.503.1-89.1-24 Узел 1.1.* 3.503.1-89.1-25 Узел 1.2. 3.503.1-89.1-26 Узел 1.2.* 3.503.1-89.1-27 Узел 1.3. 3.503.1-89.1-28 Узел 1.4. 3.503.1-89.1-29 Узел 1.5. 3.503.1-89.1-30 Узел 1.6. 3.503.1-89.1-31 Начальный участок 11ДД-ММ.Н. 3.503.1-89.1-32 Рабочий участок 11ДД-ММ.2. 3.503.1-89.1-33 Рабочий участок 11ДД-ММ.4. 3.503.1-89.1-34 Переходной участок 11ДД-ММ.П2. 3.503.1-89.1-35 Переходной участок 11ДД-ММ.П4. 3.503.1-89.1-36 Фрагмент начального участка 11ДД-ММ.Н 3.503.1-89.1-37 Фрагмент начального участка 11ДД-ММ.2. 3.503.1-89.1-38 Фрагмент рабочего участка 11ДД-ММ.4. 3.503.1-89.1-39 Фрагмент переходного участка 11ДД-ММ.П2. 3.503.1-89.1-40 Фрагмент переходного участка 11ДД-ММ.П4. 3.503.1-89.1-41 Узел 2.1. 3.503.1-89.1-42 Узел 2.2. 3.503.1-89.1-43 Узел 2.2.* 3.503.1-89.1-44 Узел 2.3. 3.503.1-89.1-45 Узел 2.4. 3.503.1-89.1-46 Узел 2.5. 3.503.1-89.1-47 Начальный участок 11ДО-МЖ.Н. 3.503.1-89.1-48 Рабочий участок 11ДО-МЖ.2. 3.503.1-89.1-49 Фрагмент начального участка 11ДО-МЖ.Н. 3.503.1-89.1-50 Фрагмент рабочего участка 11ДО-МЖ.2. 3.503.1-89.1-51 Узел 3.1. 3.503.1-89.1-52 Узел 3.1.* 3.503.1-89.1-53 Узел 3.2. 3.503.1-89.1-54 Начальный участок 11ДО-ЖЖ.Н. 3.503.1-89.1-55 Рабочий участок 11ДО-ЖЖ.1,25. 3.503.1-89.1-56 Рабочий участок 11ДО-ЖЖ.2,25. 3.503.1-89.1-57 Узел 4.1. 3.503.1-89.1-58 Узел 4.2. 3.503.1-89.1-59 Узел 4.3. 3.503.1-89.1-60 Начальный участок 11ДО-ТЖ.Н. 3.503.1-89.1-61 Рабочий участок 11ТО-ТЖ.5. 3.503.1-89.1-62 Узел 5.1. 3.503.1-89.1-63 Узел 5.2. 3.503.1-89.1-64 Вариант узла 5.2 с компенсатором из рессорной стали 3.503.1-89.1-65 Начальный (конечный) участок 11ДО-ТД:Н 3.503.1-89.1-66 Рабочий участок 11ДО-ТД.3,5. 3.503.1-89.1-67 Рабочий участок 11ДО-ТД.3,5. Анкерное устройство. 3.503.1-89.1-68 Узел 6.1. 3.503.1-89.1-69 Узел 6.2. 3.503.1-89.1-70 Узел 6.3 3.503.1-89.1-71 Узел 6.4. 3.503.1-89.1-72 Узел 6.5. 3.503.1-89.1-73 Узел 6.6. 3.503.1-89.1-74 Ограждения типа 11ПО-СЖ. 3.503.1-89.1-75 Узел 7.1. 3.503.1-89.1-76 Железобетонный сигнальный столбик СС-1. Схема расположения 3.503.1-89.1-77 Деревянный сигнальный столбик СС-2. Схема расположения 3.503.1-89.1-78 Ограждения типа 11ДО-ММ. Спецификация. Пример 3.503.1-89.1-79 Ограждения типа 11ДД-ММ. Схема 1. Спецификация. Пример 3.503.1-89.1-80 Ограждения типа 11ДД-ММ. Схема 2. Спецификация. Пример 3.503.1-89.1-81 Ограждения типа 11ДО-МЖ. Спецификация. Пример 3.503.1-89.1-82 Ограждения типа 11ДО-ЖЖ. Спецификация. Пример 3.503.1-89.1-83 Ограждения типа 11ДО-ТЖ. Спецификация. Пример 3.503.1-89.1-84 Ограждения типа 11ДО-ТД. Схема 1. Спецификация. Пример 3.503.1-89.1-85 Ограждения типа 11ДО-ТД. Схема 2. Спецификация. Пример 3.503.1-89.1-86РС Ограждения типа 11ДО-ММ. Ведомость расхода стали. Пример 3.503.1-89.1-87РС Ограждения типа 11ДД-ММ. Схема 1. Ведомость расхода стали. Пример 3.503.1-89.1-88РС Ограждения типа 11ДД-ММ. Схема 2. Ведомость расхода стали. Пример 3.503.1-89.1-89 Ограждения типа 11ДО-МЖ. Ведомость расхода материалов. Пример 3.503.1-89.1-90 Ограждения типа 11ДО-ЖЖ. Ведомость расхода материалов. Пример 3.503.1-89.1-91 Ограждения типа 11ДО-ТЖ. Ведомость расхода материалов. Пример 3.503.1-89.1-92 Ограждения типа 11ДО-ТД. Схема 1. Ведомость расхода материалов. Пример 3.503.1-89.1-93 Ограждения типа 11ДО-ТД. Схема 2. Ведомость расхода материалов. Пример 3.503.1-89.1-94 Ограждения типа 11ПО-СЖ. Спецификация и ведомость расхода материалов. Пример |
| Разработан: | Союздорпроект Минтрансстроя СоюздорНИИ |
| Утверждён: | 04.10.1989 Минтрансстрой СССР (USSR Mintransstroy АВ-463) |
| Принят: | 11.09.1989 МВД СССР (USSR Ministry of Internal Affairs 27/г-1567) |
| Издан: | ЦИТП Госстроя СССР (CITP, Gosstroy (USSR) 1990 г. ) |
| Расположен в: |











































































































