| ||||||||||||||||||||||||||
Скачать Серия 3.501-60 Выпуск 1. Однопролетные мостыДата актуализации: 10.08.2017
|
| Обозначение: | Серия 3.501-60 |
| Обозначение англ: | Series 3.501-60 |
| Статус: | не определен законодательством |
| Название рус.: | Выпуск 1. Однопролетные мосты |
| Дата добавления в базу: | 01.09.2013 |
| Дата актуализации: | 05.05.2017 |
| Дата введения: | 15.07.1971 |
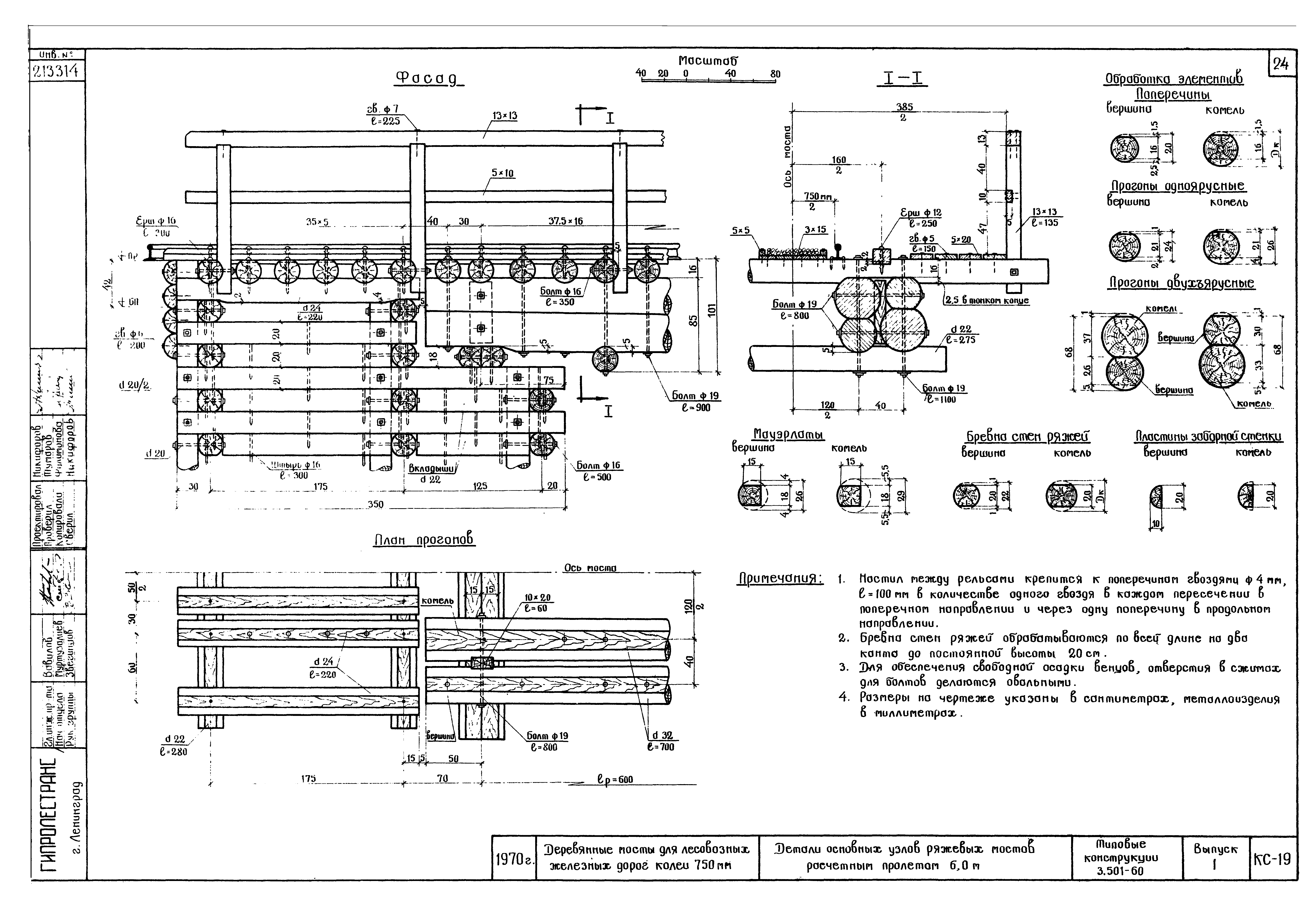
| Оглавление: | Пояснительная записка КС-1 Примеры схем мостов КС-2 Таблицы объемов работ на мосты КС-3 Мосты на свайных опорах расчетным пролетом 1,5 м при высоте насыпи 1,0 и 1,5 м КС-4 Мосты на свайных опорах расчетным пролетом 3,0 м при высоте насыпи 1,0; 1,5 и 2,0 м КС-5 Мосты на свайных опорах расчетным пролетом 3,0 м при высоте насыпи 2,5 и 3,0 м КС-6 Мосты на свайных опорах расчетным пролетом 4,5 м при высоте насыпи 1,0; 1,5 и 2,0 м КС-7 Мосты на свайных опорах расчетным пролетом 4,5 м при высоте насыпи 2,5 м и 3,0 м КС-8 Мосты на рамно-лежневых опорах расчетным пролетом 1,5 м при высоте насыпи 1,0 и 1,5 м КС-9 Мосты на рамно-лежневых опорах расчетным пролетом 3,0 м при высоте насыпи 1,0; 1,5 и 2,0 м КС-10 Мосты на рамно-лежневых опорах расчетным пролетом 3,0 м при высоте насыпи 2,5 и 3,0 м КС-11 Мосты на рамно-лежневых опорах расчетным пролетом 4,5 м при высоте насыпи 1,0; 1,5 и 2,0 м КС-12 Мосты на рамно-лежневых опорах расчетным пролетом 4,5 м при высоте насыпи 2,5 и 3,0 м КС-13 Мосты на ряжевых опорах расчетным пролетом 4,5 м при высоте насыпи 1,0 и 1,5 м КС-14 Мосты на ряжевых опорах расчетным пролетом 6,0 м при высоте насыпи 1,5; 2,0 и 2,5 м КС-15 Мосты на клетках из бревен расчетными пролетами 3,0 и 4,5 м при высоте насыпи 1,0 м КС-16 Мосты на клетках из бревен расчетными пролетами 3,0 и 4,5 м при высоте насыпи 1,5 м КС-17 Детали основных узлов свайных и рамно-лежневых мостов КС-18 Детали основных узлов ряжевых мостов расчетным пролетом 4,5 м КС-19 Детали основных узлов ряжевых мостов расчетным пролетом 6,0 м КС-20 Детали основных узлов мостов на клетках из бревен КС-21 Расчетный лист и рекомендации по погружению свай КС-22 Гидравлические характеристики мостов КС-23 Конструкция мостов на кривых участках пути КС-24 Технико-экономические показатели мостов |
| Разработан: | Гипролестранс |
| Утверждён: | 10.06.1971 Минлеспром СССР (USSR Minlesprom 93) |
| Расположен в: |





























