| ||||||||||||||||||||||||||
Скачать Серия 3.503.5-74.52.86 Выпуск 1. Однопролетные мосты, лотки, трубыДата актуализации: 10.08.2017
|
| Обозначение: | Серия 3.503.5-74.52.86 |
| Обозначение англ: | Series 3.503.5-74.52.86 |
| Статус: | не определен законодательством |
| Название рус.: | Выпуск 1. Однопролетные мосты, лотки, трубы |
| Дата добавления в базу: | 01.09.2013 |
| Дата актуализации: | 05.05.2017 |
| Дата введения: | 01.06.1987 |
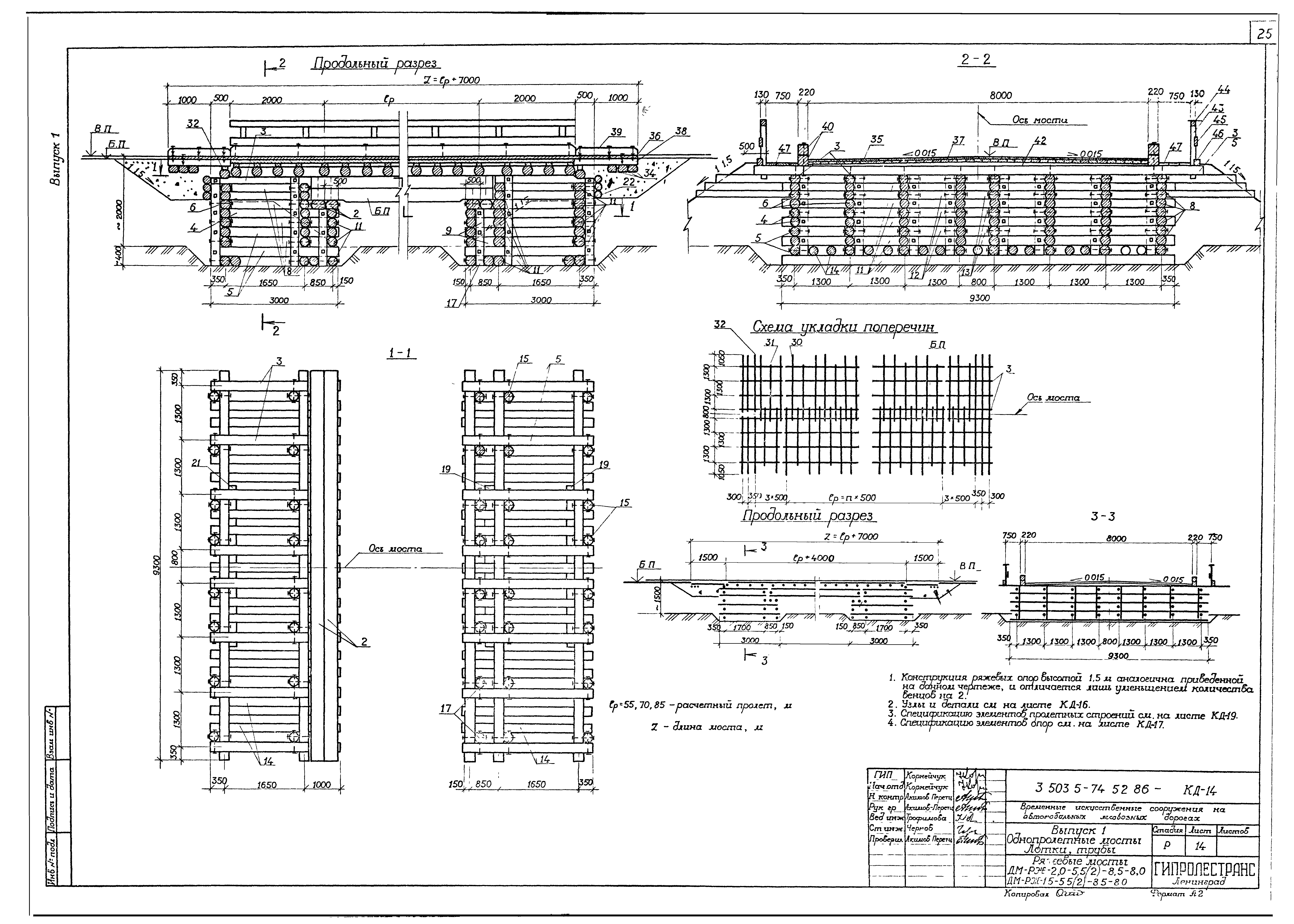
| Оглавление: | ПЗ Пояснительная записка РЛ Расчетный лист КД-1 Марки мостов на свайных и рамно-лежневых опорах. Спецификация КД-2 Марки мостов на ряжевых и лежневых опорах. Спецификация КД-3 Мосты свайные ДМ-СВ-1,5 ? 3,0-2,5-4,5; ДМ-СВ-1,5 - 3,0-4,0-4,5; ДМ-СВ-2,0-5,5(1)-4,5 КД-4 Мосты свайные ДМ-СВ-1,5 ? 3,0-2,5-8,0; ДМ-СВ-1,5 - 3,0-4,0-8,0 ДМ-СВ-2,0-5,5(1)-8,0 КД-5 Узлы и детали мостов на свайных опорах КД-6 Мосты рамно-лежневые ДМ-Рл-1,5-2,5-2,5-4,5; ДМ-Рл-1,5-2,5-4,0-4,5; ДМ-Рл-2,05,5(1)-4,5 КД-7 Мосты рамно-лежневые ДМ-Рл-1,5-2,5-2,5-8,0; ДМ-Рл-1,5-2,5-4,0-8,0; ДМ-Рл-2,05,5(1)-8,0 КД-8 Узлы и детали мостов на рамно-лежневых опорах КД-9 Опоры свайные и рамно-лежневые. Спецификация КД-10 Пролетные строения. Спецификация КД-11 Ряжевые мосты ДМ-РЖ-2,0-4,0-4,5; ДМ-РЖ-1,5-4,0-4,5 КД-12 Ряжевые мосты ДМ-РЖ-2,0-5,5(2) - 8,5-4,5т; ДМ-РЖ-1,5-5,5(2) - 8,5-4,5т КД-13 Ряжевые мосты ДМ-РЖ-2,0-4,0-8,0: ДМ-РЖ-1,5-4,0-8,0 КД-14 Ряжевые мосты ДМ-РЖ-2,0-5,5(2)-8,5-8,0 т; дм-рж-1,5-5,5(2)-8,5-8,0т КД-15 Узлы и детали ряжевых опор под одноярусные пролетные строения КД-16 Узлы и детали ряжевых опор под двухъярусные пролетные строения КД-17 Опоры ряжевых мостов. Спецификация КД-18 Пролетные строения без тротуаров ряжевых мостов. Спецификация КД-19 Пролетные строения с тротуарами ряжевых мостов. Спецификация КД-20 Мосты на лежневых опорах ДМ-ЛЖ-5,5(1) - 10,0-4,5; ДМ-ЛЖ-5,5(1) - 10,0-8,0 КД-21 Опоры лежневых мостов ОП-ЛЖ-5,5(1) - 10,0-4,5; ОП-ЛЖ-5,5(1) - 10,0-8,0. Спецификация КД-22 Пролетные строения мостов на лежневых опорах. Спецификация Кд-23 Колейные мосты ДМ-ЛЖ-8,5-Кл КД-24 Деревянная прямоугольная труба отверстием 1,5х2 ДПТ - 1,5х2 КД-25 Узлы, разрезы. Спецификация элементов на трубу КДИ-ДО Содержание КДИ-ТТ Технические требования КДИ-БП-2,5 Блок прогонов БП-2,5 КДИ-БП-4,0 Блок прогонов БП-4,0 КДИ-БП-5,5 Блок прогонов БП-5,5 КДИ-БП-5,5 (1) Блок прогонов БП-5,5-1 КДИ-БП-5,5 (2) Блок прогонов БП-5,5-2 КДИ-БП-7,0-1 Блок прогонов БП-7,0-1 КДИ-БП-7,0-2 Блок прогонов БП-7,0-2 КДИ-БП-8,5-1 Блок прогонов БП-8,5-1 КДИ-БП-8,5-2 Блок прогонов БП-8,5-2 КДИ-БП-10,0-1 Блок прогонов БП-10,0-1 КДИ-БП-10,0-2 Блок прогонов БП-10,0-2 КДИ-БР-2,5-2,5-4,5 и БР-2,5-4,0-4,5 Блоки рамно-лежневых опор БР-2,5-2,5-4,5 и БР-2,5-4,0-4,5 КДИ-БР-2,5-2,5-8,0 и БР-2,5-4,0-8,0 Блоки рамно-лежневых опор БР-2,5-2,5-8,0 и БР-2,5-4,0-8,0 КДИ-БР-1,5-2,0-2,5-5,5-4,5 Блоки рамно-лежневых опор БР-1,5-2,0-2,5-5,5-4,5 КДИ-БР-1,5-2,0-2,5-5,5-8,0 Блоки рамно-лежневых опор БР-1,5-2,0-2,5-5,5-8,0 КД-РМ-1 Мосты на свайных опорах с дощатым покрытием Г-4,5. Ведомость расхода материалов КД-РМ-2 Мосты на свайных и рамно-лежневых опорах с дощатым покрытием Г-4,5. Ведомость расхода материалов КД РМ-3 Мосты на свайных опорах с дощатым покрытием Г-8. Ведомость расхода материалов КД РМ-4 Мосты на свайных и рамно-лежневых опорах с дощатым покрытием Г-8. Ведомость расхода материалов КД РМ-5 Мосты на ряжевых опорах с дощатым покрытием Г-4,5. Ведомость расхода материалов КД РМ-6 Мосты на ряжевых опорах с дощатым покрытием Г-8. Ведомость расхода материалов КД РМ-7 Мосты на лежневых опорах с дощатым покрытием Г-4,5 и Г-8. Ведомость расхода материалов КД РМ-8 Мосты на лежневых опорах с дощатым покрытием Г-8. Колейный мост. Стык свай и башмаки для забивки свай. Ведомость расхода материалов КД РМ-9 Мосты на свайных опорах с черным гравийным покрытием Г-4,5. Ведомость расхода материалов КД РМ-10 Мосты на свайных и рамно-лежневых опорах с черным гравийным покрытием Г-4,5. Ведомость расхода материалов КД РМ-11 Мосты на свайных опорах с черным гравийным покрытием Г-8. Ведомость расхода материалов КД РМ-12 Мосты на свайных и рамно-лежневых опорах с черным гравийным покрытием Г-8. Ведомость расхода материалов КД РМ-13 Мосты на ряжевых опорах с черным гравийным покрытием Г-4,5. Ведомость расхода материалов КД РМ-14 Мосты на ряжевых опорах с черным гравийным покрытием Г-8. Ведомость расхода материалов КД РМ-15 Мосты на лежневых опорах с черным гравийным покрытием Г-4,5 и Г-8. Ведомость расхода материалов КД РМ-16 Мосты на лежневых опорах с черным гравийным покрытием Г-8. Ведомость расхода материалов. Объемы вспомогательных работ на мост КД РМ-17 Лотки, трубы. Ведомость расхода материалов на 1 п м. трубы и на 2 оголовка |
| Разработан: | Гипролестранс |
| Утверждён: | 27.03.1986 Минлесбумпром СССР (USSR Minlesbumprom 38) |
| Расположен в: |




























































