| ||||||||||||||||||||||||||||
Скачать Серия 3.503.1-96 Выпуск 0-1. Конструкции сопряжения. Материалы для проектированияДата актуализации: 10.08.2017
|
| Обозначение: | Серия 3.503.1-96 |
| Обозначение англ: | Series 3.503.1-96 |
| Статус: | не определен законодательством |
| Название рус.: | Выпуск 0-1. Конструкции сопряжения. Материалы для проектирования |
| Дата добавления в базу: | 01.09.2013 |
| Дата актуализации: | 05.05.2017 |
| Дата введения: | 01.11.1991 |
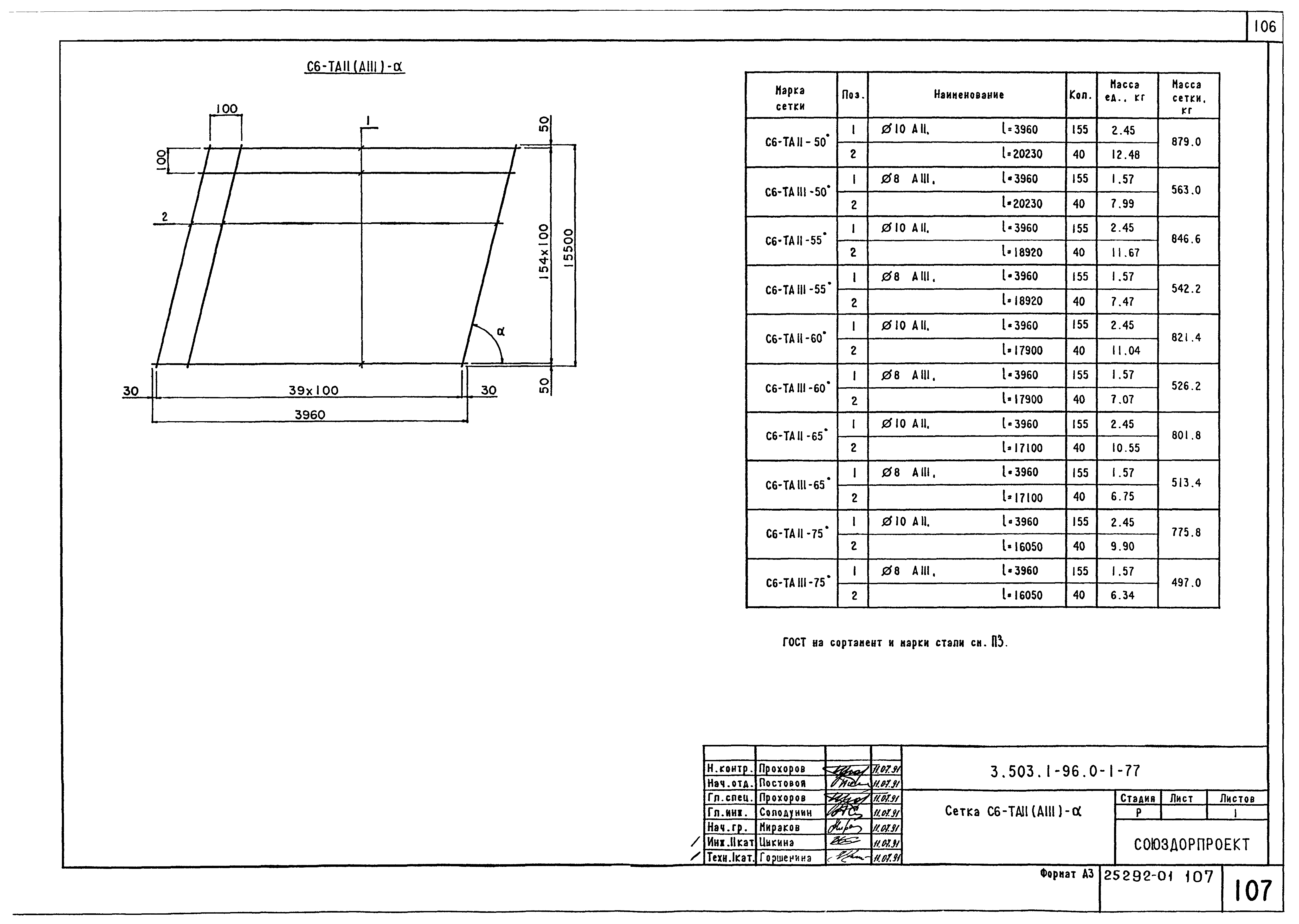
| Оглавление: | 3.503.1-96.0-1-ПЗ Пояснительная записка 3.503.1-96.0-1-1 Сопряжение полузаглубленного типа. Сборные блоки плит. Расчетные листы 3.503.1-96.0-1-2 Сопряжение поверхностного типа. Сборные блоки плит. Расчетные листы 3.503.1-96.0-1-3 Сопряжение поверхностного типа. Лежень. Расчетный лист 3.503.1-96.0-1-4 Сопряжение поверхностного типа. Промежуточная монолитная плита. Расчетный лист 3.503.1-96.0-1-5 Сопряжение плитами полузаглубленного типа. Прямое пересечение. Объемы работ 3.503.1-96.0-1-6 Сопряжение плитами поверхностного типа. Прямое пересечение. Объемы работ 3.503.1-96.0-1-7 Сопряжение плитами полузаглубленного типа при асфальтобетонном покрытии 3.503.1-96.0-1-8 Сопряжение плитами полузаглубленного типа. Прямое пересечение. Спецификация сборных элементов 3.503.1-96.0-1-9 Сопряжение плитами полузаглубленного типа. Прямое пересечение. Схема расположения сборных элементов по габаритам 3.503.1-96.0-1-10 Сопряжение плитами поверхностного типа длиной 4м при цементобетонном покрытии на дороге 3.503.1-96.0-1-11 Сопряжение плитами поверхностного типа длиной 6м при цементобетонном покрытии на дороге 3.503.1-96.0-1-12 Сопряжение плитами поверхностного типа длиной 8м при цементобетонном покрытии на дороге 3.503.1-96.0-1-13 Сопряжение плитами поверхностного типа. Прямое пересечение. Спецификация сборных элементов 3.503.1-96.0-1-14 Сопряжение плитами поверхностного типа. Косое пересечение. Спецификация блоков лежня 3.503.1-96.0-1-15 Сопряжение плитами поверхностного типа. Прямое пересечение. Схема расположения сборных элементов по габаритам 3.503.1-96.0-1-16 Схемы устройств засыпки за устоями 3.503.1-96.0-1-17 Сопряжение покрытия на переходных плитах с покрытием основной дороги 3.503.1-96.0-1-18 Сопряжение переходными плитами на обочине дороги 3.503.1-96.0-1-19 Сопряжение плитами полузаглубленного типа длиной 4 м, 6 м и 8 м. Прямое пересечение. Объединение плит. Опалубка. Схема армирования 3.503.1-96.0-1-20 Сопряжение плитами полузаглубленного типа длиной 4 м. Прямое пересечение. Объединение плит. Арматура класса А-II 3.503.1-96.0-1-21 Сопряжение плитами полузаглубленного типа длиной 4 м. Прямое пересечение. Объединение плит. Арматура класса А-III 3.503.1-96.0-1-22 Сопряжение плитами полузаглубленного типа длиной 6 м. Прямое пересечение. Объединение плит. Арматура класса А-II 3.503.1-96.0-1-23 Сопряжение плитами полузаглубленного типа длиной 6 м. Прямое пересечение. Объединение плит. Арматура класса А-III 3.503.1-96.0-1-24 Сопряжение плитами полузаглубленного типа длиной 8 м. Прямое пересечение. Объединение плит. Арматура класса А-II 3.503.1-96.0-1-25 Сопряжение плитами полузаглубленного типа длиной 8 м. Прямое пересечение. Объединение плит. Арматура класса А-III 3.503.1-96.0-1-26 Сопряжение плитами полузаглубленного типа длиной 4, 6, и 8 м. Косое пересечение. Объединение плит. Опалубка. Схема армирования 3.503.1-96.0-1-27 Сопряжение плитами полузаглубленного типа длиной 4 м. Косое пересечение. Объединение плит. Арматура класса А-II 3.503.1-96.0-1-28 Сопряжение плитами полузаглубленного типа длиной 4 м. Косое пересечение. Объединение плит. Арматура класса А-III 3.503.1-96.0-1-29 Сопряжение плитами полузаглубленного типа длиной 6 и 8 м. Косое пересечение. Объединение плит. Арматура класса А-II 3.503.1-96.0-1-30 Сопряжение плитами полузаглубленного типа длиной 6 и 8 м. Косое пересечение. Объединение плит. Арматура класса А-III 3.503.1-96.0-1-31 Сопряжение плитами полузаглубленного типа. Косое пересечение. Объединение плит. Расход монолитного бетона на одно сопряжение 3.503.1-96.0-1-32 Сопряжение плитами полузаглубленного типа длиной 4 м. Косое пересечение. Объединение плит. Стержни поз. I. Арматура класса А-II 3.503.1-96.0-1-33 Сопряжение плитами полузаглубленного типа длиной 4 м. Косое пересечение. Объединение плит. Стержни поз. I. Арматура класса А-III 3.503.1-96.0-1-34 Сопряжение плитами полузаглубленного типа длиной 6 и 8 м. Косое пересечение. Объединение плит. Стержни поз. I. Арматура класса А-II 3.503.1-96.0-1-35 Сопряжение плитами полузаглубленного типа длиной 6 и 8 м. Косое пересечение. Объединение плит. Стержни поз. I. Арматура класса А-III 3.503.1-96.0-1-36РС Сопряжение плитами полузаглубленного типа. Прямое пересечение. Объединение плит. Ведомость расхода стали 3.503.1-96.0-1-37РС Сопряжение плитами полузаглубленного типа длиной 4 м. Косое пересечение. Объединение плит. Ведомость расхода стали 3.503.1-96.0-1-38РС Сопряжение плитами полузаглубленного типа длиной 6 и 8 м. Косое пересечение. Объединение плит. Ведомость расхода стали 3.503.1-96.0-1-39 Сопряжение плитами поверхностного типа длиной 4 м. Прямое пересечение. Монолитная часть плит. Арматура класса А-II 3.503.1-96.0-1-40 Сопряжение плитами поверхностного типа длиной 4 м. Прямое пересечение. Монолитная часть плит. Арматура класса А-III 3.503.1-96.0-1-41 Сопряжение плитами поверхностного типа длиной 4 м. Прямое пересечение. Монолитная часть плит. Опалубка. Схема армирования 3.503.1-96.0-1-42 Сопряжение плитами поверхностного типа длиной 6 м. Прямое пересечение. Монолитная часть плит. Арматура класса А-II 3.503.1-96.0-1-43 Сопряжение плитами поверхностного типа длиной 6 м. Прямое пересечение. Монолитная часть плит. Арматура класса А-III 3.503.1-96.0-1-44 Сопряжение плитами поверхностного типа длиной 6 м. Прямое пересечение. Монолитная часть плит. Опалубка. Схема армирования 3.503.1-96.0-1-45 Сопряжение плитами поверхностного типа длиной 8 м. Прямое пересечение. Монолитная часть плит. Арматура класса А-II 3.503.1-96.0-1-46 Сопряжение плитами поверхностного типа длиной 8 м. Прямое пересечение. Монолитная часть плит. Арматура класса А-III 3.503.1-96.0-1-47 Сопряжение плитами поверхностного типа длиной 8 м. Прямое пересечение. Монолитная часть плит. Опалубка. Схема армирования 3.503.1-96.0-1-48 Сопряжение плитами поверхностного типа длиной 4 м. Косое пересечение. Монолитная часть плит. Арматура класса А-II 3.503.1-96.0-1-49 Сопряжение плитами поверхностного типа длиной 4 м. Косое пересечение. Монолитная часть плит. Арматура класса А-III 3.503.1-96.0-1-50 Сопряжение плитами поверхностного типа длиной 4 м. Косое пересечение. Монолитная часть плит. Опалубка. Схема армирования 3.503.1-96.0-1-51 Сопряжение плитами поверхностного типа длиной 6 м. Косое пересечение. Монолитная часть плит. Арматура класса А-II 3.503.1-96.0-1-52 Сопряжение плитами поверхностного типа длиной 6 м. Косое пересечение. Монолитная часть плит. Арматура класса А-III 3.503.1-96.0-1-53 Сопряжение плитами поверхностного типа длиной 6 м. Косое пересечение. Монолитная часть плит. Опалубка. Схема армирования 3.503.1-96.0-1-54 Сопряжение плитами поверхностного типа длиной 8 м. Косое пересечение. Монолитная часть плит. Арматура класса А-II 3.503.1-96.0-1-55 Сопряжение плитами поверхностного типа длиной 8 м. Косое пересечение. Монолитная часть плит. Арматура класса А-III 3.503.1-96.0-1-56 Сопряжение плитами поверхностного типа длиной 8 м. Косое пересечение. Монолитная часть плит. Опалубка. Схема армирования 3.503.1-96.0-1-57 Сопряжение плитами поверхностного типа. Косое пересечение. Монолитная часть плит. Стержни поз. I 3.503.1-96.0-1-58 Конструкция опирания переходных плит на шкафную стенку и лежень 3.503.1-96.0-1-59 Сопряжение плитами поверхностного типа. Конструкция объединения блоков лежня между собой 3.503.1-96.0-1-60РС Сопряжение плитами поверхностного типа. Прямое пересечение. Монолитная часть плит. Ведомость расхода стали 3.503.1-96.0-1-61РС Сопряжение плитами поверхностного типа длиной 4 м. Косое пересечение. Монолитная часть плит. Ведомость расхода стали 3.503.1-96.0-1-62РС Сопряжение плитами поверхностного типа длиной 6 м. Косое пересечение. Монолитная часть плит. Ведомость расхода стали 3.503.1-96.0-1-63РС Сопряжение плитами поверхностного типа длиной 8 м. Косое пересечение. Монолитная часть плит. Ведомость расхода стали 3.503.1-96.0-1-64 Сопряжение плитами поверхностного типа. Прямое пересечение. Промежуточная монолитная плита 3.503.1-96.0-1-65 Сопряжение плитами поверхностного типа. Прямое пересечение. Промежуточная монолитная плита. Опалубка. Схема армирования 3.503.1-96.0-1-66 Сопряжение плитами поверхностного типа. Косое пересечение. Промежуточная монолитная плита 3.503.1-96.0-1-67 Сопряжение плитами поверхностного типа. Косое пересечение. Промежуточная монолитная плита. Опалубка. Схема армирования 3.503.1-96.0-1-68РС Сопряжение плитами поверхностного типа. Прямое пересечение. Промежуточная монолитная плита. Ведомость расхода стали 3.503.1-96.0-1-69РС Сопряжение плитами поверхностного типа. Косое пересечение. Промежуточная монолитная плита. Ведомость расхода стали 3.503.1-96.0-1-70 Сетки С1-TAII (AIII) - C6-TA II (AIII) 3.503.1-96.0-1-71 Сетки C7-TAII (AIII) - C12-TAII (AIII) 3.503.1-96.0-1-72 Сетка C1-TAII (AIII) - альфа 3.503.1-96.0-1-73 Сетка C2-TAII (AIII) - альфа 3.503.1-96.0-1-74 Сетка C3-TAII (AIII) - альфа 3.503.1-96.0-1-75 Сетка C4-TAII (AIII) - альфа 3.503.1-96.0-1-76 Сетка C5-TAII (AIII) - альфа 3.503.1-96.0-1-77 Сетка C6-TAII (AIII) - альфа 3.503.1-96.0-1-78 Сетка C7-TAII (AIII) - альфа 3.503.1-96.0-1-79 Сетка C8-TAII (AIII) - альфа 3.503.1-96.0-1-80 Сетка C9-TAII (AIII) - альфа 3.503.1-96.0-1-81 Сетка C10-TAII (AIII) - альфа 3.503.1-96.0-1-82 Сетка C11-TAII (AIII) - альфа 3.503.1-96.0-1-83 Сетка C12-TAII (AIII) - альфа 3.503.1-96.0-1-84 Сопряжение полузаглубленного типа. Схема водоотвода и уширения земляного полотна 3.503.1-96.0-1-85 Сопряжение поверхностного типа. Схема водоотвода и уширения земляного полотна 3.503.1-96.0-1-86 Водоотвод с конуса. Монолитный бетонный лоток 3.503.1-96.0-1-87НИ Номенклатура изделий |
| Разработан: | Союздорпроект Минтрансстроя |
| Утверждён: | 06.05.1991 Минтрансстрой СССР (USSR Mintransstroy АВ-82) |
| Расположен в: | |
| Заменяет собой: |




























































































































