Информационная система
«Ёшкин Кот»

Скачать базу одним архивом
Скачать обновления
История создания базы
Карта сайта

Скачать Типовой проект 501-81 Путепроводы тоннельного типа под один и два железнодорожных пути на пересечении одного и двух железнодорожных путей под углами 15-90 градусов (с разработкой проекта организации строительства). Рабочие чертежи

Дата актуализации: 10.08.2017

Типовой проект 501-81

Путепроводы тоннельного типа под один и два железнодорожных пути на пересечении одного и двух железнодорожных путей под углами 15-90 градусов (с разработкой проекта организации строительства). Рабочие чертежи

Обозначение: Типовой проект 501-81
Обозначение англ: 501-81
Статус:действует
Название рус.:Путепроводы тоннельного типа под один и два железнодорожных пути на пересечении одного и двух железнодорожных путей под углами 15-90 градусов (с разработкой проекта организации строительства). Рабочие чертежи
Дата добавления в базу:01.09.2013
Дата актуализации:05.05.2017
Оглавление:Пояснительная записка
Основные данные по путепроводам по схемам 1/1
Основные данные по путепроводам по схемам 1/2
Путепровод тоннельного типа по схеме 1/1 под углом=15 градусов
Путепровод тоннельного типа по схеме 1/1 под углом=30 градусов
Путепровод тоннельного типа по схеме 1/1 под углом=45 градусов
Путепровод тоннельного типа по схеме 1/1 под углом=60 градусов
Путепровод тоннельного типа по схеме 1/1 под углом=90 градусов
Путепровод тоннельного типа по схеме 2/1 под углом=15 градусов
Путепровод тоннельного типа по схеме 3/1 под углом=15 град
Путепровод тоннельного типа по схеме 1/1 под углом=15 градусов на кривой R=600 м
Путепровод тоннельного типа по схеме 1/2 под углом=15 градусов
Путепровод тоннельного типа по схеме 1/2 под углом=30 градусов
Путепровод тоннельного типа по схеме 1/2 под углом=45 градусов
Путепровод тоннельного типа по схеме 1/2 под углом=60 градусов
Путепровод тоннельного типа по схеме 1/2 под углом=90 градусов
Определение длины тоннеля
Однопутный тоннель. Монтажные схемы блоков тоннеля
Двухпутный тоннель. Монтажные схемы блоков тоннеля
Монтажные схемы подпорных стенок при углах =15 и 30 градусов
Монтажные схемы подпорных стенок при углах =45, 60 и 90 градусов
Однопутные тоннели. Монтажные схемы фундаментных плит тоннелей
Двухпутные тоннели. Монтажные схемы фундаментных плит тоннелей
Монтажная схема блоков тоннеля на кривой при альфа=15 градусов
Монтажные схемы блоков однопутных тоннелей на кривых при альфа=30 - 90 градусов
Монтажные схемы блоков двухпутных тоннелей на кривых при альфа=15 -30 градусов
Монтажные схемы блоков двухпутных тоннелей на кривых при альфа=45 -90 градусов
Контурный чертеж блоков Б-1, Б-2 и Б-1а
Арматурный чертеж блока Б-1
Спецификация арматуры на блок Б-1
Арматурный чертеж блока Б-2
Спецификация арматуры на блок Б-2
Контурный чертеж блоков Б-1 и Б-2 на кривой
Арматурный чертеж блока Б-1а
Спецификация арматуры на блок Б-1а
Контурный чертеж двухпролетной рамы
Контурный чертеж блоков Б-3, Б-4, Б-3а, Б-4а и Б-2а
Арматурный чертеж блока Б-3 и Б-3а
Спецификация арматуры на блок Б-3 и Б-3а
Арматурный чертеж блока Б-4 и Б-4а
Спецификация арматуры на блок Б-4 и Б-4а
Контурный чертеж блока Б-16 с убежищем
Арматурный чертеж блока Б-16 с убежищем
Спецификация арматуры на блок Б-16
Стыки ригелей блоков Б-1, Б-2, Б-3 и Б-4
Соединение блоков рам вдоль и поперек тоннеля и подпорных стенок
Подпорные стенки. Контурный чертеж блоков Б-5, Б-5а и Б-11
Подпорные стенки. Контурный чертеж блоков Б-6, Б-6а и Б-12
Подпорные стенки. Контурный чертеж блоков Б-7, Б-7а, Б-8 и Б-8а
Арматурный чертеж блоков Б-5 и Б-5а
Арматурный чертеж блоков Б-6 и Б-6а
Арматурный чертеж блоков Б-7 и Б-7а
Арматурный чертеж блоков Б-8 и Б-8а
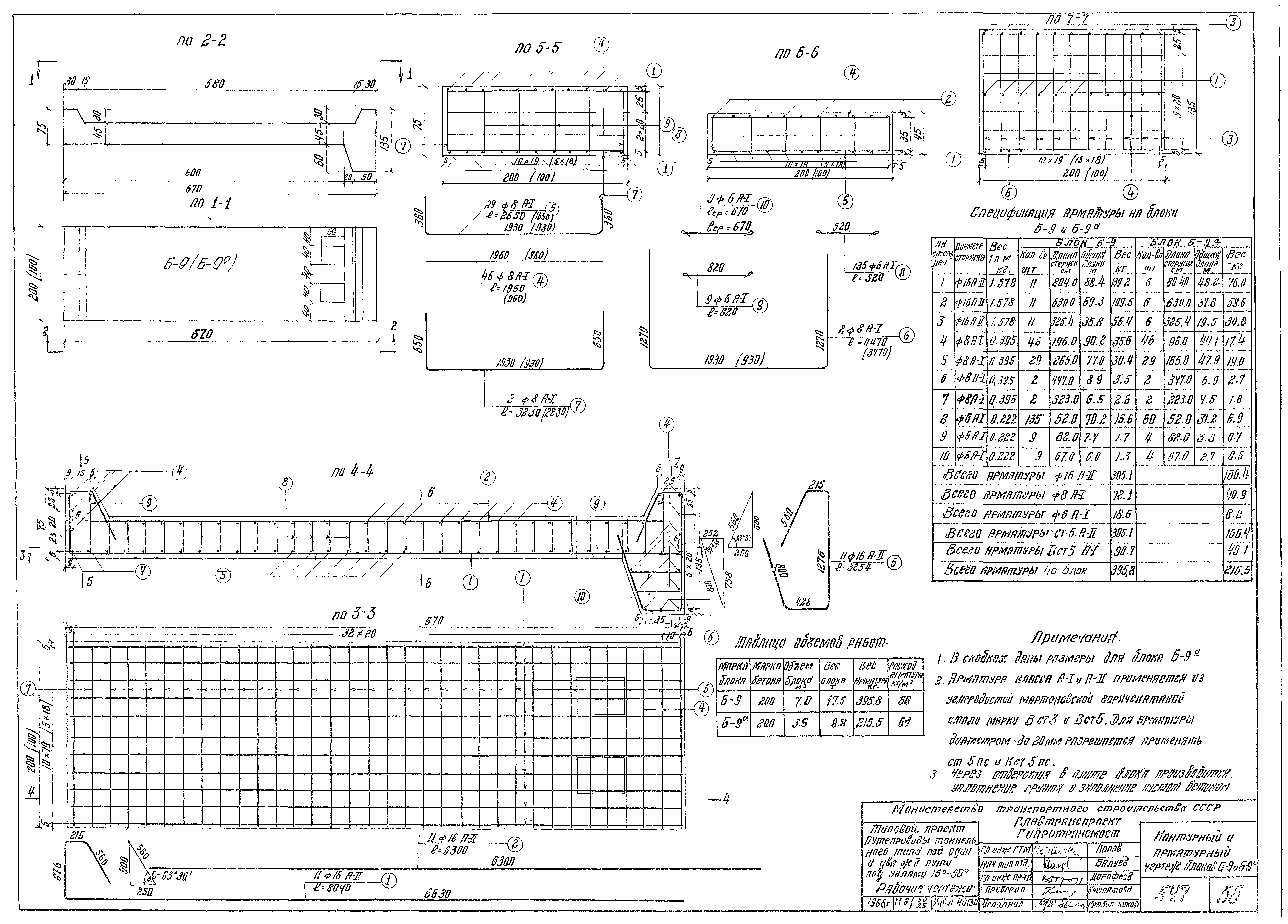
Контурный и арматурный чертеж блоков Б-9 и Б-9а
Контурный и арматурный чертеж блоков Б-10 и Б-10а на кривой
Арматурный чертеж блока Б-11
Арматурный чертеж блока Б-12
Контурный и арматурный чертеж блоков Б-13 и Б-13а
Контурный и арматурный чертеж блоков Б-14 и Б-14а
Контурный и арматурный чертеж блока Б-15
Контурный чертеж блоков Б-6у с убежищем
Арматурный чертеж блоков Б-6у с убежищем
Подпорные стенки. Контурный и арматурный чертеж монолитного карниза при альфа=15 градусов
Подпорные стенки. Контурный и арматурный чертеж монолитного карниза при альфа=30 градусов
Подпорные стенки. Контурный и арматурный чертеж монолитного карниза при альфа=45 градусов
Подпорные стенки. Контурный и арматурный чертеж монолитного карниза при альфа=60 градусов
Подпорные стенки. Контурный и арматурный чертеж монолитного карниза при альфа=90 градусов
Подпорные стенки. Контурный и арматурный чертеж монолитного карниза при альфа=90 градусов (продолжение)
Подпорные стенки. Контурный и арматурный чертеж монолитного карниза короткой стенки
Изоляция и водоотвод однопутного тоннеля
Изоляция и водоотвод двухпутного тоннеля
Портал тоннелей и изоляция подпорных стенок
Строповочные устройства в блоках тоннелей, подпорных стенок и фундаментных плитах
Арматурный чертеж блока Б-2а
Спецификация арматуры на блок Б-2а
Подвеска проводов контактной сети под путепроводом
Примерные схемы расстановки опор контактной сети в однопутных путепроводах
Примерные схемы расстановки опор контактной сети в двухпутных путепроводах
Монтаж блоков тоннелей, сооружаемых на пересечениях ж/д путей в нулевых отметках
Временные обходы при сооружении тоннелей пересечений по схеме 1/1 под углами альфа=15 градусов, 30 градусов, 45 градусов и 60 градусов
Временные обходы при сооружении тоннелей пересечений по схеме 1/1 под углом альфа=90 градусов
Технологические правила и график сооружения однопутного путепровода
Технологические правила и график сооружения двухпутного путепровода
Изготовление и монтаж блоков тоннелей на строительной площадке (вариант)
Монтаж блоков тоннелей, сооружаемых на пересечениях ж/д путей, расположенных на насыпи
Монтаж блоков тоннелей, сооружаемых на пересечениях ж/д путей, расположенных на насыпи (продолжение)
Временный обходной путь при сооружении путепровода на пересечении ж/д путей, расположенных на насыпи
Временный двухпутный обход при сооружении путепровода на пересечении ж/д путей, расположенных на насыпи
Порядок укладки блоков на ж/д платформы
Выборка арматуры
Расчетный лист подпорных стенок
Расчетный лист блоков тоннеля
Арматурный чертеж блока Б-17 с убежищем
Спецификация арматуры на блок Б-17
Дренирующий грунт за путепроводом. Поперечные профили при альфа=15 - 30 градусов
Дренирующий грунт за путепроводом. Поперечные профили при альфа=45 - 90 градусов
Стыки ригелей блоков Б-3а и Б-4а. Технология сварки стержней арматуры ванным способом
Электроосвещение путепроводов под один путь
Электроосвещение путепроводов под два пути
Разработан: Гипротрансмост
Утверждён:17.08.1967 Министерство путей сообщения СССР (USSR Ministry of Railroads П-21341)
Расположен в:Техническая документация Строительство Справочные документы Типовые строительные конструкции, изделия и узлы Общероссийский строительный каталог Строительные конструкции, изделия и узлы зданий и сооружений для всех видов строительства Конструкции и изделия сооружений и оборудования зданий Надземные сооружения Конструкции и сооружения транспорта Пролетные строения мостов, мосты и путепроводы
Типовой проект 501-81Типовой проект 501-81Типовой проект 501-81Типовой проект 501-81Типовой проект 501-81Типовой проект 501-81Типовой проект 501-81Типовой проект 501-81Типовой проект 501-81Типовой проект 501-81Типовой проект 501-81Типовой проект 501-81Типовой проект 501-81Типовой проект 501-81Типовой проект 501-81Типовой проект 501-81Типовой проект 501-81Типовой проект 501-81Типовой проект 501-81Типовой проект 501-81Типовой проект 501-81Типовой проект 501-81Типовой проект 501-81Типовой проект 501-81Типовой проект 501-81Типовой проект 501-81Типовой проект 501-81Типовой проект 501-81Типовой проект 501-81Типовой проект 501-81Типовой проект 501-81Типовой проект 501-81Типовой проект 501-81Типовой проект 501-81Типовой проект 501-81Типовой проект 501-81Типовой проект 501-81Типовой проект 501-81Типовой проект 501-81Типовой проект 501-81Типовой проект 501-81Типовой проект 501-81Типовой проект 501-81Типовой проект 501-81Типовой проект 501-81Типовой проект 501-81Типовой проект 501-81Типовой проект 501-81Типовой проект 501-81Типовой проект 501-81Типовой проект 501-81Типовой проект 501-81Типовой проект 501-81Типовой проект 501-81Типовой проект 501-81Типовой проект 501-81Типовой проект 501-81Типовой проект 501-81Типовой проект 501-81Типовой проект 501-81Типовой проект 501-81Типовой проект 501-81Типовой проект 501-81Типовой проект 501-81Типовой проект 501-81Типовой проект 501-81Типовой проект 501-81Типовой проект 501-81Типовой проект 501-81Типовой проект 501-81Типовой проект 501-81Типовой проект 501-81Типовой проект 501-81Типовой проект 501-81Типовой проект 501-81Типовой проект 501-81Типовой проект 501-81Типовой проект 501-81Типовой проект 501-81Типовой проект 501-81Типовой проект 501-81Типовой проект 501-81Типовой проект 501-81Типовой проект 501-81Типовой проект 501-81Типовой проект 501-81Типовой проект 501-81Типовой проект 501-81Типовой проект 501-81Типовой проект 501-81Типовой проект 501-81Типовой проект 501-81Типовой проект 501-81Типовой проект 501-81Типовой проект 501-81Типовой проект 501-81Типовой проект 501-81Типовой проект 501-81Типовой проект 501-81Типовой проект 501-81Типовой проект 501-81

© 2013 Ёшкин Кот :-) Карта сайта