Скачать Серия 3.503-47 Пролетные строения автодорожных мостов сталежелезобетонные неразрезные пролетами 24+33+24 м с габаритами Г-8, Г-10, Г-11,5 м в северном исполнении. Рабочие чертежи КМДата актуализации: 10.08.2017 Серия 3.503-47
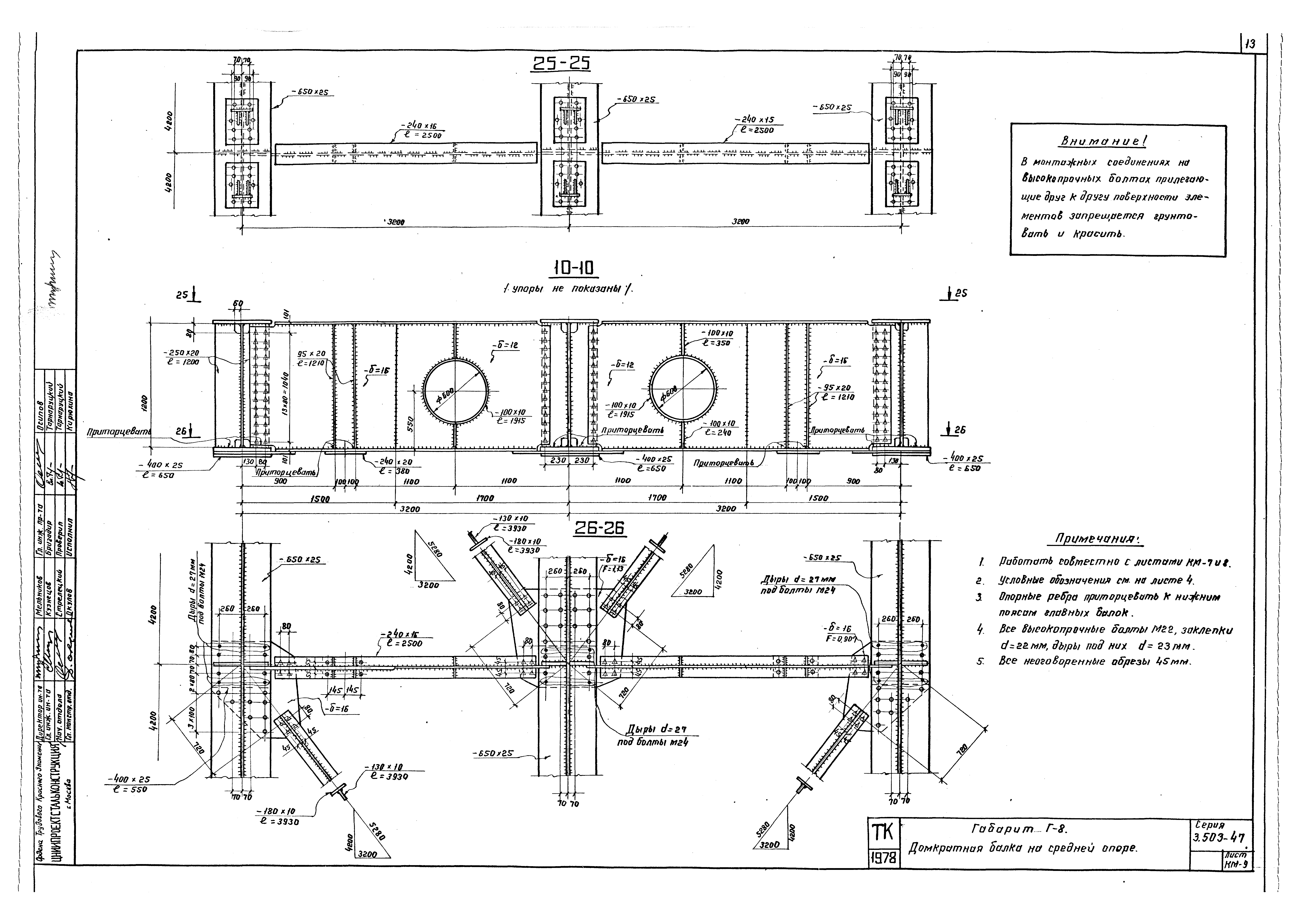
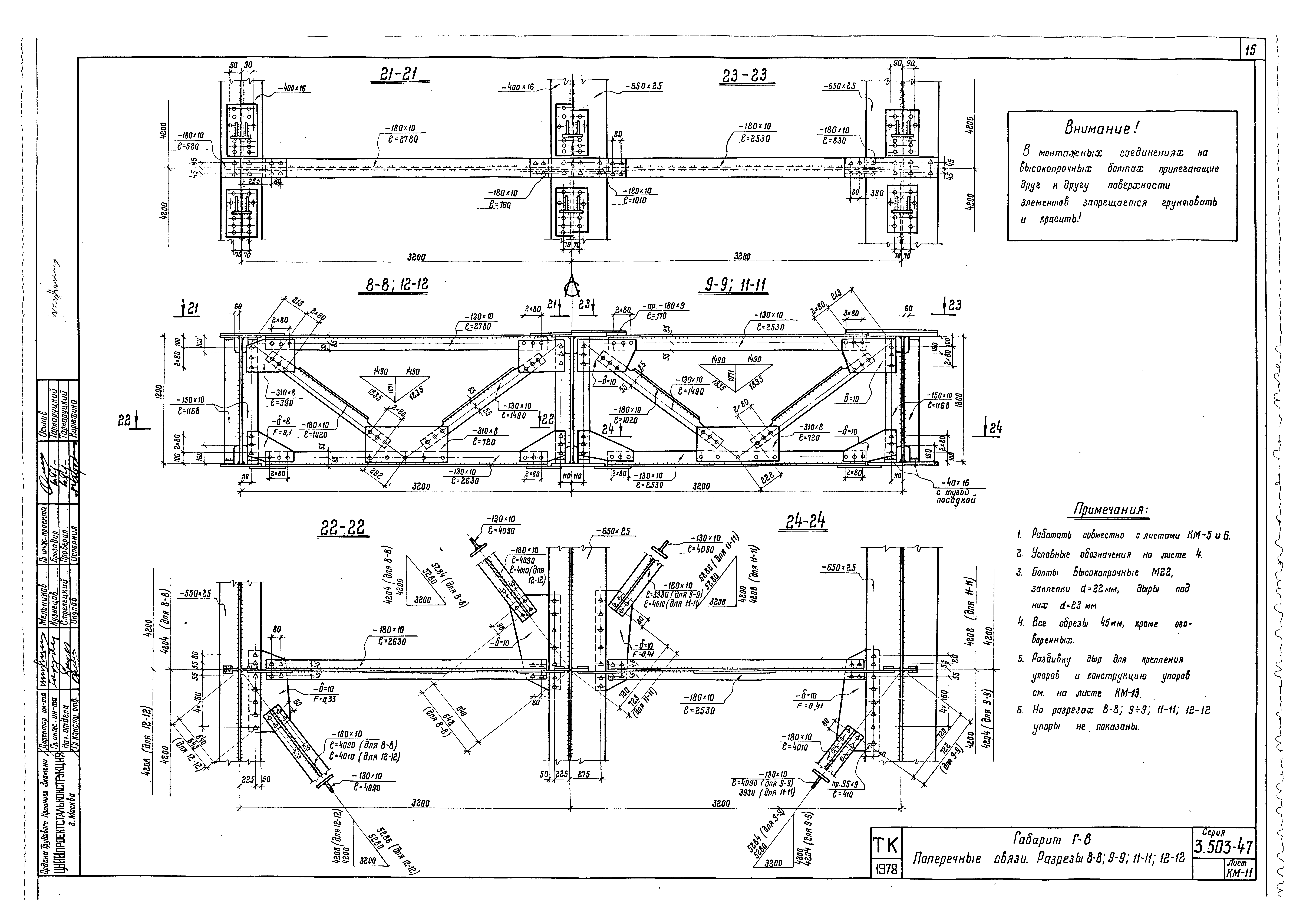
Пролетные строения автодорожных мостов сталежелезобетонные неразрезные пролетами 24+33+24 м с габаритами Г-8, Г-10, Г-11,5 м в северном исполнении. Рабочие чертежи КМ| Обозначение: | Серия 3.503-47 | | Обозначение англ: | Series 3.503-47 | | Статус: | действует | | Название рус.: | Пролетные строения автодорожных мостов сталежелезобетонные неразрезные пролетами 24+33+24 м с габаритами Г-8, Г-10, Г-11,5 м в северном исполнении. Рабочие чертежи КМ | | Дата добавления в базу: | 01.09.2013 | | Дата актуализации: | 05.05.2017 | | Дата введения: | 01.07.1979 | | Разработан: | ЦНИИпроектстальконструкция
| | Утверждён: | 25.12.1978 Минавтодор РСФСР (Russian Federation Minavtodor 32)
| | Расположен в: |
|
                                                                    
|