| ||||||||||||||||||||||||||||
Скачать Серия 3.501.2-140 Выпуск 1. Рабочие чертежиДата актуализации: 10.08.2017
|
| Обозначение: | Серия 3.501.2-140 |
| Обозначение англ: | Series 3.501.2-140 |
| Статус: | не определен законодательством |
| Название рус.: | Выпуск 1. Рабочие чертежи |
| Дата добавления в базу: | 01.09.2013 |
| Дата актуализации: | 05.05.2017 |
| Дата введения: | 01.08.1985 |
| Область применения: | В проекте разработаны рабочие чертежи металлоконструкций пролетных строений с ездой поверху и верхнего строения мостового полотна из дерева для условий эксплуатации в климатических зонах с расчетной температурой выше минус 40 градусов Цельсия, а также в климатической зоне "А" с температурой от минус 40 градусов Цельсия до минус 50 градусов Цельсия |
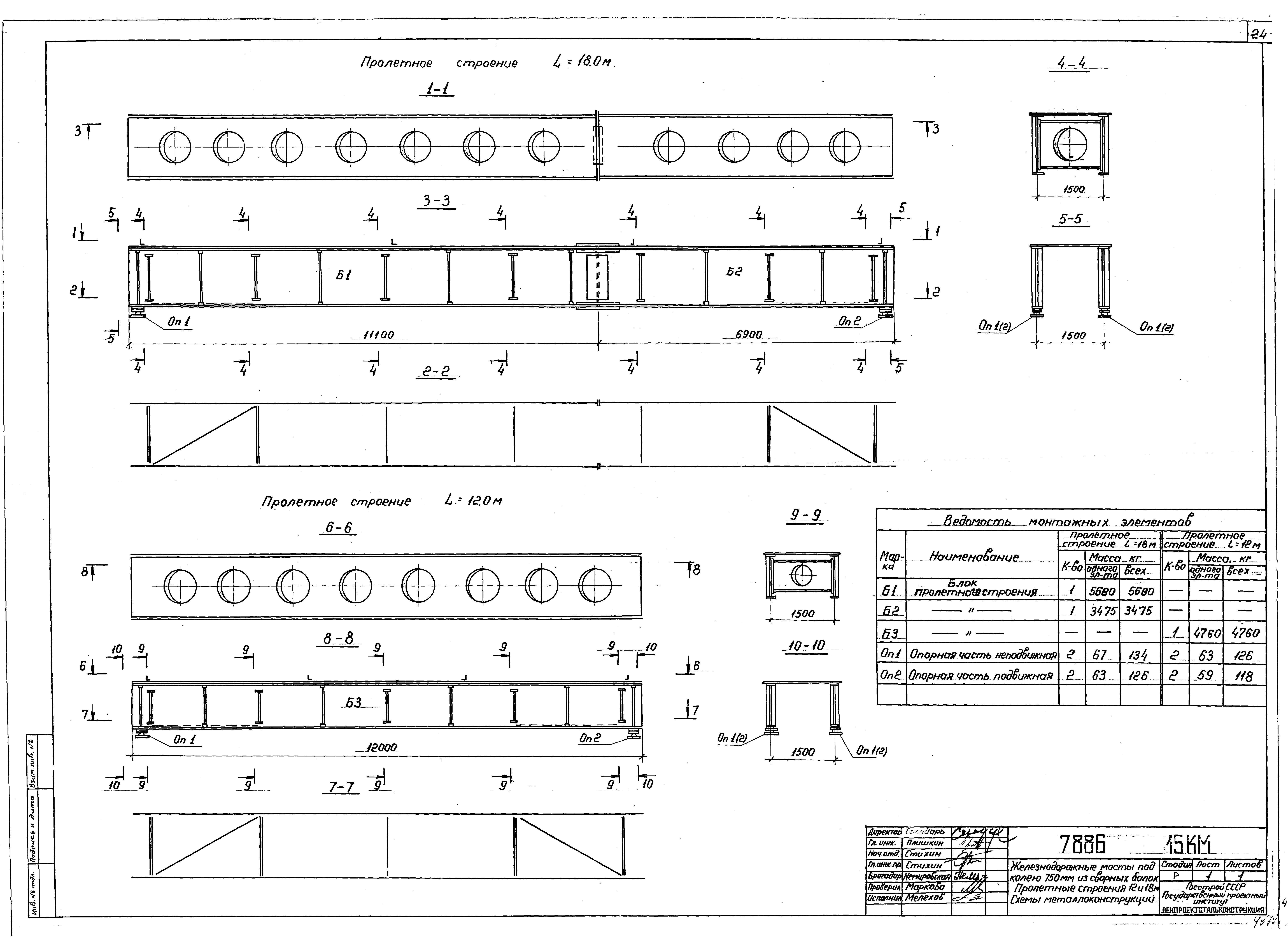
| Оглавление: | 7886 черт.00КМ, л.1 - 3 Пояснительная записка 7886 черт.01КМ, л.1; 2 Расчетный лист 7886 Пролетное строение L=12 м. Общий вид. Езда на брусьях 7886 черт.03КМ Пролетное строение L=18 м. Общий вид. Езда на брусьях 7886 черт.04КМ Мостовое полотно. Детали 7886 черт.05КМ Мостовое полотно. Площадка-убежище и настил при деревянных опорах 7886 черт.06КМ Пролетное строение L=12 м. Схема металлоконструкций 7886 черт.07КМ, л. 1; 2 Пролетное строение L=12 м. Марка Б1. 7886 черт.08КМ Пролетное строение L=12 м. Детали 7886 черт.09КМ Пролетное строение L=12 м. Спецификация металла 7886 черт.10КМ Пролетное строение L=18 м. Схема металлоконструкций 7886 черт.11КМ, л. 1 -3 Пролетное строение L=18 м. Марки Б2; Б3; Б4. 7886 черт.12КМ Пролетное строение L=18 м. Детали 7886 черт.13КМ Пролетное строение L=18 м. Спецификация металла 7886 черт.14КМ Заводской стык главных балок 7886 черт.15КМ Пролетные строения L=12 м и L=18 м. Схемы металлоконструкций 7886 черт.16КМ, л. 1 - 3 Пролетное строение L=18 м. Марки Б1 и Б2 7886 черт.17КМ, л. 1; 2 Пролетное строение L=12 м. Марка Б13 7886 черт.18КМ Пролетные строения L=12 м и L=18 м. Спецификация металла. /Северное исполнение/ 7886 черт.19КМ Пролетные строения L=12 м и L=18 м. Спецификация металла. /Обычное исполнение/ 7886 черт.20КМ Опорные части 7886 черт.21КМ Схемы погрузки блоков пролетных строений на автомобильный и железнодорожный транспорт 7886 черт.22КМ Монтаж пролетных строений надвижкой 7886 черт.23КМ Монтажный стык прокатных балок при надвижке пролетных строений 7886 черт.24КМ Монтажный стык сварных балок при надвижке пролетных строений 7886 черт.25КМ Монтаж пролетных строений с помощью крана на судоходе |
| Разработан: | Ленпроектстальконструкция |
| Утверждён: | 14.12.1983 Министерство лесной, целлюлозно-бумажной и деревообрабатывающей промышленности СССР (USSR Ministry of the Wood, Wood Processing, Pulp and Paper Industries 130) |
| Расположен в: |





































