| ||||||||||||||||||||||||||
Скачать Серия 3.501-49 Выпуск 12. Металлические железнодорожные пролетные строения с ездой поверху на балласте пролетами 45,0; 55,0 м в обычном и северном исполнении. Вариант железобетонных плит балластного корыта с металлическими консолями под тротуарыДата актуализации: 10.08.2017
|
| Обозначение: | Серия 3.501-49 |
| Обозначение англ: | Series 3.501-49 |
| Статус: | не определен законодательством |
| Название рус.: | Выпуск 12. Металлические железнодорожные пролетные строения с ездой поверху на балласте пролетами 45,0; 55,0 м в обычном и северном исполнении. Вариант железобетонных плит балластного корыта с металлическими консолями под тротуары |
| Дата добавления в базу: | 01.09.2013 |
| Дата актуализации: | 05.05.2017 |
| Дата введения: | 01.01.1976 |
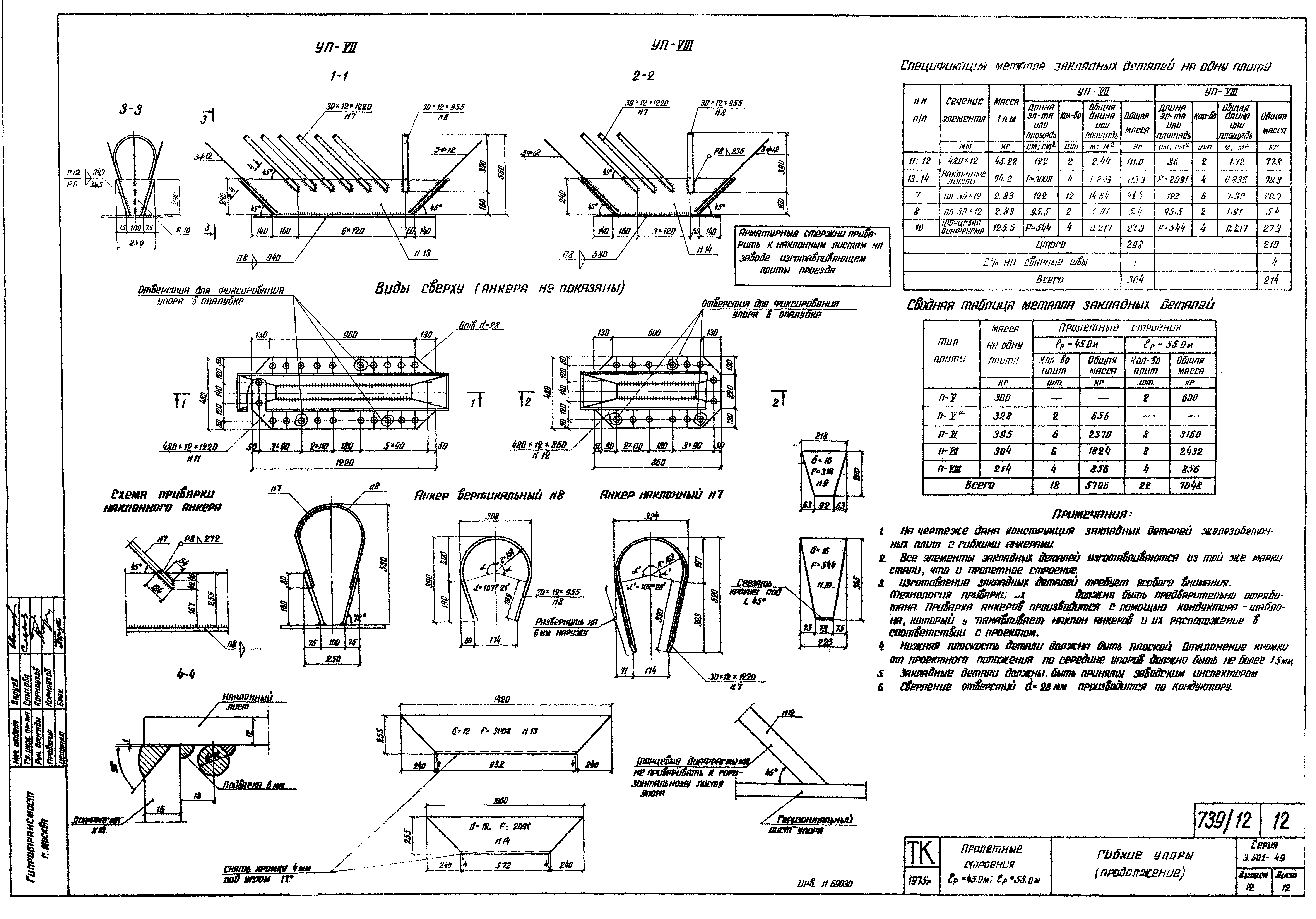
| Оглавление: | Пояснительная записка Паспорт пролетного строения lp=45,0 м Паспорт пролетного строения lp=55,0 м Сборочный чертеж lp=45,0 м Сборочный чертеж lp=55,0 м Опалубочный чертеж плит балластного корыта П-V; П-Va; П-VI; П-VII; П-VIII Арматурный чертеж плит П-V; П-Va Арматурный чертеж плит П-VI; П-VII; П-VIII Гибкие упоры Гибкие упоры (продолжение) Плиты убежищ. Схема разбивки тротуарных плит и убежищ Тротуарные плиты ПТ-1, ПТ-2 Тротуарные плиты ПТ-3, ПТ-4 Тротуарные консоли Консоли убежищ Расположение отверстий на верхних поясах главных ферм Временные продольные связи для пролетного строения lp=45,0 м. Вариант I Мостовое полотно. Детали перил Поперечные сечения мостового полотна Перекрытие деформационного шва. Изоляция Изоляция. Детали Детали водоотвода Продольная надвижка пролетного строения lp=55,0 м. Монтажные связи Временные продольные связи для пролетного строения lp=45,0 м. Вариант II Пролетное строение lp=45,0; lp=55,0 м. Сход на опору (при наличии кабельного короба) Марки стали пролетных строений lp=45,0м; lp=55,0 м |
| Разработан: | Гипротрансмост |
| Утверждён: | 10.12.1975 МПС (Ministry of Railroads П-35440) |
| Расположен в: |



























