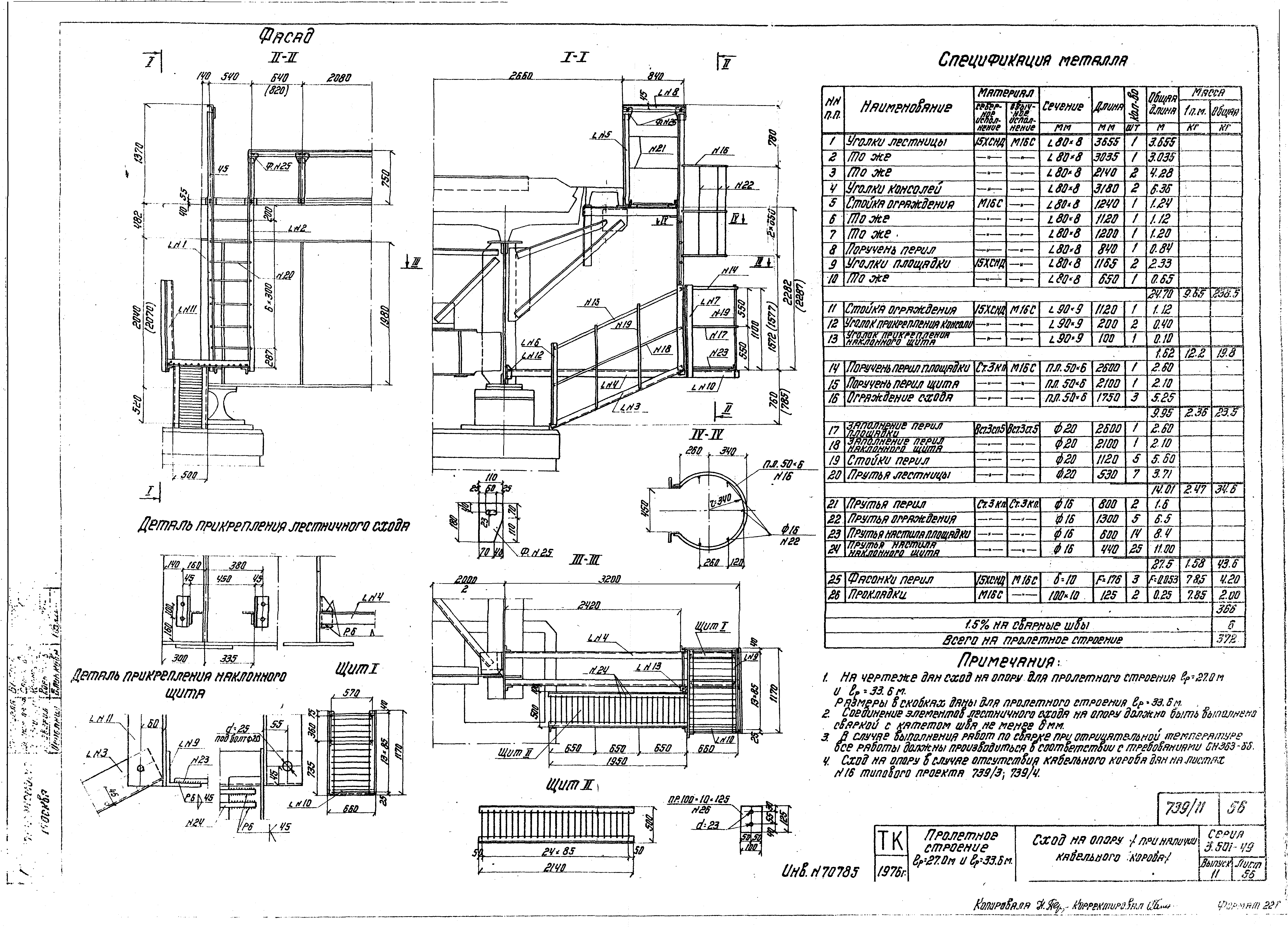
Скачать Серия 3.501-49 Выпуск 11. Металлические железнодорожные пролетные строения с ездой поверху на балласте пролетами 18,2; 23,0; 27,0; 33,6 м в обычном и северном исполнении. Вариант железобетонных плит балластного корыта с металлическими консолями под тротуарыДата актуализации: 10.08.2017 Серия 3.501-49
Выпуск 11. Металлические железнодорожные пролетные строения с ездой поверху на балласте пролетами 18,2; 23,0; 27,0; 33,6 м в обычном и северном исполнении. Вариант железобетонных плит балластного корыта с металлическими консолями под тротуары| Обозначение: | Серия 3.501-49 | | Обозначение англ: | Series 3.501-49 | | Статус: | не определен законодательством | | Название рус.: | Выпуск 11. Металлические железнодорожные пролетные строения с ездой поверху на балласте пролетами 18,2; 23,0; 27,0; 33,6 м в обычном и северном исполнении. Вариант железобетонных плит балластного корыта с металлическими консолями под тротуары | | Дата добавления в базу: | 01.09.2013 | | Дата актуализации: | 05.05.2017 | | Дата введения: | 01.01.1976 | | Разработан: | Гипротрансмост
| | Утверждён: | 10.12.1975 МПС (Ministry of Railroads П-35440)
| | Расположен в: |
|
                                                       
|