| ||||||||||||||||||||||||||
Скачать Серия 3.503.1-79 Выпуск 2. Железобетонные изделия. Рабочие чертежиДата актуализации: 10.08.2017
|
| Обозначение: | Серия 3.503.1-79 |
| Обозначение англ: | Series 3.503.1-79 |
| Статус: | не определен законодательством |
| Название рус.: | Выпуск 2. Железобетонные изделия. Рабочие чертежи |
| Дата добавления в базу: | 01.09.2013 |
| Дата актуализации: | 05.05.2017 |
| Дата введения: | 01.07.1988 |
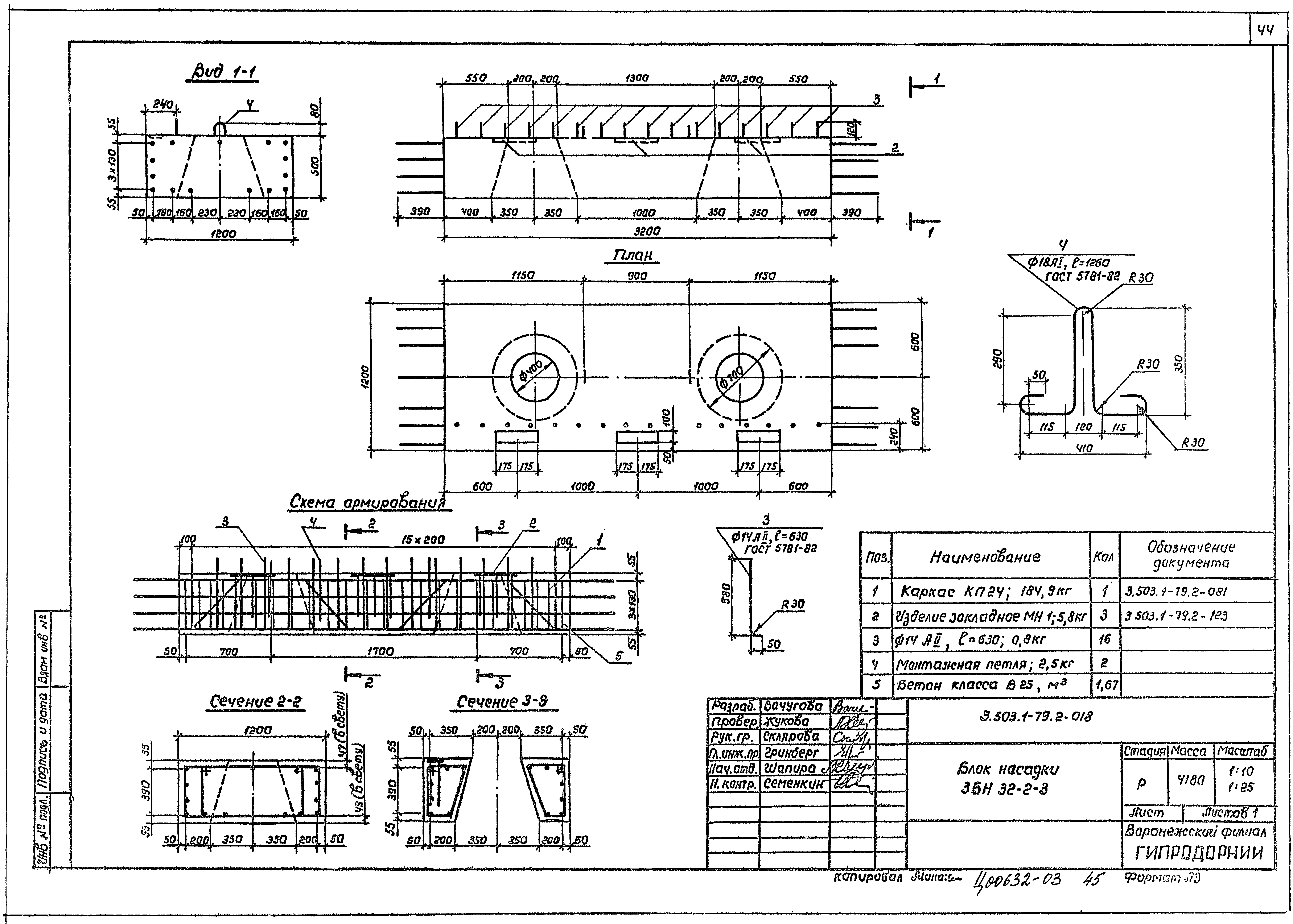
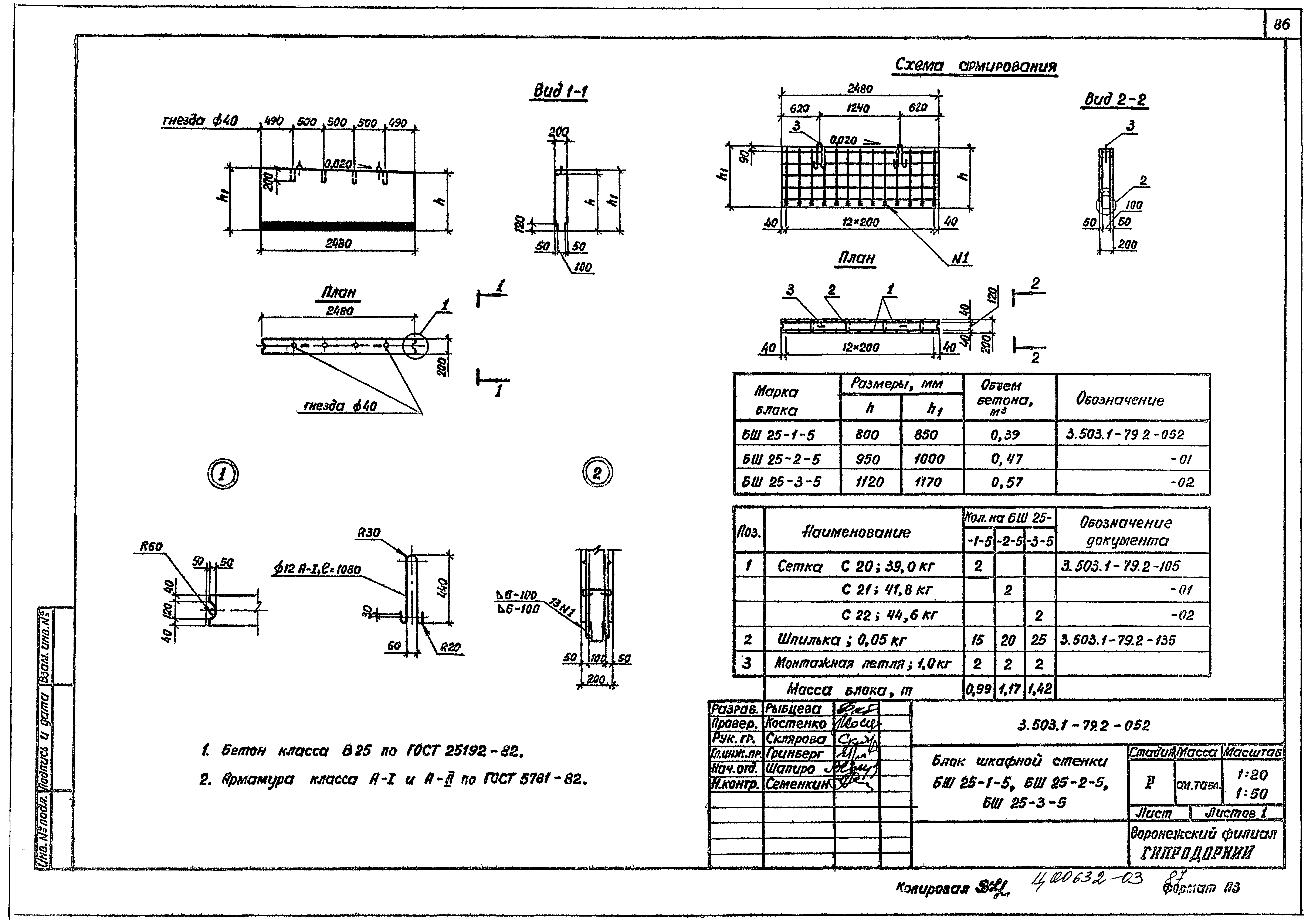
| Оглавление: | 3.503.1-79.2-ТТ Технические требования 3.503.1-79.2-НИ Номенклатура изделий 3.503.1-79.2-001 Блок насадки 1БН 25-1-1, 1БН 25-1-2 3.503.1-79.2-002 Блок насадки 1БН 25-1-3 3.503.1-79.2-003 Блок насадки 1БН 40-1-1, 1БН 40-1-2 3.503.1-79.2-004 Блок насадки 1БН 40-1-3 3.503.1-79.2-005 Блок насадки 2БН 35-1-1, 2БН 35-1-2, 2БН 38-1-1, 2БН 38-1-2 3.503.1-79.2-006 Блок насадки 2БН 38-1-2 3.503.1-79.2-007 Блок насадки 2БН 55-1-1, 2БН 55-1-2, 2БН 60-1-1, 2БН 60-1-2 3.503.1-79.2-008 Блок насадки 2БН 55-1-3, 2БН 60-1-3 3.503.1-79.2-009 Блок насадки 2БН 25-2-3 3.503.1-79.2-010 Блок насадки 2БН 25-2-3 3.503.1-79.2-011 Блок насадки 2БН 40-2-1, 2БН 40-2-2 3.503.1-79.2-012 Блок насадки 2БН 40-2-3 3.503.1-79.2-013 Блок насадки 3БН 35-1-1, 3БН 35-1-2, 3БН 38-1-1, 3БН 38-1-1, 3БН 38-1-2 3.503.1-79.2-014 Блок насадки 3БН 38-1-3 3.503.1-79.2-015 Блок насадки 3БН 55-1-1, 3БН 35-1-2, 3БН 60-1-1, 3БН 60-1-2 3.503.1-79.2-016 Блок насадки 3БН 55-1-3, 3БН 60-1-3 3.503.1-79.2-017 Блок насадки 3БН 32-2-1, 3БН 32-2-2 3.503.1-79.2-018 Блок насадки 3БН 32-2-3 3.503.1-79.2-019 Блок насадки 3БН 49-2-1, 3БН 49-2-2 3.503.1-79.2-020 Блок насадки 3БН 49-2-3 3.503.1-79.2-021 Блок насадки 4БН 25-1-1 3.503.1-79.2-022 Блок насадки 4БН 25-1-3 3.503.1-79.2-023 Блок насадки 4БН 40-1-1 3.503.1-79.2-024 Блок насадки 4БН 40-1-3 3.503.1-79.2-025 Блок насадки 5БН 35-1-1, 5БН 38-1-1 3.503.1-79.2-026 Блок насадки 5БН 38-1-3 3.503.1-79.2-027 Блок насадки 5БН 55-1-1, 5БН 60-1-1 3.503.1-79.2-028 Блок насадки 5БН 55-1-3, 5БН 60-1-3 3.503.1-79.2-029 Блок насадки 5БН 25-2-1 3.503.1-79.2-030 Блок насадки 5БН 25-2-3 3.503.1-79.2-031 Блок насадки 5БН 40-2-1 3.503.1-79.2-032 Блок насадки 5БН 40-2-3 3.503.1-79.2-033 Блок насадки 6БН 35-1-1. 6БН 38-1-1 3.503.1-79.2-034 Блок насадки 6БН 38-1-3 3.503.1-79.2-035 Блок насадки 6БН 55-1-1, 6БН 60-1-1 3.503.1-79.2-036 Блок насадки 6БН 55-1-3, 6БН 60-1-3 3.503.1-79.2-037 Блок насадки 6БН 32-2-1 3.503.1-79.2-038 Блок насадки 6БН 32-2-3 3.503.1-79.2-039 Блок насадки 6БН 49-2-1 3.503.1-79.2-040 Блок шкафной стенки БШ 27-3-1, БШ 27-3-2 3.503.1-79.2-041 Блок шкафной стенки БШ 25-1-1, БШ 28-1-2, БШ 28-2-1, БШ 28-2-2 3.503.1-79.2-042 Блок шкафной стенки БШ 29-3-3, БШ 29-3-4 3.503.1-79.2-043 Блок шкафной стенки БШ 30-1-3, БШ 30-1-4, БШ 30-2-3, БШ 30-2-4 3.503.1-79.2-044 Блок шкафной стенки БШ 32-3-1, БШ 32-3-2 3.503.1-79.2-045 Блок шкафной стенки БШ 33-1-1, БШ 33-1-2, БШ 33-2-1, БШ 33-2-2 3.503.1-79.2-046 Блок шкафной стенки БШ 34-3-3, БШ 34-3-4 3.503.1-79.2-047 Блок шкафной стенки БШ 35-1-3, БШ 35-1-4, БШ 35-2-3, БШ 35-2-4 3.503.1-79.2-048 Блок шкафной стенки БШ 27-4-1, БШ 27-4-2, БШ 27-5-1, БШ 27-5-2 3.503.1-79.2-049 Блок шкафной стенки БШ 32-4-1, БШ 32-4-2, БШ 32-5-1, БШ 32-5-2 3.503.1-79.2-050 Блок шкафной стенки БШ 29-4-3, БШ 29-4-4, БШ 29-5-3, БШ 29-5-4 3.503.1-79.2-051 Блок шкафной стенки БШ 34-4-3, БШ 34-4-4, БШ 34-5-3, БШ 34-5-4 3.503.1-79.2-052 Блок шкафной стенки БШ 25-1-5, БШ 25-2-5, БШ 25-3-5 3.503.1-79.2-053 Блок шкафной стенки БШ 25-4-5, БШ 25-5-5 3.503.1-79.2-054 Блок шкафной стенки БШ 30-1-5, БШ 30-2-5, БШ 30-3-5 3.503.1-79.2-055 Блок шкафной стенки БШ 30-4-3, БШ 30-5-5 3.503.1-79.2-056 Блок шкафной стенки БШ 25-1-6, БШ 25-2-6, БШ 25-3-6 3.503.1-79.2-057 Блок шкафной стенки БШ 25-4-6, БШ 25-5-6 3.503.1-79.2-058 Блок шкафной стенки БШ 35-1-6, БШ 35-2-6, БШ 35-3-6 3.503.1-79.2-059 Блок шкафной стенки БШ 35-4-6, БШ 35-5-6 3.503.1-79.2-060 Блок шкафной стенки БШ 25-1-7, БШ 25-2-7, БШ 25-3-7 3.503.1-79.2-061 Блок шкафной стенки БШ 25-4-7, БШ 25-5-7 3.503.1-79.2-062 Блок шкафной стенки БШ 30-1-7, БШ 30-2-7, БШ 30-3-7 3.503.1-79.2-063 Блок шкафной стенки БШ 30-4-7, БШ 30-5-7 3.503.1-79.2-064 Блок боковой стенки БС 6-1, БС 6-2, БС 9-1, БС 9-2, БС 12-1, БС 12-2 3.503.1-79.2-065 Блок подферменника БП 1 - БП 8 3.503.1-79.2-066 Блок подферменника БП 9 - БП 14 3.503.1-79.2-067 Каркас КП 1 3.503.1-79.2-068 Каркас КП 2 3.503.1-79.2-069 Каркас КП 3 3.503.1-79.2-070 Каркас КП 4 3.503.1-79.2-071 Каркас КП 5, КП 6, КП 31, КП 32 3.503.1-79.2-072 Каркас КП 7, КП 33 3.503.1-79.2-073 Каркас КП 8, КП 9, КП 14, КП 34, КП 35, КП 40 3.503.1-79.2-074 Каркас КП 10, КП 11, КП 15, КП 36, КП 37, КП 41 3.503.1-79.2-075 Каркас КП 12, КП 38 3.503.1-79.2-076 Каркас КП 13, КП 39 3.503.1-79.2-077 Каркас КП 16, КП 17, КП 23, КП 42, КП 43 3.503.1-79.2-078 Каркас КП 18, КП 44 3.503.1-79.2-079 Каркас КП 19, КП 20, КП 45, КП 46 3.503.1-79.2-080 Каркас КП 21, КП 22, КП 47, КП 48 3.503.1-79.2-081 Каркас КП 24 3.503.1-79.2-082 Каркас КП 25 3.503.1-79.2-083 Каркас КП 26 3.503.1-79.2-084 Каркас КП 27 3.503.1-79.2-085 Каркас КП 28 3.503.1-79.2-086 Каркас КП 29 3.503.1-79.2-087 Каркас КП 30 3.503.1-79.2-088 Каркас КП 49 3.503.1-79.2-089 Каркас КП 50 3.503.1-79.2-090 Каркас КП 51 3.503.1-79.2-091 Каркас КП 52 3.503.1-79.2-092 Каркас КП 53, К 54 3.503.1-79.2-093 Каркас КП 55 3.503.1-79.2-094 Каркас КП 56, КП 57 3.503.1-79.2-095 Сетка С1, С2, С3 3.503.1-79.2-096 Сетка С4, С5 3.503.1-79.2-097 Сетка С6 3.503.1-79.2-098 Сетка С7, С8 3.503.1-79.2-099 Сетка С9 3.503.1-79.2-100 Сетка С10, С11 3.503.1-79.2-101 Сетка С12, С13 3.503.1-79.2-102 Сетка С14, С15 3.503.1-79.2-103 Сетка С16, С17 3.503.1-79.2-104 Сетка С18, С19 3.503.1-79.2-105 Сетка С20, С21, С22 3.503.1-79.2-106 Сетка С23, С24, С25 3.503.1-79.2-107 Сетка С26, С27 3.503.1-79.2-108 Сетка С28, С29 3.503.1-79.2-109 Сетка С30, С31, С32 3.503.1-79.2-110 Сетка С33, С34, С35 3.503.1-79.2-111 Сетка С36, С37, С38 3.503.1-79.2-112 Сетка С39, С40, С41 3.503.1.-79.2-113 Сетка С42, С43 3.503.1.-79.2-114 Сетка С44, С45 3.503.1.-79.2-115 Сетка С46, С47 3.503.1.-79.2-116 Сетка С48, С49 3.503.1.-79.2-117 Сетка С50, С51 3.503.1.-79.2-118 Сетка С52 3.503.1.-79.2-119 Сетка С53, С54 3.503.1.-79.2-120 Сетка С55 3.503.1.-79.2-121 Сетка С56 3.503.1.-79.2-122 Сетка С57 3.503.1.-79.2-123 Изделие закладное МН 1, МН2, МН 3 3.503.1.-79.2-124 Изделие закладное МН 4 3.503.1.-79.2-125 Изделие закладное МН 5 3.503.1.-79.2-126 Отогнутый стержень 3.503.1.-79.2-127 Отогнутый стержень 3.503.1.-79.2-128 Отогнутый стержень 3.503.1.-79.2-129 Отогнутый стержень 3.503.1.-79.2-130 Отогнутый стержень 3.503.1.-79.2-131 Отогнутый стержень 3.503.1.-79.2-132 Хомут 3.503.1.-79.2-133 Отогнутый стержень 3.503.1.-79.2-134 Отогнутый стержень 3.503.1.-79.2-135 Шпилька 3.503.1.-79.2-136 Отогнутый стержень 3.503.1.-79.2-137 Отогнутый стержень 3.503.1.-79.2-138 Отогнутый стержень 3.503.1.-79.2-139 Хомут 3.503.1.-79.2-140 Хомут 3.503.1.-79.2-141 Хомут 3.503.1.-79.2-142 Хомут 3.503.1.-79.2-143РС Ведомость расхода стали на блоки насадок 3.503.1.-79.2-144РС Ведомость расхода стали на блоки шкафных стенок 3.503.1.-79.2-145РС Ведомость расхода стали на блоки подферменников |
| Разработан: | Воронежский филиал ГипродорНИИ |
| Утверждён: | 03.03.1988 Министерство автомобильных дорог РСФСР (28) |
| Расположен в: |























































































































































