| ||||||||||||||||||||||||
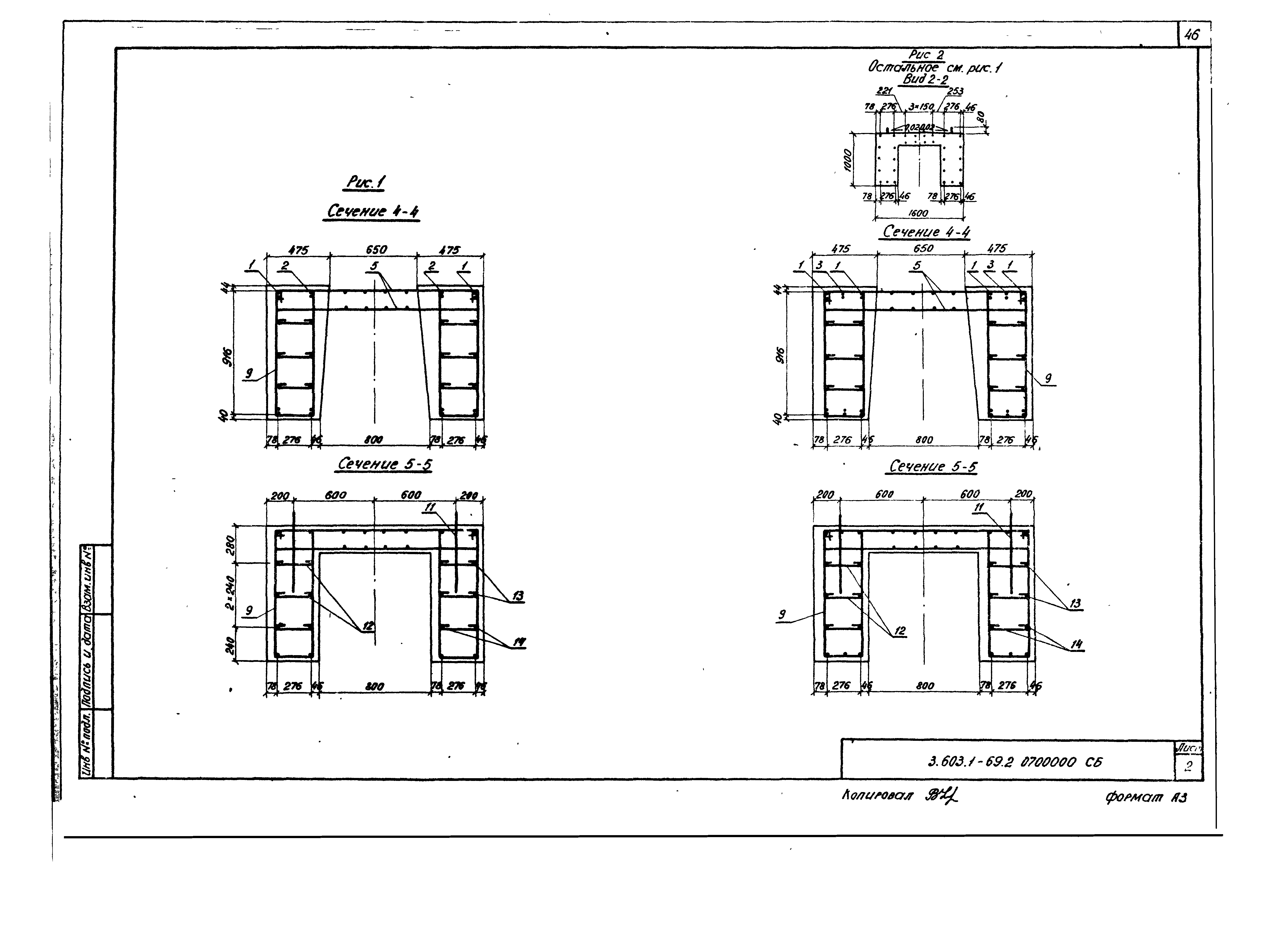
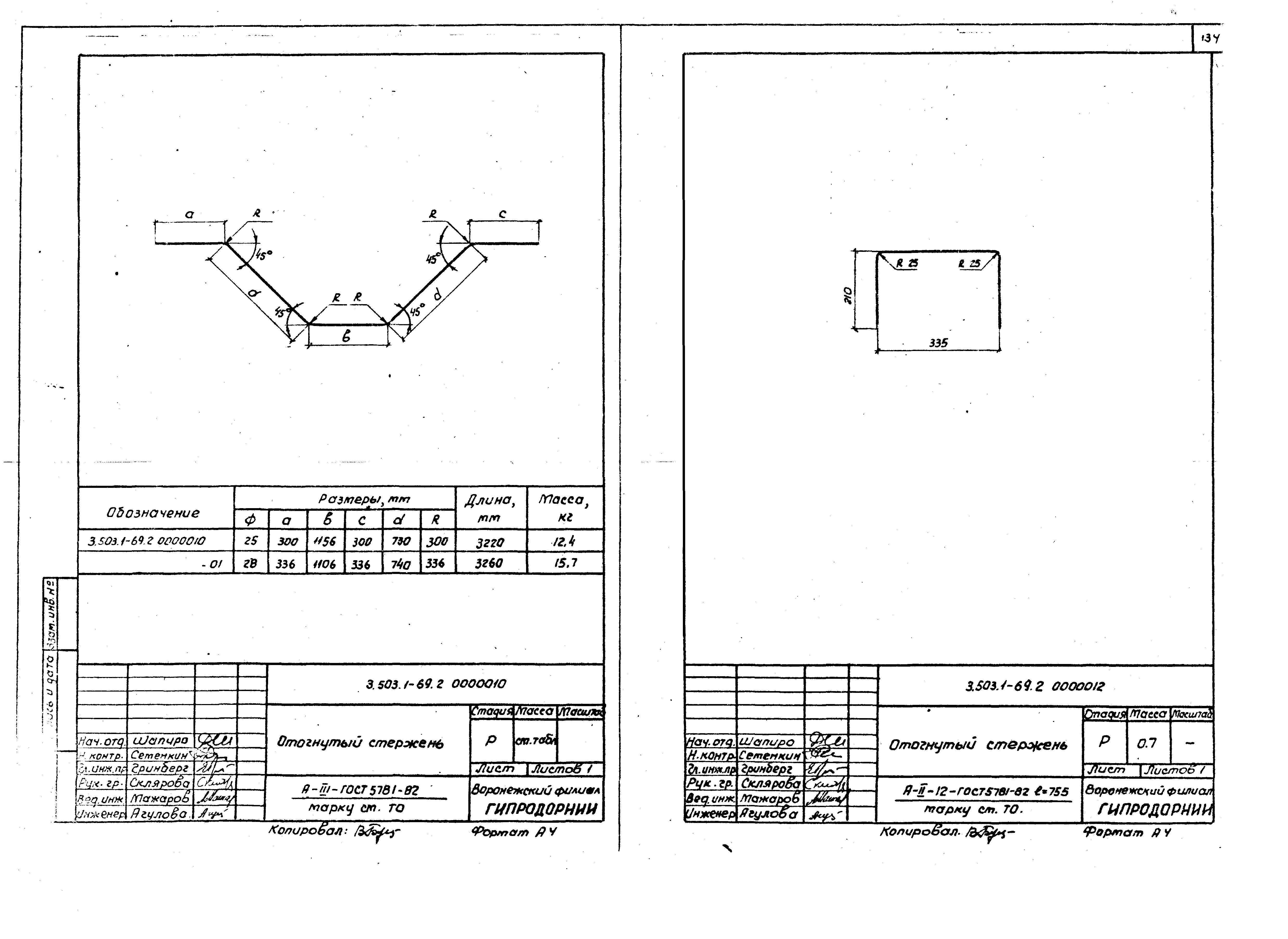
Скачать Серия 3.503.1-69 Выпуск 2. Железобетонные изделия. Рабочие чертежиДата актуализации: 10.08.2017
|
| Обозначение: | Серия 3.503.1-69 |
| Обозначение англ: | Series 3.503.1-69 |
| Статус: | не определен законодательством |
| Название рус.: | Выпуск 2. Железобетонные изделия. Рабочие чертежи |
| Дата добавления в базу: | 01.09.2013 |
| Дата актуализации: | 05.05.2017 |
| Дата введения: | 01.01.1987 |
| Разработан: | Воронежский филиал ГипродорНИИ |
| Утверждён: | 12.08.1986 Министерство автомобильных дорог РСФСР (51) |
| Расположен в: |











































































































































