| ||||||||||||||||||||||||||
Скачать Серия 3.503.1-60 Выпуск 4. Технологические схемы сооружения опорДата актуализации: 10.08.2017
|
| Обозначение: | Серия 3.503.1-60 |
| Обозначение англ: | Series 3.503.1-60 |
| Статус: | не определен законодательством |
| Название рус.: | Выпуск 4. Технологические схемы сооружения опор |
| Дата добавления в базу: | 01.09.2013 |
| Дата актуализации: | 05.05.2017 |
| Дата введения: | 01.01.1986 |
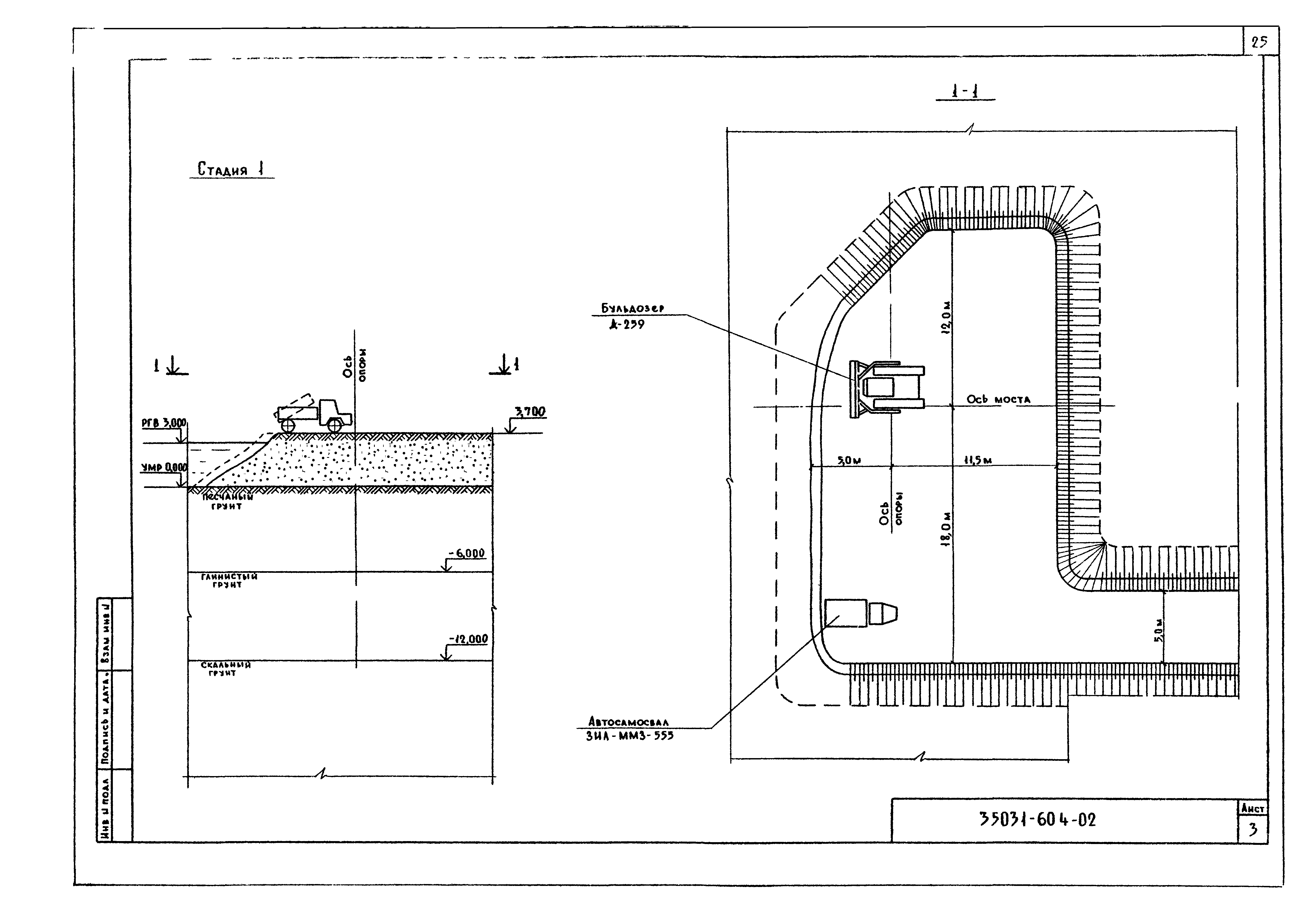
| Оглавление: | 3.503.1-60.4-00 ПЗ Пояснительная записка 3.503.1-60.4-01 Мероприятия по контролю качества 3.503.1-60.4-02 Технологические схемы сооружения опоры с фундаментной частью на сваях-оболочках диаметром 1,6 м при глубине воды 3,0 м 3.503.1-60.4-03 График сооружения опоры с фундаментной частью на сваях-оболочках диаметром 1,6 м при глубине воды до 30 м 3.503.1-60.4-04 Технологические схемы сооружения опоры с фундаментной частью на полнотелых столбах диаметром 0,8 м при глубине воды до 30 м 3.503.1-60.4-05 График сооружения опоры с фундаментной частью на полнотелых столбах диаметром 0,8 м при глубине воды до График сооружения опоры с фундаментной частью на 30 м 3.503.1-60.4-06 Технологические схемы сооружения опоры с фундаментной частью на буронабивных сваях диаметром 1,7 м при глубине воды до 30 м 3.503.1-60.4-07 График сооружения опоры с фундаментной частью на буронабивных сваях диаметром 1,7 м при глубине воды до 30 м 3.503.1-60.4-08 Технологические схемы сооружения опоры с фундаментной частью на сваях-оболочках диаметром 1,6 м при глубине воды 50 м 3.503.1-60.4-09 График сооружения опоры с фундаментной частью на сваях-оболочках диаметром 1,6 м при глубине воды 50 м 3.503.1-60.4-10 Схемы прогрева бетона |
| Разработан: | СКБ Главмостостроя |
| Утверждён: | 29.12.1985 Минавтодор РСФСР (Russian Federation Minavtodor ) |
| Расположен в: |


























































































