| ||||||||||||||||||||||||||||
Скачать Серия 3.503.1-92 Выпуск 2. Изделия заводского изготовления. Рабочие чертежиДата актуализации: 10.08.2017
|
| Обозначение: | Серия 3.503.1-92 |
| Обозначение англ: | Series 3.503.1-92 |
| Статус: | не определен законодательством |
| Название рус.: | Выпуск 2. Изделия заводского изготовления. Рабочие чертежи |
| Дата добавления в базу: | 01.09.2013 |
| Дата актуализации: | 05.05.2017 |
| Дата введения: | 01.08.1990 |
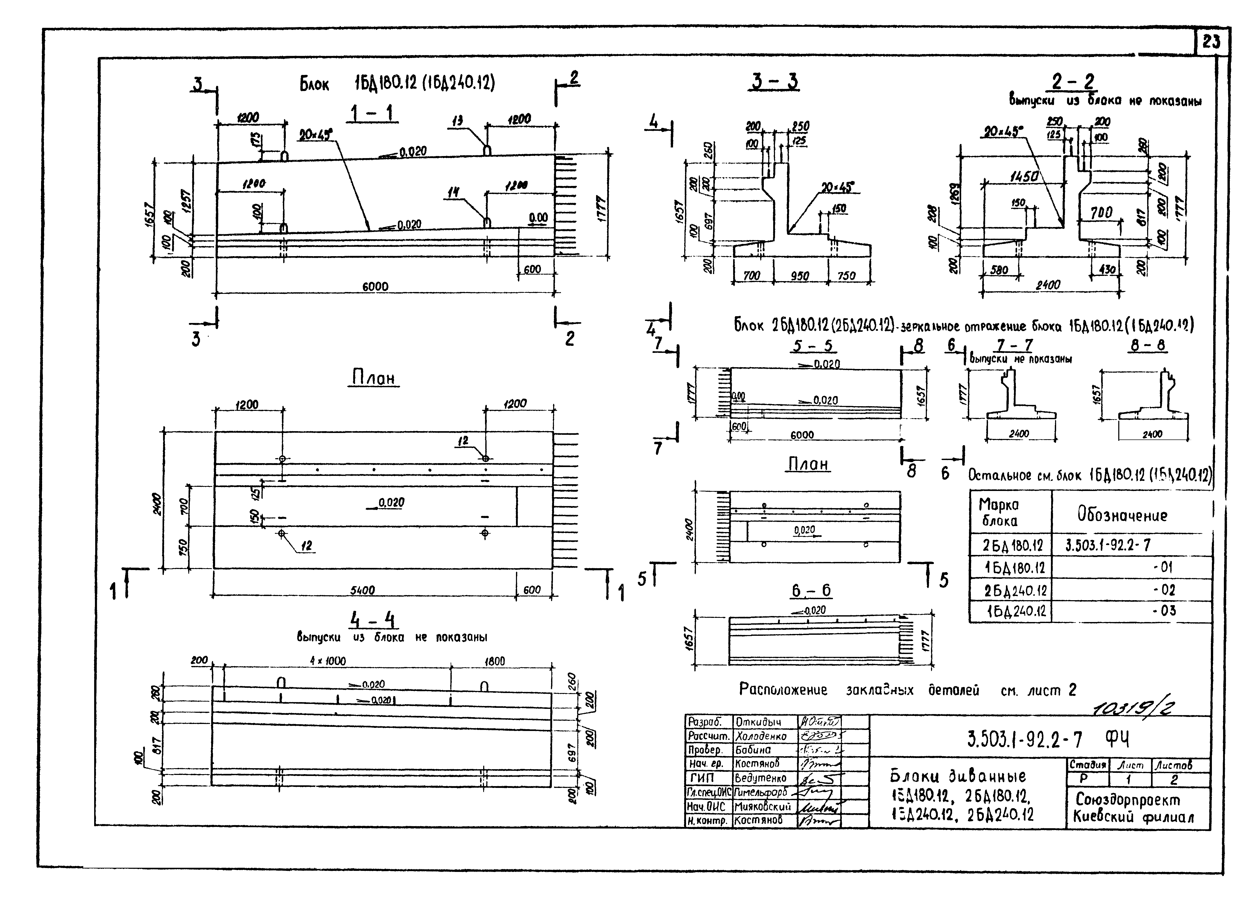
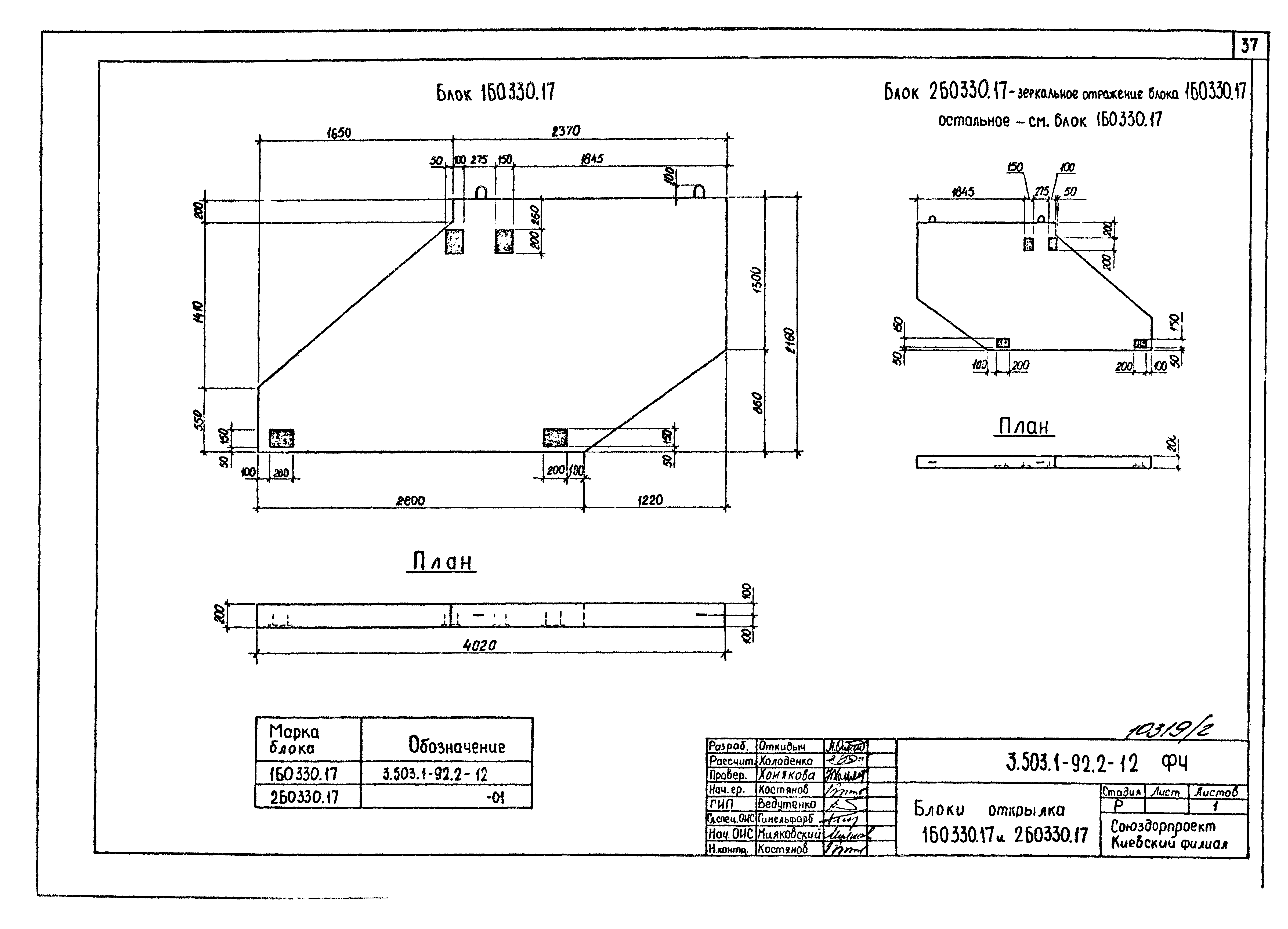
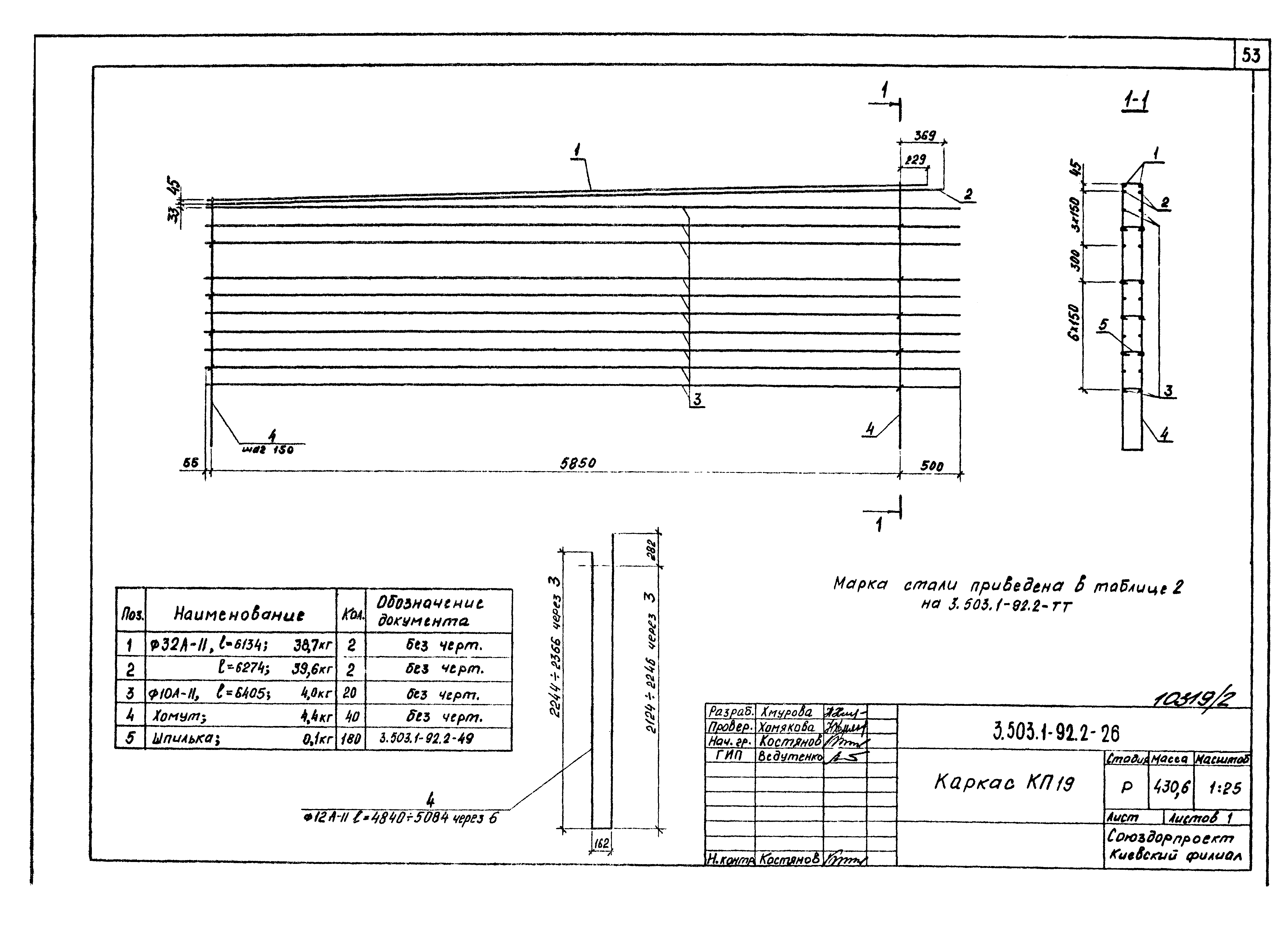
| Оглавление: | 3.503.1-92.2-ТТ Технические требования 3.503.1-92.2-1 ФЧ Блоки диванные 1БД120.9 и 2БД120.9 3.503.1-92.2-2 ФЧ Блок диванный 3БД120.9 3.503.1-92.2-1 Блоки диванные 1БД120.9 и 2БД120.9 3.503.1-92.2-2 Блок диванный 3БД120.9 3.503.1-92.2-3 Блоки открылков 1БО120.9, 2БО120.9 3.503.1-92.2-4 ФЧ Блоки диванные 1БД180.10 и 2БД180.10 3.503.1-92.2-5 ФЧ Блок диванный 3БД180.10 3.503.1-92.2-4 Блоки диванные 1БД180.10 и 2БД180.10 3.503.1-92.2-5 Блок диванный 3БД180.10 3.503.1-92.2-6 Блоки открылка 1БО180.10, 2БО180.10 3.503.1-92.2-7 ФЧ Блоки диванные 1БД180.12, 2БД180.12, 1БД240.12, 2БД240.12 3.503.1-92.2-8 ФЧ Блоки диванные 3БД180.12, 3БД240.12 3.503.1-92.2-7 Блоки диванные 1БД180.12, 2БД180.12, 1БД240.12, 2БД240.12 3.503.1-92.2-8 Блоки диванные 3БД180.12, 3БД240.12 3.503.1-92.2-9 Блоки открылка 1БО180.12, 2БО180.12 3.503.1-92.2-10 ФЧ Блоки диванные 1БД330.17, 2БД330.17 3.503.1-92.2-11 ФЧ Блок диванный 3БД330.17 3.503.1-92.2-10 Блоки диванные 1БД330.17, 2БД330.17 3.503.1-92.2-11 Блок диванный 3БД330.17 3.503.1-92.2-12 ФЧ Блоки открылка 1БО330.17 и 2БО330.17 3.503.1-92.2-12 Блоки открылков 1БО330.17 и 2БО330.17 3.503.1-92.2-13 Каркас КП1 3.503.1-92.2-14 Каркас КП2 3.503.1-92.2-15 Каркасы КП3, КП4 3.503.1-92.2-16 Каркас КП5 3.503.1-92.2-17 Каркас КП6 3.503.1-92.2-18 Каркас КП7 3.503.1-92.2-19 Каркасы КП8, КП9 3.503.1-92.2-20 Каркас КП10 3.503.1-92.2-21 Каркас КП11 3.503.1-92.2-22 Каркасы КП12, КП13 3.503.1-92.2-23 Каркасы КП13, КП15 3.503.1-92.2-24 Каркас КП16 3.503.1-92.2-25 Каркасы КП17, КП18 3.503.1-92.2-26 Каркас КП19 3.503.1-92.2-27 Каркас КП20 3.503.1-92.2-28 Каркас КП21 3.503.1-92.2-29 Каркас КП22 3.503.1-92.2-30 Каркас КП23 3.503.1-92.2-31 Каркас КП24 3.503.1-92.2-32 Сетки С1, С2 3.503.1-92.2-33 Сетки С6, С3 3.503.1-92.2-34 Сетки С4, С5 3.503.1-92.2-35 Сетки С10, С7 3.503.1-92.2-36 Сетки С8, С9 3.503.1-92.2-37 Сетки С11, С12 3.503.1-92.2-38 Сетки С13, С14 3.503.1-92.2-39 Сетки С15, С16 3.503.1-92.2-40 Изделие закладное МН-1 3.503.1-92.2-41 Изделие закладное МН-2 3.503.1-92.2-42 Изделие закладное МН-3 3.503.1-92.2-43 Хомут 3.503.1-92.2-44 Хомут 3.503.1-92.2-45 Хомут 3.503.1-92.2-46 Хомут 3.503.1-92.2-47 Хомут 3.503.1-92.2-48 Хомут 3.503.1-92.2-49 Шпилька 3.503.1-92.2-50 Хомут 3.503.1-92.2-51 Гнутый стержень 3.503.1-92.2-52 Гнутый стержень 3.503.1-92.2-53 РС Ведомость расхода стали. Изделия железобетонные |
| Разработан: | Киевский филиал Союздорпроекта |
| Утверждён: | 06.04.1989 Минтрансстрой СССР (USSR Mintransstroy АВ-167) |
| Издан: | ЦИТП Госстроя СССР (CITP, Gosstroy (USSR) 1990 г. ) |
| Расположен в: |









































































