Информационная система
«Ёшкин Кот»

Скачать базу одним архивом
Скачать обновления
История создания базы
Карта сайта

Скачать Серия 3.407.2-155 Выпуск 2. Анкерно-угловые и промежуточно-угловые опоры. Чертежи КМ

Дата актуализации: 10.08.2017

Серия 3.407.2-155

Выпуск 2. Анкерно-угловые и промежуточно-угловые опоры. Чертежи КМ

Обозначение: Серия 3.407.2-155
Обозначение англ: Series 3.407.2-155
Статус:не определен законодательством
Название рус.:Выпуск 2. Анкерно-угловые и промежуточно-угловые опоры. Чертежи КМ
Дата добавления в базу:01.09.2013
Дата актуализации:05.05.2017
Дата введения:01.06.1988
Оглавление:3.407.2-155.0-00Т Техническое описание
3.407.2-155.2-01КМ Опоры УС500-1, УС500-1+5, УСК500-1+13. Монтажная схема
3.407.2-155.2-02КМ Опоры УСК500-1, УСК500-1+5, УСК500-1+13. Монтажная схема
3.407.2-155.2-03КМ Опоры УСТ500-1+5, УСК500-1+13. Монтажная схема
3.407.2-155.2-04КМ Опоры УСКТ500-1+5, УСКТ500-1+13. Монтажная схема
3.407.2-155.2-05КМ Опоры УС500-1, УС500-1+5, УС500-1+13, УСК500-1, УСК500-1+5, УСК500-1+13, УСТ500-1+5, УСТ500-1+13, УСКТ500-1+5, УСКТ500-1+13. Техническая спецификация стали
3.407.2-155.2-06КМ Опоры УО500-1, УО500-1+5, УО500-1+13. Монтажная схема
3.407.2-155.2-07КМ Опоры УОК500-1, УОК500-1+5, УОК500-1+13. Монтажная схема
3.407.2-155.2-08КМ Опоры УО500-1, УО500-1+5, УО500-1+13, УОК500-1, УОК500-1+5, УОК500-1+13. Техническая спецификация стали
3.407.2-155.2-09КМ Опоры ПУ500-1, ПУ500-1+5. Монтажная схема
3.407.2-155.2-10КМ Опоры ПУ500-1, ПУ500-1+5. Техническая спецификация стали
3.407.2-155.2-11КМ Ведомость расхода стали
3.407.2-155.2-12КМ Узлы 1, 2, 5, 6, 7
3.407.2-155.2-13КМ Узлы 3, 4
3.407.2-155.2-14КМ Узлы 8 … 13
3.407.2-155.2-15КМ Узлы 14, 15
3.407.2-155.2-16КМ Узел 16
3.407.2-155.2-17КМ Стойка C-11
3.407.2-155.2-18КМ Подставка С-12
3.407.2-155.2-19КМ Подставка С-13, Башмак Б-2
3.407.2-155.2-20КМ Стойка С-14
3.407.2-155.2-21КМ Стойка С-15
3.407.2-155.2-22КМ Стойка С-16
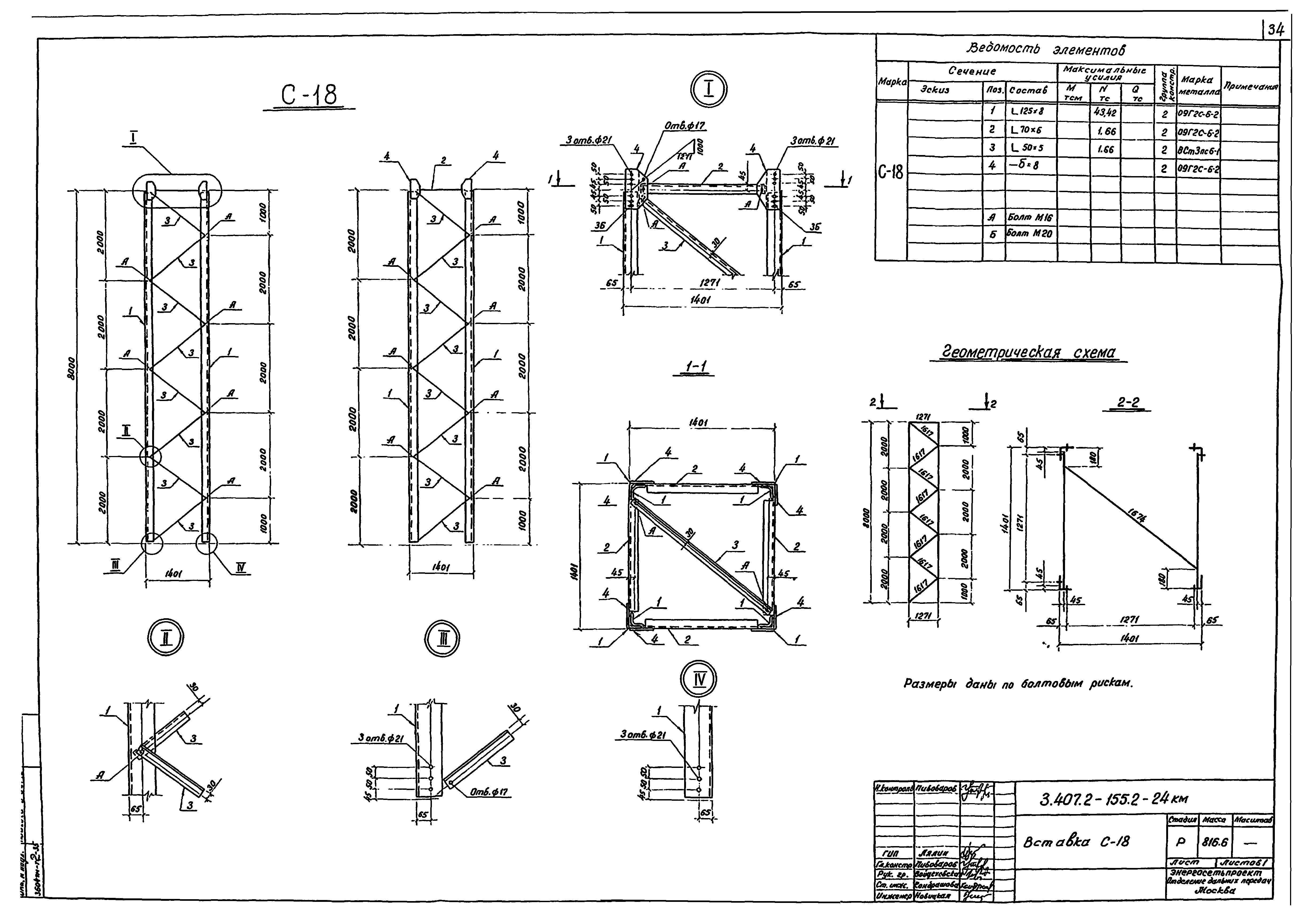
3.407.2-155.2-23КМ Вставка С-17
3.407.2-155.2-24КМ Вставка С-18
3.407.2-155.2-25КМ Стойка С-19
3.407.2-155.2-26КМ Вставка С-20
3.407.2-155.2-27КМ Стойка С-21
3.407.2-155.2-28КМ Стойка С-22
3.407.2-155.2-29КМ Тросостойка ТС-2
3.407.2-155.2-30КМ Тросостойка ТС-3
3.407.2-155.2-31КМ Траверсы ТР3, ТР4
3.407.2-155.2-32КМ Траверсы ТР5
3.407.2-155.2-33КМ Оттяжки ОТ3-1, ОТ3-2, ОТ3-3, ОТ4-1, ОТ4-2, ОТ4-3, ОТ5-1, ОТ5-2, ОТ5-3
3.407.2-155.2-34КМ Оттяжки ОТ6-1, ОТ6-2, ОТ7-1, ОТ7-2, ОТ8-1, ОТ8-2
Разработан: Энергосетьпроект
Утверждён:22.06.1988 Минэнерго СССР (USSR Minenergo 8)
Расположен в:Техническая документация Строительство Справочные документы Типовые строительные конструкции, изделия и узлы Общероссийский строительный каталог Строительные конструкции, изделия и узлы зданий и сооружений для всех видов строительства Конструкции и изделия сооружений и оборудования зданий Надземные сооружения Опоры и порталы линий электропередачи, освещения, связи и др. Стальные
Серия 3.407.2-155Серия 3.407.2-155Серия 3.407.2-155Серия 3.407.2-155Серия 3.407.2-155Серия 3.407.2-155Серия 3.407.2-155Серия 3.407.2-155Серия 3.407.2-155Серия 3.407.2-155Серия 3.407.2-155Серия 3.407.2-155Серия 3.407.2-155Серия 3.407.2-155Серия 3.407.2-155Серия 3.407.2-155Серия 3.407.2-155Серия 3.407.2-155Серия 3.407.2-155Серия 3.407.2-155Серия 3.407.2-155Серия 3.407.2-155Серия 3.407.2-155Серия 3.407.2-155Серия 3.407.2-155Серия 3.407.2-155Серия 3.407.2-155Серия 3.407.2-155Серия 3.407.2-155Серия 3.407.2-155Серия 3.407.2-155Серия 3.407.2-155Серия 3.407.2-155Серия 3.407.2-155Серия 3.407.2-155Серия 3.407.2-155Серия 3.407.2-155Серия 3.407.2-155Серия 3.407.2-155Серия 3.407.2-155Серия 3.407.2-155Серия 3.407.2-155Серия 3.407.2-155Серия 3.407.2-155Серия 3.407.2-155Серия 3.407.2-155Серия 3.407.2-155Серия 3.407.2-155Серия 3.407.2-155Серия 3.407.2-155Серия 3.407.2-155

© 2013 Ёшкин Кот :-) Карта сайта