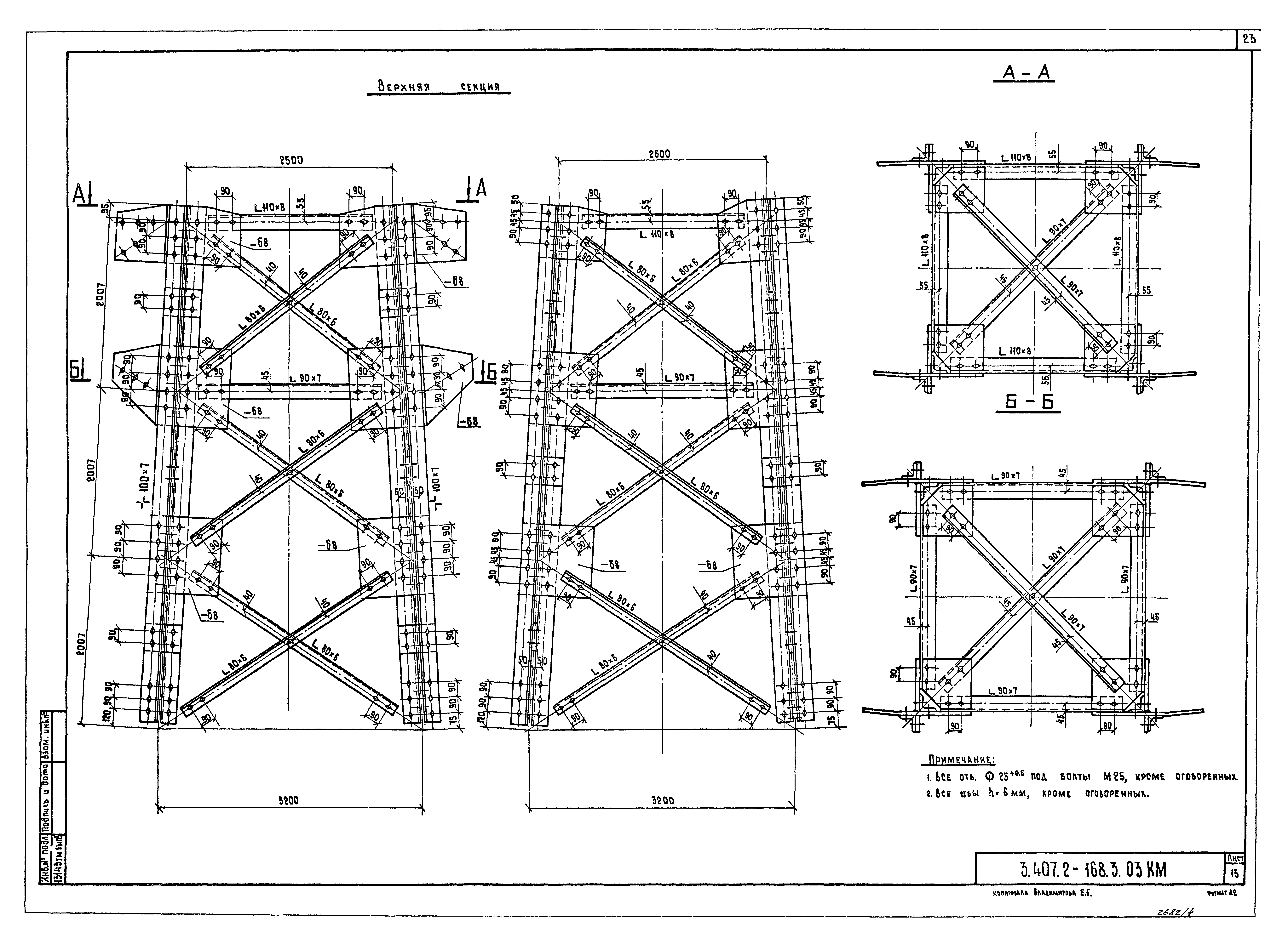
Скачать Серия 3.407.2-168 Выпуск 3. Переходные опоры 330 кВ. Рабочие чертежи КМДата актуализации: 10.08.2017 Серия 3.407.2-168
Выпуск 3. Переходные опоры 330 кВ. Рабочие чертежи КМ| Обозначение: | Серия 3.407.2-168 | | Обозначение англ: | Series 3.407.2-168 | | Статус: | действует | | Название рус.: | Выпуск 3. Переходные опоры 330 кВ. Рабочие чертежи КМ | | Дата добавления в базу: | 01.09.2013 | | Дата актуализации: | 05.05.2017 | | Разработан: | Севзапэнергосетьпроект
| | Утверждён: | 01.09.1989 Минэнерго СССР (USSR Minenergo 33)
| | Издан: | ЦИТП Госстроя СССР (CITP, Gosstroy (USSR) 1988 г. )
| | Расположен в: |
|
                                                                                     
|