Информационная система
«Ёшкин Кот»

Скачать базу одним архивом
Скачать обновления
История создания базы
Карта сайта

Скачать Типовой проект 801-2-50.85 Альбом I. Архитектурно-строительные решения. Конструкции деревянные

Дата актуализации: 10.08.2017

Типовой проект 801-2-50.85

Альбом I. Архитектурно-строительные решения. Конструкции деревянные

Обозначение: Типовой проект 801-2-50.85
Обозначение англ: 801-2-50.85
Статус:не определен законодательством
Название рус.:Альбом I. Архитектурно-строительные решения. Конструкции деревянные
Дата добавления в базу:01.09.2013
Дата актуализации:05.05.2017
Дата введения:31.10.1983
Оглавление:ПЗ-1 Пояснительная записка (начало)
ПЗ-2 Пояснительная записка (продолжение)
ПЗ-3 Пояснительная записка (продолжение)
ПЗ-4 Пояснительная записка (окончание)
Р Основной комплект рабочих чертежей марки АР
   АР-1 Общие данные
   АР-2 План на отм. 0.001
   АР-3 План на отм. 0.000 (вариант)
   АР-4 Фрагменты 1, 2, 3
   АР-5 Разрезы 1-1, 2-2. Узлы I, II, III
   АР-6 Фасады. ОК-1, ОК-2
   АР-7 План чердака. План кровли
   АР-8 Венткамеры № 1 и № 2. Разрезы 1-1, 2-2, 3-3. Узлы 1, 2
   АР-9 План полов и устройство выравнивания электрических потенциалов
   АР-10 Обрамление ворот
   АРИ-РМ-101.00.00 Рамка металлическая РМ1
   АРИ-РМ3-02.00.00 Рамка металлическая РМ3
   АРИ-РМ5-03.00.00 Рамка металлическая РМ5
   АРИ-МД1-04.00.00 Изделие закладное МД1
   АРИ-05.00.00 Перемычки БП-4-1А, БП4-2А, БП3-2А
   АРИ-РМ2-06.00.00 Рамка металлическая РМ2
   АРИ-РМ4-07.00.00 Рамка металлическая РМ4
   АРИ-МД2-08.00.00 Изделие закладное МД2
Основной комплект рабочих чертежей марки КЖ
   КЖ-1 Общие данные
   КЖ-2 Схема расположения фундаментов
   КЖ-3 Сечения 1-1 - 7-7. ФО-1. Деталь опирания кирпичной стены
   КЖ-4 Схема расположения свайных фундаментов. Сечения 1-1 - 6-6 (вариант)
   КЖ-5 Схема расположения свайных фундаментов. Сечения 1-1 - 7-7 (вариант со сборным ростверком)
   КЖ-6 Схема каналов навозоудаления и кормушек
   КЖ-7 Фрагменты 1, 2, 3
   КЖ-8 Схемы площадок на отм. 3,470 и 2,700. Схема опор трубопроводов
   КЖИ-А3-01.00.00 Анкер А3
   КЖИ-СО-02.00.00 Скользящая опора СО
   КЖИ-НО-03.00.00СБ Неподвижная опора НО
   КЖИ-НО-03.00.00 Неподвижная опора НО
   КЖИ-Р1-04.00.00 Решетка Р1
   КЖИ-Щ1-05.00.00 Изделие деревянное Щ1
   КЖИ-Щ2-06.00.00 Изделие деревянное Щ2
   КЖИ-Щ3-07.00.00 Изделие деревянное Щ3
   КЖИ-Щ4-08.00.00 Изделие деревянное Щ4
Основной комплект рабочих чертежей марки КД
   КД-1 Общие данные
   КД-2 Схема перекрытия
   КД-3 Схема покрытия
   КД-4 Разрезы 1-1 - 5-5
   КД-5 Узлы 1-9
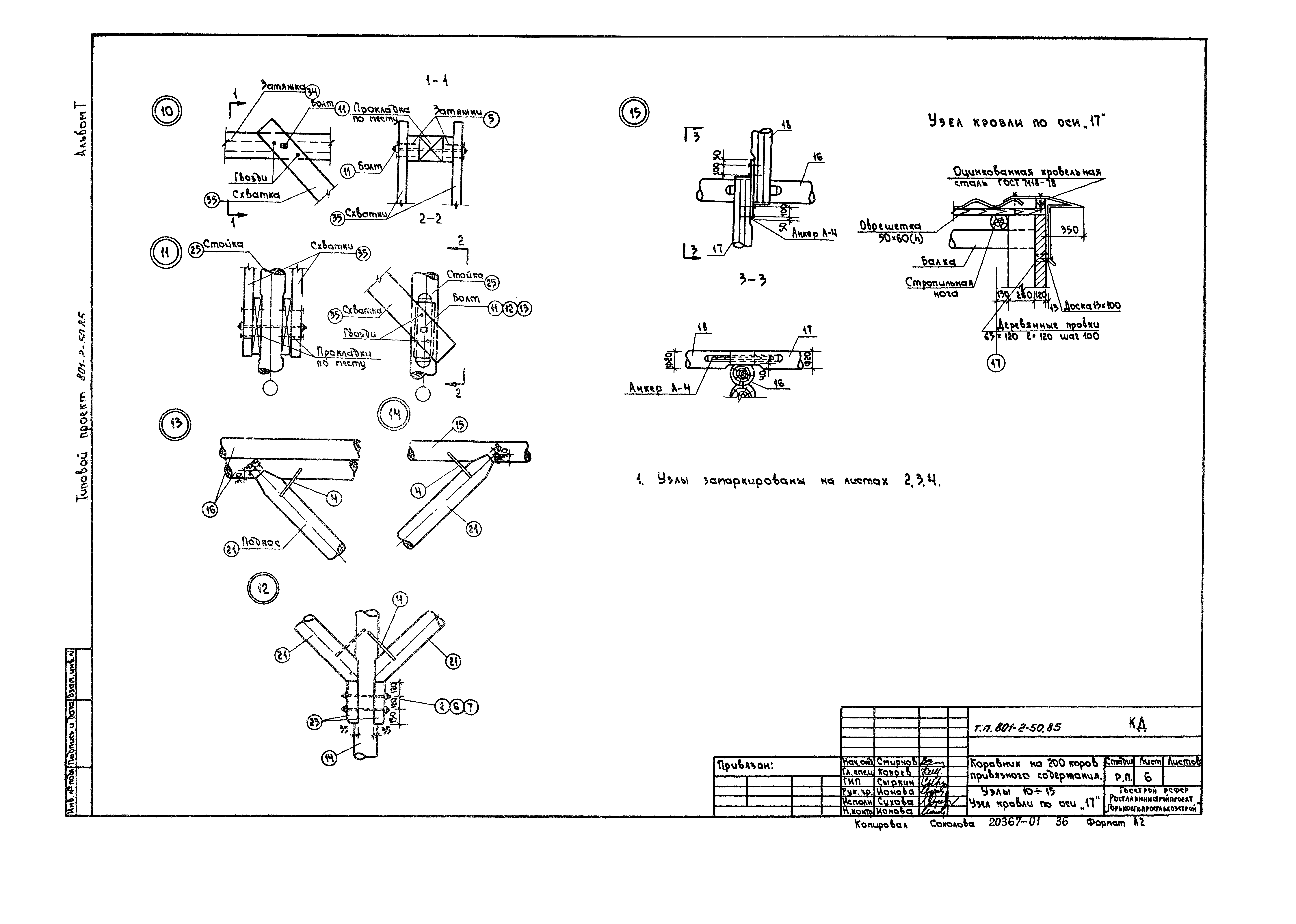
   КД-6 Узлы 10-15. Узел кровли по оси "17"
   КД-7 Слуховое окно ОС-1
   КДИ-А1-01.00.00 Анкер А-1
   КДИ-А2-02.00.00 Анкер А-2
   КДИ-А4-04.00.00 Анкер А-4
   КДИ-КС9-12-04.00.00 Коробка КС9
   КДИ-ПО9-12л-05.00.00 Переплет оконный ПО9-12л
   КДИ-ПЖ9-12пр-06.00.00 Переплет жалюзийный ПЖ9-12 пр.
Разработан: Институт Горьковгипросельхозстрой
Утверждён:03.06.1983 Минсельхоз РСФСР (Russian Federation Minselkhoz 5)
Расположен в:Техническая документация Строительство Справочные документы Типовые строительные конструкции, изделия и узлы Общероссийский строительный каталог Сельскохозяйственные предприятия, здания и сооружения Предприятия, здания и сооружения для крупного рогатого скота Здания и сооружения Производство молока и выращивание нетелей Коровники
Типовой проект 801-2-50.85Типовой проект 801-2-50.85Типовой проект 801-2-50.85Типовой проект 801-2-50.85Типовой проект 801-2-50.85Типовой проект 801-2-50.85Типовой проект 801-2-50.85Типовой проект 801-2-50.85Типовой проект 801-2-50.85Типовой проект 801-2-50.85Типовой проект 801-2-50.85Типовой проект 801-2-50.85Типовой проект 801-2-50.85Типовой проект 801-2-50.85Типовой проект 801-2-50.85Типовой проект 801-2-50.85Типовой проект 801-2-50.85Типовой проект 801-2-50.85Типовой проект 801-2-50.85Типовой проект 801-2-50.85Типовой проект 801-2-50.85Типовой проект 801-2-50.85Типовой проект 801-2-50.85Типовой проект 801-2-50.85Типовой проект 801-2-50.85Типовой проект 801-2-50.85Типовой проект 801-2-50.85Типовой проект 801-2-50.85Типовой проект 801-2-50.85Типовой проект 801-2-50.85Типовой проект 801-2-50.85Типовой проект 801-2-50.85Типовой проект 801-2-50.85Типовой проект 801-2-50.85Типовой проект 801-2-50.85Типовой проект 801-2-50.85Типовой проект 801-2-50.85Типовой проект 801-2-50.85Типовой проект 801-2-50.85Типовой проект 801-2-50.85Типовой проект 801-2-50.85Типовой проект 801-2-50.85Типовой проект 801-2-50.85Типовой проект 801-2-50.85Типовой проект 801-2-50.85Типовой проект 801-2-50.85Типовой проект 801-2-50.85Типовой проект 801-2-50.85Типовой проект 801-2-50.85Типовой проект 801-2-50.85Типовой проект 801-2-50.85Типовой проект 801-2-50.85Типовой проект 801-2-50.85Типовой проект 801-2-50.85Типовой проект 801-2-50.85Типовой проект 801-2-50.85Типовой проект 801-2-50.85

© 2013 Ёшкин Кот :-) Карта сайта