Скачать Серия 3.407.2-166 Выпуск 2. Дополнительные элементы к опорам ВЛ 35, 110, 220, 330 кВ в специальных условиях применения. Рабочие чертежиДата актуализации: 10.08.2017 Серия 3.407.2-166
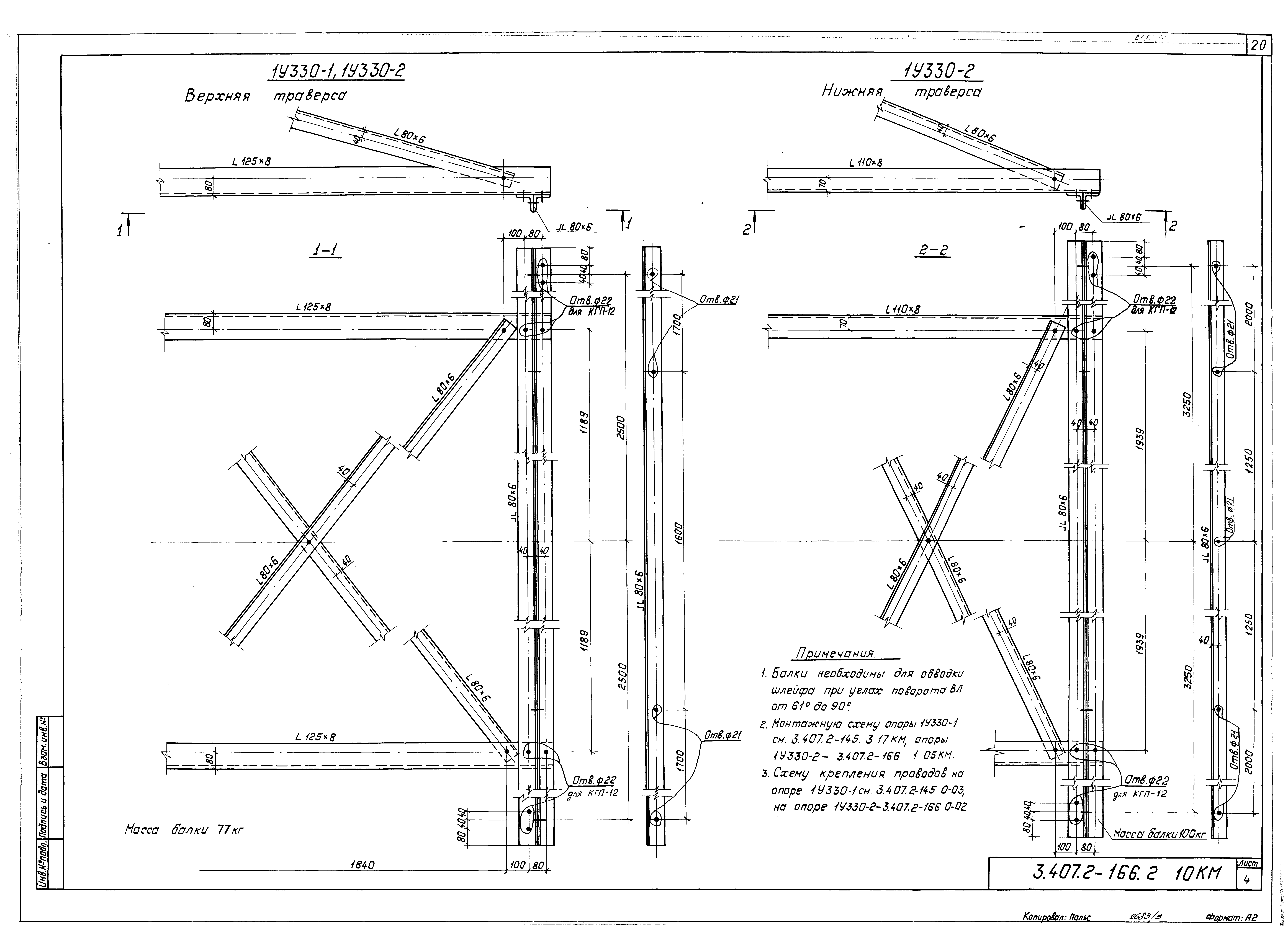
Выпуск 2. Дополнительные элементы к опорам ВЛ 35, 110, 220, 330 кВ в специальных условиях применения. Рабочие чертежиОбозначение: | Серия 3.407.2-166 | Обозначение англ: | Series 3.407.2-166 | Статус: | действует | Название рус.: | Выпуск 2. Дополнительные элементы к опорам ВЛ 35, 110, 220, 330 кВ в специальных условиях применения. Рабочие чертежи | Дата добавления в базу: | 01.09.2013 | Дата актуализации: | 05.05.2017 | Область применения: | Настоящий выпуск содержит чертежи дополнительных элементов, необходимых для использования унифицированных опор, разработанных в сериях 3.407.2-145, 3.407.2-156, 3.407.2-165, 3.407.2-166, 3.407.2-170, в расширенной области их применения на ВЛ 110, 220, 330 кВ | Разработан: | Севзапэнергосетьпроект
| Утверждён: | 31.08.1989 Минэнерго СССР (USSR Minenergo 31)
| Издан: | ЦИТП Госстроя СССР (CITP, Gosstroy (USSR) 1988 г. )
| Расположен в: |
| Заменяет собой: | |
                             
|