Информационная система
«Ёшкин Кот»

Скачать базу одним архивом
Скачать обновления
История создания базы
Карта сайта

Скачать Серия 3.407.2-166 Выпуск 0. Материалы для проектирования

Дата актуализации: 10.08.2017

Серия 3.407.2-166

Выпуск 0. Материалы для проектирования

Обозначение: Серия 3.407.2-166
Обозначение англ: Series 3.407.2-166
Статус:действует
Название рус.:Выпуск 0. Материалы для проектирования
Дата добавления в базу:01.09.2013
Дата актуализации:05.05.2017
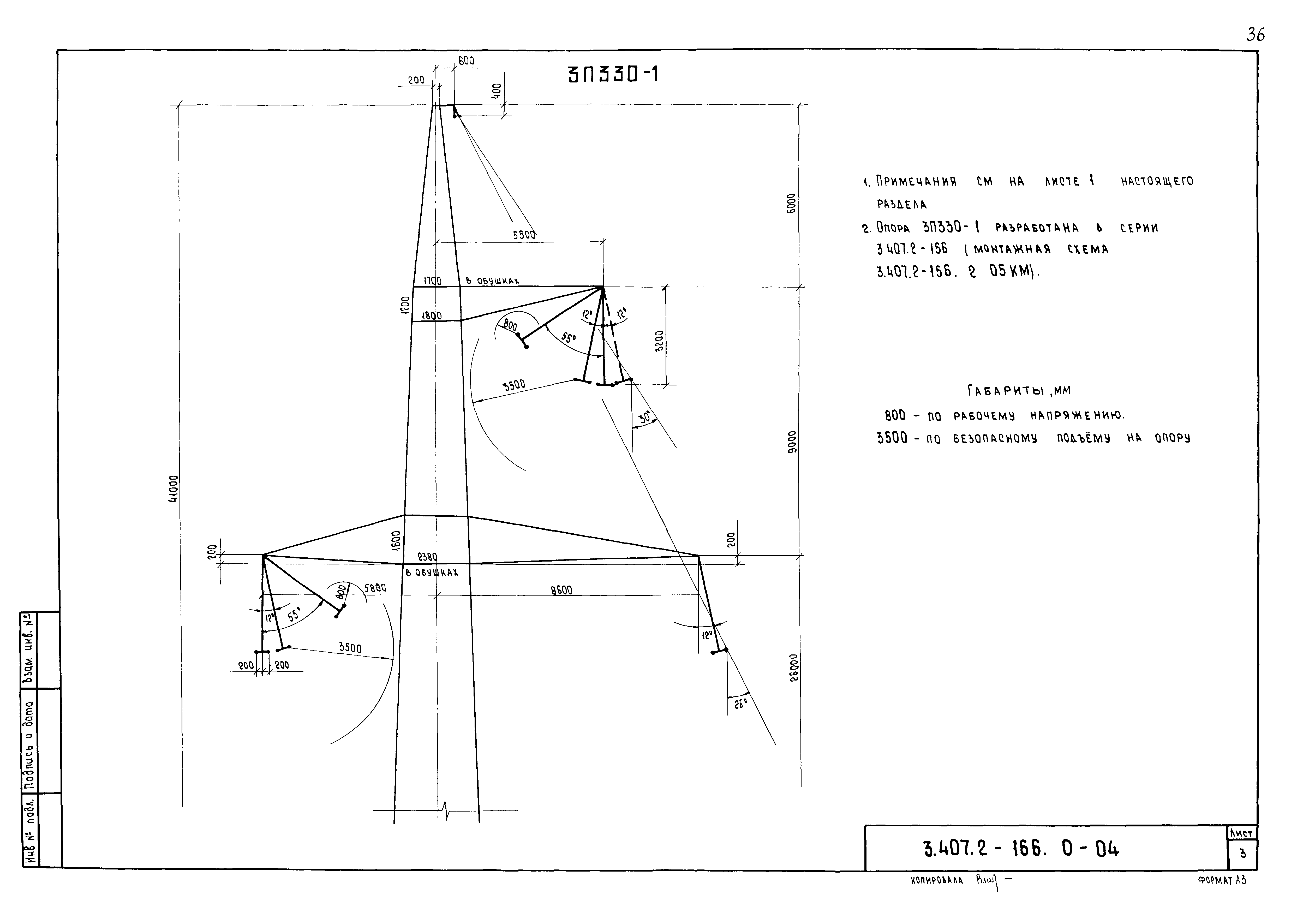
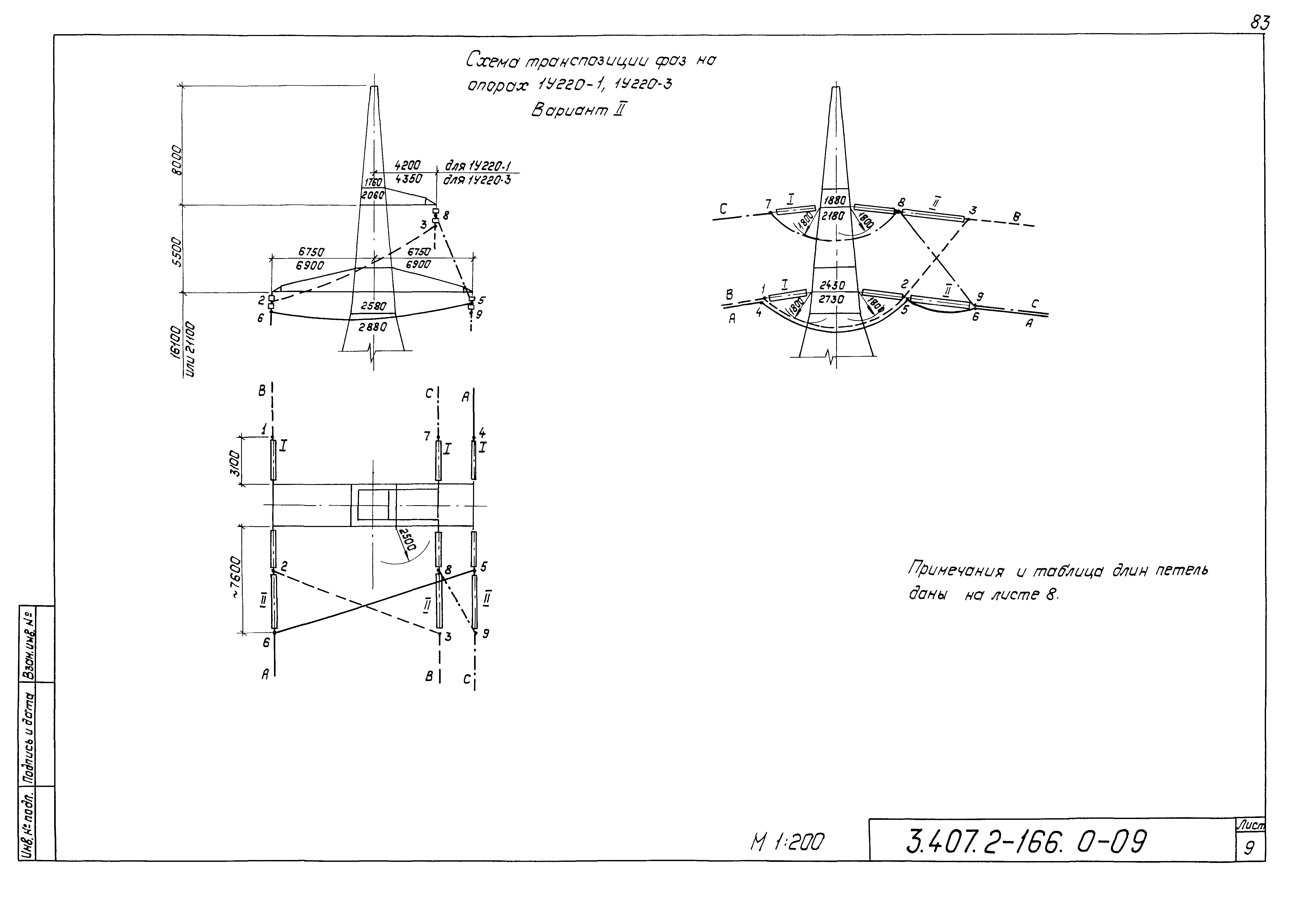
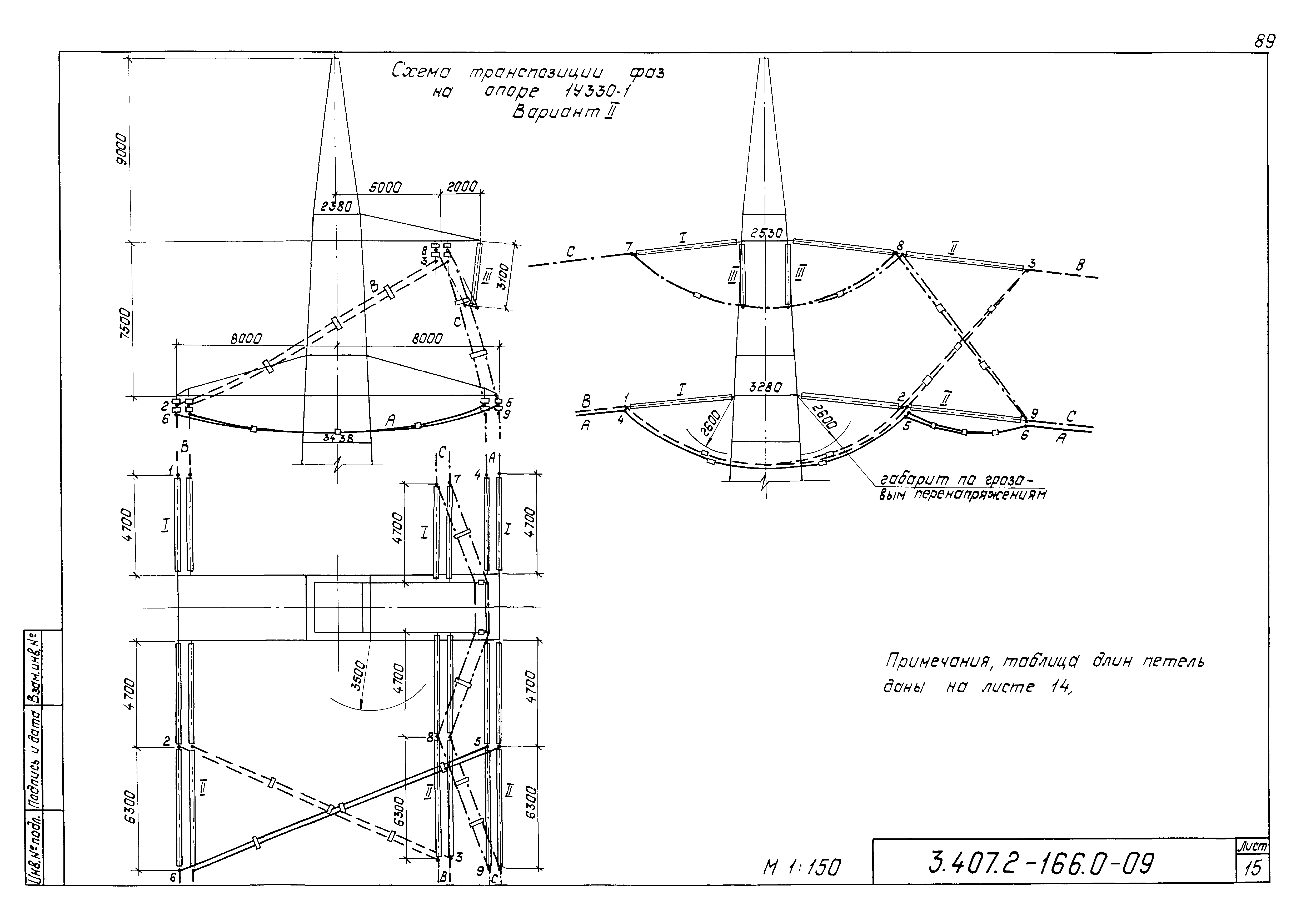
Область применения:Настоящая серия 3.407.2-166 содержит рабочие чертежи стадии КМ унифицированные специальных стальных опор и дополнительных элементов, необходимых для использования опор, разработанных в других сериях, в расширенной области их применения на ВЛ35, 110, 220 и 330 кВ
Разработан: Севзапэнергосетьпроект
Утверждён:31.08.1989 Минэнерго СССР (USSR Minenergo 31)
Издан: ЦИТП Госстроя СССР (CITP, Gosstroy (USSR) 1989 г. )
Расположен в:Техническая документация Строительство Справочные документы Типовые строительные конструкции, изделия и узлы Общероссийский строительный каталог Строительные конструкции, изделия и узлы зданий и сооружений для всех видов строительства Конструкции и изделия сооружений и оборудования зданий Надземные сооружения Опоры и порталы линий электропередачи, освещения, связи и др. Стальные
Заменяет собой:
Серия 3.407.2-166Серия 3.407.2-166Серия 3.407.2-166Серия 3.407.2-166Серия 3.407.2-166Серия 3.407.2-166Серия 3.407.2-166Серия 3.407.2-166Серия 3.407.2-166Серия 3.407.2-166Серия 3.407.2-166Серия 3.407.2-166Серия 3.407.2-166Серия 3.407.2-166Серия 3.407.2-166Серия 3.407.2-166Серия 3.407.2-166Серия 3.407.2-166Серия 3.407.2-166Серия 3.407.2-166Серия 3.407.2-166Серия 3.407.2-166Серия 3.407.2-166Серия 3.407.2-166Серия 3.407.2-166Серия 3.407.2-166Серия 3.407.2-166Серия 3.407.2-166Серия 3.407.2-166Серия 3.407.2-166Серия 3.407.2-166Серия 3.407.2-166Серия 3.407.2-166Серия 3.407.2-166Серия 3.407.2-166Серия 3.407.2-166Серия 3.407.2-166Серия 3.407.2-166Серия 3.407.2-166Серия 3.407.2-166Серия 3.407.2-166Серия 3.407.2-166Серия 3.407.2-166Серия 3.407.2-166Серия 3.407.2-166Серия 3.407.2-166Серия 3.407.2-166Серия 3.407.2-166Серия 3.407.2-166Серия 3.407.2-166Серия 3.407.2-166Серия 3.407.2-166Серия 3.407.2-166Серия 3.407.2-166Серия 3.407.2-166Серия 3.407.2-166Серия 3.407.2-166Серия 3.407.2-166Серия 3.407.2-166Серия 3.407.2-166Серия 3.407.2-166Серия 3.407.2-166Серия 3.407.2-166Серия 3.407.2-166Серия 3.407.2-166Серия 3.407.2-166Серия 3.407.2-166Серия 3.407.2-166Серия 3.407.2-166Серия 3.407.2-166Серия 3.407.2-166Серия 3.407.2-166Серия 3.407.2-166Серия 3.407.2-166Серия 3.407.2-166Серия 3.407.2-166Серия 3.407.2-166Серия 3.407.2-166Серия 3.407.2-166Серия 3.407.2-166Серия 3.407.2-166Серия 3.407.2-166Серия 3.407.2-166Серия 3.407.2-166Серия 3.407.2-166Серия 3.407.2-166Серия 3.407.2-166Серия 3.407.2-166Серия 3.407.2-166Серия 3.407.2-166Серия 3.407.2-166Серия 3.407.2-166Серия 3.407.2-166Серия 3.407.2-166Серия 3.407.2-166Серия 3.407.2-166Серия 3.407.2-166Серия 3.407.2-166Серия 3.407.2-166Серия 3.407.2-166Серия 3.407.2-166Серия 3.407.2-166

© 2013 Ёшкин Кот :-) Карта сайта