Информационная система
«Ёшкин Кот»

Скачать базу одним архивом
Скачать обновления
История создания базы
Карта сайта

Скачать Серия 3.407.1-143 Выпуск 2. Опоры на базе железобетонных стоек длиной 11 м. Рабочие чертежи

Дата актуализации: 10.08.2017

Серия 3.407.1-143

Выпуск 2. Опоры на базе железобетонных стоек длиной 11 м. Рабочие чертежи

Обозначение: Серия 3.407.1-143
Обозначение англ: Series 3.407.1-143
Статус:не определен законодательством
Название рус.:Выпуск 2. Опоры на базе железобетонных стоек длиной 11 м. Рабочие чертежи
Дата добавления в базу:01.09.2013
Дата актуализации:05.05.2017
Дата введения:01.07.1989
Оглавление:3.407.1-143.2.ПЗ Опоры на базе железобетонных стоек длиной 11 м. Пояснительная записка
3.407.1-143.2.1 Номенклатура пор ВЛ 10 кВ
3.407.1-143.2.2 Номенклатура установок электрооборудования на опорах
3.407.1-143.2.3 Спецификация элементов опор
3.407.1-143.2.4 Спецификация элементов установки электрооборудования на опорах
3.407.1-143.2.5 Промежуточная опора П10-3. Схема расположения
3.407.1-143.2.6 Промежуточная опора П10-4. Схема расположения
3.407.1-143.2.7 Угловая промежуточная опора УП10-2. Схема расположения
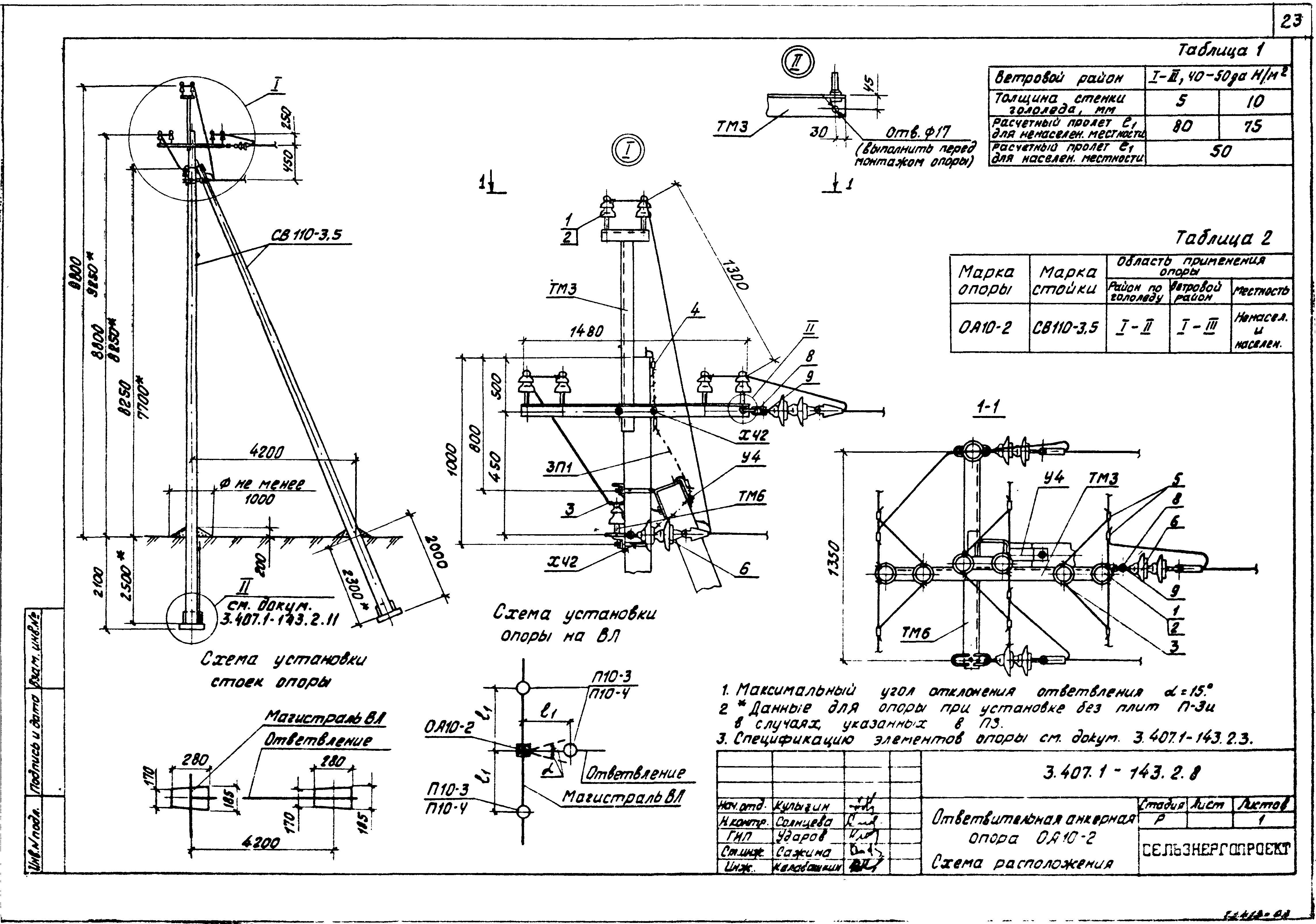
3.407.1-143.2.8 Ответвительная анкерная опора ОА10-2. Схема расположения
3.407.1-143.2.9 Анкерная (концевая) опора А10-2. Схема расположения
3.407.1-143.2.10 Угловая анкерная опора УА10-2. Схема расположения
3.407.1-143.2.11 Угловая ответвительная анкерная опора УОА10-2. Схема расположения
3.407.1-143.2.12 Устройство ответвления УОП на промежуточной опоре П10-3. Схема расположения
3.407.1-143.2.13 Устройство ответвления УОП на промежуточной опоре П10-4. Схема расположения
3.407.1-143.2.14 Устройство ответвления УОК на анкерной опоре А10-2. Схема расположения
3.407.1-143.2.15 Устройство ответвления УОК на концевой опоре А10-2. Схема расположения
3.407.1-143.2.16 Установка разъединителя ПР-2 на промежуточной опоре П10-4. Схема расположения
3.407.1-143.2.17 Установка разъединителя АР-2 на анкерной опоре А10-2. Схема расположения
3.407.1-143.2.18 Установка разъединителя КР-2 на концевой опоре А10-2. Схема расположения
3.407.1-143.2.19 Установка разъединителя ОАР-2 на ответвительной анкерной опоре ОА10-2. Схема расположения
3.407.1-143.2.20 Установка кабельной муфты ПМ-2 на промежуточной опоре П10-4. Схема расположения
3.407.1-143.2.21 Установка кабельной муфты КМ-2 на концевой опоре А10-2. Схема расположения
3.407.1-143.2.22 Установка разъединителя с кабельной муфтой КРМ-2 на концевой опоре А10-2. Схема расположения
3.407.1-143.2.23 Крепление провода на изоляторе
3.407.1-143.2.24 Зажимы
3.407.1-143.2.25 Подвеска натяжная изолирующая
3.407.1-143.2.РМ Ведомость расхода материалов
Разработан: Сельэнергопроект Минэнерго СССР
Утверждён:01.06.1988 Минэнерго СССР (USSR Minenergo 16-3/9-33)
Расположен в:Техническая документация Экология ГРАЖДАНСКОЕ СТРОИТЕЛЬСТВО Строительство дорог Строительство дорог, прочие аспекты Строительство Справочные документы Типовые строительные конструкции, изделия и узлы Общероссийский строительный каталог Строительные конструкции, изделия и узлы зданий и сооружений для всех видов строительства Конструкции и изделия сооружений и оборудования зданий Надземные сооружения Опоры и порталы линий электропередачи, освещения, связи и др. Железобетонные
Заменяет собой:
Серия 3.407.1-143Серия 3.407.1-143Серия 3.407.1-143Серия 3.407.1-143Серия 3.407.1-143Серия 3.407.1-143Серия 3.407.1-143Серия 3.407.1-143Серия 3.407.1-143Серия 3.407.1-143Серия 3.407.1-143Серия 3.407.1-143Серия 3.407.1-143Серия 3.407.1-143Серия 3.407.1-143Серия 3.407.1-143Серия 3.407.1-143Серия 3.407.1-143Серия 3.407.1-143Серия 3.407.1-143Серия 3.407.1-143Серия 3.407.1-143Серия 3.407.1-143Серия 3.407.1-143Серия 3.407.1-143Серия 3.407.1-143Серия 3.407.1-143Серия 3.407.1-143Серия 3.407.1-143Серия 3.407.1-143Серия 3.407.1-143Серия 3.407.1-143Серия 3.407.1-143Серия 3.407.1-143Серия 3.407.1-143Серия 3.407.1-143Серия 3.407.1-143Серия 3.407.1-143Серия 3.407.1-143Серия 3.407.1-143Серия 3.407.1-143Серия 3.407.1-143Серия 3.407.1-143Серия 3.407.1-143

© 2013 Ёшкин Кот :-) Карта сайта