Информационная система
«Ёшкин Кот»

Скачать базу одним архивом
Скачать обновления
История создания базы
Карта сайта

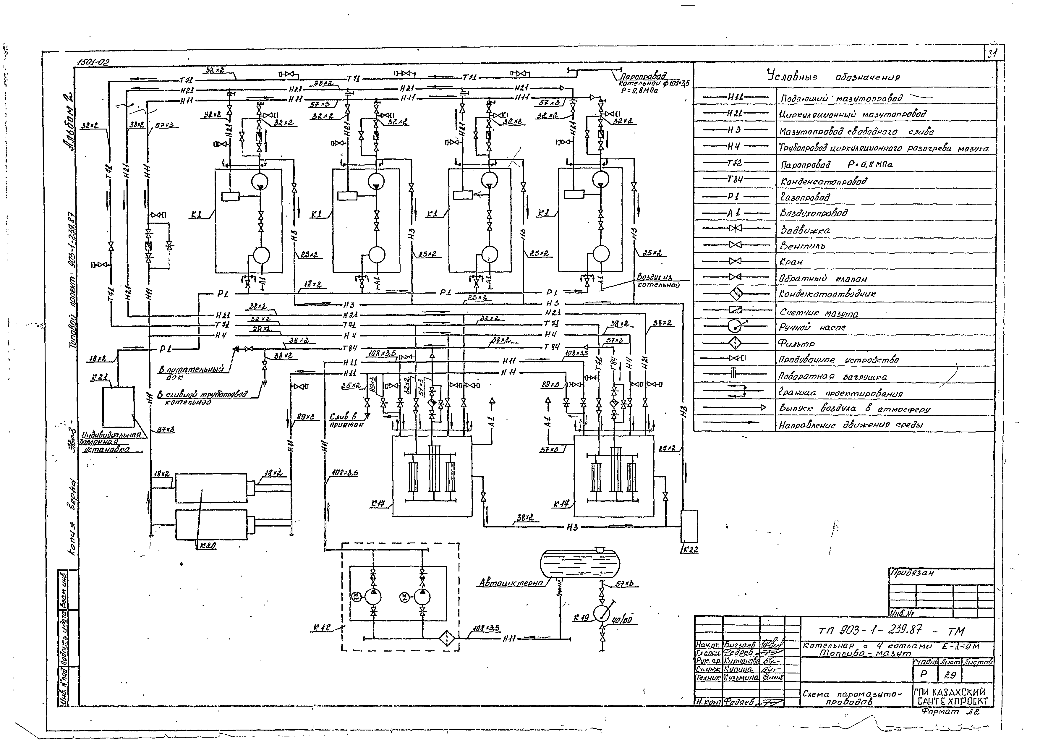
Скачать Типовой проект 903-1-239.87 Альбом 2. Тепломеханическая часть. Водопровод и канализация

Дата актуализации: 10.08.2017

Типовой проект 903-1-239.87

Альбом 2. Тепломеханическая часть. Водопровод и канализация

Обозначение: Типовой проект 903-1-239.87
Обозначение англ: 903-1-239.87
Статус:не определен законодательством
Название рус.:Альбом 2. Тепломеханическая часть. Водопровод и канализация
Дата добавления в базу:01.09.2013
Дата актуализации:05.05.2017
Дата введения:19.01.1987
Разработан: ГПИ Казахский Сантехпроект Госстроя СССР
Утверждён:19.01.1987 ВО Союзсантехпроект (2/КУ-87)
Расположен в:Техническая документация Строительство Справочные документы Типовые строительные конструкции, изделия и узлы Общероссийский строительный каталог Промышленные предприятия, здания и сооружения Здания и сооружения санитарно-технические Теплоснабжение Котельные установки Закрытые системы теплоснабжения Топливо - мазут
Типовой проект 903-1-239.87Типовой проект 903-1-239.87Типовой проект 903-1-239.87Типовой проект 903-1-239.87Типовой проект 903-1-239.87Типовой проект 903-1-239.87Типовой проект 903-1-239.87Типовой проект 903-1-239.87Типовой проект 903-1-239.87Типовой проект 903-1-239.87Типовой проект 903-1-239.87Типовой проект 903-1-239.87Типовой проект 903-1-239.87Типовой проект 903-1-239.87Типовой проект 903-1-239.87Типовой проект 903-1-239.87Типовой проект 903-1-239.87Типовой проект 903-1-239.87Типовой проект 903-1-239.87Типовой проект 903-1-239.87Типовой проект 903-1-239.87Типовой проект 903-1-239.87Типовой проект 903-1-239.87Типовой проект 903-1-239.87Типовой проект 903-1-239.87Типовой проект 903-1-239.87Типовой проект 903-1-239.87Типовой проект 903-1-239.87Типовой проект 903-1-239.87Типовой проект 903-1-239.87Типовой проект 903-1-239.87Типовой проект 903-1-239.87Типовой проект 903-1-239.87Типовой проект 903-1-239.87Типовой проект 903-1-239.87Типовой проект 903-1-239.87Типовой проект 903-1-239.87Типовой проект 903-1-239.87Типовой проект 903-1-239.87Типовой проект 903-1-239.87Типовой проект 903-1-239.87

© 2013 Ёшкин Кот :-) Карта сайта