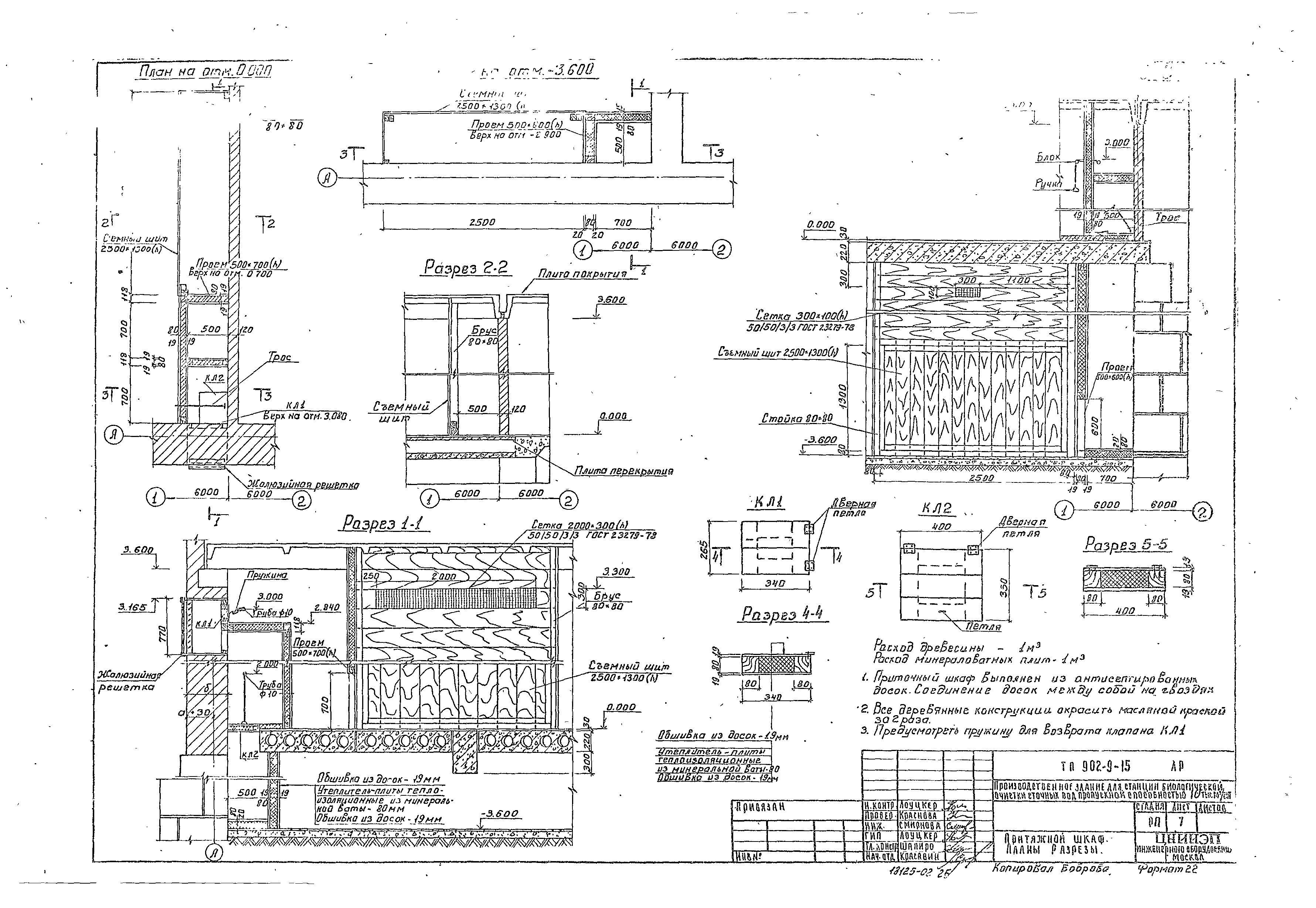
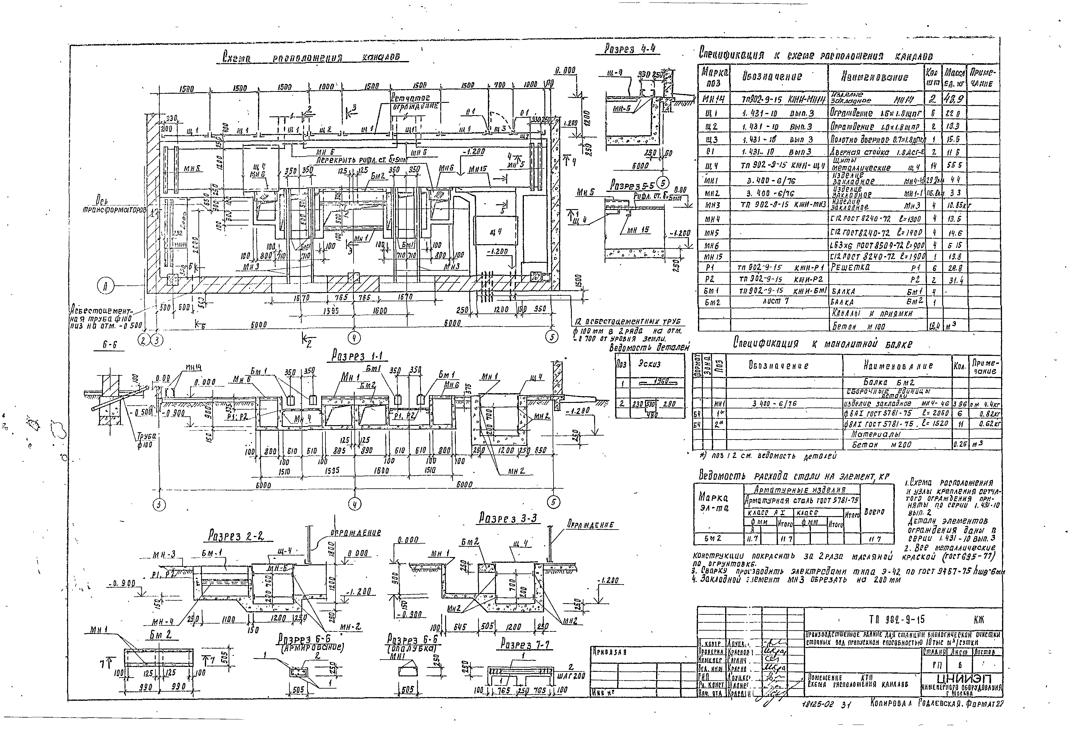
Скачать Типовой проект 902-9-15 Альбом II. Технологическая, санитарно-техническая, архитектурно-строительная частиДата актуализации: 10.08.2017 Типовой проект 902-9-15
Альбом II. Технологическая, санитарно-техническая, архитектурно-строительная частиОбозначение: | Типовой проект 902-9-15 | Обозначение англ: | 902-9-15 | Статус: | не определен законодательством | Название рус.: | Альбом II. Технологическая, санитарно-техническая, архитектурно-строительная части | Дата добавления в базу: | 01.09.2013 | Дата актуализации: | 05.05.2017 | Дата введения: | 18.02.1982 | Разработан: | ЦНИИЭП инженерного оборудования
| Утверждён: | 17.08.1981 Госгражданстрой (Gosgrazhdanstroy 247)
| Расположен в: |
|
                                      
|