Скачать Типовой проект 901-8-5 Альбом II. Технологическая, архитектурно-строительная, санитарно-техническая и электротехническая частиДата актуализации: 10.08.2017 Типовой проект 901-8-5
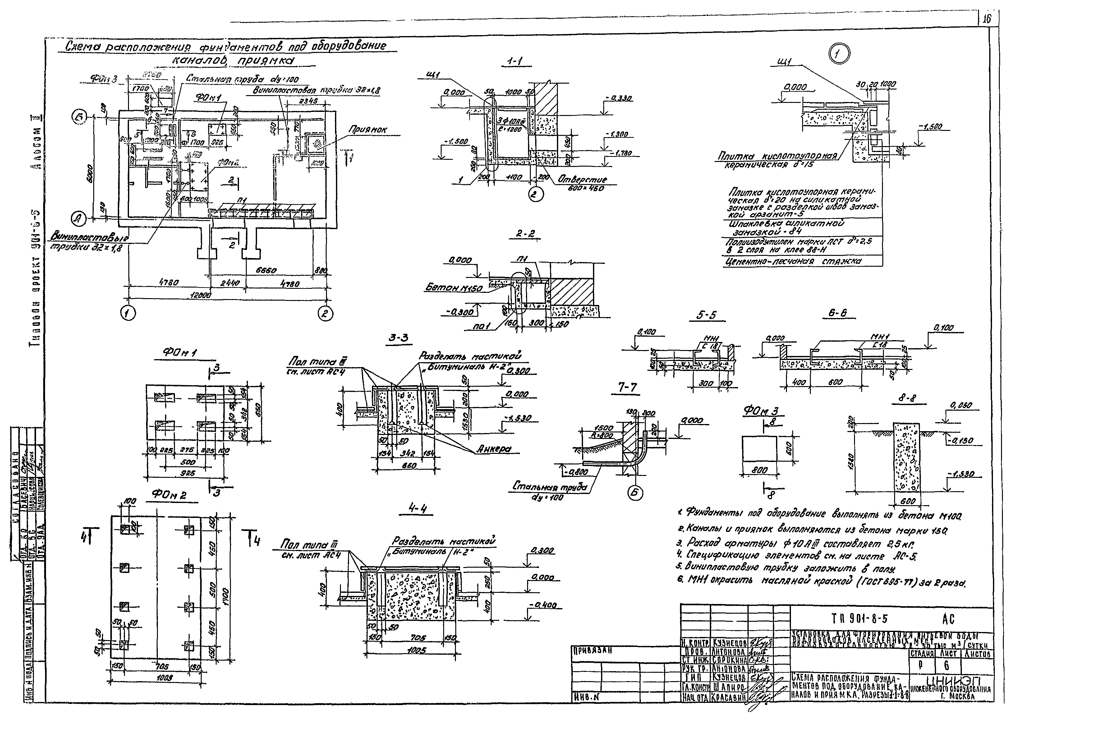
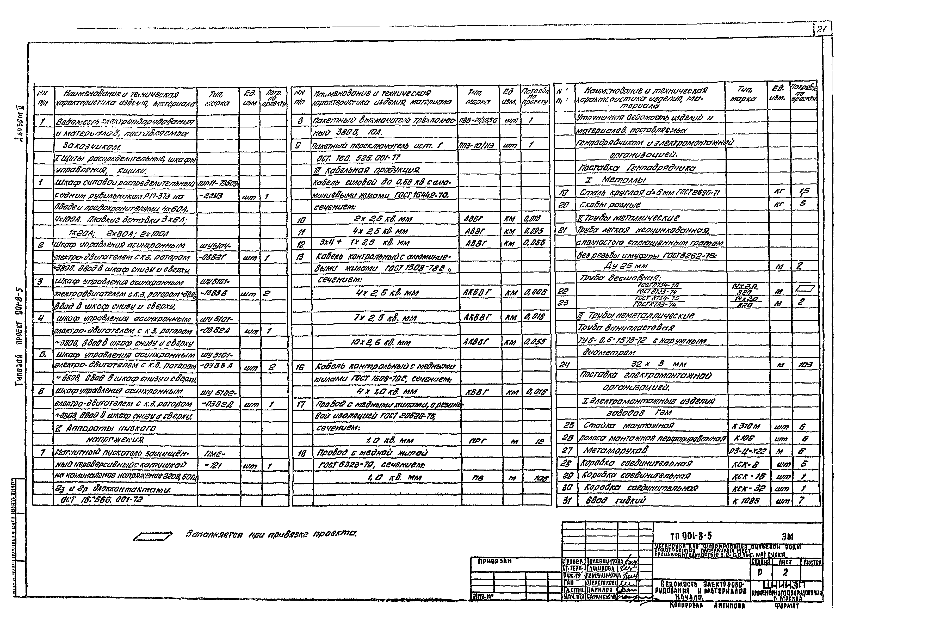
Альбом II. Технологическая, архитектурно-строительная, санитарно-техническая и электротехническая частиОбозначение: | Типовой проект 901-8-5 | Обозначение англ: | 901-8-5 | Статус: | не определен законодательством | Название рус.: | Альбом II. Технологическая, архитектурно-строительная, санитарно-техническая и электротехническая части | Дата добавления в базу: | 01.09.2013 | Дата актуализации: | 05.05.2017 | Дата введения: | 25.06.1981 | Оглавление: | Титульный лист Содержание Технологическая часть Общие данные Расположение технологического оборудования План Разрезы Схема принципиальная технологическая Схема аксонометрическая Спецификация Архитектурно-строительная часть Общие данные План, разрезы 1-1; 2-2 и детали Фасады 1 - 2; 2 - 1; Б - А; А - Б Планы кровли и полов. Ведомости отделки помещений и перемычек. Эксплуатация полов Схема расположения фундаментов. Разрезы 1-1 - 6-6 Схема расположения фундаментов под оборудование, каналов и приямка. Разрезы 1-1 - 8-8 Схема расположения плит покрытия и опорных подушек Конструкции металлические Общие данные Схема расположения кронштейнов, монорельса Щ1, МН2. Разрезы 1-1 - 7-7. Узел 1 Санитарно-техническая часть Общие данные План. Схема отопления. Схемы систем вентиляции. Узел управления. Спецификация Приточная система П-1. Схема обвязки калорифера Водоснабжение и канализация Общие данные План на отм. 0.000. Схемы водопровода и канализации Электротехническая часть Общие данные Ведомость электрооборудования и материалов Схема электрическая принципиальная распределительной сети. Кабельный журнал Схема электрическая принципиальная дозирования фтора Схема подключения электрооборудования Размещение электрооборудования и прокладка кабелей. План Электрическое освещение. План Чертежи основного комплекта марки АТХ Общие данные Ведомость приборов средств автоматизации Схема функциональная технологического процесса Схема электрическая принципиальная питающей сети Схема электрическая сигнализации Схема электрическая принципиальная управления приточной системой П-1 Схема подключения приборов и устройств технологического контроля. Схема соединений Схема подключения приборов и устройств приточной системы П-1 Размещение приборов и прокладка кабеля. План на отм. 0.000 | Разработан: | ЦНИИЭП инженерного оборудования
| Утверждён: | 31.05.1977 Госгражданстрой (Gosgrazhdanstroy 106)
| Расположен в: |
|
                                        
|