| ||||||||||||||||||||||||
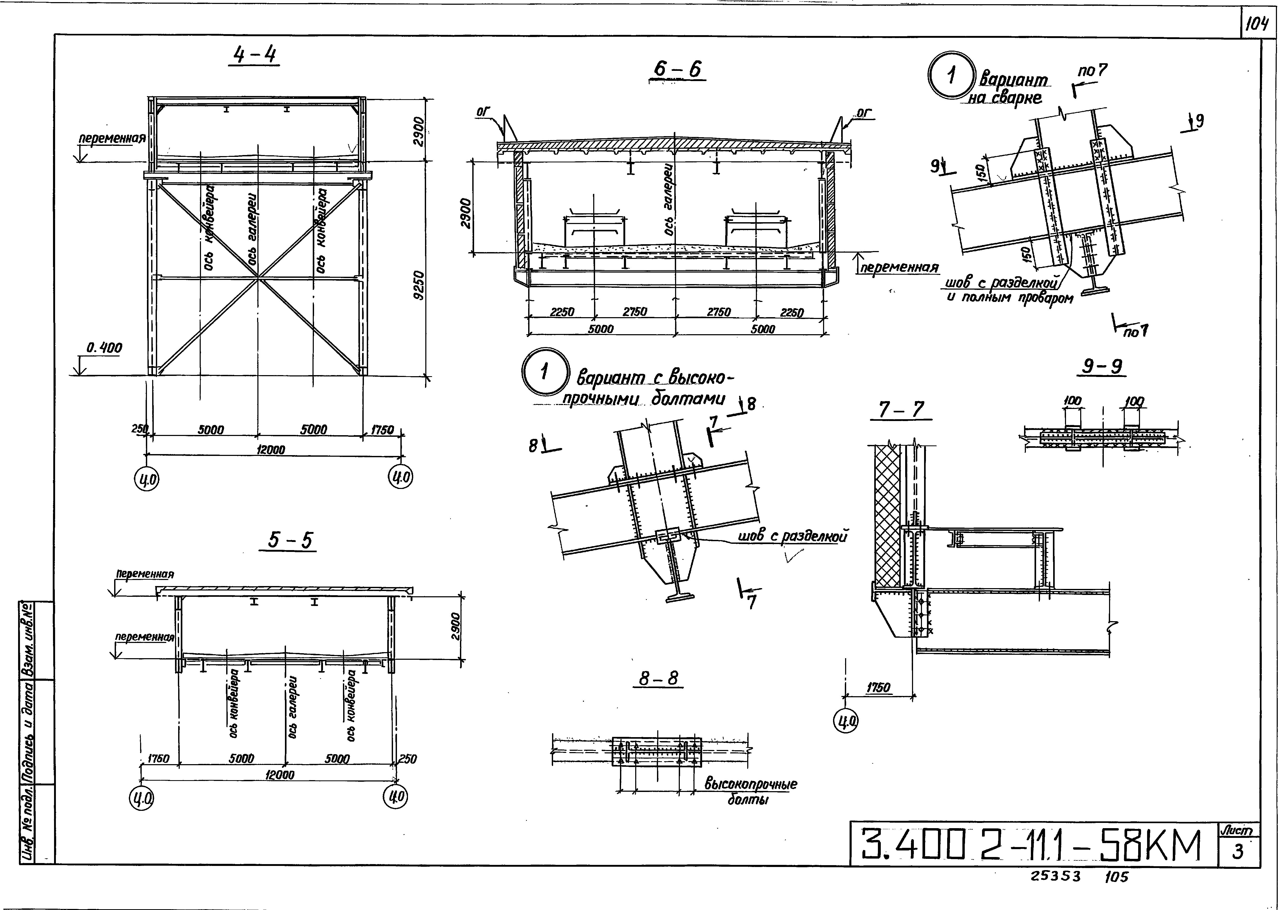
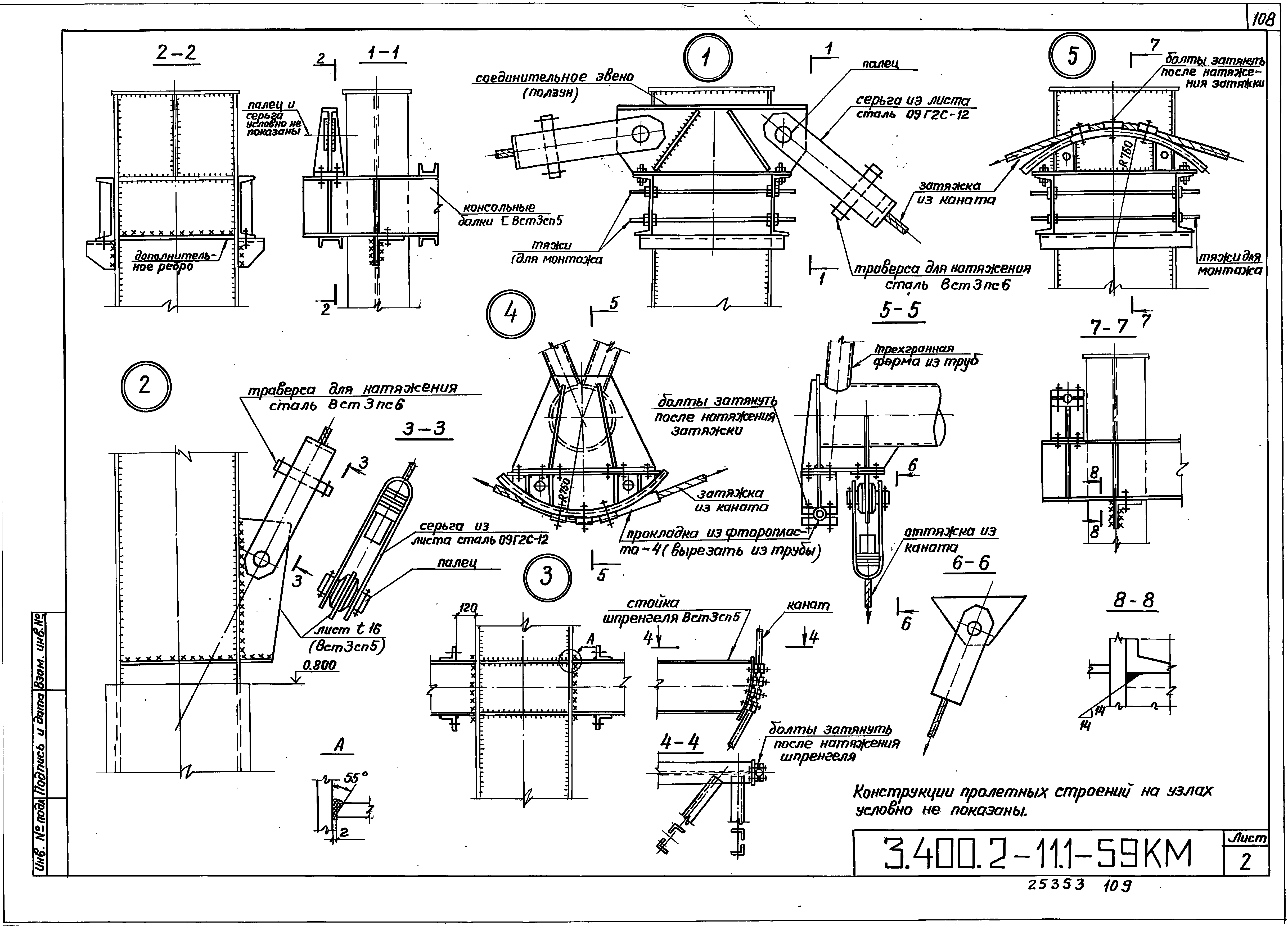
Скачать Серия 3.400.2-11 Выпуск 1. Конвейерные галереиДата актуализации: 10.08.2017
|
| Обозначение: | Серия 3.400.2-11 |
| Обозначение англ: | Series 3.400.2-11 |
| Статус: | не определен законодательством |
| Название рус.: | Выпуск 1. Конвейерные галереи |
| Дата добавления в базу: | 01.09.2013 |
| Дата актуализации: | 05.05.2017 |
| Дата введения: | 01.12.1991 |
| Разработан: | Ленпроектстальконструкция Сибпроектстальконструкция |
| Утверждён: | 14.11.1991 Госстрой СССР (Государственный комитет Совета Министров СССР по делам строительства) (USSR Gosstroy 5/4 59) |
| Расположен в: |
















































































































